Ausbaufähiges, leerstehendes Mehrfamilienhaus in Top-Lage von Herzogenaurach
997.000 €
Kaufpreis
554 m²
Wohnfläche
20
Zimmer
immobilien.de Nr.: 9506748
Objektnummer: 431353
Kaufpreis
| Kaufpreis | 997.000 € |
| Maklerprovision | keine Provision, courtagefrei |
Wohnfläche, Grundstück & Bausubstanz
| Wohnfläche | 554 m² |
| Grundstücksfläche | 850 m² |
| Zimmer | 20 |
| Baujahr | 1960 |
| Verfügbar ab | sofort |
| Zustand | Teil Vollrenovierungsbed |
Energie
| Energieausweistyp | Bedarfsausweis |
| Energieeffizienzklasse | B |
| Endenergiebedarf | 49 |
| Heizungsart | Zentralheizung |
| Energieträger/Befeuerung | Elektro |
Beschreibung der Immobilie
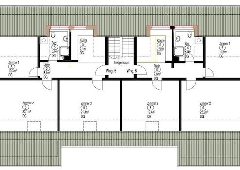
Bei dieser Liegenschaft handelt es sich um ein Mehrfamilienhaus mit vier bzw. sechs Wohneinheiten mit einer Gesamtwohnfläche Soll von ca. 554 m². Das Potential besteht in der Renovierung des Dachgeschosses (bereits z.T. ausgebaut, inkl. Elektrik, Warmwasser, Dämmung) mit 2 Wohnungen. Das Gebäude wurde im Jahr 1960 errichtet und steht auf einem ca. 850 m² großen Grundstück.
Das Haus verfügt über Keller, Erdgeschoss, Obergeschoss und Dachgeschoss.
Die Wohnungen sind über ein zentrales Treppenhaus erschlossen. Die Ausstattung entspricht einem soliden Standard. Für dieses Haus ist ein eigener Heizungseinbau erforderlich, bislang erfolgte die Versorgung über ein Nachbargebäude.
Geplant ist der Einbau einer Luftwärmepumpe. U.a. durch diesen Einbau kann ein Energieeffizienzwert von Klasse B erreicht werden.
Zum Verkauf wird eine Abgeschlossenheitsbescheinigung erstellt, nach Absprache ist auch eine Teilungserklärung möglich. Dies kann sich positiv auf die Finanzierung auswirken.
Der Bodenrichtwert beträgt aktuell 765 €/qm. Bei 850 qm sind das ein Bodenwert von 650.000 €.
Das Haus verfügt über Keller, Erdgeschoss, Obergeschoss und Dachgeschoss.
Die Wohnungen sind über ein zentrales Treppenhaus erschlossen. Die Ausstattung entspricht einem soliden Standard. Für dieses Haus ist ein eigener Heizungseinbau erforderlich, bislang erfolgte die Versorgung über ein Nachbargebäude.
Geplant ist der Einbau einer Luftwärmepumpe. U.a. durch diesen Einbau kann ein Energieeffizienzwert von Klasse B erreicht werden.
Zum Verkauf wird eine Abgeschlossenheitsbescheinigung erstellt, nach Absprache ist auch eine Teilungserklärung möglich. Dies kann sich positiv auf die Finanzierung auswirken.
Der Bodenrichtwert beträgt aktuell 765 €/qm. Bei 850 qm sind das ein Bodenwert von 650.000 €.
Ausstattungsmerkmale
| Anzahl der Etagen im Haus | 3 |
| Küche | Einbauküche |
| Bad | 4 |
| Bad | Wanne |
| Boden | Fliesen, Parkett, Laminat |
| Balkone | 1 |
| Garten | |
| Terrassen | 1 |
| Keller |
Balkon, Terrasse, Garten, Keller, Vollbad, Einbauküche, Gäste-WC, Parkett, Laminat, Fliesen
Bemerkungen:
Die meisten Wohnungen sind bestens für Paare oder Familien geeignet! Die größten direkten Arbeitgeber sind Schäffler, Puma, Adidas, Siemens, Areva, FAU (Friedrich-Alexander-Universität)
- Kellerabteil
- Kein Einzeldenkmal/ Ensembleschutz
- genügend Stellplätze
- Balkonanlage/ Terrassen und großzügige Gartenflächen
- Ausbaufähige Dachgeschossflächen zu weiteren 2 Wohnungen
Bemerkungen:
Die meisten Wohnungen sind bestens für Paare oder Familien geeignet! Die größten direkten Arbeitgeber sind Schäffler, Puma, Adidas, Siemens, Areva, FAU (Friedrich-Alexander-Universität)
- Kellerabteil
- Kein Einzeldenkmal/ Ensembleschutz
- genügend Stellplätze
- Balkonanlage/ Terrassen und großzügige Gartenflächen
- Ausbaufähige Dachgeschossflächen zu weiteren 2 Wohnungen
Sonstige Informationen
Heizungsart: Zentralheizung
Energieträger: Strom
Angaben gemäß § 5 TMG
G & T Immobilien GmbH
Geschäftsführer: Sebastian Gleißner und Maximilian Troll
Kolbstr. 10,
90513 Zirndorf
Registergericht: Amtsgericht Fürth
Handelsregister: HRB 14758
Makleranfragen nicht erwünscht. Nach § 7 UWG sind unaufgeforderte Kontaktaufnahmen durch Makler ohne ausdrückliche Einwilligung des Empfängers verboten!
ohne-makler (OM) ist weder Anbieter noch Vermittler der Immobilie. OM betreibt eine Plattform für Immobilieneigentümer, die unter anderem die gleichzeitige Veröffentlichung einzelner Inserate auf mehreren Immobilienportalen ermöglicht. Die Inhalte dieser Inserate werden ausschließlich von Dritten verantwortet. Für die Richtigkeit, Vollständigkeit oder Rechtmäßigkeit der Angaben übernimmt OM keine Haftung. Hinweise auf mögliche Rechtsverstöße können jederzeit gemeldet werden und werden nach Prüfung umgehend bearbeitet.
Energieträger: Strom
Angaben gemäß § 5 TMG
G & T Immobilien GmbH
Geschäftsführer: Sebastian Gleißner und Maximilian Troll
Kolbstr. 10,
90513 Zirndorf
Registergericht: Amtsgericht Fürth
Handelsregister: HRB 14758
Makleranfragen nicht erwünscht. Nach § 7 UWG sind unaufgeforderte Kontaktaufnahmen durch Makler ohne ausdrückliche Einwilligung des Empfängers verboten!
ohne-makler (OM) ist weder Anbieter noch Vermittler der Immobilie. OM betreibt eine Plattform für Immobilieneigentümer, die unter anderem die gleichzeitige Veröffentlichung einzelner Inserate auf mehreren Immobilienportalen ermöglicht. Die Inhalte dieser Inserate werden ausschließlich von Dritten verantwortet. Für die Richtigkeit, Vollständigkeit oder Rechtmäßigkeit der Angaben übernimmt OM keine Haftung. Hinweise auf mögliche Rechtsverstöße können jederzeit gemeldet werden und werden nach Prüfung umgehend bearbeitet.
Karte wird geladen...
Objektstandort
Spiegelgartenstr. 40
91074 Herzogenaurach
- Bayern
Lage & Infrastruktur
Objektstandort
Spiegelgartenstr. 40
91074 Herzogenaurach
- Bayern
Das Objekt liegt am südlichen Stadtrand von Herzogenaurach – ruhig gelegen und dennoch mitten im Leben. Einkaufsmöglichkeiten, Schulen, Kindergärten und eine Haltestelle des öffentlichen Nahverkehrs sind bequem zu Fuß erreichbar. In wenigen Minuten gelangt man zudem ins Stadtzentrum mit seinen Geschäften, Restaurants und Cafés.
Herzogenaurach ist nicht nur bekannt für seine charmante Altstadt, sondern auch als Standort namhafter Unternehmen wie Adidas, Puma und der Schaeffler-Gruppe. Damit bietet die Stadt eine ideale Kombination aus hoher Lebensqualität und wirtschaftlicher Stärke. Durch die Nähe zur Autobahn A3 sind Erlangen und Nürnberg schnell erreichbar, sodass sich Beruf, Freizeit und Wohnen hier optimal verbinden lassen.
Die Lage vereint damit alles, was modernes Wohnen ausmacht: Ruhe im Alltag, kurze Wege zu allen wichtigen Einrichtungen und eine hervorragende Anbindung an die Region.
Infrastruktur (im Umkreis von 5 km):
Apotheke, Lebensmittel-Discount, Allgemeinmediziner, Kindergarten, Grundschule, Hauptschule, Realschule, Gymnasium, Gesamtschule, Öffentliche Verkehrsmittel
Herzogenaurach ist nicht nur bekannt für seine charmante Altstadt, sondern auch als Standort namhafter Unternehmen wie Adidas, Puma und der Schaeffler-Gruppe. Damit bietet die Stadt eine ideale Kombination aus hoher Lebensqualität und wirtschaftlicher Stärke. Durch die Nähe zur Autobahn A3 sind Erlangen und Nürnberg schnell erreichbar, sodass sich Beruf, Freizeit und Wohnen hier optimal verbinden lassen.
Die Lage vereint damit alles, was modernes Wohnen ausmacht: Ruhe im Alltag, kurze Wege zu allen wichtigen Einrichtungen und eine hervorragende Anbindung an die Region.
Infrastruktur (im Umkreis von 5 km):
Apotheke, Lebensmittel-Discount, Allgemeinmediziner, Kindergarten, Grundschule, Hauptschule, Realschule, Gymnasium, Gesamtschule, Öffentliche Verkehrsmittel
Kontaktanfrage senden
Über den Anbieter
OM PropTech GmbH
Humboldtstraße 25a
21509 Glinde
Kontakt
| Telefon | - |
| Fax | - |
| Website | www.ohne-makler.net |
Ansprechpartner/in
Privat von Sebastian Gleißner
Weitere Angebote des Anbieters
29
Wahlstedt - Mehrgenerationenhaus mit Anbau, Einlieger- ...
Haus
23812 Wahlstedt
ES GIBT IMMOBILIEN - UND ES GIBT LEBENSRÄUME Dieses außergewöhnliche Wohnensemble vereint Großzügigkeit, Flexibilität und langfristige Perspektive in idealer Weise. Ob als Mehrgenerationendomizil, Kombination aus ...
425.000 €
Kaufpreis
255 m²
Wohnfläche
12
Zimmer
10
Exklusive 3-Zimmer | 91 m² City-West | + Balkon - WE26
Wohnung
10179 Berlin
In der Stallschreiberstraße 24 entsteht Ihr neues Zuhause in einer der begehrtesten Lagen der Hauptstadt. Die Wohnung im Erdgeschoss verbindet modernes Wohnen mit einem durchdachten Grundriss und hochwertiger ...
1.757 €
Kaltmiete (netto)
91 m²
Wohnfläche
3
Zimmer
11
Pforzheim Nord - Drei Zimmer mit Balkon
Wohnung
75177 Pforzheim
Die Wohnung liegt im 3. OG eines 5-Familien-Hauses in der Pforzheimer Nordstadt. Zum Bahnhof sind es etwa 5 Gehminuten, alle Geschäfte des täglichen Bedarfs sind in fußläufiger Nähe. Die Wohnung muss bei Einzug ...
950 €
Kaltmiete (netto)
80 m²
Wohnfläche
3
Zimmer
14
Helle und charmante 2-Zimmer-Wohnung in Perdöhl
Wohnung
19243 Perdöhl
Schöne 2-Zimmer-Wohnung im Dachgeschoss eines hübschen Mehrfamilienhauses. Die Wohnung verfügt über eine Einbauküche sowie ein Bad mit Badewanne. Ausreichend Abstellfläche bietet der eigene Dachbodenraum. Bis zu zwei ...
490 €
Kaltmiete (netto)
65 m²
Wohnfläche
2
Zimmer
6
Monteurzimmer Monteurwohnung Unterkunft Singlezimmer
Wohnung
51702 Bergneustadt
Ich biete in ruhiger zentrale und einer gemütlichen Lage von Bergneustadt Monteur Wohnungen Monteurzimmer Singlezimmer - all Inklusiv (Waschmaschine,Trockner, WLAN, Garten mit Grillplatz, etc. vorhanden). 3 ...
350 €
Kaltmiete (netto)
20 m²
Wohnfläche
6
Zimmer