Penthouse - Designwohnung am Michelsberg – Luxus in Bestlage von Ulm
2.020.000 €
Kaufpreis
155 m²
Wohnfläche
4,5
Zimmer
immobilien.de Nr.: 9505841
Objektnummer: 233
Kaufpreis
| Kaufpreis | 2.020.000 € |
| Hausgeld | 450 € |
| Maklerprovision | 3,57% inkl. 19% MwSt. vom Notariellen Kaufpreis |
| Stellplatz Tiefgarage Kaufpreis | 60.000 € |
Wohnfläche, Grundstück & Bausubstanz
| Wohnfläche | 155 m² |
| Zimmer | 4,5 |
| Baujahr | 2025 |
| Verfügbar ab | ab sofort |
| Zustand | Erstbezug |
Energie
| Energieausweistyp | Bedarfsausweis |
| Gültig bis | 2035-06-11 |
| Baujahr (laut Energieausweis) | 2025 |
| Energieeffizienzklasse | A |
| Endenergiebedarf | 31.80 |
| Wesentlicher Energieträger | Luftwp |
| Energieträger/Befeuerung | Solar |
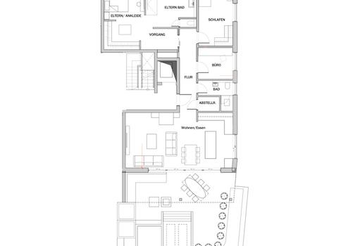
Beschreibung der Immobilie
In einer der begehrtesten Wohnlagen Ulms, hoch über der Stadt am Michelsberg, befindet sich diese außergewöhnliche Eigentumswohnung mit ca. 155 m² Wohnfläche und 4,5 Zimmern, im Erdgeschoss. Sie liegt in einem exklusiven Neubau mit nur zwölf Einheiten und vereint hochwertige Materialien, moderne Technik und eine durchdachte Raumaufteilung zu einem Wohnkonzept, das höchste Ansprüche erfüllt.
Ausstattungsmerkmale
| Anzahl der Etagen im Haus | 5 |
| Inserat befindet sich im Stockwerk | 3 |
| Küche | Offene Küche |
| Bad | 2 |
| Boden | Fliesen, Parkett |
| Terrassen | 1 |
| Fahrstuhl | |
| Keller |
Diese außergewöhnliche 4,5-Zimmer-Penthousewohnung vereint luxuriöses Wohnen, zeitloses Design und modernste Technik – hoch über den Dächern Ulms.
Der offen gestaltete Wohn- und Essbereich bildet gemeinsam mit der ca. 70 m² großen Dachterrasse den Mittelpunkt der Wohnung. Großflächige Glasfronten lassen viel Licht herein und eröffnen einen beeindruckenden Panoramablick über Ulm. Ein Holzofen sorgt für eine angenehme Atmosphäre und unterstreicht das exklusive Wohngefühl.
Die Dachterrasse ist ein echtes Highlight. Eine stilvoll mit Naturstein verkleidete Sitzecke, eine Außensauna sowie ein Whirlpool mit integrierten Sonnenliegen im Wasser schaffen eine private Wellness-Oase in luftiger Höhe – ein Rückzugsort mit maximaler Privatsphäre und hohem Erholungswert.
Der private Bereich ist klar vom offenen Lebensraum getrennt. Das Hauptschlafzimmer verfügt über einen offenen Schlafbereich mit direktem Zugang zum luxuriösen Masterbad. Dort erwarten Sie eine freistehende Badewanne, eine großzügige Dusche, hinterleuchtete Onyxplatten und hochwertige Armaturen. Ein separates Gäste-Bad sowie ein praktischer Abstellraum ergänzen das Raumkonzept. Weitere Zimmer eignen sich ideal als Kinder-, Gäste- oder Arbeitszimmer.
Die maßgefertigte Küche mit Markengeräten, Quarzit-Arbeitsfläche und integriertem Spritzschutz fügt sich harmonisch in das elegante Gesamtbild ein. Heiz- und Kühldecken sorgen ganzjährig für ein angenehmes Raumklima, ergänzt durch elektrische Beschattung, kontrollierte Wohnraumbelüftung und ein BUS-System zur zentralen Steuerung von Licht, Temperatur und Technik.
Das Gebäude überzeugt durch seine edle Travertin-Natursteinfassade, den barrierefreien Zugang, ein stilvolles Treppenhaus mit Lichtkonzept sowie einen Aufzug bis in die Tiefgarage. Für Energieeffizienz sorgen eine Wärmepumpe und eine unterstützende Photovoltaikanlage; optional kann Gas zugeschaltet werden. Zur Sicherheitsausstattung gehören Videoüberwachung und eine Videosprechanlage.
Diese Penthousewohnung ist mehr als nur Wohnraum, sie ist ein Statement für Stil, Komfort und Lebensqualität. Die Lage am Michelsberg vereint Ruhe, Privatsphäre und zugleich unmittelbare Stadtnähe – ein exklusives Zuhause für Menschen, die das Außergewöhnliche suchen.
Der offen gestaltete Wohn- und Essbereich bildet gemeinsam mit der ca. 70 m² großen Dachterrasse den Mittelpunkt der Wohnung. Großflächige Glasfronten lassen viel Licht herein und eröffnen einen beeindruckenden Panoramablick über Ulm. Ein Holzofen sorgt für eine angenehme Atmosphäre und unterstreicht das exklusive Wohngefühl.
Die Dachterrasse ist ein echtes Highlight. Eine stilvoll mit Naturstein verkleidete Sitzecke, eine Außensauna sowie ein Whirlpool mit integrierten Sonnenliegen im Wasser schaffen eine private Wellness-Oase in luftiger Höhe – ein Rückzugsort mit maximaler Privatsphäre und hohem Erholungswert.
Der private Bereich ist klar vom offenen Lebensraum getrennt. Das Hauptschlafzimmer verfügt über einen offenen Schlafbereich mit direktem Zugang zum luxuriösen Masterbad. Dort erwarten Sie eine freistehende Badewanne, eine großzügige Dusche, hinterleuchtete Onyxplatten und hochwertige Armaturen. Ein separates Gäste-Bad sowie ein praktischer Abstellraum ergänzen das Raumkonzept. Weitere Zimmer eignen sich ideal als Kinder-, Gäste- oder Arbeitszimmer.
Die maßgefertigte Küche mit Markengeräten, Quarzit-Arbeitsfläche und integriertem Spritzschutz fügt sich harmonisch in das elegante Gesamtbild ein. Heiz- und Kühldecken sorgen ganzjährig für ein angenehmes Raumklima, ergänzt durch elektrische Beschattung, kontrollierte Wohnraumbelüftung und ein BUS-System zur zentralen Steuerung von Licht, Temperatur und Technik.
Das Gebäude überzeugt durch seine edle Travertin-Natursteinfassade, den barrierefreien Zugang, ein stilvolles Treppenhaus mit Lichtkonzept sowie einen Aufzug bis in die Tiefgarage. Für Energieeffizienz sorgen eine Wärmepumpe und eine unterstützende Photovoltaikanlage; optional kann Gas zugeschaltet werden. Zur Sicherheitsausstattung gehören Videoüberwachung und eine Videosprechanlage.
Diese Penthousewohnung ist mehr als nur Wohnraum, sie ist ein Statement für Stil, Komfort und Lebensqualität. Die Lage am Michelsberg vereint Ruhe, Privatsphäre und zugleich unmittelbare Stadtnähe – ein exklusives Zuhause für Menschen, die das Außergewöhnliche suchen.
Sonstige Informationen
Wohnung
- Ca. 155 m² Wohnfläche
- 4,5 Zimmer mit durchdachter Aufteilung
- Großzügiger Wohn-/Essbereich mit ca. 44 m²
- Terrasse + Außenbereich ca. 220 m²
- Hochwertige Einbauküche mit Marken-Elektrogeräten und Quarzit-Arbeitsplatte
- Tageslichtbad mit Onyxplatten, Ambientebeleuchtung und Designerarmaturen
- 2 Badezimmer
- Praktischer Abstellraum innerhalb der Wohnung
- Heiz- und Kühldecken für ganzjährig perfektes Raumklima
Smart Home-System:
Intelligente Steuerung über zwei separate Apps:
– Eine App für Lüftung und Klimaregelung
– Eine zweite App für Heizung, Kühlung, Beleuchtung und Rollläden
Gebäude
- Architektonisch anspruchsvoller Neubau mit nur 12 Wohneinheiten
- Edle Natursteinfassade (Travertin)
- Barrierefreier Zugang, Aufzug von der Tiefgarage bis zur Wohnung
- Repräsentatives Treppenhaus mit Lichtkonzept
- Energieversorgung über Wärmepumpe und Photovoltaik
- Optionale Gas-Zuschaltung
- Videoüberwachung und Videosprechanlage
- 2 x Tiefgaragenstellplätze stehen der Wohnung zur Verfügung
Energie- und Wärmetechnik:
– Solarthermieanlage zur Warmwasserbereitung
– Wärmepumpe in Kombination mit Photovoltaikanlage und Batteriespeicher
– Gastherme als Zuheizung, wenn die Solarenergie nicht ausreicht
- Ca. 155 m² Wohnfläche
- 4,5 Zimmer mit durchdachter Aufteilung
- Großzügiger Wohn-/Essbereich mit ca. 44 m²
- Terrasse + Außenbereich ca. 220 m²
- Hochwertige Einbauküche mit Marken-Elektrogeräten und Quarzit-Arbeitsplatte
- Tageslichtbad mit Onyxplatten, Ambientebeleuchtung und Designerarmaturen
- 2 Badezimmer
- Praktischer Abstellraum innerhalb der Wohnung
- Heiz- und Kühldecken für ganzjährig perfektes Raumklima
Smart Home-System:
Intelligente Steuerung über zwei separate Apps:
– Eine App für Lüftung und Klimaregelung
– Eine zweite App für Heizung, Kühlung, Beleuchtung und Rollläden
Gebäude
- Architektonisch anspruchsvoller Neubau mit nur 12 Wohneinheiten
- Edle Natursteinfassade (Travertin)
- Barrierefreier Zugang, Aufzug von der Tiefgarage bis zur Wohnung
- Repräsentatives Treppenhaus mit Lichtkonzept
- Energieversorgung über Wärmepumpe und Photovoltaik
- Optionale Gas-Zuschaltung
- Videoüberwachung und Videosprechanlage
- 2 x Tiefgaragenstellplätze stehen der Wohnung zur Verfügung
Energie- und Wärmetechnik:
– Solarthermieanlage zur Warmwasserbereitung
– Wärmepumpe in Kombination mit Photovoltaikanlage und Batteriespeicher
– Gastherme als Zuheizung, wenn die Solarenergie nicht ausreicht
Karte wird geladen...
Objektstandort
89075 Ulm
Lage & Infrastruktur
Objektstandort
89075 Ulm
Die Wohnung befindet sich am Ulmer Michelsberg, einer der exklusivsten und begehrtesten Wohnlagen Ulms. Eingebettet am Michelsberg zeichnet sich das Umfeld durch eine ruhige, grüne und zugleich zentrale Lage aus. Hier verbindet sich urbanes Leben mit hoher Wohnqualität, ein Umfeld, das in Ulm nur selten zu finden ist.
Das Stadtzentrum ist in wenigen Minuten erreichbar, ebenso die historische Altstadt, die Donauufer sowie zahlreiche kulturelle Einrichtungen. Einkaufsmöglichkeiten für den täglichen Bedarf, Ärzte und Apotheken befinden sich in unmittelbarer Nähe. Schulen, Kindergärten und die Universität Ulm sind schnell erreichbar.
Besonders hervorzuheben ist die ausgezeichnete Verkehrsanbindung: Ob mit dem Auto über die B10 und A8 oder mit öffentlichen Verkehrsmitteln – die Mozartstraße ist ideal angebunden, ohne dass die ruhige Wohnatmosphäre beeinträchtigt wird.
Die direkte Nachbarschaft ist geprägt von gepflegten Wohnhäusern und einer hochwertigen Bebauung, was den repräsentativen Charakter dieser Lage zusätzlich unterstreicht.
Das Stadtzentrum ist in wenigen Minuten erreichbar, ebenso die historische Altstadt, die Donauufer sowie zahlreiche kulturelle Einrichtungen. Einkaufsmöglichkeiten für den täglichen Bedarf, Ärzte und Apotheken befinden sich in unmittelbarer Nähe. Schulen, Kindergärten und die Universität Ulm sind schnell erreichbar.
Besonders hervorzuheben ist die ausgezeichnete Verkehrsanbindung: Ob mit dem Auto über die B10 und A8 oder mit öffentlichen Verkehrsmitteln – die Mozartstraße ist ideal angebunden, ohne dass die ruhige Wohnatmosphäre beeinträchtigt wird.
Die direkte Nachbarschaft ist geprägt von gepflegten Wohnhäusern und einer hochwertigen Bebauung, was den repräsentativen Charakter dieser Lage zusätzlich unterstreicht.
Kontaktanfrage senden
Über den Anbieter
AG Immobilien GmbH
Magirus-Deutz-Straße 13
89077 Ulm
Kontakt
| Telefon | 004973128065504 |
| Mobil | 004915120082005 |
| Fax | 004973128065503 |
| Website | www.ag-immobilie.de/ |
Ansprechpartner/in
Anton Gärtner
Weitere Angebote des Anbieters
28
Penthouse - Designwohnung am Michelsberg – Luxus in ...
Wohnung
89075 Ulm
In einer der begehrtesten Wohnlagen Ulms, hoch über der Stadt am Michelsberg, befindet sich diese außergewöhnliche Eigentumswohnung mit ca. 155 m² Wohnfläche und 4,5 Zimmern, im Erdgeschoss. Sie liegt in einem ...
2.020.000 €
Kaufpreis
155 m²
Wohnfläche
4,5
Zimmer
20
provisionsfrei / Büroräume in Dornstadt am Industrie- ...
Büro / Praxen
89160 Dornstadt, Alb-Donau-Kreis
Die angebotene Büroeinheit befindet sich in einem neuwertigen, repräsentativen Büro- und Lagergebäude (Baujahr 2016) in verkehrsgünstiger Lage von Dornstadt. Das Gebäude überzeugt durch eine moderne Architektur, einen ...
8 €
Mietpreis pro m²
119,46 m²
Gesamtfläche
20
provisionsfrei / Büroräume in Dornstadt am Industrie- ...
Büro / Praxen
89160 Dornstadt, Alb-Donau-Kreis
Die angebotene Büroeinheit befindet sich in einem neuwertigen, repräsentativen Büro- und Lagergebäude (Baujahr 2016) in verkehrsgünstiger Lage von Dornstadt. Das Gebäude überzeugt durch eine moderne Architektur, einen ...
8 €
Mietpreis pro m²
80,81 m²
Gesamtfläche
28
Designwohnung am Michelsberg – Luxus in Bestlage von ...
Wohnung
89075 Ulm
In einer der begehrtesten Wohnlagen Ulms, hoch über der Stadt am Michelsberg, befindet sich diese außergewöhnliche Mietwohnung mit ca. 107 m² Wohnfläche und 3,5 Zimmern, im 1. Obergeschoss. Sie liegt in einem ...
2.250 €
Kaltmiete
21,03 €
Mietpreis pro m²
106,98 m²
Wohnfläche
3,5
Zimmer
17
Modern und repräsentativ – Büroräume in Ulm/West - ...
Büro / Praxen
89077 Ulm
Die zur Vermietung stehende Büroeinheit befindet sich in einem architektonisch anspruchsvollen Gebäude mit hochwertiger Glasfassade. Die Flächen sind durch elegante Glasbauelemente unterteilt, wodurch moderne, helle ...
11 €
Mietpreis pro m²
85,45 m²
Gesamtfläche