Extravaganter Bungalow mit Pult-/Flachdach
546.800 €
Kaufpreis
135 m²
Wohnfläche
3
Zimmer
immobilien.de Nr.: 9498981
Objektnummer: 2247
Kaufpreis
| Kaufpreis | 546.800 € |
| Stellplatz Garage Kaufpreis | 15.000 € |
Wohnfläche, Grundstück & Bausubstanz
| Wohnfläche | 135 m² |
| Grundstücksfläche | 738 m² |
| Zimmer | 3 |
| Verfügbar ab | keine Angabe |
Energie
| Energietyp | KfW-40 |
| Heizungsart | Zentralheizung |
| Energieträger/Befeuerung | Luft-Wärme-Pumpe |
Beschreibung der Immobilie
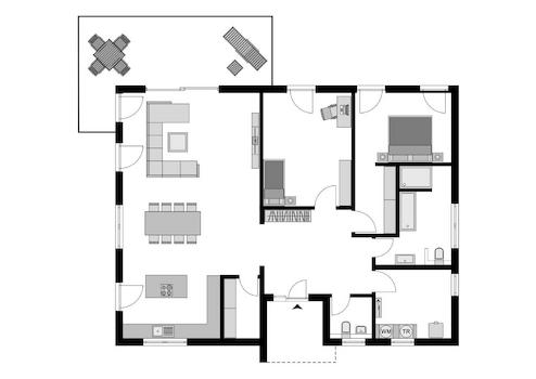
Das extravagante Bungalow Fertighaus mit einer Kombination aus Pult- und Flachdach überzeugt nicht nur in der Architektur, es punktet auch mit einem ausgeklügelten Grundriss. Der Bungalow-Entwurf ist für Singles, Paare oder eine Kleinfamilie gleichermaßen geeignet. Der großzügige Wohn-/Ess-Bereich ist auf 55,8 m² mit der Küchenplanung offen übereck angelegt. Eine geräumige Diele ist dem Wohnbereich vorgelagert. Sie kann auf Wunsch mit einer Glaswand ausgestattet werden, die viel Licht und Transparenz in die Gestaltung bringt. Flexibilität bietet ein Zusatzraum, der als Kinder-, Gäste-, Hobbyzimmer oder als Büro genutzt werden kann. Ein Schlafzimmer mit viel Stellfläche, ein Duschbad, ein Gäste-WC und ein Haustechnikraum komplettieren das Raumangebot des extravaganten Bungalow-Fertighauses.
Ausstattungsmerkmale
| Anzahl der Etagen im Haus | 1 |
| Küche | Offene Küche |
| Bad | 1 |
| Bad | Dusche, Wanne, Fenster, Bidet |
| Garage/Stellplätze | 1 |
STREIF-Häuser sind Energiesparhäuser. Die Außenwände im Passiv-Haus-Standard und eine sparsame Heiztechnik mit integrierter Wohnraumlüftung und Wärmerückgewinnung, garantieren einen geringen Energieverbrauch und ein fantastisches Raumklima, das insbesondere Allergiker aufatmen lässt.
STREIF Leistungen sind MEHR WERT - schon im Grundpreis enthalten!
- 20-monatige Festpreisgarantie
- Energieeffizienzhaus KfW 40PLUS im Standard
- Inkl. Fundamentplatte
- Inkl. STREIF-Luft-Luft-Wärmepumpe mit integrierter
Lüftungsanlage mit Wärmerückgewinnung
- Inkl. Haustür von KERA und Fenster von Porta/Kömmerling
- Inkl. Massivholz-Geschosstreppe aus eigener Produktion
- Inkl. Sanitärobjekte von Markenherstellern
- Inkl. Vorbereitung zur Installation einer Photovoltaik-Anlage
- Inkl. Elektroinstallation
- Inkl. Baubetreuung u.v.m.
Die hohe Wertigkeit und Langlebigkeit eines STREIF-Energiespar-Hauses wird durch zahlreiche Auszeichnungen, Qualitäts- und Gütesiegel unabhängiger Institute und Verbände dokumentiert.
Wir bauen individuell für Sie, deshalb sind Bilder und Grundrisse Beispiele und Gestaltungsideen und können evtl. Anbauteile, Carports, Balkone, Gauben usw. zeigen, die nicht im Angebotspreis enthalten sind. Änderungen und Irrtümer vorbehalten.
STREIF Leistungen sind MEHR WERT - schon im Grundpreis enthalten!
- 20-monatige Festpreisgarantie
- Energieeffizienzhaus KfW 40PLUS im Standard
- Inkl. Fundamentplatte
- Inkl. STREIF-Luft-Luft-Wärmepumpe mit integrierter
Lüftungsanlage mit Wärmerückgewinnung
- Inkl. Haustür von KERA und Fenster von Porta/Kömmerling
- Inkl. Massivholz-Geschosstreppe aus eigener Produktion
- Inkl. Sanitärobjekte von Markenherstellern
- Inkl. Vorbereitung zur Installation einer Photovoltaik-Anlage
- Inkl. Elektroinstallation
- Inkl. Baubetreuung u.v.m.
Die hohe Wertigkeit und Langlebigkeit eines STREIF-Energiespar-Hauses wird durch zahlreiche Auszeichnungen, Qualitäts- und Gütesiegel unabhängiger Institute und Verbände dokumentiert.
Wir bauen individuell für Sie, deshalb sind Bilder und Grundrisse Beispiele und Gestaltungsideen und können evtl. Anbauteile, Carports, Balkone, Gauben usw. zeigen, die nicht im Angebotspreis enthalten sind. Änderungen und Irrtümer vorbehalten.
Sonstige Informationen
STREIF Leistungen sind mehr wert - schon im Grundpreis!
INDIVIDUELLE ARCHITEKTUR
-persönliche Architekten-Planung
-individuelle Grundrissgestaltung ohne Mehrpreis
UNSERE BAUWEISE
-mehrschichtiger diffusionsvariabler Wandaufbau bis U-Wert 0,10 W / m² * K - im Gefach (zwischen den Stielen) gemessen
-hochstabile Innenwand und Konstruktion
-Fenster gesamt: Uw-Wert 0,81 W/m² * K
Glas der Fenster: Ug-Wert 0,6 W/m² * K
-Haustür ab UD-Wert 0,64 W/m² * K
-30 Jahre Garantie auf statisches Tragwerk
-ausschließlich handgemacht in Deutschland
INDIVIDUELLE ARCHITEKTUR
-persönliche Architekten-Planung
-individuelle Grundrissgestaltung ohne Mehrpreis
UNSERE BAUWEISE
-mehrschichtiger diffusionsvariabler Wandaufbau bis U-Wert 0,10 W / m² * K - im Gefach (zwischen den Stielen) gemessen
-hochstabile Innenwand und Konstruktion
-Fenster gesamt: Uw-Wert 0,81 W/m² * K
Glas der Fenster: Ug-Wert 0,6 W/m² * K
-Haustür ab UD-Wert 0,64 W/m² * K
-30 Jahre Garantie auf statisches Tragwerk
-ausschließlich handgemacht in Deutschland
Karte wird geladen...
Objektstandort
72474 Winterlingen
Lage & Infrastruktur
Objektstandort
72474 Winterlingen
Gern können Sie für die Suche nach dem passenden Bauplatz meinen Grundstücksservice nutzen - ich unterstütze Sie dabei, das ideale Grundstück für Ihr Traumhaus zu finden. Der Grundstückspreis ist in dem angegebenen Hauspreis bereits berücksichtigt.
Es handelt sich hierbei um ein reales Grundstück, das sofort bebaut werden kann.
Es handelt sich hierbei um ein reales Grundstück, das sofort bebaut werden kann.
Kontaktanfrage senden
Über den Anbieter
STREIF Haus GmbH
Josef-Streif-Straße 1
54595 Weinsheim
Kontakt
| Telefon | +49 6551 1200 |
| Mobil | +49 157 70255471 |
| Website | www.streif.de |
Ansprechpartner/in
Herr Dennis Käppeler
Weitere Angebote des Anbieters
30
STREIF baut Euer perfektes Zuhause
Haus
74232 Abstatt
Das zweieinhalbgeschossige Mehrfamilienhaus mit zwei Wohnungen überzeugt mit einer klassisch eleganten Architektur mit Satteldach und zwei behaglichen Terrassen. Der Hausentwurf kann mit Stahlbalkonen an der ...
1.425.170 €
Kaufpreis
358 m²
Wohnfläche
18
Zimmer
30
STREIF baut Euer perfektes Zuhause
Haus
74232 Abstatt
Das zweigeschossige Mehrfamilienhaus mit vier Wohnungen überzeugt mit einer klassisch eleganten Architektur mit Walmdach und zwei behaglichen Terrassen. Die Grundrissgestaltung bietet im Entwurf vier verschiedene ...
1.265.655 €
Kaufpreis
297 m²
Wohnfläche
16
Zimmer
16
STREIF baut Euer perfektes Zuhause
Haus
74232 Abstatt
Bungalow mit Satteldach mit flexiblem Raumkonzept Entdecken Sie die Möglichkeiten, Ihr Traumhaus als Bungalow mit einem Satteldach zu realisieren und erleben Sie eine zeitgemäße Architektur gepaart mit einem ...
865.019 €
Kaufpreis
113 m²
Wohnfläche
4
Zimmer
17
STREIF baut Euer perfektes Zuhause
Haus
74232 Abstatt
STREIF-Villa 4: Exklusives Wohnen mit Flachdach, zwei Erkern, Galerie und Dachterrasse Der Entwurf der exklusiven STREIF-Villa 4 bietet seinen Bewohnern zahlreiche luxuriöse Merkmale, darunter eine zweigeschossige ...
1.093.493 €
Kaufpreis
210 m²
Wohnfläche
8
Zimmer
18
STREIF baut Euer perfektes Zuhause
Haus
74232 Abstatt
STREIF-Doppelhausentwurf 1 - im Stadtvillenstil Die Architektur dieses Doppelhauses mit einem eleganten Walmdach strahlt zeitlose Modernität aus. Die Grundrisse sind so konzipiert, dass großzügige und komfortable Räume ...
883.180 €
Kaufpreis
140 m²
Wohnfläche
6
Zimmer