STREIF baut Euer perfektes Zuhause
883.180 €
Kaufpreis
140 m²
Wohnfläche
6
Zimmer
immobilien.de Nr.: 9499489
Objektnummer: AM74232103
Kaufpreis
| Kaufpreis | 883.180 € |
Wohnfläche, Grundstück & Bausubstanz
| Wohnfläche | 140 m² |
| Grundstücksfläche | 784 m² |
| Zimmer | 6 |
| Verfügbar ab | keine Angabe |
| Zustand | Erstbezug |
Energie
| Energietyp | KfW-40 |
| Heizungsart | Zentralheizung |
| Energieträger/Befeuerung | Luft-Wärme-Pumpe |
Beschreibung der Immobilie
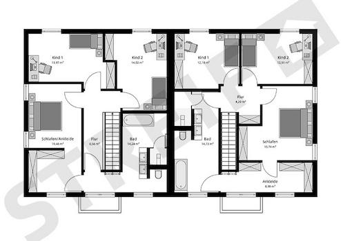
STREIF-Doppelhausentwurf 1 - im Stadtvillenstil
Die Architektur dieses Doppelhauses mit einem eleganten Walmdach strahlt zeitlose Modernität aus. Die Grundrisse sind so konzipiert, dass großzügige und komfortable Räume entstehen. Der offene Wohn-/Ess-/Kochbereich bietet mit seinen 39 m² viel Platz und Helligkeit, dank einer Panorama-Hebeschiebetür und einer doppelflügeligen Terrassentür. Im Erdgeschoss befindet sich ein zusätzliches Zimmer, das flexibel als Homeoffice, Gästezimmer oder Schlafzimmer genutzt werden kann. Das Badezimmer im Erdgeschoss kann optional mit einer Dusche ausgestattet werden, was in Kombination mit dem Zusatzzimmer ein ebenerdiges Wohnen ermöglicht. Im Obergeschoss finden Sie einen Elternbereich mit Ankleidezimmer, zwei Kinderzimmern und ein geräumiges Bad. Aufgrund der Bauweise dieses Doppelhausentwurfs mit Walmdach ist es erforderlich, beide Haushälften gleichzeitig zu errichten.
Preisangaben beziehen sich auf eine Doppelhaushälfte.
Die Architektur dieses Doppelhauses mit einem eleganten Walmdach strahlt zeitlose Modernität aus. Die Grundrisse sind so konzipiert, dass großzügige und komfortable Räume entstehen. Der offene Wohn-/Ess-/Kochbereich bietet mit seinen 39 m² viel Platz und Helligkeit, dank einer Panorama-Hebeschiebetür und einer doppelflügeligen Terrassentür. Im Erdgeschoss befindet sich ein zusätzliches Zimmer, das flexibel als Homeoffice, Gästezimmer oder Schlafzimmer genutzt werden kann. Das Badezimmer im Erdgeschoss kann optional mit einer Dusche ausgestattet werden, was in Kombination mit dem Zusatzzimmer ein ebenerdiges Wohnen ermöglicht. Im Obergeschoss finden Sie einen Elternbereich mit Ankleidezimmer, zwei Kinderzimmern und ein geräumiges Bad. Aufgrund der Bauweise dieses Doppelhausentwurfs mit Walmdach ist es erforderlich, beide Haushälften gleichzeitig zu errichten.
Preisangaben beziehen sich auf eine Doppelhaushälfte.
Ausstattungsmerkmale
| Anzahl der Etagen im Haus | 2 |
| Bad | 1 |
| Terrassen | 1 |
| Barrierefrei |
STREIF-Energiespar-Häuser sind für die Effizienzhaus-Klasse 40* vorbereitet. (*In Abhängigkeit von Gebäudestandort, Gebäudeausrichtung, Fensterflächenanteile, Haustechnik usw. können zusätzliche oder abweichende Leistungen erforderlich werden, die im Zuge der Bauantragsbewertung/-erstellung bewertet werden.)
Gegen Aufpreis erstellen wir eine Ökobilanzierung für Ihr Haus nach QNG durch. Für das Erreichen der Vorgaben des Qualitätssiegels Nachhaltiges Gebäude (QNG) für eine Ökobilanzierung wird zusätzlich eine Photovoltaik-Anlage mit Batteriespeicher benötigt. Mit dem Erfüllen dieser und weiterer Anforderungen wird Ihr Haus nach den neuen KfW-Förderrichtlinien für den Klimafreundlichen Neubau (KFN) förderfähig.
Die Außenwände im Passiv-Haus-Standard und eine sparsame Heiztechnik mit integrierter Wohnraumlüftung und Wärmerückgewinnung, garantieren einen geringen Energieverbrauch und ein fantastisches Raumklima, das insbesondere Allergiker aufatmen lässt.
STREIF Leistungen sind MEHR WERT - schon im Grundpreis enthalten!
- 16-monatige Festpreisgarantie
- Inkl. individuelle Grundrissgestaltung und Raumaufteilung
- Inkl. gedämmte Fundamentplatte
- Inkl. STREIF-Luft-Luft-Wärmepumpen-Technologie mit integrierter Lüftungsanlage mit Wärmerückgewinnung
- Inkl. Haustür von KERA und Fenster von Porta/Kömmerling
- Inkl. Sanitärobjekte von Markenherstellern
- Inkl. Massivholz-Geschosstreppe aus eigener Produktion (entfällt bei Bungalow)
- Inkl. Elektroinstallation u. v. m.
- Inkl. Photovoltaikanlage 7,12 KWP
- Inkl. Batteriespeicher mit 7,70 KWH
Die hohe Wertigkeit und Langlebigkeit eines STREIF-Energiespar-Hauses wird durch zahlreiche Auszeichnungen, Qualitäts- und Gütesiegel unabhängiger Institute und Verbände dokumentiert.
Der Angebotspreis ist inklusive Grundstück und bezieht sich auf die Standard-Ausbaustufe Fast-Fertig-Plus. Ihre Eigenleistungen: Spachtel-,Tapezier- und Malerarbeiten, Bodenbeläge, Innentüren.
Baunebenkosten fallen zuzüglich an.
Der Verkauf des Grundstücks erfolgt über einen unserer Netzwerkpartner.
Bilder können evtl. Anbauteile, Carports, Balkone, Gauben usw. zeigen, die nicht im Angebotspreis enthalten sind. Änderungen und Irrtümer vorbehalten.
Gegen Aufpreis erstellen wir eine Ökobilanzierung für Ihr Haus nach QNG durch. Für das Erreichen der Vorgaben des Qualitätssiegels Nachhaltiges Gebäude (QNG) für eine Ökobilanzierung wird zusätzlich eine Photovoltaik-Anlage mit Batteriespeicher benötigt. Mit dem Erfüllen dieser und weiterer Anforderungen wird Ihr Haus nach den neuen KfW-Förderrichtlinien für den Klimafreundlichen Neubau (KFN) förderfähig.
Die Außenwände im Passiv-Haus-Standard und eine sparsame Heiztechnik mit integrierter Wohnraumlüftung und Wärmerückgewinnung, garantieren einen geringen Energieverbrauch und ein fantastisches Raumklima, das insbesondere Allergiker aufatmen lässt.
STREIF Leistungen sind MEHR WERT - schon im Grundpreis enthalten!
- 16-monatige Festpreisgarantie
- Inkl. individuelle Grundrissgestaltung und Raumaufteilung
- Inkl. gedämmte Fundamentplatte
- Inkl. STREIF-Luft-Luft-Wärmepumpen-Technologie mit integrierter Lüftungsanlage mit Wärmerückgewinnung
- Inkl. Haustür von KERA und Fenster von Porta/Kömmerling
- Inkl. Sanitärobjekte von Markenherstellern
- Inkl. Massivholz-Geschosstreppe aus eigener Produktion (entfällt bei Bungalow)
- Inkl. Elektroinstallation u. v. m.
- Inkl. Photovoltaikanlage 7,12 KWP
- Inkl. Batteriespeicher mit 7,70 KWH
Die hohe Wertigkeit und Langlebigkeit eines STREIF-Energiespar-Hauses wird durch zahlreiche Auszeichnungen, Qualitäts- und Gütesiegel unabhängiger Institute und Verbände dokumentiert.
Der Angebotspreis ist inklusive Grundstück und bezieht sich auf die Standard-Ausbaustufe Fast-Fertig-Plus. Ihre Eigenleistungen: Spachtel-,Tapezier- und Malerarbeiten, Bodenbeläge, Innentüren.
Baunebenkosten fallen zuzüglich an.
Der Verkauf des Grundstücks erfolgt über einen unserer Netzwerkpartner.
Bilder können evtl. Anbauteile, Carports, Balkone, Gauben usw. zeigen, die nicht im Angebotspreis enthalten sind. Änderungen und Irrtümer vorbehalten.
Sonstige Informationen
Zur Realisierung des Bauvorhabens und zur Bezugsfertigkeit des Gebäudes kommen zzgl. noch Baunebenkosten und Fertigstellungskosten.
Karte wird geladen...
Objektstandort
74232 Abstatt
Lage & Infrastruktur
Objektstandort
74232 Abstatt
Abstatt ist eine Gemeinde im Südosten des Landkreises Heilbronn in Baden-Württemberg. Gelegen im malerischen Schozachtal am Fuße der Löwensteiner Berge, hat sich Abstatt in den letzten Jahrzehnten von einem idyllischen Winzerdorf zu einem international bedeutenden Technologiestandort entwickelt. Die Gemeinde besteht aus dem Hauptort Abstatt sowie den Ortsteilen Happenbach und Vohenlohe.
Ein entscheidender Standortfaktor ist der direkte Anschluss an die Autobahn A81 (Heilbronn-Stuttgart) über die Anschlussstelle Ilsfeld/Abstatt. Die Landeshauptstadt Stuttgart ist in ca. 30 Minuten, Heilbronn in nur 10-15 Minuten erreichbar. Regelmäßige Busverbindungen binden Abstatt an die Stadtbahn-Knotenpunkte in Heilbronn und an die Bahnhöfe der Umgebung an. Abstatt verfügt über eine gute Infrastruktur mit modernen Supermärkten, Fachgeschäften, mehreren Allgemeinärzten, Zahnärzten und einer Apotheke.
Abstatt bietet Kleinkindbetreuung und mehrere Kindergärten mit flexiblen Öffnungszeiten an. Die Gemeinde verfügt über eine moderne Grundschule direkt im Ort. Weiterführende Schulen (Realschulen und Gymnasien) befinden sich in den Nachbarstädten Beilstein (Herzog-Christoph-Gymnasium), Ilsfeld oder Heilbronn und sind bestens durch Schulbusse erschlossen.
Die Gemeinde ist international bekannt als Sitz von Bosch Engineering und Bosch Motorsport. Der riesige Entwicklungsstandort auf dem "Abstatter Berg" prägt die lokale Wirtschaft und zieht hochqualifizierte Fachkräfte aus aller Welt an. Abstatt ist eine traditionsreiche Weinbaugemeinde (Weinbaubereich Württembergisch-Unterland). Die Lagen rund um die Burg Wildeck bringen hervorragende Weine hervor. Das weithin sichtbare Wahrzeichen Burg Wildeck ist heute Sitz einer staatlichen Weinbau-Versuchsanstalt. Der angrenzende ökologische Weinlehrpfad ist ein beliebtes Ziel für Spaziergänger. Der nahegelegene Annasee und die Wanderwege in den Löwensteiner Bergen bieten ideale Bedingungen für Erholungssuchende, sowie zum Wandern und Fahrrad.
Hervorragende Sportanlagen, ein gepflegtes Ortsbild und hohe Investitionen in die Lebensqualität, sowie die gute Anbindung an die A81 machen Abstatt zu einem attraktiven Wohnort, der eine Kombination aus dörflicher Idylle mit Weinbergen und dem Flair eines modernen, internationalen Technologiezentrums bietet.
Ein entscheidender Standortfaktor ist der direkte Anschluss an die Autobahn A81 (Heilbronn-Stuttgart) über die Anschlussstelle Ilsfeld/Abstatt. Die Landeshauptstadt Stuttgart ist in ca. 30 Minuten, Heilbronn in nur 10-15 Minuten erreichbar. Regelmäßige Busverbindungen binden Abstatt an die Stadtbahn-Knotenpunkte in Heilbronn und an die Bahnhöfe der Umgebung an. Abstatt verfügt über eine gute Infrastruktur mit modernen Supermärkten, Fachgeschäften, mehreren Allgemeinärzten, Zahnärzten und einer Apotheke.
Abstatt bietet Kleinkindbetreuung und mehrere Kindergärten mit flexiblen Öffnungszeiten an. Die Gemeinde verfügt über eine moderne Grundschule direkt im Ort. Weiterführende Schulen (Realschulen und Gymnasien) befinden sich in den Nachbarstädten Beilstein (Herzog-Christoph-Gymnasium), Ilsfeld oder Heilbronn und sind bestens durch Schulbusse erschlossen.
Die Gemeinde ist international bekannt als Sitz von Bosch Engineering und Bosch Motorsport. Der riesige Entwicklungsstandort auf dem "Abstatter Berg" prägt die lokale Wirtschaft und zieht hochqualifizierte Fachkräfte aus aller Welt an. Abstatt ist eine traditionsreiche Weinbaugemeinde (Weinbaubereich Württembergisch-Unterland). Die Lagen rund um die Burg Wildeck bringen hervorragende Weine hervor. Das weithin sichtbare Wahrzeichen Burg Wildeck ist heute Sitz einer staatlichen Weinbau-Versuchsanstalt. Der angrenzende ökologische Weinlehrpfad ist ein beliebtes Ziel für Spaziergänger. Der nahegelegene Annasee und die Wanderwege in den Löwensteiner Bergen bieten ideale Bedingungen für Erholungssuchende, sowie zum Wandern und Fahrrad.
Hervorragende Sportanlagen, ein gepflegtes Ortsbild und hohe Investitionen in die Lebensqualität, sowie die gute Anbindung an die A81 machen Abstatt zu einem attraktiven Wohnort, der eine Kombination aus dörflicher Idylle mit Weinbergen und dem Flair eines modernen, internationalen Technologiezentrums bietet.
Kontaktanfrage senden
Über den Anbieter
STREIF Haus GmbH
Josef-Streif-Straße 1
54595 Weinsheim
Kontakt
| Telefon | +49 176 43417486 |
| Website | www.streif.de |
Ansprechpartner/in
Achim Machmeier
Weitere Angebote des Anbieters
30
STREIF baut Euer perfektes Zuhause
Haus
74232 Abstatt
Das zweieinhalbgeschossige Mehrfamilienhaus mit zwei Wohnungen überzeugt mit einer klassisch eleganten Architektur mit Satteldach und zwei behaglichen Terrassen. Der Hausentwurf kann mit Stahlbalkonen an der ...
1.425.170 €
Kaufpreis
358 m²
Wohnfläche
18
Zimmer
30
STREIF baut Euer perfektes Zuhause
Haus
74232 Abstatt
Das zweigeschossige Mehrfamilienhaus mit vier Wohnungen überzeugt mit einer klassisch eleganten Architektur mit Walmdach und zwei behaglichen Terrassen. Die Grundrissgestaltung bietet im Entwurf vier verschiedene ...
1.265.655 €
Kaufpreis
297 m²
Wohnfläche
16
Zimmer
16
STREIF baut Euer perfektes Zuhause
Haus
74232 Abstatt
Bungalow mit Satteldach mit flexiblem Raumkonzept Entdecken Sie die Möglichkeiten, Ihr Traumhaus als Bungalow mit einem Satteldach zu realisieren und erleben Sie eine zeitgemäße Architektur gepaart mit einem ...
865.019 €
Kaufpreis
113 m²
Wohnfläche
4
Zimmer
17
STREIF baut Euer perfektes Zuhause
Haus
74232 Abstatt
STREIF-Villa 4: Exklusives Wohnen mit Flachdach, zwei Erkern, Galerie und Dachterrasse Der Entwurf der exklusiven STREIF-Villa 4 bietet seinen Bewohnern zahlreiche luxuriöse Merkmale, darunter eine zweigeschossige ...
1.093.493 €
Kaufpreis
210 m²
Wohnfläche
8
Zimmer
18
STREIF baut Euer perfektes Zuhause
Haus
74232 Abstatt
STREIF-Doppelhausentwurf 1 - im Stadtvillenstil Die Architektur dieses Doppelhauses mit einem eleganten Walmdach strahlt zeitlose Modernität aus. Die Grundrisse sind so konzipiert, dass großzügige und komfortable Räume ...
883.180 €
Kaufpreis
140 m²
Wohnfläche
6
Zimmer