1,5 Zimmer WHG *** bestens vermietet ***EBK *** geschickt aufgeteilt *** OHNE MAKLER
330.000 €
Kaufpreis
44 m²
Wohnfläche
1,5
Zimmer
immobilien.de Nr.: 9496543
Objektnummer: 433854
Dateien
Kaufpreis
| Kaufpreis | 330.000 € |
| Hausgeld | 214 € |
| Maklerprovision | keine Provision, courtagefrei |
Wohnfläche, Grundstück & Bausubstanz
| Wohnfläche | 44 m² |
| Zimmer | 1,5 |
| Baujahr | 1966 |
| Verfügbar ab | nach Absprache |
| Zustand | Gepflegt |
Energie
| Energieausweistyp | Verbrauch |
| Energieverbrauchkennwert | 165 kWh/(m²*a) |
| Heizungsart | Zentralheizung |
| Energieträger/Befeuerung | Öl |
Beschreibung der Immobilie
Diese helle geschickt aufgeteilte Wohnung ist bestens vermietet
ab sofort zu erwerben
Eckdaten der Wohnung:
Baujahr 1966
1. Obergeschoss
44 qm
Hausgeld € 214,-
Zentralheizung
kurzer Weg zur U - Bahn Haltestelle "Josephsburgstrasse" (U 2)
Balkon vorhanden
Jalousien an Fenster und Balkontüre
großes Kellerabteil
Küche 2023 erneuert - Granit Arbeitsplatte einschl. Rückwand
Parkett 2023 erneuert - Eiche
Waschmaschinen Anschluss im Bad oder Münzwaschmaschine im Haus
Der Energieausweis liegt zur Besichtigung vor.
Die Wohnung ist sehr gut vermietet.
Die Netto Rendite beträgt 4,9 %
ab sofort zu erwerben
Eckdaten der Wohnung:
Baujahr 1966
1. Obergeschoss
44 qm
Hausgeld € 214,-
Zentralheizung
kurzer Weg zur U - Bahn Haltestelle "Josephsburgstrasse" (U 2)
Balkon vorhanden
Jalousien an Fenster und Balkontüre
großes Kellerabteil
Küche 2023 erneuert - Granit Arbeitsplatte einschl. Rückwand
Parkett 2023 erneuert - Eiche
Waschmaschinen Anschluss im Bad oder Münzwaschmaschine im Haus
Der Energieausweis liegt zur Besichtigung vor.
Die Wohnung ist sehr gut vermietet.
Die Netto Rendite beträgt 4,9 %
Ausstattungsmerkmale
| Anzahl der Etagen im Haus | 4 |
| Inserat befindet sich im Stockwerk | 1 |
| Küche | Einbauküche |
| Bad | 1 |
| Bad | Wanne |
| Boden | Fliesen, Parkett |
| Balkone | 1 |
| Terrassen | 0 |
| Keller |
Balkon, Keller, Vollbad, Einbauküche, Parkett, Fliesen
Bemerkungen:
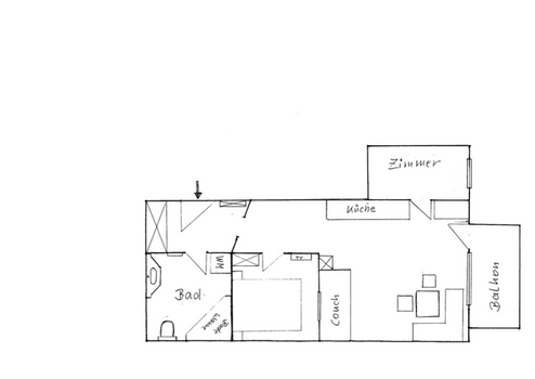
Aufteilung:
Die Wohnfläche von ca. 44 qm überzeugt durch eine funktionale und gut durchdachte Raumaufteilung.
Über den Eingangsbereich mit großzügigem Einbauschrank und Garderobe gelangt man in die Wohnung
Das große, lichtdurchflutete Wohnzimmer, hat eine Küche, Esstisch mit Stühlen und Couch, sowie TV-Anschluss. Es bildet den Mittelpunkt der Wohnung und bietet Zugang zum Balkon.
Es gibt einen separaten Raum mit Fenster zum Wohnraum zum Schlafen für ein Einzelbett oder ein Doppelbett, ebenfalls mit einem TV-Anschluss
Ein weiterer Raum mit Fenster für ein Kind oder als Büro steht zur Verfügung
Das Bad verfügt über eine Badewanne, WC und Waschtisch. Ein Handtuchheizkörper und ein Waschmaschinenanschluss sind im Bad vorhanden
Ein großes Kellerabteil gehört zur Wohnung.
Die Wohnung wird möbliert verkauft
Bemerkungen:
Aufteilung:
Die Wohnfläche von ca. 44 qm überzeugt durch eine funktionale und gut durchdachte Raumaufteilung.
Über den Eingangsbereich mit großzügigem Einbauschrank und Garderobe gelangt man in die Wohnung
Das große, lichtdurchflutete Wohnzimmer, hat eine Küche, Esstisch mit Stühlen und Couch, sowie TV-Anschluss. Es bildet den Mittelpunkt der Wohnung und bietet Zugang zum Balkon.
Es gibt einen separaten Raum mit Fenster zum Wohnraum zum Schlafen für ein Einzelbett oder ein Doppelbett, ebenfalls mit einem TV-Anschluss
Ein weiterer Raum mit Fenster für ein Kind oder als Büro steht zur Verfügung
Das Bad verfügt über eine Badewanne, WC und Waschtisch. Ein Handtuchheizkörper und ein Waschmaschinenanschluss sind im Bad vorhanden
Ein großes Kellerabteil gehört zur Wohnung.
Die Wohnung wird möbliert verkauft
Sonstige Informationen
Heizungsart: Zentralheizung
Energieträger: Öl
Die Wohnung wird ohne Makler verkauft
Makleranfragen beantworten wir nicht!
Bitte beachten Sie wir dass wir trotz Prüfung von Daten, Bildern und Informationen keine Haftung für die Richtigkeit der Angaben geben können. Es können sich auch mal Fehler einschleichen.
Bitte haben Sie auch Verständnis dass wir Unterlagen nur an Interessenten versenden die uns ihre kompletten Kontaktdaten wie Name, Adresse, Telefonnummer und E-Mail Adresse zur Verfügung stellen und die Wohnung besichtigt haben.
Makleranfragen nicht erwünscht. Nach § 7 UWG sind unaufgeforderte Kontaktaufnahmen durch Makler ohne ausdrückliche Einwilligung des Empfängers verboten!
ohne-makler (OM) ist weder Anbieter noch Vermittler der Immobilie. OM betreibt eine Plattform für Immobilieneigentümer, die unter anderem die gleichzeitige Veröffentlichung einzelner Inserate auf mehreren Immobilienportalen ermöglicht. Die Inhalte dieser Inserate werden ausschließlich von Dritten verantwortet. Für die Richtigkeit, Vollständigkeit oder Rechtmäßigkeit der Angaben übernimmt OM keine Haftung. Hinweise auf mögliche Rechtsverstöße können jederzeit gemeldet werden und werden nach Prüfung umgehend bearbeitet.
Energieträger: Öl
Die Wohnung wird ohne Makler verkauft
Makleranfragen beantworten wir nicht!
Bitte beachten Sie wir dass wir trotz Prüfung von Daten, Bildern und Informationen keine Haftung für die Richtigkeit der Angaben geben können. Es können sich auch mal Fehler einschleichen.
Bitte haben Sie auch Verständnis dass wir Unterlagen nur an Interessenten versenden die uns ihre kompletten Kontaktdaten wie Name, Adresse, Telefonnummer und E-Mail Adresse zur Verfügung stellen und die Wohnung besichtigt haben.
Makleranfragen nicht erwünscht. Nach § 7 UWG sind unaufgeforderte Kontaktaufnahmen durch Makler ohne ausdrückliche Einwilligung des Empfängers verboten!
ohne-makler (OM) ist weder Anbieter noch Vermittler der Immobilie. OM betreibt eine Plattform für Immobilieneigentümer, die unter anderem die gleichzeitige Veröffentlichung einzelner Inserate auf mehreren Immobilienportalen ermöglicht. Die Inhalte dieser Inserate werden ausschließlich von Dritten verantwortet. Für die Richtigkeit, Vollständigkeit oder Rechtmäßigkeit der Angaben übernimmt OM keine Haftung. Hinweise auf mögliche Rechtsverstöße können jederzeit gemeldet werden und werden nach Prüfung umgehend bearbeitet.
Karte wird geladen...
Objektstandort
81673 München
- Bayern
Lage & Infrastruktur
Objektstandort
81673 München
- Bayern
Die Wohnung befindet sich in München Ost, Stadtteil: Berg am Laim.
Die Wohnung ist ruhig da der Balkon zu einer kleinen Seitenstrasse raus geht.
Zur U-Bahn-Haltestelle „Josephsburg“ (U 2) und zur U–Bahn-Haltestelle “Kreillerstrasse“ (U 2) sind es ca. 6 Minuten zu Fuß. Die Bus- und Straßenbahnlinien 187, 21 und N19 verkehren in der Nähe. Zum Marienplatz / Hauptbahnhof (City Center) mit der U 2 in 10 Minuten. Die U – Bahn fährt alle 5 – 10 Minuten, je nach Tageszeit.
Einkaufsmöglichkeiten:
Supermärkte, Banken und Geschäft sind in direkter Wohnungsnähe.
Ausserdem Bäckereien, Ärzte, Restaurants, Supermärkte und zwei Cafés. Auch Fitnessstudios, Reinigungen, zwei Physiotherapeuten und eine Bibliothek erreichen Sie.
Schulen – Kindergärten
Schulen und Kindergärten befinden sich in direkter Wohnungsnähe
Freizeit
Fußläufig ist der Ostpark mit seinem Biergarten „Michaelibad“ der direkt an einem kleinen See liegt erreichbar. Ganz in der Nähe ist das Freibad und ein Hallenbad (Michaelibad).
Infrastruktur (im Umkreis von 5 km):
Apotheke, Lebensmittel-Discount, Allgemeinmediziner, Kindergarten, Grundschule, Hauptschule, Realschule, Gymnasium, Öffentliche Verkehrsmittel
Die Wohnung ist ruhig da der Balkon zu einer kleinen Seitenstrasse raus geht.
Zur U-Bahn-Haltestelle „Josephsburg“ (U 2) und zur U–Bahn-Haltestelle “Kreillerstrasse“ (U 2) sind es ca. 6 Minuten zu Fuß. Die Bus- und Straßenbahnlinien 187, 21 und N19 verkehren in der Nähe. Zum Marienplatz / Hauptbahnhof (City Center) mit der U 2 in 10 Minuten. Die U – Bahn fährt alle 5 – 10 Minuten, je nach Tageszeit.
Einkaufsmöglichkeiten:
Supermärkte, Banken und Geschäft sind in direkter Wohnungsnähe.
Ausserdem Bäckereien, Ärzte, Restaurants, Supermärkte und zwei Cafés. Auch Fitnessstudios, Reinigungen, zwei Physiotherapeuten und eine Bibliothek erreichen Sie.
Schulen – Kindergärten
Schulen und Kindergärten befinden sich in direkter Wohnungsnähe
Freizeit
Fußläufig ist der Ostpark mit seinem Biergarten „Michaelibad“ der direkt an einem kleinen See liegt erreichbar. Ganz in der Nähe ist das Freibad und ein Hallenbad (Michaelibad).
Infrastruktur (im Umkreis von 5 km):
Apotheke, Lebensmittel-Discount, Allgemeinmediziner, Kindergarten, Grundschule, Hauptschule, Realschule, Gymnasium, Öffentliche Verkehrsmittel
Kontaktanfrage senden
Über den Anbieter
OM PropTech GmbH
Humboldtstraße 25a
21509 Glinde
Kontakt
| Telefon | - |
| Fax | - |
| Website | www.ohne-makler.net |
Ansprechpartner/in
Privat vom Eigentümer
Weitere Angebote des Anbieters
21
Charmante vollmöblierte 1-Zimmer-Neubauwohnung im 3. ...
Wohnung
90443 Nürnberg
Diese hochwertig ausgestattete, voll möblierte 1-Zimmer-Neubauwohnung im Erdgeschoss überzeugt mit durchdachtem Grundriss auf ca. 21,49 m² Wohnfläche und einer eigenen Terrasse – ideal für Singles oder Pendler. Das ...
573 €
Kaltmiete (netto)
21,49 m²
Wohnfläche
1
Zimmer
3
Gemütliche 2-Zimmer Wohnung im Zentrum von Hörstel!
Wohnung
48477 Hörstel
Diese Wohnung befindet sich im 1. Obergeschoss unseres Mehrfamilienhauses in zentraler Lage im Ortskern von Hörstel. Aufgrund der zentralen Lage sind alle Einrichtungen des täglichen Bedarfs fußläufig erreichbar.
629 €
Kaltmiete (netto)
72 m²
Wohnfläche
2
Zimmer
21
Charmante vollmöblierte 1-Zimmer-Neubauwohnung im 1. ...
Wohnung
90443 Nürnberg
Diese moderne, vollmöblierte 1-Zimmer-Neubauwohnung im 1. Obergeschoss überzeugt mit einer optimalen Raumaufteilung auf ca. 21,18 m² Wohnfläche sowie einem eigenen Balkon. Das im Jahr 2026 fertiggestellte Wohn- und ...
583 €
Kaltmiete (netto)
21,18 m²
Wohnfläche
1
Zimmer
21
Charmante vollmöblierte 1-Zimmer-Neubauwohnung im 2. ...
Wohnung
90443 Nürnberg
Diese hochwertig ausgestattete, vollmöblierte 1-Zimmer-Neubauwohnung überzeugt mit einem durchdachten Grundriss auf ca. 24.95 m² Wohnfläche und bietet modernen Wohnkomfort auf kompakter Fläche – ideal für Singles oder ...
693 €
Kaltmiete (netto)
24,95 m²
Wohnfläche
1
Zimmer
21
Charmante vollmöblierte 1-Zimmer-Neubauwohnung im 3. ...
Wohnung
90443 Nürnberg
Diese hochwertig ausgestattete, voll möblierte 1-Zimmer-Neubauwohnung im Erdgeschoss überzeugt mit durchdachtem Grundriss auf ca. 25,14 m² Wohnfläche und einer eigenen Terrasse – ideal für Singles oder Pendler. Das ...
670 €
Kaltmiete (netto)
25,14 m²
Wohnfläche
1
Zimmer