Einzigartiges Wohnensemble am See: Jugendstilvilla, 3‑Zimmer‑Einliegerwohnung & Wintergarten-Oase
1.150.000 €
Kaufpreis
329 m²
Wohnfläche
10
Zimmer
immobilien.de Nr.: 9495384
Objektnummer: 430626
Kaufpreis
| Kaufpreis | 1.150.000 € |
| Maklerprovision | keine Provision, courtagefrei |
Wohnfläche, Grundstück & Bausubstanz
| Wohnfläche | 329 m² |
| Grundstücksfläche | 1.254 m² |
| Zimmer | 10 |
| Baujahr | 1896 |
| Verfügbar ab | nach Absprache |
| Zustand | Modernisiert |
Energie
| Energieausweistyp | Bedarfsausweis |
| Endenergiebedarf | 178 |
| Heizungsart | Zentralheizung |
| Energieträger/Befeuerung | Öl |
Beschreibung der Immobilie
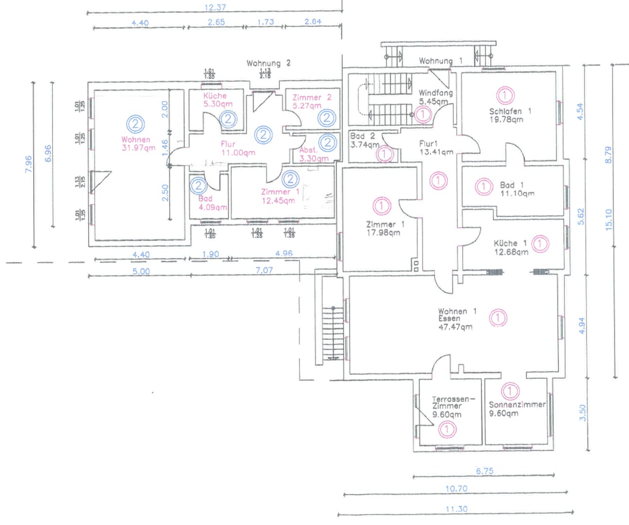
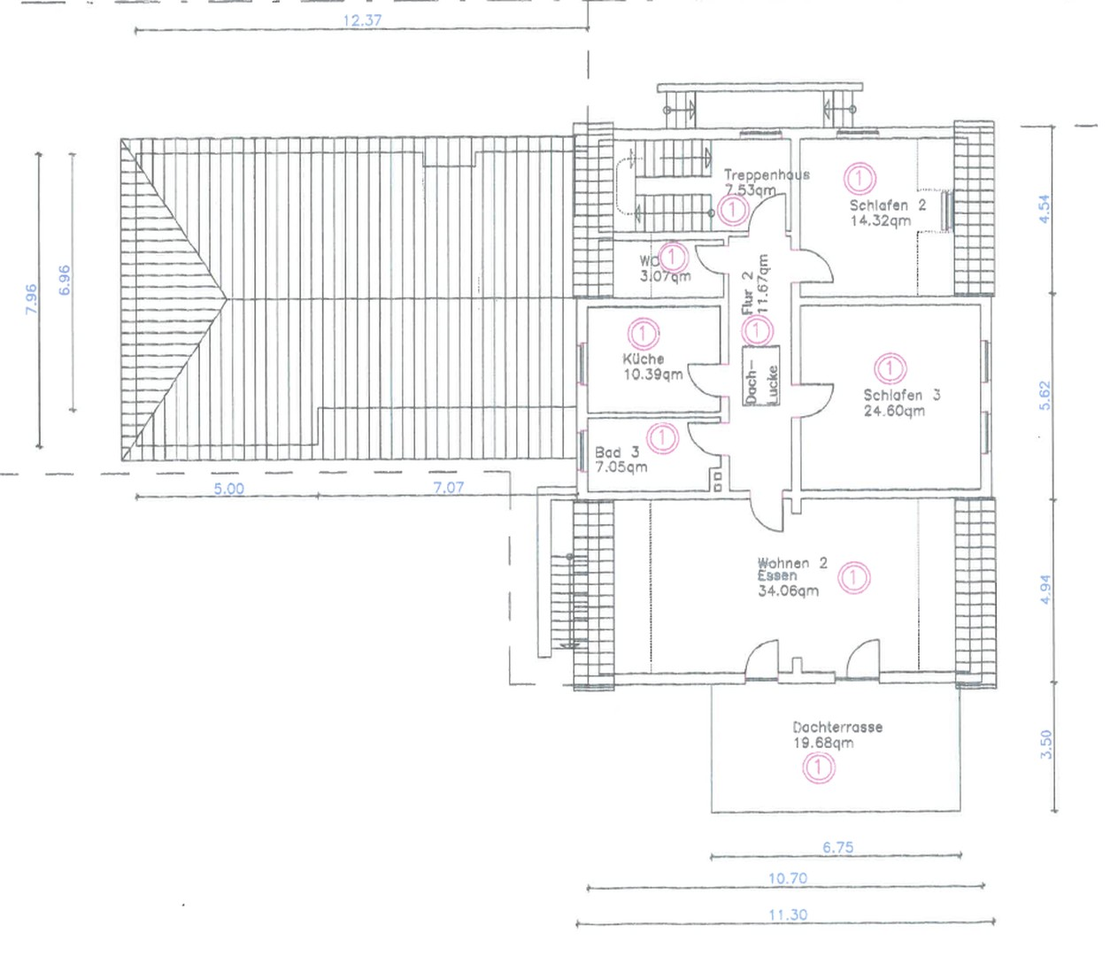
Diese eindrucksvolle Jugendstil-Stadtvilla aus dem Jahr 1896 zählt zu den repräsentativsten Wohnhäusern Glückstadts. Mit 255 m² Wohnfläche im Haupthaus und einer zusätzlich angebauten 74‑m²‑Wohnung bietet das Anwesen ein außergewöhnliches Raumangebot, das historischen Charme mit moderner Wohnqualität verbindet. Die Immobilie wurde 2019 und 2023 modernisiert und befindet sich in einem gepflegten, stilvollen Gesamtzustand.
Die angebundene 74‑m²‑Wohnung verfügt über ein eingetragenes lebenslanges Wohnrecht, das noch 22 Jahre besteht. Die berechtigten Personen sind 77 und 67 Jahre alt. Dieses Wohnrecht ist im Kaufpreis berücksichtigt und wird vom Käufer übernommen.
Ein besonderes Highlight ist der beheizte Wintergarten, der sich separat hinter der Garage befindet. Mit seinem offenen Kamin dient er als ganzjährig nutzbare Wohlfühloase – ideal für entspannte Abende, kleine Feiern oder als kreativer Rückzugsort.
Der Garten der Wohnung umfasst 153 m² und ist durch einen natürlichen Sichtschutz vom Hauptgarten getrennt. Dadurch genießen sowohl die Villa als auch die Wohnung maximale Privatsphäre. Das Gesamtgrundstück umfasst 1.254 m².
Die großzügige Vorfahrt bietet Platz für 4–5 PKW und unterstreicht den repräsentativen Charakter des Anwesens.
Die angebundene 74‑m²‑Wohnung verfügt über ein eingetragenes lebenslanges Wohnrecht, das noch 22 Jahre besteht. Die berechtigten Personen sind 77 und 67 Jahre alt. Dieses Wohnrecht ist im Kaufpreis berücksichtigt und wird vom Käufer übernommen.
Ein besonderes Highlight ist der beheizte Wintergarten, der sich separat hinter der Garage befindet. Mit seinem offenen Kamin dient er als ganzjährig nutzbare Wohlfühloase – ideal für entspannte Abende, kleine Feiern oder als kreativer Rückzugsort.
Der Garten der Wohnung umfasst 153 m² und ist durch einen natürlichen Sichtschutz vom Hauptgarten getrennt. Dadurch genießen sowohl die Villa als auch die Wohnung maximale Privatsphäre. Das Gesamtgrundstück umfasst 1.254 m².
Die großzügige Vorfahrt bietet Platz für 4–5 PKW und unterstreicht den repräsentativen Charakter des Anwesens.
Ausstattungsmerkmale
| Anzahl der Etagen im Haus | 2 |
| Küche | Einbauküche |
| Bad | 5 |
| Bad | Dusche, Wanne |
| Boden | Fliesen, Teppich, Parkett |
| Balkone | 2 |
| Garten | |
| Terrassen | 0 |
| Garage/Stellplätze | 1 |
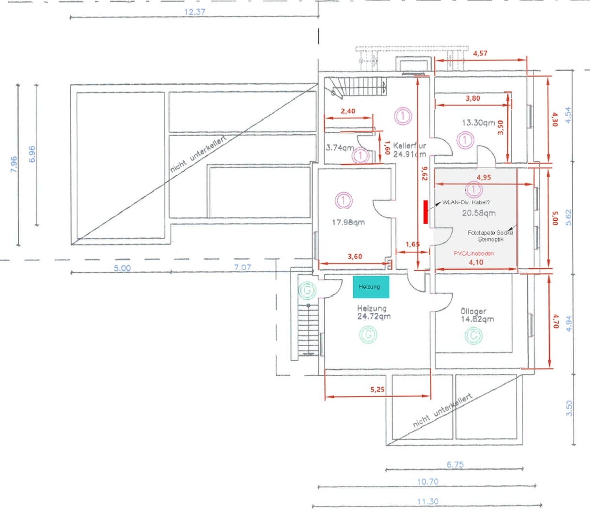
| Keller |
Balkon, Wintergarten, Garten, Keller, Dachterrasse, Vollbad, Duschbad, Einbauküche, Gäste-WC, Kamin, Parkett, Teppichboden, Fliesen
Bemerkungen:
Die Ausstattung verbindet historische Substanz mit modernen Elementen und bietet zahlreiche hochwertige Details:
Stuckverzierungen, Vertäfelungen und klassische Jugendstil-Elemente
Parkettfußböden in mehreren Wohnbereichen
Einbauschränke im Wohn- und Schlafzimmer
Großzügiger Keller mit
Sportraum
Wasch- und Bügelraum
Weinkeller
Mehrzweckraum
Ölzentralheizung, Pumpen, Ausdehnungsgefäß und Wasserspeicher erneuert
Beheizter Wintergarten mit offenem Kamin, hinter der Garage gelegen
Dachterrasse im Obergeschoss
Breite Vorfahrt mit Stellfläche für 4–5 Fahrzeuge
Modernisierungen 2019 und 2023
Bemerkungen:
Die Ausstattung verbindet historische Substanz mit modernen Elementen und bietet zahlreiche hochwertige Details:
Stuckverzierungen, Vertäfelungen und klassische Jugendstil-Elemente
Parkettfußböden in mehreren Wohnbereichen
Einbauschränke im Wohn- und Schlafzimmer
Großzügiger Keller mit
Sportraum
Wasch- und Bügelraum
Weinkeller
Mehrzweckraum
Ölzentralheizung, Pumpen, Ausdehnungsgefäß und Wasserspeicher erneuert
Beheizter Wintergarten mit offenem Kamin, hinter der Garage gelegen
Dachterrasse im Obergeschoss
Breite Vorfahrt mit Stellfläche für 4–5 Fahrzeuge
Modernisierungen 2019 und 2023
Sonstige Informationen
Heizungsart: Zentralheizung
Energieträger: Öl
Verkauf erfolgt privat und provisionsfrei
Gesamtgrundstück: 1.254 m²
Villa: 255 m² Wohnfläche, 7 Zimmer
Separate Wohnung: 74 m², 3 Zimmer, mit lebenslangem Wohnrecht (noch 22 Jahre)
Sondergarten der Wohnung: 153 m², mit natürlichem Sichtschutz
Baujahr 1896, Modernisierungen 2019 und 2023
Vorfahrt für 4–5 PKW
Beheizter Wintergarten mit Kamin, hinter der GarageVerkauf erfolgt privat und provisionsfrei
Gesamtgrundstück: 1.254 m²
Villa: 255 m² Wohnfläche, 7 Zimmer
Separate Wohnung: 74 m², 3 Zimmer, mit lebenslangem Wohnrecht (noch 22 Jahre)
Sondergarten der Wohnung: 153 m², mit natürlichem Sichtschutz
Baujahr 1896, Modernisierungen 2019 und 2023
Vorfahrt für 4–5 PKW
Beheizter Wintergarten mit Kamin, hinter der GarageVerkauf erfolgt privat und provisionsfrei
Gesamtgrundstück: 1.254 m²
Villa: 255 m² Wohnfläche, 7 Zimmer
Separate Wohnung: 74 m², 3 Zimmer, mit lebenslangem Wohnrecht (noch 22 Jahre)
Sondergarten der Wohnung: 153 m², mit natürlichem Sichtschutz
Baujahr 1896, Modernisierungen 2019 und 2023
Vorfahrt für 4–5 PKW
Beheizter Wintergarten mit Kamin, hinter der GarageVerkauf erfolgt privat und provisionsfrei
Gesamtgrundstück: 1.254 m²
Villa: 255 m² Wohnfläche, 7 Zimmer
Separate Wohnung: 74 m², 3 Zimmer, mit lebenslangem Wohnrecht (noch 22 Jahre)
Sondergarten der Wohnung: 153 m², mit natürlichem Sichtschutz
Baujahr 1896, Modernisierungen 2019 und 2023
Vorfahrt für 4–5 PKW
Beheizter Wintergarten mit Kamin, hinter der GarageVerkauf erfolgt privat und provisionsfrei
Gesamtgrundstück: 1.254 m²
Villa: 255 m² Wohnfläche, 7 Zimmer
Separate Wohnung: 74 m², 3 Zimmer, mit lebenslangem Wohnrecht (noch 22 Jahre)
Sondergarten der Wohnung: 153 m², mit natürlichem Sichtschutz
Baujahr 1896, Modernisierungen 2019 und 2023
Vorfahrt für 4–5 PKW
Beheizter Wintergarten mit Kamin, hinter der Garage
Makleranfragen nicht erwünscht. Nach § 7 UWG sind unaufgeforderte Kontaktaufnahmen durch Makler ohne ausdrückliche Einwilligung des Empfängers verboten!
ohne-makler (OM) ist weder Anbieter noch Vermittler der Immobilie. OM betreibt eine Plattform für Immobilieneigentümer, die unter anderem die gleichzeitige Veröffentlichung einzelner Inserate auf mehreren Immobilienportalen ermöglicht. Die Inhalte dieser Inserate werden ausschließlich von Dritten verantwortet. Für die Richtigkeit, Vollständigkeit oder Rechtmäßigkeit der Angaben übernimmt OM keine Haftung. Hinweise auf mögliche Rechtsverstöße können jederzeit gemeldet werden und werden nach Prüfung umgehend bearbeitet.
Energieträger: Öl
Verkauf erfolgt privat und provisionsfrei
Gesamtgrundstück: 1.254 m²
Villa: 255 m² Wohnfläche, 7 Zimmer
Separate Wohnung: 74 m², 3 Zimmer, mit lebenslangem Wohnrecht (noch 22 Jahre)
Sondergarten der Wohnung: 153 m², mit natürlichem Sichtschutz
Baujahr 1896, Modernisierungen 2019 und 2023
Vorfahrt für 4–5 PKW
Beheizter Wintergarten mit Kamin, hinter der GarageVerkauf erfolgt privat und provisionsfrei
Gesamtgrundstück: 1.254 m²
Villa: 255 m² Wohnfläche, 7 Zimmer
Separate Wohnung: 74 m², 3 Zimmer, mit lebenslangem Wohnrecht (noch 22 Jahre)
Sondergarten der Wohnung: 153 m², mit natürlichem Sichtschutz
Baujahr 1896, Modernisierungen 2019 und 2023
Vorfahrt für 4–5 PKW
Beheizter Wintergarten mit Kamin, hinter der GarageVerkauf erfolgt privat und provisionsfrei
Gesamtgrundstück: 1.254 m²
Villa: 255 m² Wohnfläche, 7 Zimmer
Separate Wohnung: 74 m², 3 Zimmer, mit lebenslangem Wohnrecht (noch 22 Jahre)
Sondergarten der Wohnung: 153 m², mit natürlichem Sichtschutz
Baujahr 1896, Modernisierungen 2019 und 2023
Vorfahrt für 4–5 PKW
Beheizter Wintergarten mit Kamin, hinter der GarageVerkauf erfolgt privat und provisionsfrei
Gesamtgrundstück: 1.254 m²
Villa: 255 m² Wohnfläche, 7 Zimmer
Separate Wohnung: 74 m², 3 Zimmer, mit lebenslangem Wohnrecht (noch 22 Jahre)
Sondergarten der Wohnung: 153 m², mit natürlichem Sichtschutz
Baujahr 1896, Modernisierungen 2019 und 2023
Vorfahrt für 4–5 PKW
Beheizter Wintergarten mit Kamin, hinter der GarageVerkauf erfolgt privat und provisionsfrei
Gesamtgrundstück: 1.254 m²
Villa: 255 m² Wohnfläche, 7 Zimmer
Separate Wohnung: 74 m², 3 Zimmer, mit lebenslangem Wohnrecht (noch 22 Jahre)
Sondergarten der Wohnung: 153 m², mit natürlichem Sichtschutz
Baujahr 1896, Modernisierungen 2019 und 2023
Vorfahrt für 4–5 PKW
Beheizter Wintergarten mit Kamin, hinter der Garage
Makleranfragen nicht erwünscht. Nach § 7 UWG sind unaufgeforderte Kontaktaufnahmen durch Makler ohne ausdrückliche Einwilligung des Empfängers verboten!
ohne-makler (OM) ist weder Anbieter noch Vermittler der Immobilie. OM betreibt eine Plattform für Immobilieneigentümer, die unter anderem die gleichzeitige Veröffentlichung einzelner Inserate auf mehreren Immobilienportalen ermöglicht. Die Inhalte dieser Inserate werden ausschließlich von Dritten verantwortet. Für die Richtigkeit, Vollständigkeit oder Rechtmäßigkeit der Angaben übernimmt OM keine Haftung. Hinweise auf mögliche Rechtsverstöße können jederzeit gemeldet werden und werden nach Prüfung umgehend bearbeitet.
Karte wird geladen...
Objektstandort
25348 Glückstadt
- Schleswig-Holstein
Lage & Infrastruktur
Objektstandort
25348 Glückstadt
- Schleswig-Holstein
Die Villa befindet sich in einer der attraktivsten Lagen Glückstadts – ruhig, zentral und direkt am See. Der historische Stadtkern, der Hafen, der Marktplatz sowie sämtliche Einkaufsmöglichkeiten sind fußläufig erreichbar. Ärzte, Apotheken, Schulen und Kindergärten befinden sich ebenfalls in unmittelbarer Nähe.
Weitere Lagevorteile:
400 m bis zum Elbdeich – ideal für Spaziergänge, Jogging oder Fahrradtouren
1:15 h zur Nordsee
1:45 h zur Ostsee
2 h bis Dänemark
HVV-Anbindung: ca. 40 Minuten nach Hamburg mit der Bahn
Die Lage verbindet naturnahes Wohnen, maritime Lebensqualität und hervorragende Erreichbarkeit.
Infrastruktur (im Umkreis von 5 km):
Apotheke, Lebensmittel-Discount, Allgemeinmediziner, Kindergarten, Grundschule, Hauptschule, Realschule, Gymnasium, Öffentliche Verkehrsmittel
Weitere Lagevorteile:
400 m bis zum Elbdeich – ideal für Spaziergänge, Jogging oder Fahrradtouren
1:15 h zur Nordsee
1:45 h zur Ostsee
2 h bis Dänemark
HVV-Anbindung: ca. 40 Minuten nach Hamburg mit der Bahn
Die Lage verbindet naturnahes Wohnen, maritime Lebensqualität und hervorragende Erreichbarkeit.
Infrastruktur (im Umkreis von 5 km):
Apotheke, Lebensmittel-Discount, Allgemeinmediziner, Kindergarten, Grundschule, Hauptschule, Realschule, Gymnasium, Öffentliche Verkehrsmittel
Kontaktanfrage senden
Über den Anbieter
OM PropTech GmbH
Humboldtstraße 25a
21509 Glinde
Kontakt
| Telefon | - |
| Fax | - |
| Website | www.ohne-makler.net |
Ansprechpartner/in
Privat von Mario Kalmuczak
Weitere Angebote des Anbieters
16
Reiheneckhaus für Handwerker direkt in 72348 Rosenfeld ...
Haus
72348 Rosenfeld
Verkaufe mein sanierungsbedürftiges Reiheneckhaus/Reihenhaus direkt in Rosenfeld, ohne Energieausweis (Ofenheizung und teilweise Elektroheizung). Das Objekt (Baujahr frühes 19. Jahrhundert) ist aktuell vermietet. ...
119.000 €
Kaufpreis
130 m²
Wohnfläche
7
Zimmer
16
PROVISIONSFREI: Hochwertig sanierte 3-Zi. Whg. im ...
Wohnung
10961 Berlin
Die einladende 3-Zimmer Wohnung wurde umfassend kernsaniert und befindet sich in ruhiger Lage im Herzen Kreuzbergs, dem Bergmannkiez. Die Wohnung verfügt über folgende Highlights: ✅ Erstbezug nach hochwertiger ...
439.900 €
Kaufpreis
70 m²
Wohnfläche
3
Zimmer
15
Townhouse-Maisonette mit Terrasse & Balkon im Winskiez ...
Wohnung
10405 Berlin
Diese außergewöhnliche Maisonettewohnung verbindet das Wohngefühl eines Townhouses mit der Ruhe eines grünen Innenhofs im Herzen des Prenzlauer Bergs. Die Wohnung wird über einen separaten Eingang im ersten Hinterhof ...
995.000 €
Kaufpreis
116 m²
Wohnfläche
3,5
Zimmer
20
5 Zimmer Wohnung in Berlin Mitte
Wohnung
10179 Berlin
360°-Rundgang: https://www.ohne-makler.net/panorama/434665/ Willkommen in dieser exklusiven 5-Zimmer-Neubauwohnung im 1. Obergeschoss eines modernen Mehrfamilienhauses in bester Lage von Berlin-Mitte. Die Wohnung wurde ...
995.000 €
Kaufpreis
130 m²
Wohnfläche
5
Zimmer
16
Exklusive 130 qm Luxus Wohnung in Bad Marienberg
Wohnung
56470 Bad Marienberg
Diese lichtdurchflutete Wohnung mit großer Dachterrasse bietet Wohnen über den Dächern von Bad Marienberg. Top-Lage + zentrales & ruhiges Wohnen in der Goethestraße. EINZIEHEN & WOHLFÜHLEN Beschreibung: beim einzigen ...
299.000 €
Kaufpreis
130 m²
Wohnfläche
3
Zimmer