Schöne 3,5 Zimmer Wohnung in sehr guter Lage von Stuttgart-Möhringen
330.000 €
Kaufpreis
76 m²
Wohnfläche
3,5
Zimmer
immobilien.de Nr.: 9494538
Objektnummer: 433594
Dateien
Kaufpreis
| Kaufpreis | 330.000 € |
| Hausgeld | 513 € |
| Maklerprovision | keine Provision, courtagefrei |
| Stellplatz Freiplatz Kaufpreis | 10.000 € |
Wohnfläche, Grundstück & Bausubstanz
| Wohnfläche | 76 m² |
| Zimmer | 3,5 |
| Baujahr | 1968 |
| Verfügbar ab | sofort |
| Zustand | Teil Vollrenoviert |
Energie
| Energieausweistyp | Verbrauch |
| Energieeffizienzklasse | E |
| Energieverbrauchkennwert | 131 kWh/(m²*a) |
| Heizungsart | Zentralheizung |
| Energieträger/Befeuerung | Gas |
Beschreibung der Immobilie
Die wichtigsten Fakten in Kürze:
- Top-Lage
- Schön geschnittene 3,5 Zimmer Wohnung
- Frisch renoviert
- Direkt einzugsbereit
- Sehr gute Verkehrsanbindung
- Solide Verwaltung
- Ständige Pflege und Modernisierung
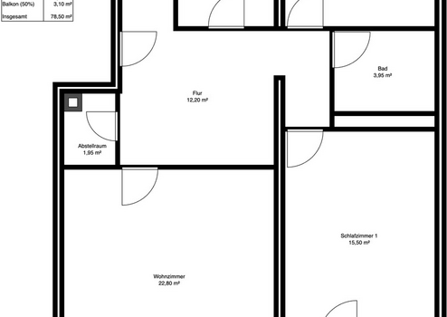
Diese Wohnung liegt im Wohngebiet "Salzäcker" im Osten von Möhringen. Sie befindet sich im 1. OG. Sie bietet ein großes Wohnzimmer, zwei Schlafzimmer, ein Esszimmer, Küche mit Einbauküche. Außerdem verfügt die Wohnung über ein Badezimmer, ein Gäste-WC, einen Abstellraum und einen großen Balkon. Die Aufteilung und Größe de Räume finden sie im angehängten Grundriss. Das Gebäude verfügt über einen neuen Aufzug (Baujahr 2024).
Durch die Lage ist es hell und freundlich in der Wohnung. Wohnzimmer, Schlafzimmer und Balkon sind nach in Südwesten ausgerichtet und bieten einen schönen Ausblick ins Grüne. Der Garten hinter dem Haus gehört ebenfalls zum Gebäude und kann von den Bewohnern genutzt werden.
- Top-Lage
- Schön geschnittene 3,5 Zimmer Wohnung
- Frisch renoviert
- Direkt einzugsbereit
- Sehr gute Verkehrsanbindung
- Solide Verwaltung
- Ständige Pflege und Modernisierung
Diese Wohnung liegt im Wohngebiet "Salzäcker" im Osten von Möhringen. Sie befindet sich im 1. OG. Sie bietet ein großes Wohnzimmer, zwei Schlafzimmer, ein Esszimmer, Küche mit Einbauküche. Außerdem verfügt die Wohnung über ein Badezimmer, ein Gäste-WC, einen Abstellraum und einen großen Balkon. Die Aufteilung und Größe de Räume finden sie im angehängten Grundriss. Das Gebäude verfügt über einen neuen Aufzug (Baujahr 2024).
Durch die Lage ist es hell und freundlich in der Wohnung. Wohnzimmer, Schlafzimmer und Balkon sind nach in Südwesten ausgerichtet und bieten einen schönen Ausblick ins Grüne. Der Garten hinter dem Haus gehört ebenfalls zum Gebäude und kann von den Bewohnern genutzt werden.
Ausstattungsmerkmale
| Anzahl der Etagen im Haus | 9 |
| Inserat befindet sich im Stockwerk | 1 |
| Küche | Einbauküche |
| Bad | 1 |
| Bad | Wanne |
| Boden | Fliesen, Parkett |
| Balkone | 1 |
| Terrassen | 0 |
| Fahrstuhl | |
| Keller |
Balkon, Keller, Fahrstuhl, Vollbad, Einbauküche, Gäste-WC, Parkett, Fliesen
Bemerkungen:
Ausstattung:
Insgesamt sind es (inkl. 50% Balkon) 76 m2 Wohnfläche. Der PKW-Stellplatz ist ein paar Meter vom Hauseingang entfernt. Alle Wohn-und Schlafräume sind mit Parkett-Boden ausgestattet, Küche und Bad mit Fliesen und einer elektrischen Fußbodenheizung..
Die Wohnung verfügt über eine Anlage für Kabelfernsehen (Internet-Fähig). Der Internet-Anschluss kann alternativ dazu über DSL realisiert werden. Ein Hausanschluss für Glasfaser ist ebenfalls vorhanden.
Das Gebäude verfügt über eine Zentralheizung, über die auch Warmwasser zur Verfügung steht.
Im Kellergeschoss befinden sich zwei Kellerräume und ein gemeinschaftlicher Waschraum mit Waschmaschine, Trockner und Wäscheleinen.
Außerdem gibt es einen zentralen Müllplatz für alle Anwohner mit Tonnen für Bio-, Papier-, Restmüll und Gelbe Säcke.
Bemerkungen:
Ausstattung:
Insgesamt sind es (inkl. 50% Balkon) 76 m2 Wohnfläche. Der PKW-Stellplatz ist ein paar Meter vom Hauseingang entfernt. Alle Wohn-und Schlafräume sind mit Parkett-Boden ausgestattet, Küche und Bad mit Fliesen und einer elektrischen Fußbodenheizung..
Die Wohnung verfügt über eine Anlage für Kabelfernsehen (Internet-Fähig). Der Internet-Anschluss kann alternativ dazu über DSL realisiert werden. Ein Hausanschluss für Glasfaser ist ebenfalls vorhanden.
Das Gebäude verfügt über eine Zentralheizung, über die auch Warmwasser zur Verfügung steht.
Im Kellergeschoss befinden sich zwei Kellerräume und ein gemeinschaftlicher Waschraum mit Waschmaschine, Trockner und Wäscheleinen.
Außerdem gibt es einen zentralen Müllplatz für alle Anwohner mit Tonnen für Bio-, Papier-, Restmüll und Gelbe Säcke.
Sonstige Informationen
Heizungsart: Zentralheizung
Energieträger: Gas
Zum Thema ständige Pflege und Modernisierung:
- Seit letztem Jahr gibt es den Beschluss Balkonkraftwerke zu betreiben.
- Seit diesem Jahr wird die Tiefgarage samt Parkdeck saniert.
Makleranfragen nicht erwünscht. Nach § 7 UWG sind unaufgeforderte Kontaktaufnahmen durch Makler ohne ausdrückliche Einwilligung des Empfängers verboten!
ohne-makler (OM) ist weder Anbieter noch Vermittler der Immobilie. OM betreibt eine Plattform für Immobilieneigentümer, die unter anderem die gleichzeitige Veröffentlichung einzelner Inserate auf mehreren Immobilienportalen ermöglicht. Die Inhalte dieser Inserate werden ausschließlich von Dritten verantwortet. Für die Richtigkeit, Vollständigkeit oder Rechtmäßigkeit der Angaben übernimmt OM keine Haftung. Hinweise auf mögliche Rechtsverstöße können jederzeit gemeldet werden und werden nach Prüfung umgehend bearbeitet.
Energieträger: Gas
Zum Thema ständige Pflege und Modernisierung:
- Seit letztem Jahr gibt es den Beschluss Balkonkraftwerke zu betreiben.
- Seit diesem Jahr wird die Tiefgarage samt Parkdeck saniert.
Makleranfragen nicht erwünscht. Nach § 7 UWG sind unaufgeforderte Kontaktaufnahmen durch Makler ohne ausdrückliche Einwilligung des Empfängers verboten!
ohne-makler (OM) ist weder Anbieter noch Vermittler der Immobilie. OM betreibt eine Plattform für Immobilieneigentümer, die unter anderem die gleichzeitige Veröffentlichung einzelner Inserate auf mehreren Immobilienportalen ermöglicht. Die Inhalte dieser Inserate werden ausschließlich von Dritten verantwortet. Für die Richtigkeit, Vollständigkeit oder Rechtmäßigkeit der Angaben übernimmt OM keine Haftung. Hinweise auf mögliche Rechtsverstöße können jederzeit gemeldet werden und werden nach Prüfung umgehend bearbeitet.
Karte wird geladen...
Objektstandort
Widmaierstr. 150
70567 Stuttgart
- Baden-Württemberg
Lage & Infrastruktur
Objektstandort
Widmaierstr. 150
70567 Stuttgart
- Baden-Württemberg
Von der Lage her könnte die Wohnung kaum besser liegen. Man kommt sowohl mit dem Auto als auch mit den öffentlichen Verkehrsmitteln sehr gut und schnell zum Ziel. Die U-Bahn-Station "Salzäcker/SI-Centrum" ist ca. 250 m entfernt. Von dort aus ist man in ca. 20 Minuten in Zentrum Stuttgarts oder am Flughafen bzw. der Stuttgarter Messe. Innerhalb von 5 – 10 Minuten ist man mit dem Auto auf der B27 Richtung Stuttgart-Zentrum/Tübingen, oder auf der A8 Richtung München/Karlsruhe.
Was ist in Möhringen geboten: Viele Firmen sind fußläufig oder mit den öffentlichen Verkehrsmitteln sehr gut erreichbar. Das SI-Centrum - mit zwei Musical-Theatern, einem Kino und mehreren Restaurants - liegt direkt an der Haltestation. Geschäfte des täglichen Bedarfs (Bäcker, Biomarkt, Supermarkt und Postfiliale) sind ebenfalls fußläufig erreichbar. Gleichzeitig hat der Ort rund um die Martinskirche auch einen dörflichen Charakter. Es gibt einen Wochenmarkt und ein paar Bauernhöfe, bei denen man auch direkt einkaufen kann.
Verkehrstechnisch ist die Lage optimal, gleichzeitig ist es auch ruhig. In wenigen Schritten ist man bei den Schrebergärten. Etwas weiter entfernt ist ein Waldgebiet am Tal der Körsch entlang. Auch mit dem Fahrrad ist man schnell in der Natur oder in anderen nahegelegenen Ortschaften.
Infrastruktur (im Umkreis von 5 km):
Apotheke, Lebensmittel-Discount, Allgemeinmediziner, Kindergarten, Grundschule, Gymnasium, Öffentliche Verkehrsmittel
Was ist in Möhringen geboten: Viele Firmen sind fußläufig oder mit den öffentlichen Verkehrsmitteln sehr gut erreichbar. Das SI-Centrum - mit zwei Musical-Theatern, einem Kino und mehreren Restaurants - liegt direkt an der Haltestation. Geschäfte des täglichen Bedarfs (Bäcker, Biomarkt, Supermarkt und Postfiliale) sind ebenfalls fußläufig erreichbar. Gleichzeitig hat der Ort rund um die Martinskirche auch einen dörflichen Charakter. Es gibt einen Wochenmarkt und ein paar Bauernhöfe, bei denen man auch direkt einkaufen kann.
Verkehrstechnisch ist die Lage optimal, gleichzeitig ist es auch ruhig. In wenigen Schritten ist man bei den Schrebergärten. Etwas weiter entfernt ist ein Waldgebiet am Tal der Körsch entlang. Auch mit dem Fahrrad ist man schnell in der Natur oder in anderen nahegelegenen Ortschaften.
Infrastruktur (im Umkreis von 5 km):
Apotheke, Lebensmittel-Discount, Allgemeinmediziner, Kindergarten, Grundschule, Gymnasium, Öffentliche Verkehrsmittel
Kontaktanfrage senden
Über den Anbieter
OM PropTech GmbH
Humboldtstraße 25a
21509 Glinde
Kontakt
| Telefon | - |
| Fax | - |
| Website | www.ohne-makler.net |
Ansprechpartner/in
Privat von Dorde Knezevic
Weitere Angebote des Anbieters
15
Gepflegte Doppelhaushälfte mit fünf Zimmern und ...
Haus
67098 Bad Dürkheim
Ab dem 01.04.2026 steht diese einladende und sehr gepflegte Doppelhaushälfte im beliebten Bad Dürkheimer Ortsteil Grethen zur Vermietung. Die Immobilie erstreckt sich über zwei Etagen und bietet eine ideale Kombination ...
1.500 €
Kaltmiete (netto)
170 m²
Wohnfläche
5
Zimmer
17
Helle Etagenwohnung sucht neuen Mieter.
Wohnung
10367 Berlin
Diese ansprechend geschnittene 2-Zimmer-Wohnung im 1. Obergeschoss überzeugt durch ihre moderne Ausstattung, eine durchdachte Raumaufteilung sowie ein angenehmes Wohnambiente. Sie eignet sich ideal für Singles oder ...
1.290 €
Kaltmiete (netto)
72,77 m²
Wohnfläche
2
Zimmer
15
3ZKB Nähe Klinikum Kassel und Uni Kassel
Wohnung
34125 Kassel
Diese wunderschöne 3-Zimmer-Wohnung ist ein Ort zum Ankommen und Wohlfühlen. Die Räume sind großzügig geschnitten und dank der großen Fenster herrlich hell. Die Wohnung eignet sich ideal für Paare, kleine Familien, ...
960 €
Kaltmiete (netto)
77 m²
Wohnfläche
3
Zimmer
14
Büro / Praxis / Einzelhandel Mannheim Käfertal/Süd Im ...
Büro / Praxen
68309 Mannheim
Zum Verkauf steht eine vielseitig nutzbare Gewerbeeinheit im Erdgeschoss eines Wohn- und Geschäftshauses in Mannheim-Käfertal Süd. Objektdaten: •Baujahr: 1996 •Nutzfläche: ca. 32 m² •Letzte Renovierung: 2020 •Heller ...
167.000 €
Kaufpreis
32 m²
Gesamtfläche
20
3 Eigentumswohnungen im Dreifamilienhaus in ...
Wohnung
45663 Recklinghausen
FREIESLEBEN-IMMOBILIEN präsentiert Ihnen diese drei vielseitig nutzbaren Eigentumswohnungen in einem Dreifamilienhaus in gepflegter Umgebung von Recklinghausen Süd / König-Ludwig. Die Wohnungen werden als Paket für den ...
299.900 €
Kaufpreis
220 m²
Wohnfläche
6
Zimmer