3 Eigentumswohnungen im Dreifamilienhaus in Recklinghausen provisionsfrei zu verkaufen!
299.900 €
Kaufpreis
220 m²
Wohnfläche
6
Zimmer
immobilien.de Nr.: 9495434
Objektnummer: 433933
Kaufpreis
| Kaufpreis | 299.900 € |
| Maklerprovision | keine Provision, courtagefrei |
Wohnfläche, Grundstück & Bausubstanz
| Wohnfläche | 220 m² |
| Zimmer | 6 |
| Baujahr | 1900 |
| Verfügbar ab | nach Absprache |
| Zustand | Gepflegt |
Energie
| Energieausweistyp | Bedarfsausweis |
| Energieeffizienzklasse | D |
| Endenergiebedarf | 128 |
| Heizungsart | Zentralheizung |
| Energieträger/Befeuerung | Gas |
Beschreibung der Immobilie
FREIESLEBEN-IMMOBILIEN präsentiert Ihnen diese drei vielseitig nutzbaren Eigentumswohnungen in einem Dreifamilienhaus in gepflegter Umgebung von Recklinghausen Süd / König-Ludwig. Die Wohnungen werden als Paket für den angegebenen Gesamtpreis angeboten.
Das Dreifamilienhaus wurde ca. im Jahr 1900 in massiver Bauweise und voll unterkellert auf einem ca. 360m² großen Eigengrundstück errichtet.
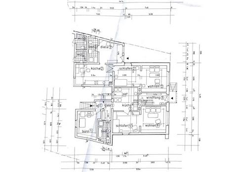
Es bietet ca. 220m² Wohnfläche, aufgeteilt auf zwei Wohnungen im Erdgeschoss mit ca. 63m² bzw. 60m² Wohnfläche sowie eine Wohnung im Dachgeschoss mit ca. 97m² Wohnfläche.
Ein Teilungsplan und für jede der Wohnungen ein separates Grundbuchblatt sind vorhanden. Nach Erwerb können die drei Wohnungen selbst genutzt, vermietet oder auch einzeln wieder verkauft werden.
Die größere Wohnung mit ca. 63m2 im Erdgeschoss des Dreifamilienhauses bietet ein Wohnzimmer, ein Schlafzimmer, eine ca. 12m² große Küche, ein Büro, ein Duschbad, eine Diele und einen Windfang.
Die kleinere Wohnung mit ca. 60m2 im Erdgeschoss bietet ein Wohnzimmer, ein Schlafzimmer, eine ca. 16m² große Küche, eine ca. 11m² große Diele und ein Tageslicht-Badezimmer.
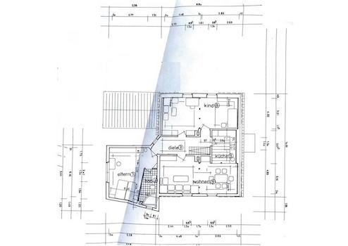
Die Wohnung im Dachgeschoss bietet ca. 97m² Wohnfläche, verteilt auf ein ca. 27m² großes Wohnzimmer, ein ca. 21m² großes Schlafzimmer, ein ca. 23m² großes Kinderzimmer, eine Küche, ein Tageslicht-Badezimmer mit stylischer Eckbadewanne, eine großzügige Diele und einen Windfang.
Alle drei Wohnungen sind über das Treppenhaus begehbar und haben separate Eingänge.
Im Kellergeschoss des Hauses befinden sich ein Waschkeller mit Heizanlage und Hausanschlüssen, ein Trockenraum, für jede der Wohnungen ein separater Kellerraum, ein Durchgangsraum sowie ein Flur.
Für die PKW steht pro Wohnung ein Stellplatz zur Verfügung.
Beheizt wird das Haus durch eine Gaszentralheizung aus dem Jahr 2015.
Zurzeit stehen alle Wohnungen leer.
Sie möchten sofort besichtigen?
Dann senden Sie uns bitte eine Anfrage über das Kontaktformular, wir kontaktieren Sie umgehend.
Schriftliche Anfragen werden deutlich schneller bearbeitet als telefonische Anfragen!
PROVISIONSFREI FÜR DEN KÄUFER
Das Dreifamilienhaus wurde ca. im Jahr 1900 in massiver Bauweise und voll unterkellert auf einem ca. 360m² großen Eigengrundstück errichtet.
Es bietet ca. 220m² Wohnfläche, aufgeteilt auf zwei Wohnungen im Erdgeschoss mit ca. 63m² bzw. 60m² Wohnfläche sowie eine Wohnung im Dachgeschoss mit ca. 97m² Wohnfläche.
Ein Teilungsplan und für jede der Wohnungen ein separates Grundbuchblatt sind vorhanden. Nach Erwerb können die drei Wohnungen selbst genutzt, vermietet oder auch einzeln wieder verkauft werden.
Die größere Wohnung mit ca. 63m2 im Erdgeschoss des Dreifamilienhauses bietet ein Wohnzimmer, ein Schlafzimmer, eine ca. 12m² große Küche, ein Büro, ein Duschbad, eine Diele und einen Windfang.
Die kleinere Wohnung mit ca. 60m2 im Erdgeschoss bietet ein Wohnzimmer, ein Schlafzimmer, eine ca. 16m² große Küche, eine ca. 11m² große Diele und ein Tageslicht-Badezimmer.
Die Wohnung im Dachgeschoss bietet ca. 97m² Wohnfläche, verteilt auf ein ca. 27m² großes Wohnzimmer, ein ca. 21m² großes Schlafzimmer, ein ca. 23m² großes Kinderzimmer, eine Küche, ein Tageslicht-Badezimmer mit stylischer Eckbadewanne, eine großzügige Diele und einen Windfang.
Alle drei Wohnungen sind über das Treppenhaus begehbar und haben separate Eingänge.
Im Kellergeschoss des Hauses befinden sich ein Waschkeller mit Heizanlage und Hausanschlüssen, ein Trockenraum, für jede der Wohnungen ein separater Kellerraum, ein Durchgangsraum sowie ein Flur.
Für die PKW steht pro Wohnung ein Stellplatz zur Verfügung.
Beheizt wird das Haus durch eine Gaszentralheizung aus dem Jahr 2015.
Zurzeit stehen alle Wohnungen leer.
Sie möchten sofort besichtigen?
Dann senden Sie uns bitte eine Anfrage über das Kontaktformular, wir kontaktieren Sie umgehend.
Schriftliche Anfragen werden deutlich schneller bearbeitet als telefonische Anfragen!
PROVISIONSFREI FÜR DEN KÄUFER
Ausstattungsmerkmale
| Anzahl der Etagen im Haus | 2 |
| Inserat befindet sich im Stockwerk | 0 |
| Küche | Einbauküche |
| Bad | 3 |
| Bad | Dusche, Wanne |
| Boden | Fliesen, Parkett, Laminat |
| Keller |
Keller, Vollbad, Duschbad, Einbauküche, Parkett, Laminat, Fliesen
Bemerkungen:
- 3 vielseitig nutzbare Eigentumswohnungen in einem Dreifamilienhaus
- Gesamt ca. 220m² Wohnfläche
- Baujahr ca. 1900
- Massive Bauweise
- Kellertäume
- Separater Eingang für jede Wohnung
- 3 PKW-Stellplätze
Bemerkungen:
- 3 vielseitig nutzbare Eigentumswohnungen in einem Dreifamilienhaus
- Gesamt ca. 220m² Wohnfläche
- Baujahr ca. 1900
- Massive Bauweise
- Kellertäume
- Separater Eingang für jede Wohnung
- 3 PKW-Stellplätze
Sonstige Informationen
Heizungsart: Zentralheizung
Energieträger: Gas
Dies ist ein freibleibendes Angebot der
FREIESLEBEN GmbH,
Steinstraße 14
45657 Recklinghausen
Tel.: 02361 - 90 61 030
Sie können uns MONTAG bis SONNTAG
von 7:00 Uhr bis 22:00 Uhr telefonisch erreichen. Am Wochenende bieten wir Ihnen zusätzlich unseren Service für Immobilienbewertungen, Objektbesichtigungen und das Persönliche-Kennenlernen.
Hinsichtlich des Objektes sind wir auf die Auskünfte der Eigentümer und Behörden angewiesen. Für die Richtigkeit und Vollständigkeit der Angaben kann keine Haftung übernommen werden. Darüber hinaus kann für das Objekt keine Gewähr übernommen und für die Liquidität der Vertragspartner nicht gehaftet werden.
Sie möchten Ihre Immobilie auch professionell vermarkten lassen?
- Nutzen Sie unseren kostenfreien Service und lassen den aktuellen Wert Ihrer Immobilie durch einen unserer Immobilienspezialisten schätzen.
- Optimieren Sie die Verkaufschancen Ihrer Immobilie, indem wir einen speziell auf Ihr Objekt abgestimmten Vermarktungsplan erstellen.
- Nutzen Sie unser hervorragendes, bundesweites Netzwerk um Ihnen Kaufinteressenten zeitnah zuzuführen. 100te Interessenten warten auf Sie!
Rufen Sie uns an, wir freuen uns auf Sie!
Zentrale Münsterland: Tel.: 0251 - 39 444 998
Zentrale Ruhrgebiet: Tel.: 0234 - 92 56 98 00
Makleranfragen nicht erwünscht. Nach § 7 UWG sind unaufgeforderte Kontaktaufnahmen durch Makler ohne ausdrückliche Einwilligung des Empfängers verboten!
ohne-makler (OM) ist weder Anbieter noch Vermittler der Immobilie. OM betreibt eine Plattform für Immobilieneigentümer, die unter anderem die gleichzeitige Veröffentlichung einzelner Inserate auf mehreren Immobilienportalen ermöglicht. Die Inhalte dieser Inserate werden ausschließlich von Dritten verantwortet. Für die Richtigkeit, Vollständigkeit oder Rechtmäßigkeit der Angaben übernimmt OM keine Haftung. Hinweise auf mögliche Rechtsverstöße können jederzeit gemeldet werden und werden nach Prüfung umgehend bearbeitet.
Energieträger: Gas
Dies ist ein freibleibendes Angebot der
FREIESLEBEN GmbH,
Steinstraße 14
45657 Recklinghausen
Tel.: 02361 - 90 61 030
Sie können uns MONTAG bis SONNTAG
von 7:00 Uhr bis 22:00 Uhr telefonisch erreichen. Am Wochenende bieten wir Ihnen zusätzlich unseren Service für Immobilienbewertungen, Objektbesichtigungen und das Persönliche-Kennenlernen.
Hinsichtlich des Objektes sind wir auf die Auskünfte der Eigentümer und Behörden angewiesen. Für die Richtigkeit und Vollständigkeit der Angaben kann keine Haftung übernommen werden. Darüber hinaus kann für das Objekt keine Gewähr übernommen und für die Liquidität der Vertragspartner nicht gehaftet werden.
Sie möchten Ihre Immobilie auch professionell vermarkten lassen?
- Nutzen Sie unseren kostenfreien Service und lassen den aktuellen Wert Ihrer Immobilie durch einen unserer Immobilienspezialisten schätzen.
- Optimieren Sie die Verkaufschancen Ihrer Immobilie, indem wir einen speziell auf Ihr Objekt abgestimmten Vermarktungsplan erstellen.
- Nutzen Sie unser hervorragendes, bundesweites Netzwerk um Ihnen Kaufinteressenten zeitnah zuzuführen. 100te Interessenten warten auf Sie!
Rufen Sie uns an, wir freuen uns auf Sie!
Zentrale Münsterland: Tel.: 0251 - 39 444 998
Zentrale Ruhrgebiet: Tel.: 0234 - 92 56 98 00
Makleranfragen nicht erwünscht. Nach § 7 UWG sind unaufgeforderte Kontaktaufnahmen durch Makler ohne ausdrückliche Einwilligung des Empfängers verboten!
ohne-makler (OM) ist weder Anbieter noch Vermittler der Immobilie. OM betreibt eine Plattform für Immobilieneigentümer, die unter anderem die gleichzeitige Veröffentlichung einzelner Inserate auf mehreren Immobilienportalen ermöglicht. Die Inhalte dieser Inserate werden ausschließlich von Dritten verantwortet. Für die Richtigkeit, Vollständigkeit oder Rechtmäßigkeit der Angaben übernimmt OM keine Haftung. Hinweise auf mögliche Rechtsverstöße können jederzeit gemeldet werden und werden nach Prüfung umgehend bearbeitet.
Karte wird geladen...
Objektstandort
45663 Recklinghausen
- Nordrhein-Westfalen
Lage & Infrastruktur
Objektstandort
45663 Recklinghausen
- Nordrhein-Westfalen
Die attraktiven Eigentumswohnungen befinden sich in einem gepflegten Mischgebiet des beliebten Recklinghausener Stadtteils König-Ludwig.
Schulen, Kindergärten, Ärzte, Apotheken und Einkaufsmöglichkeiten für den täglichen Bedarf sind in der näheren Umgebung vorhanden.
Das fußläufig erreichbare Südbad (Frei-/ und Hallenbad an der Pappelallee) sowie Spazierwege an der Emscher laden zu Freizeitaktivitäten ein.
Bushaltestellen des gut ausgebauten Netzes des ÖPNV sind ebenfalls zu Fuß erreichbar.
Mit dem PKW erreicht man die Innenstadt von Recklinghausen in ca. 15 Minuten. Über die nahe gelegenen Autobahnen A43 und A2 ist man gut an die Städte des Ruhrgebiets und des Münsterlandes angebunden.
Infrastruktur (im Umkreis von 5 km):
Apotheke, Lebensmittel-Discount, Allgemeinmediziner, Kindergarten, Grundschule, Hauptschule, Realschule, Gymnasium, Gesamtschule, Öffentliche Verkehrsmittel
Schulen, Kindergärten, Ärzte, Apotheken und Einkaufsmöglichkeiten für den täglichen Bedarf sind in der näheren Umgebung vorhanden.
Das fußläufig erreichbare Südbad (Frei-/ und Hallenbad an der Pappelallee) sowie Spazierwege an der Emscher laden zu Freizeitaktivitäten ein.
Bushaltestellen des gut ausgebauten Netzes des ÖPNV sind ebenfalls zu Fuß erreichbar.
Mit dem PKW erreicht man die Innenstadt von Recklinghausen in ca. 15 Minuten. Über die nahe gelegenen Autobahnen A43 und A2 ist man gut an die Städte des Ruhrgebiets und des Münsterlandes angebunden.
Infrastruktur (im Umkreis von 5 km):
Apotheke, Lebensmittel-Discount, Allgemeinmediziner, Kindergarten, Grundschule, Hauptschule, Realschule, Gymnasium, Gesamtschule, Öffentliche Verkehrsmittel
Kontaktanfrage senden
Über den Anbieter
OM PropTech GmbH
Humboldtstraße 25a
21509 Glinde
Kontakt
| Telefon | - |
| Fax | - |
| Website | www.ohne-makler.net |
Ansprechpartner/in
Angebot von Joachim Freiesleben - Gerfried Gogolin
Weitere Angebote des Anbieters
38
Modernes, helles und wunderbar vielseitiges Haus in ...
Haus
78147 Vöhrenbach
Nachdem wir beruflich bedingt umgezogen sind, bieten wir unser attraktives und gepflegtes Haus zum Kauf an. Direkt von privat, ohne weitere Maklergebühren. Ein großer Pluspunkt der Immobilie ist seine flexible ...
550.000 €
Kaufpreis
185 m²
Wohnfläche
8,5
Zimmer
12
Kauf ohne Eigenkapital - Sofort einziehen - Gemütliche ...
Wohnung
45479 Mulheim an der Ruhr
Die Wohnung ist Förderfähig, kauf ohne Eigenkapital bei entsprechender Bonität möglich. Altbaucharme trifft Designer-Modernisierung in Speldorf/Broich Einziehen. Ankommen. Wohlfühlen. Diese außergewöhnlich stilvolle 3 ...
410.000 €
Kaufpreis
105,9 m²
Wohnfläche
3,5
Zimmer
13
Zentrungsnahe Wohnung in Moordorf
Wohnung
26624 Südbrookmerland
Nutzen Sie alle Vorteile, die eine zentrumsnahe Wohnung zu bieten hat und genießen Sie die Ruhe in zweiter Reihe zu wohnen - mitten in Moordorf. Die lichtdurchflutete Wohnung im Dachgeschoss aus dem Jahr 2019 ist im ...
610 €
Kaltmiete (netto)
70 m²
Wohnfläche
3
Zimmer
15
Modernes Landhaus - bezugsfertig - 5 Zimmer, 2 Bäder, ...
Haus
03249 03249 Münchhausen
MODERNES EINFAMILIENHAUS MIT STIL UND KOMFORT – NEUBAU AUF GROSSZÜGIGEM GRUNDSTÜCK IN MÜNCHHAUSEN BEI FINSTERWALDE Willkommen in Ihrem neuen Zuhause! Dieses moderne, massiv gebaute Einfamilienhaus vom renommierten ...
389.900 €
Kaufpreis
151 m²
Wohnfläche
5
Zimmer
2
2 Mehrfamilienhäuser mit Gewerbeeinheit Kernsaniert in ...
Haus
90439 Nürnberg
**Gesamtmieteinnahmen: 11.920 € / Monat ≈ 143.040 € p. a. Netto-Kaltmiete** **Gesamtwohn- und Nutzfläche: ca. 768 m²** **Grundstücksfläche: ca. 584 m²** Rendite 5,32 % Kaufpreisfaktor 18,8x Kontakt: Nikolaos ...
2.690.000 €
Kaufpreis
768 m²
Wohnfläche
29
Zimmer