Planung und Finanzierung - alles aus einer Hand
474.850 €
Kaufpreis
142,92 m²
Wohnfläche
4
Zimmer
immobilien.de Nr.: 9493788
Objektnummer: 4319
Kaufpreis
| Kaufpreis | 474.850 € |
Wohnfläche, Grundstück & Bausubstanz
| Wohnfläche | 142,92 m² |
| Grundstücksfläche | 650 m² |
| Zimmer | 4 |
| Verfügbar ab | keine Angabe |
Beschreibung der Immobilie
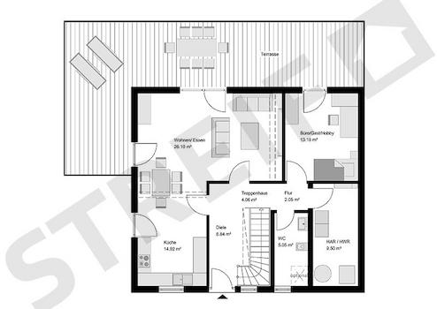
Mehr Raum für Ihre Ideen - modernes Familyhaus mit flexibler Planung und zusätzlichem Gästezimmer
Willkommen in Ihrem neuen Zuhause, das Ihnen auf jeder Ebene mehr Möglichkeiten eröffnet!
Das Family XL von STREIF begeistert auf großzügigen ca. 143 m² Netto-Raumfläche mit einem flexiblen Wohnkonzept, das sich perfekt an Ihre individuellen Bedürfnisse anpasst.
Ein besonderes Highlight: Sie wählen aus drei verschiedenen Treppenvarianten - gradläufig, viertelgewendelt oder doppelt gewendelt.
Jede Treppenart schafft ein eigenes Raumgefühl und ermöglicht ein individuelles Wohnkonzept, das genau zu Ihrem Lebensstil passt.
Im Erdgeschoss öffnet sich ein großzügiger, lichtdurchfluteter Wohn-/Ess- und Küchenbereich, der mit bodentiefen Fenstern zur Terrassenseite ein offenes, freundliches Ambiente schafft.
Ein Gäste-WC ist ebenfalls integriert.
Auf Wunsch können Sie im Erdgeschoss zusätzlich ein Gästezimmer oder ein komfortables Home-Office einplanen - perfekt für berufliche Flexibilität oder Besuch.
Im Obergeschoss bietet das Family XL weitere Anpassungsoptionen:
Je nach Wunsch gestalten Sie zwei oder drei Schlafzimmer, ergänzt um großzügige Zuschnitte für Ankleide, Büro oder individuelle Bedürfnisse.
Zur hochwertigen Ausstattung gehört eine energieeffiziente Haustechnik für nachhaltiges, modernes Wohnen.
Ihre Vorteile auf einen Blick:
Ca. 143 m² großzügige Netto-Raumfläche
Flexible Raumkonzepte durch Auswahl zwischen drei Treppenvarianten
Optional zusätzliches Gästezimmer oder Büro im Erdgeschoss möglich
Großer, lichtdurchfluteter Wohn-/Ess-/Küchenbereich
Bodentiefe Fenster zur Terrassenseite
Zwei oder drei Schlafzimmer im Obergeschoss möglich
Gäste-WC im Erdgeschoss
Energieeffiziente Haustechnik für nachhaltiges Bauen
Mehr Raum, mehr Möglichkeiten - gestalten Sie Ihr Zuhause individuell mit dem STREIF Family XL.
📍 Musterhausstraße 147, 56218 Mülheim-Kärlich
🕚 Mi.-So. 11:00-17:00 Uhr oder nach Vereinbarung
📞 0171 222 52 55 - Markus Stemmler
Willkommen in Ihrem neuen Zuhause, das Ihnen auf jeder Ebene mehr Möglichkeiten eröffnet!
Das Family XL von STREIF begeistert auf großzügigen ca. 143 m² Netto-Raumfläche mit einem flexiblen Wohnkonzept, das sich perfekt an Ihre individuellen Bedürfnisse anpasst.
Ein besonderes Highlight: Sie wählen aus drei verschiedenen Treppenvarianten - gradläufig, viertelgewendelt oder doppelt gewendelt.
Jede Treppenart schafft ein eigenes Raumgefühl und ermöglicht ein individuelles Wohnkonzept, das genau zu Ihrem Lebensstil passt.
Im Erdgeschoss öffnet sich ein großzügiger, lichtdurchfluteter Wohn-/Ess- und Küchenbereich, der mit bodentiefen Fenstern zur Terrassenseite ein offenes, freundliches Ambiente schafft.
Ein Gäste-WC ist ebenfalls integriert.
Auf Wunsch können Sie im Erdgeschoss zusätzlich ein Gästezimmer oder ein komfortables Home-Office einplanen - perfekt für berufliche Flexibilität oder Besuch.
Im Obergeschoss bietet das Family XL weitere Anpassungsoptionen:
Je nach Wunsch gestalten Sie zwei oder drei Schlafzimmer, ergänzt um großzügige Zuschnitte für Ankleide, Büro oder individuelle Bedürfnisse.
Zur hochwertigen Ausstattung gehört eine energieeffiziente Haustechnik für nachhaltiges, modernes Wohnen.
Ihre Vorteile auf einen Blick:
Ca. 143 m² großzügige Netto-Raumfläche
Flexible Raumkonzepte durch Auswahl zwischen drei Treppenvarianten
Optional zusätzliches Gästezimmer oder Büro im Erdgeschoss möglich
Großer, lichtdurchfluteter Wohn-/Ess-/Küchenbereich
Bodentiefe Fenster zur Terrassenseite
Zwei oder drei Schlafzimmer im Obergeschoss möglich
Gäste-WC im Erdgeschoss
Energieeffiziente Haustechnik für nachhaltiges Bauen
Mehr Raum, mehr Möglichkeiten - gestalten Sie Ihr Zuhause individuell mit dem STREIF Family XL.
📍 Musterhausstraße 147, 56218 Mülheim-Kärlich
🕚 Mi.-So. 11:00-17:00 Uhr oder nach Vereinbarung
📞 0171 222 52 55 - Markus Stemmler
Ausstattungsmerkmale
| Anzahl der Etagen im Haus | 2 |
| Bad | 1 |
| Bad | Dusche |
Das Streif City Haus wird im Standard KFW 40 PLUS ausgeführt. Innenausstattung aus dem STREIF-Programm in der Ausbaustufe FF+ inklusive Fundamentplatte.
■ Rohbau (geschlossene Gebäudehülle) mit Fenstern, Haustür1 inkl. Dacheindeckung
■ Außenfassade inkl. Außenputz, vor Ort komplett fertiggestellt
■ Komplette Blechner-/Spenglerarbeiten
■ lnnen-/Außenwände wärme- und schallgedämmt und mit Rigidur Gipsfaserplatten geschlossen
■ Geschosstreppe (außer Bungalow)
■ Decken wärme- und schallgedämmt und mit Gipskartonbau platten geschlossen
■ Elektroinstallation, einschließlich erforderlichem Zählerschrank und Inbetriebnahme
■ Heizungsanlage inkl. Inbetriebnahme
■ Innenfensterbänke Kunststeinbänke (Gussmarmorbänke) inkl. Einbau
■ Estrich
■ Sanitärräume mit Wand- und Bodenfliesen
■ Sanitärräume mit Sanitärobjekten
■ 6,23 kWP Photovoltaikanlage und 7,7 kWh Batteriespeicher
Die Innentüren sowie Wand-, Decken- und Bodenbeläge der übrigen Räume sind Eigenleistungen des Bauherren.
STREIF Frischluft-Wärmepumpen-Technologie - inklusive
- Heizen mit frischer Außenluft
- Kein Gasanschluss, kein Öl- oder Pelletlagerraum
- Keine Heizkörper
- Wärmetauscher mit bis zu 85% Wärmerückgewinnung
Die dargestellten Bilder können Sonderausstattungen beinhalten, die nicht im Preis enthalten sind!
zzgl. Ortüblicher Baunebenkosten
Selbstverständlich können wir Ihr Haus auch schlüsselfertig / bezugsfertig errichten.
■ Bodenbeläge, Sockel leisten verlegt
■ Maler- und Tapezierarbeiten
■ Innentüren inkl. Einbau
■ Rohbau (geschlossene Gebäudehülle) mit Fenstern, Haustür1 inkl. Dacheindeckung
■ Außenfassade inkl. Außenputz, vor Ort komplett fertiggestellt
■ Komplette Blechner-/Spenglerarbeiten
■ lnnen-/Außenwände wärme- und schallgedämmt und mit Rigidur Gipsfaserplatten geschlossen
■ Geschosstreppe (außer Bungalow)
■ Decken wärme- und schallgedämmt und mit Gipskartonbau platten geschlossen
■ Elektroinstallation, einschließlich erforderlichem Zählerschrank und Inbetriebnahme
■ Heizungsanlage inkl. Inbetriebnahme
■ Innenfensterbänke Kunststeinbänke (Gussmarmorbänke) inkl. Einbau
■ Estrich
■ Sanitärräume mit Wand- und Bodenfliesen
■ Sanitärräume mit Sanitärobjekten
■ 6,23 kWP Photovoltaikanlage und 7,7 kWh Batteriespeicher
Die Innentüren sowie Wand-, Decken- und Bodenbeläge der übrigen Räume sind Eigenleistungen des Bauherren.
STREIF Frischluft-Wärmepumpen-Technologie - inklusive
- Heizen mit frischer Außenluft
- Kein Gasanschluss, kein Öl- oder Pelletlagerraum
- Keine Heizkörper
- Wärmetauscher mit bis zu 85% Wärmerückgewinnung
Die dargestellten Bilder können Sonderausstattungen beinhalten, die nicht im Preis enthalten sind!
zzgl. Ortüblicher Baunebenkosten
Selbstverständlich können wir Ihr Haus auch schlüsselfertig / bezugsfertig errichten.
■ Bodenbeläge, Sockel leisten verlegt
■ Maler- und Tapezierarbeiten
■ Innentüren inkl. Einbau
Sonstige Informationen
Mit STREIF haben Sie die Möglichkeit, Ihr Traumhaus in verschiedenen Ausbaustufen zu realisieren. Dieses Objekt umfasst die Ausbaustufe 3 - FastFertigPlus: Hierbei übernehmen Sie Eigenleistungen in Form einer Muskelhypothek und sparen dadurch Geld bei Zinsen oder verkürzen Kreditlaufzeiten. Die haustechnischen Gewerke wie Heizung, Lüftung, Sanitär und Estrich werden von Fachbetrieben erledigt. Vor jedem Bauprojekt steht eine umfassende Beratung, um Ihre Wünsche exakt zu ermitteln und in die maßgeschneiderte Planung Ihres Hauses einzubeziehen.
Karte wird geladen...
Objektstandort
56753 Trimbs
Lage & Infrastruktur
Objektstandort
56753 Trimbs
Hier verwirklichen Sie Ihre Wohnträume - auf einem soliden Fundament! Der ausgewiesene Preis beinhaltet das Grundstück, zuzüglich der Baunebenkosten, deren Höhe durch Lage und Größe beeinflusst wird.
Ihr Grundstück wartet bereits auf Ihre Ideen! Wir unterstützen Sie gerne dabei, Ihr Traumhaus optimal darauf zu planen und zu realisieren.
Ihr Grundstück wartet bereits auf Ihre Ideen! Wir unterstützen Sie gerne dabei, Ihr Traumhaus optimal darauf zu planen und zu realisieren.
Kontaktanfrage senden
Über den Anbieter
STREIF Haus GmbH
Josef-Streif-Straße 1
54595 Weinsheim
Kontakt
| Telefon | +49 (0) 65 51.12-00 |
| Mobil | +49 171 2225255 |
| Website | www.streif.de |
Ansprechpartner/in
Herr Markus Stemmler
Weitere Angebote des Anbieters
16
Clever bauen inklusiv Grundstücksservice - mit STREIF ...
Haus
56337 Simmern
Exklusive STREIF Stadtvilla - modernes Wohnen auf höchstem Niveau Willkommen in Ihrem neuen Traumhaus!
Die exklusive Stadtvilla 1 L von STREIF vereint zeitlose Architektur mit maximaler Funktionalität auf rund 150 m² ...
719.400 €
Kaufpreis
150,23 m²
Wohnfläche
5
Zimmer
14
Bungalowträume, individuell geplant und perfekt ...
Haus
56729 Monreal
Ein überdachter Terrassenbereich ist eines der Highlights, die der Bungalow Fertighausentwurf 10 bietet. Eine quadratische Grundrissplanung bringt Vorteile mit sich. Alle Räume sind z. B. auf kurzen Wegen erreichbar. ...
476.600 €
Kaufpreis
114 m²
Wohnfläche
3
Zimmer
11
Mehrfamilienhaus mit durchdachtem Konzept von Streif ...
Haus
56743 Mendig
Der Hausentwurf HOME&GENERATION FAMILY 189 ist ein Zweifamilienhaus mit Satteldach, das in der Architektur Esprit und Behaglichkeit ausstrahlt. Der Basisentwurf des Hauses kann bei Bedarf sehr individuell ausgeführt ...
853.600 €
Kaufpreis
189 m²
Wohnfläche
6
Zimmer
25
Exklusiv & modern: Ein Haus, das Ihre Erwartungen ...
Haus
56745 Bell
Das Einfamilienhaus ist modern und elegant in der Architektur. Auf dem Dach des Carports entsteht ein großzügiger Balkon für die Räume im Obergeschoss. Durch den erhöhten Kniestock ergibt sich für die Räume im ...
426.150 €
Kaufpreis
138 m²
Wohnfläche
4
Zimmer
17
Planung und Finanzierung - alles aus einer Hand
Haus
56753 Trimbs
Mehr Raum für Ihre Ideen - modernes Familyhaus mit flexibler Planung und zusätzlichem Gästezimmer Willkommen in Ihrem neuen Zuhause, das Ihnen auf jeder Ebene mehr Möglichkeiten eröffnet! Das Family XL von STREIF ...
474.850 €
Kaufpreis
142,92 m²
Wohnfläche
4
Zimmer