Freistehendes und junges Niedrigenergiehaus KFW 40+ mit Charme in Niedersachsen
555.000 €
Kaufpreis
159,82 m²
Wohnfläche
3
Zimmer
immobilien.de Nr.: 9489229
Objektnummer: 433102
Kaufpreis
| Kaufpreis | 555.000 € |
| Maklerprovision | keine Provision, courtagefrei |
Wohnfläche, Grundstück & Bausubstanz
| Wohnfläche | 159,82 m² |
| Grundstücksfläche | 859 m² |
| Zimmer | 3 |
| Baujahr | 2024 |
| Verfügbar ab | nach Absprache |
| Zustand | Neuwertig |
Energie
| Energieausweistyp | Bedarfsausweis |
| Energieeffizienzklasse | A+ |
| Endenergiebedarf | 14 |
| Heizungsart | Fußbodenheizung |
| Energieträger/Befeuerung | Luft-Wärme-Pumpe |
Beschreibung der Immobilie
Dieses freistehende Einfamilienhaus mit offener Galerie und einer seltenen Architektur, ist modern und hochwertig ausgestattet.
Der offene und großzügige Wohnraum mit angrenzender Landhausküche und Blick hoch in die Galerie ist der Mittelpunkt des Hauses.
Viele 3-fach verglaste Sprossenfenster und zusätzlichen Dachfenstern lassen die Räume hell erstrahlen.
Es verfügt über eine moderne Ausstattung mit besonderem Charme.
Das Echtholz der Galerie bringt viel Wärme in den Raum.
Man hat vom Küchentisch aus einen direkten Blick auf die Felder.
Vom Sofa aus, fällt der Blick in den Garten und nach oben gerichtet, schaut man durch die großen Dachfenster in den Himmel.
Weiße und höhere Zimmertüren mit breiten Rahmen und verzierten Drückergarnituren unterstreichen den besonderen Charme.
Auch das im Erdgeschoss liegende Schlafzimmer ermöglicht vom Bett aus einen direkten Blick auf die Felder.
Ein hochwertig ausgestattetes Bad mit großen Fliesen und Ebenerdiger Dusche liegt ebenfalls im Erdgeschoss.
Alle Fenster sind mit elektrischen Rollos und teilweise Regensensor am Dachfenster ausgestattet und lassen sich bequem gesamt vom Erdgeschoss aus über ein Bedienelement steuern.
Aus dem Wohnzimmer heraus betritt man direkt die große, überdachte Terrasse (ca. 43 qm) mit dem vor Regen schützendem Windfang.
Hier ist ausreichend Platz um schöne Grillabende mit der Familie und Freunden zu verbringen oder aber abwechslungsreiche Sitz- und Liegemöglichkeiten zur Entspannung zu schaffen.
Eine kleine separate Sonnenterrasse befindet sich zusätzlich im Gartenbereich und von hier schaut man direkt auf das Haus und die Felder.
Hier wäre auch möglich, die kleine Terrasse als eigenständigen Grillplatz zu nutzen, da man ebenfalls einen schnellen Zugang zur großen Doppelgarage mit eigenem Duschbad hat.
Da die Garage sowohl beheizt ist und auch über Lan-Anschlüsse verfügt, können über ein TV Gerät z.B. Fußballbegeisterte sich erfreuen.
Aus der Garage heraus ist nicht nur der direkte Zugang zum Garten möglich, sondern auch durch einen Hauswirtschaftsraum direkt ins Haus.
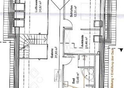
In der oberen Etage, die man über eine Echtholztreppe aus Eiche erreicht, befindet sich eine schöne Galeriefläche, mit Blick runter in das Wohnzimmer und diese Fläche wird derzeit als Büro genutzt.
(Hier wäre ein separater Raum abtrennbar - z.B. weiteres Kinderzimmer)
Auf der Galerie gelangt man in ein weiteres Schlaf-Kinderzimmer mit angrenzendem Ankleidezimmer.
Auch hier sind Fenster inkl. der Dachfenster mit elektrischen Jalousien ausgestattet.
Auf dieser Galerieebene, befindet sich ebenfalls ein Bad mit Badewanne und Dusche welches sehr großzügig und hochwertig ausgestattet ist.
Insgesamt ist das Haus sehr liebevoll eingerichtet und hat einen besonderen Charme.
Am Morgen der frühe Reif auf den Feldern oder aber der späte Sonnenuntergang unterstreichen den Charme und bereiten Freude.
Durch die neue Technik mit Luftwärmepumpe mit Warmwasseraufbereitung, großer Solaranlage und Speicher ist es zudem noch sehr sparsam.
Da das Haus im Frühjahr 2023 erstmals Bezogen wurde, befindet es sich im nahezu neuwertigen Zustand.
Dieses Haus ist für Menschen, die z.B. im Homeoffice tätig sind, eine schöne Lage bevorzugen ein Idealer Ort zum Leben.
Der offene und großzügige Wohnraum mit angrenzender Landhausküche und Blick hoch in die Galerie ist der Mittelpunkt des Hauses.
Viele 3-fach verglaste Sprossenfenster und zusätzlichen Dachfenstern lassen die Räume hell erstrahlen.
Es verfügt über eine moderne Ausstattung mit besonderem Charme.
Das Echtholz der Galerie bringt viel Wärme in den Raum.
Man hat vom Küchentisch aus einen direkten Blick auf die Felder.
Vom Sofa aus, fällt der Blick in den Garten und nach oben gerichtet, schaut man durch die großen Dachfenster in den Himmel.
Weiße und höhere Zimmertüren mit breiten Rahmen und verzierten Drückergarnituren unterstreichen den besonderen Charme.
Auch das im Erdgeschoss liegende Schlafzimmer ermöglicht vom Bett aus einen direkten Blick auf die Felder.
Ein hochwertig ausgestattetes Bad mit großen Fliesen und Ebenerdiger Dusche liegt ebenfalls im Erdgeschoss.
Alle Fenster sind mit elektrischen Rollos und teilweise Regensensor am Dachfenster ausgestattet und lassen sich bequem gesamt vom Erdgeschoss aus über ein Bedienelement steuern.
Aus dem Wohnzimmer heraus betritt man direkt die große, überdachte Terrasse (ca. 43 qm) mit dem vor Regen schützendem Windfang.
Hier ist ausreichend Platz um schöne Grillabende mit der Familie und Freunden zu verbringen oder aber abwechslungsreiche Sitz- und Liegemöglichkeiten zur Entspannung zu schaffen.
Eine kleine separate Sonnenterrasse befindet sich zusätzlich im Gartenbereich und von hier schaut man direkt auf das Haus und die Felder.
Hier wäre auch möglich, die kleine Terrasse als eigenständigen Grillplatz zu nutzen, da man ebenfalls einen schnellen Zugang zur großen Doppelgarage mit eigenem Duschbad hat.
Da die Garage sowohl beheizt ist und auch über Lan-Anschlüsse verfügt, können über ein TV Gerät z.B. Fußballbegeisterte sich erfreuen.
Aus der Garage heraus ist nicht nur der direkte Zugang zum Garten möglich, sondern auch durch einen Hauswirtschaftsraum direkt ins Haus.
In der oberen Etage, die man über eine Echtholztreppe aus Eiche erreicht, befindet sich eine schöne Galeriefläche, mit Blick runter in das Wohnzimmer und diese Fläche wird derzeit als Büro genutzt.
(Hier wäre ein separater Raum abtrennbar - z.B. weiteres Kinderzimmer)
Auf der Galerie gelangt man in ein weiteres Schlaf-Kinderzimmer mit angrenzendem Ankleidezimmer.
Auch hier sind Fenster inkl. der Dachfenster mit elektrischen Jalousien ausgestattet.
Auf dieser Galerieebene, befindet sich ebenfalls ein Bad mit Badewanne und Dusche welches sehr großzügig und hochwertig ausgestattet ist.
Insgesamt ist das Haus sehr liebevoll eingerichtet und hat einen besonderen Charme.
Am Morgen der frühe Reif auf den Feldern oder aber der späte Sonnenuntergang unterstreichen den Charme und bereiten Freude.
Durch die neue Technik mit Luftwärmepumpe mit Warmwasseraufbereitung, großer Solaranlage und Speicher ist es zudem noch sehr sparsam.
Da das Haus im Frühjahr 2023 erstmals Bezogen wurde, befindet es sich im nahezu neuwertigen Zustand.
Dieses Haus ist für Menschen, die z.B. im Homeoffice tätig sind, eine schöne Lage bevorzugen ein Idealer Ort zum Leben.
Ausstattungsmerkmale
| Anzahl der Etagen im Haus | 2 |
| Küche | Einbauküche |
| Bad | 3 |
| Bad | Dusche, Wanne |
| Boden | Fliesen, Kunststoff |
| Balkone | 0 |
| Garten | |
| Terrassen | 1 |
| Garage/Stellplätze | 1 |
Terrasse, Garten, Vollbad, Duschbad, Einbauküche, Fliesen
Bemerkungen:
Hochwertige Ausstattung im modernen Landhausstil.
Viele Extras mit Liebe zum Detail.
Bemerkungen:
Hochwertige Ausstattung im modernen Landhausstil.
Viele Extras mit Liebe zum Detail.
Sonstige Informationen
Heizungsart: Fußbodenheizung
Energieträger: Luft-/Wasserwärme
Unser Haus wird durch uns selbst bewohnt - kein Mietverhältnis.
Eine Übergabe ist kurzfristig, nach Absprache möglich.
Keine Maklercourtage, da Privatverkauf.
Käufer trägt zusätzlich die allgemeinen Kaufnebenkosten, Grunderwerbsteuer, Notar- und Grundbuchkosten.
Finanzierungsfragen mit der Bank bitte vor einer Besichtigung des Objektes klären.
Ein Notartermin findet erst nach offizieller Bankbestätigung/Bankbürgschaft statt.
Besichtigungen finden nur unter Angabe der vollständigen Personendaten statt.
Makleranfragen sind nicht erwünscht!
Makleranfragen nicht erwünscht. Nach § 7 UWG sind unaufgeforderte Kontaktaufnahmen durch Makler ohne ausdrückliche Einwilligung des Empfängers verboten!
ohne-makler (OM) ist weder Anbieter noch Vermittler der Immobilie. OM betreibt eine Plattform für Immobilieneigentümer, die unter anderem die gleichzeitige Veröffentlichung einzelner Inserate auf mehreren Immobilienportalen ermöglicht. Die Inhalte dieser Inserate werden ausschließlich von Dritten verantwortet. Für die Richtigkeit, Vollständigkeit oder Rechtmäßigkeit der Angaben übernimmt OM keine Haftung. Hinweise auf mögliche Rechtsverstöße können jederzeit gemeldet werden und werden nach Prüfung umgehend bearbeitet.
Energieträger: Luft-/Wasserwärme
Unser Haus wird durch uns selbst bewohnt - kein Mietverhältnis.
Eine Übergabe ist kurzfristig, nach Absprache möglich.
Keine Maklercourtage, da Privatverkauf.
Käufer trägt zusätzlich die allgemeinen Kaufnebenkosten, Grunderwerbsteuer, Notar- und Grundbuchkosten.
Finanzierungsfragen mit der Bank bitte vor einer Besichtigung des Objektes klären.
Ein Notartermin findet erst nach offizieller Bankbestätigung/Bankbürgschaft statt.
Besichtigungen finden nur unter Angabe der vollständigen Personendaten statt.
Makleranfragen sind nicht erwünscht!
Makleranfragen nicht erwünscht. Nach § 7 UWG sind unaufgeforderte Kontaktaufnahmen durch Makler ohne ausdrückliche Einwilligung des Empfängers verboten!
ohne-makler (OM) ist weder Anbieter noch Vermittler der Immobilie. OM betreibt eine Plattform für Immobilieneigentümer, die unter anderem die gleichzeitige Veröffentlichung einzelner Inserate auf mehreren Immobilienportalen ermöglicht. Die Inhalte dieser Inserate werden ausschließlich von Dritten verantwortet. Für die Richtigkeit, Vollständigkeit oder Rechtmäßigkeit der Angaben übernimmt OM keine Haftung. Hinweise auf mögliche Rechtsverstöße können jederzeit gemeldet werden und werden nach Prüfung umgehend bearbeitet.
Karte wird geladen...
Objektstandort
26906 Dersum
- Niedersachsen
Lage & Infrastruktur
Objektstandort
26906 Dersum
- Niedersachsen
Das Haus liegt in einem kleinen, familienfreundlichen Dorf Neudersum im Emsland im Bundesland Niedersachsen.
Einkaufsmöglichkeiten, Ärzte, Apotheken, Friseur, Eisdiele, Imbiss und Restaurants sind mit dem Auto schnell zu erreichen.
Freizeitmöglichkeiten Umgeben von schöner Natur gibt es in der direkten Umgebung.
Zusätzlich:
Badeseen, Touren mit dem Rad, Schloss Dankern, Festung Bourtange, Reitsportmöglichkeiten, Ausflug zu den Niederlanden mit Einkaufsmöglichkeiten auch an Sonntagen, Ausflug zur Nordsee oder eine Fahrt nach Ditzum um mit der Fähre zu einer der Nordseeinseln zu fahren.
Man hat vom Haus aus eine schnelle Autobahnanbindung A31 in Richtung Emden/Ostfriesland ca. 40 Autominuten Timmel oder auch weiter nach Varel usw.
Einkaufsmöglichkeiten, Ärzte, Apotheken, Friseur, Eisdiele, Imbiss und Restaurants sind mit dem Auto schnell zu erreichen.
Freizeitmöglichkeiten Umgeben von schöner Natur gibt es in der direkten Umgebung.
Zusätzlich:
Badeseen, Touren mit dem Rad, Schloss Dankern, Festung Bourtange, Reitsportmöglichkeiten, Ausflug zu den Niederlanden mit Einkaufsmöglichkeiten auch an Sonntagen, Ausflug zur Nordsee oder eine Fahrt nach Ditzum um mit der Fähre zu einer der Nordseeinseln zu fahren.
Man hat vom Haus aus eine schnelle Autobahnanbindung A31 in Richtung Emden/Ostfriesland ca. 40 Autominuten Timmel oder auch weiter nach Varel usw.
Kontaktanfrage senden
Über den Anbieter
OM PropTech GmbH
Humboldtstraße 25a
21509 Glinde
Kontakt
| Telefon | - |
| Fax | - |
| Website | www.ohne-makler.net |
Ansprechpartner/in
Privat vom Eigentümer
Weitere Angebote des Anbieters
52
Großzügiges Mehrgenerationenhaus in begehrter ...
Haus
79859 Schluchsee
Die 1978 errichtete Immobilie überzeugt durch ihre repräsentative Architektur, eine durchdachte Aufteilung über drei Ebenen sowie vielseitige Nutzungsmöglichkeiten. Das Anwesen eignet sich ideal als großzügiges ...
975.000 €
Kaufpreis
360 m²
Wohnfläche
9
Zimmer
42
Gepflegtes 1-2 Familienhaus mit schöner Aussicht, ...
Haus
54584 Jünkerath
Dieses schöne EFH mit ELW wurde 1965 in Massivbauweise errichtet und steht in wunderschöner Lage an einem Berghang oberhalb von Jünkerath. Vom Garten und dem OG aus hat man einen schönen Blick über das Kylltal. Das ...
219.000 €
Kaufpreis
139 m²
Wohnfläche
5
Zimmer
12
Neues Frühjahr, neues Zuhause - wohnen in bester ...
Haus
72458 Albstadt
• Wohnen mit herrlicher Aussicht - Reiheneckhaus mit Einliegerwohnung in Albstadt-Ebingen, dem größten Stadtteil von Albstadt. Dieses geräumige Reiheneckhaus mit ca. 185 Quadratmetern Wohnfläche, verteilt auf eine ...
329.000 €
Kaufpreis
185 m²
Wohnfläche
8,5
Zimmer
16
Freistehendes Einfamilienhaus mit 8,5-Zimmer in ...
Haus
73111 Lauterstein
Bei der Immobile handelt es sich um ein Holzhaus aus dem Jahr 1996. Neben achteinhalb Zimmern zählen zu der Immobilie auch zwei Badezimmer und ein separates WC. Zum Objekt gehört eine Doppelgarage für zwei Autos, mit ...
579.000 €
Kaufpreis
224,66 m²
Wohnfläche
8,5
Zimmer
20
Gepflegtes Einfamilienhaus mit zwei Wohneinheiten und ...
Haus
89420 Höchstädt an der Donau
Gepflegtes Einfamilienhaus mit zwei Wohneinheiten und großem Grundstück in ruhiger Lage Willkommen in Ihrem neuen Zuhause! Dieses beeindruckende Einfamilienhaus in ruhiger Lage vereint stilvolles Wohnen, durchdachte ...
870.000 €
Kaufpreis
345,29 m²
Wohnfläche
13
Zimmer