Schöne Eigentumswohnung mit Balkon und PKW-Stellplatz in Bochum Harpen provisionsfrei zu verkaufen!
155.000 €
Kaufpreis
77 m²
Wohnfläche
3
Zimmer
immobilien.de Nr.: 9489205
Objektnummer: 399034
Kaufpreis
| Kaufpreis | 155.000 € |
| Hausgeld | 364 € |
| Maklerprovision | keine Provision, courtagefrei |
Wohnfläche, Grundstück & Bausubstanz
| Wohnfläche | 77 m² |
| Zimmer | 3 |
| Baujahr | 1970 |
| Verfügbar ab | sofort |
| Zustand | Gepflegt |
Energie
| Energieausweistyp | Verbrauch |
| Energieeffizienzklasse | D |
| Energieverbrauchkennwert | 129 kWh/(m²*a) |
| Heizungsart | Zentralheizung |
| Energieträger/Befeuerung | Gas |
Beschreibung der Immobilie
FREIESLEBEN-IMMOBILIEN präsentiert Ihnen diese attraktive Eigentumswohnung mit Balkon, PKW-Stellplatz und Kellerraum im Obergeschoss eines gepflegten 6-Familienhauses in schöner Lage von Bochum Harpen - in unmittelbarer Nähe zum Ruhrpark-Einkaufszentrum.
Das von Grünanlagen umgebene Haus wurde im Jahr 1970 in massiver Bauweise und voll unterkellert auf einem Eigengrundstück errichtet.
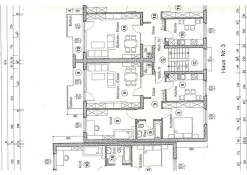
Die schicke Eigentumswohnung erreicht man über das gepflegte Treppenhaus mit Marmorstufen. Sie bietet ca. 77m² Wohnfläche verteilt auf das Wohnzimmer mit Zugang auf den Balkon in Süd-Ausrichtung, das Schlafzimmer, das Kinderzimmer, die Küche mit Essbereich, das Duschbad und den großzügigen Eingangsbereich.
Die Fenster der Wohnung sind doppelt verglast und aus dem Jahr 1989.
Ein separater Kellerraum als Nutzfläche gehört ebenso wie ein separater PKW-Stellplatz zu der hübschen Wohnung.
Für die Fahrräder gibt es einen Gemeinschafts-Fahrradkeller.
Des Weiteren gibt es einen Wasch- und Trockenraum für die Hausgemeinschaft.
Beheizt wird das Haus mit einer Zentralheizung aus dem Jahr 2016.
Das monatliche Hausgeld beträgt 363,49€ inkl. Heizkosten.
Davon umlagefähig: 231,80€
Davon nicht umlagefähig: 47,77€
Davon Rücklage: 83,92€
Die Höhe der Rücklage zum 31.12.2024 betragt für das Haus 89.984,43€. Davon entfallen auf die Wohnung 4.769,17€.
Die Höhe der jährlichen Grundsteuer beträgt: 226,48 €
Sie möchten sofort besichtigen?
Dann senden Sie uns bitte eine Anfrage über das Kontaktformular oder per eMail unter:info@immobilienmakler12.de, wir kontaktieren Sie umgehend.
Schriftliche Anfragen werden deutlich schneller bearbeitet als telefonische Anfragen!
PROVISIONSFREI FÜR DEN KÄUFER
Das von Grünanlagen umgebene Haus wurde im Jahr 1970 in massiver Bauweise und voll unterkellert auf einem Eigengrundstück errichtet.
Die schicke Eigentumswohnung erreicht man über das gepflegte Treppenhaus mit Marmorstufen. Sie bietet ca. 77m² Wohnfläche verteilt auf das Wohnzimmer mit Zugang auf den Balkon in Süd-Ausrichtung, das Schlafzimmer, das Kinderzimmer, die Küche mit Essbereich, das Duschbad und den großzügigen Eingangsbereich.
Die Fenster der Wohnung sind doppelt verglast und aus dem Jahr 1989.
Ein separater Kellerraum als Nutzfläche gehört ebenso wie ein separater PKW-Stellplatz zu der hübschen Wohnung.
Für die Fahrräder gibt es einen Gemeinschafts-Fahrradkeller.
Des Weiteren gibt es einen Wasch- und Trockenraum für die Hausgemeinschaft.
Beheizt wird das Haus mit einer Zentralheizung aus dem Jahr 2016.
Das monatliche Hausgeld beträgt 363,49€ inkl. Heizkosten.
Davon umlagefähig: 231,80€
Davon nicht umlagefähig: 47,77€
Davon Rücklage: 83,92€
Die Höhe der Rücklage zum 31.12.2024 betragt für das Haus 89.984,43€. Davon entfallen auf die Wohnung 4.769,17€.
Die Höhe der jährlichen Grundsteuer beträgt: 226,48 €
Sie möchten sofort besichtigen?
Dann senden Sie uns bitte eine Anfrage über das Kontaktformular oder per eMail unter:info@immobilienmakler12.de, wir kontaktieren Sie umgehend.
Schriftliche Anfragen werden deutlich schneller bearbeitet als telefonische Anfragen!
PROVISIONSFREI FÜR DEN KÄUFER
Ausstattungsmerkmale
| Anzahl der Etagen im Haus | 1 |
| Inserat befindet sich im Stockwerk | 1 |
| Küche | Einbauküche |
| Bad | 1 |
| Bad | Dusche |
| Boden | Fliesen, Laminat |
| Balkone | 1 |
| Terrassen | 0 |
| Fahrstuhl | |
| Keller |
Balkon, Keller, Fahrstuhl, Duschbad, Einbauküche, Laminat, Fliesen
Bemerkungen:
- Attraktive Eigentumswohnung im Obergeschoss eines gepflegten 6-Familienhauses
- Baujahr 1970
- Massive Bauweise
- Ca. 77m² Wohnfläche
- Balkon
- Einbauküche
- PKW-Stellplatz
- separater Kellerraum
Bemerkungen:
- Attraktive Eigentumswohnung im Obergeschoss eines gepflegten 6-Familienhauses
- Baujahr 1970
- Massive Bauweise
- Ca. 77m² Wohnfläche
- Balkon
- Einbauküche
- PKW-Stellplatz
- separater Kellerraum
Sonstige Informationen
Heizungsart: Zentralheizung
Energieträger: Gas
Dies ist ein freibleibendes Angebot der
FREIESLEBEN GmbH,
Viktoriastraße 45
44787 Bochum
Tel.: 0234 - 92 56 98 00
Internet: www.immobilienmakler12.de
eMail: info@immobilienmakler12.de
Sie können uns MONTAG bis SONNTAG
von 7:00 Uhr bis 22:00 Uhr telefonisch erreichen. Am Wochenende bieten wir Ihnen zusätzlich unseren Service für Immobilienbewertungen, Objektbesichtigungen und das Persönliche-Kennenlernen.
Hinsichtlich des Objektes sind wir auf die Auskünfte der Eigentümer und Behörden angewiesen. Für die Richtigkeit und Vollständigkeit der Angaben kann keine Haftung übernommen werden. Darüber hinaus kann für das Objekt keine Gewähr übernommen und für die Liquidität der Vertragspartner nicht gehaftet werden.
Sie möchten Ihre Immobilie auch professionell vermarkten lassen?
- Nutzen Sie unseren kostenfreien Service und lassen den aktuellen Wert Ihrer Immobilie durch einen unserer Immobilienspezialisten schätzen.
- Optimieren Sie die Verkaufschancen Ihrer Immobilie, indem wir einen speziell auf Ihr Objekt abgestimmten Vermarktungsplan erstellen.
- Nutzen Sie unser hervorragendes, bundesweites Netzwerk um Ihnen Kaufinteressenten zeitnah zuzuführen. 100te Interessenten warten auf Sie!
Rufen Sie uns an, wir freuen uns auf Sie!
Zentrale Münsterland: Tel.: 0251 - 39 444 998
Zentrale Ruhrgebiet: Tel.: 0234 - 92 56 98 00
Makleranfragen nicht erwünscht. Nach § 7 UWG sind unaufgeforderte Kontaktaufnahmen durch Makler ohne ausdrückliche Einwilligung des Empfängers verboten!
ohne-makler (OM) ist weder Anbieter noch Vermittler der Immobilie. OM betreibt eine Plattform für Immobilieneigentümer, die unter anderem die gleichzeitige Veröffentlichung einzelner Inserate auf mehreren Immobilienportalen ermöglicht. Die Inhalte dieser Inserate werden ausschließlich von Dritten verantwortet. Für die Richtigkeit, Vollständigkeit oder Rechtmäßigkeit der Angaben übernimmt OM keine Haftung. Hinweise auf mögliche Rechtsverstöße können jederzeit gemeldet werden und werden nach Prüfung umgehend bearbeitet.
Energieträger: Gas
Dies ist ein freibleibendes Angebot der
FREIESLEBEN GmbH,
Viktoriastraße 45
44787 Bochum
Tel.: 0234 - 92 56 98 00
Internet: www.immobilienmakler12.de
eMail: info@immobilienmakler12.de
Sie können uns MONTAG bis SONNTAG
von 7:00 Uhr bis 22:00 Uhr telefonisch erreichen. Am Wochenende bieten wir Ihnen zusätzlich unseren Service für Immobilienbewertungen, Objektbesichtigungen und das Persönliche-Kennenlernen.
Hinsichtlich des Objektes sind wir auf die Auskünfte der Eigentümer und Behörden angewiesen. Für die Richtigkeit und Vollständigkeit der Angaben kann keine Haftung übernommen werden. Darüber hinaus kann für das Objekt keine Gewähr übernommen und für die Liquidität der Vertragspartner nicht gehaftet werden.
Sie möchten Ihre Immobilie auch professionell vermarkten lassen?
- Nutzen Sie unseren kostenfreien Service und lassen den aktuellen Wert Ihrer Immobilie durch einen unserer Immobilienspezialisten schätzen.
- Optimieren Sie die Verkaufschancen Ihrer Immobilie, indem wir einen speziell auf Ihr Objekt abgestimmten Vermarktungsplan erstellen.
- Nutzen Sie unser hervorragendes, bundesweites Netzwerk um Ihnen Kaufinteressenten zeitnah zuzuführen. 100te Interessenten warten auf Sie!
Rufen Sie uns an, wir freuen uns auf Sie!
Zentrale Münsterland: Tel.: 0251 - 39 444 998
Zentrale Ruhrgebiet: Tel.: 0234 - 92 56 98 00
Makleranfragen nicht erwünscht. Nach § 7 UWG sind unaufgeforderte Kontaktaufnahmen durch Makler ohne ausdrückliche Einwilligung des Empfängers verboten!
ohne-makler (OM) ist weder Anbieter noch Vermittler der Immobilie. OM betreibt eine Plattform für Immobilieneigentümer, die unter anderem die gleichzeitige Veröffentlichung einzelner Inserate auf mehreren Immobilienportalen ermöglicht. Die Inhalte dieser Inserate werden ausschließlich von Dritten verantwortet. Für die Richtigkeit, Vollständigkeit oder Rechtmäßigkeit der Angaben übernimmt OM keine Haftung. Hinweise auf mögliche Rechtsverstöße können jederzeit gemeldet werden und werden nach Prüfung umgehend bearbeitet.
Karte wird geladen...
Objektstandort
44791 Bochum
- Nordrhein-Westfalen
Lage & Infrastruktur
Objektstandort
44791 Bochum
- Nordrhein-Westfalen
Die attraktive Wohnung befindet sich in schöner, grüner Lage in einem gepflegten Wohngebiet von Bochum-Harpen, in der Nähe des Ruhrpark Einkaufszentrums.
Fussläufig erreichbar sind Kindergärten, eine Grundschule, Apotheken, Ärzte, Restaurants und Einkaufsmöglichkeiten für den täglichen Bedarf. Ebenfalls fussläufig erreichbar sind Wiesen, Wälder und Felder, die zu Spaziergängen einladen.
Die Bochumer Innenstadt, die Ruhr-Universität, ebenso Naherholungsgebiete wie die Ruhr oder der Kemnader Stausee sind sowohl mit dem ÖPNV als auch dem PKW gut zu erreichen.
Mit dem PKW gelangt man zügig auf die Autobahnen A40 und A43, welche eine gute Anbindung auch an die anderen Städte des Ruhgebiets bieten.
Infrastruktur (im Umkreis von 5 km):
Apotheke, Lebensmittel-Discount, Allgemeinmediziner, Kindergarten, Grundschule, Hauptschule, Realschule, Gymnasium, Gesamtschule, Öffentliche Verkehrsmittel
Fussläufig erreichbar sind Kindergärten, eine Grundschule, Apotheken, Ärzte, Restaurants und Einkaufsmöglichkeiten für den täglichen Bedarf. Ebenfalls fussläufig erreichbar sind Wiesen, Wälder und Felder, die zu Spaziergängen einladen.
Die Bochumer Innenstadt, die Ruhr-Universität, ebenso Naherholungsgebiete wie die Ruhr oder der Kemnader Stausee sind sowohl mit dem ÖPNV als auch dem PKW gut zu erreichen.
Mit dem PKW gelangt man zügig auf die Autobahnen A40 und A43, welche eine gute Anbindung auch an die anderen Städte des Ruhgebiets bieten.
Infrastruktur (im Umkreis von 5 km):
Apotheke, Lebensmittel-Discount, Allgemeinmediziner, Kindergarten, Grundschule, Hauptschule, Realschule, Gymnasium, Gesamtschule, Öffentliche Verkehrsmittel
Kontaktanfrage senden
Über den Anbieter
OM PropTech GmbH
Humboldtstraße 25a
21509 Glinde
Kontakt
| Telefon | - |
| Fax | - |
| Website | www.ohne-makler.net |
Ansprechpartner/in
Angebot von Joachim Freiesleben - Gerfried Gogolin
Weitere Angebote des Anbieters
8
Gießen - Top 2,5 Zimmer-Penthouse mit Aufzug - ...
Wohnung
35396 Gießen
Willkommen in Ihrem neuen Traumzuhause! Dieses exklusive 124 m² Penthouse im Herzen von Gießen setzt neue Maßstäbe in Sachen Luxus und Nachhaltigkeit. Das Penthouse besticht durch herrliche Balkone, die jeweils eine ...
1.700 €
Kaltmiete (netto)
124 m²
Wohnfläche
2,5
Zimmer
9
Schöne große 3 Zimmer-Wohnung mit Terrasse und Garten
Wohnung
67304 Eisenberg-Steinborn
Diese schöne 3 Zimmer-Wohnung im Erdgeschoß mit eigenem Eingang, besticht durch ein großes Raumangebot sowie eine ansprechende Ausstattung. Zur Wohnung gehört ein schönes großes Wannen-Bad mit Dusche sowie ...
1.100 €
Kaltmiete (netto)
84 m²
Wohnfläche
3
Zimmer
24
Helle Dachwohnung mit Südterrasse und Blick ins Grüne
Wohnung
81249 München
Ich verkaufe meine helle und sehr gepflegte Dachgeschosswohnung im beliebten Münchner Stadtteil Aubing/Lochhausen, die mit einer durchdachten Raumaufteilung, viel Licht und einem schönen Blick ins Grüne überzeugt. Sie ...
580.000 €
Kaufpreis
84,92 m²
Wohnfläche
3
Zimmer
20
Schöne 3 Zimmer-Maisonette-Wohnung - umfangreich ...
Wohnung
74078 Heilbronn
Zum Verkauf steht eine attraktive, provisionsfreie 3-Zimmer-Maisonette-Wohnung mit ca. 95m² in einem gepflegten 6 Parteien-Haus in ruhiger Lage, das im Jahr 2023 umfassend und hochwertig saniert wurde. Diese helle, ...
305.000 €
Kaufpreis
95,14 m²
Wohnfläche
3
Zimmer
1
Baugrundstück Reiserdorf
Grundstück
92721 Störnstein
Das Grundstück befindet sich im Baugebiet Gramleite II in Reiserdorf, gehörend zur Gemeinde Störnstein und ist bereits voll erschlossen, sodass Sie mit Ihren Bauplänen zeitnah starten könnten. Aufgrund der Lage in der ...
95.000 €
Kaufpreis
632 m²
Grundstücksfläche