WASSERGRUNDSTÜCK - BOOTFAHREN BIS ZUR OSTSEE
395.000 €
Kaufpreis
161 m²
Wohnfläche
8
Zimmer
immobilien.de Nr.: 9489177
Objektnummer: 432890
Kaufpreis
| Kaufpreis | 395.000 € |
| Maklerprovision | keine Provision, courtagefrei |
Wohnfläche, Grundstück & Bausubstanz
| Wohnfläche | 161 m² |
| Grundstücksfläche | 720 m² |
| Zimmer | 8 |
| Baujahr | 1880 |
| Verfügbar ab | nach Absprache |
| Zustand | Teil Vollrenovierungsbed |
Energie
| Heizungsart | Ofen |
| Energieträger/Befeuerung | Holz |
Beschreibung der Immobilie
Traumgrundstück direkt an der Teterower Peene mit ca. 30 m privater Wasserfront.
Bootshaus für Boote bis ca. 6,00m und bis ca. 2,50m Breite geeignet, plus Wohnbereich.
Wenn Sie die Natur lieben, verlassen Sie Ihr Bootshaus mit dem Paddelboot flussaufwärts
und können dann Eisvögel, Reiher oder Kormorane erleben.
Wenn Sie Angler sind, angeln Sie vom Grundstück aus, oder verlassen Ihr Bootshaus mit dem Angelboot, das einschließlich Straßentrailer im Angebot enthalten ist, in Richtung Kummerower See.
Wenn Sie weite Bootsfahrten lieben, verlassen Sie Ihr Bootshaus mit Ihrem möglichen
Kajütboot, das in Ihrem Bootshaus liegen könnte. Sie erreichen dann über die Peene die
Ostsee. Im Achterwasser an der Boddenseite der Insel Usedom zum Beispiel die Häfen
Krummin oder Zinnowitz.
Auch wenn Sie kein Bootfahrer sind, ist diese Immobilie als zukünftiger Altersruhesitz
bestens geeignet.
Wohnhaus (nicht unter Denkmalschutz):
Gebaut als Einfamilienhaus für den ersten Hafenmeister der Stadt Neukalen.
Außen weitgehend saniert, im Jahr 2011 neuer Dachstuhl und neue Dacheindeckung.
Innen noch nicht fertiggestellt aber teilweise bewohnt. In diesem Bereich mit einem großen Kachelofen und einem modernen Kaminofen beheizt. Möglichkeit für den Bau
einer Solaranlage für Heizsysteme ist vorhanden. Der Energieausweis ist beantragt.
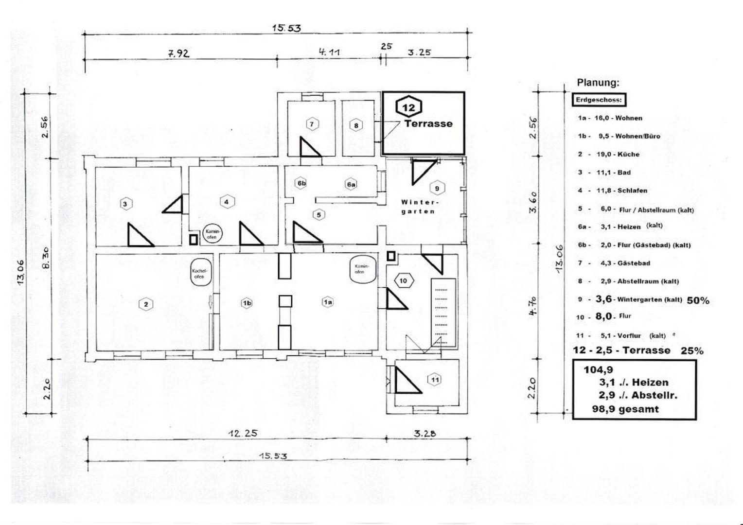
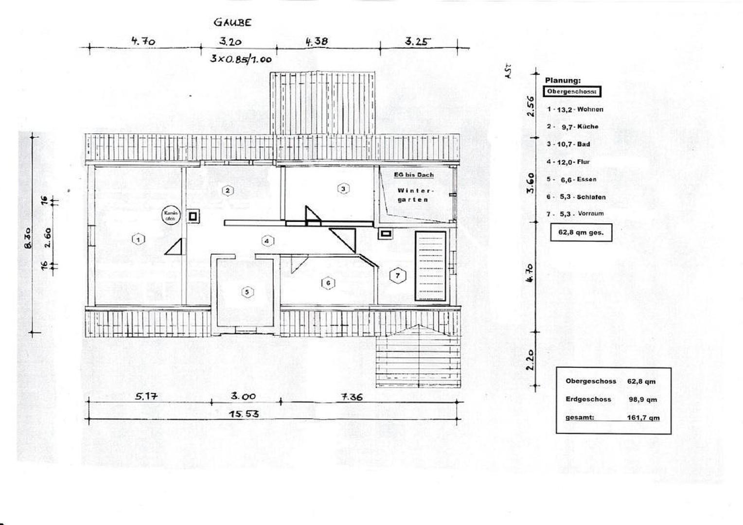
Wohnhausplanung (gesamt ca. 161qm):
Erdgeschoss ca. 99 qm laut beiliegendem Grundriss.
Obergeschoss ca. 62 qm laut beiliegendem Grundriss, als Ferienwohnung geplant.
Bootshaus für Boote bis ca. 6,00m und bis ca. 2,50m Breite geeignet, plus Wohnbereich.
Wenn Sie die Natur lieben, verlassen Sie Ihr Bootshaus mit dem Paddelboot flussaufwärts
und können dann Eisvögel, Reiher oder Kormorane erleben.
Wenn Sie Angler sind, angeln Sie vom Grundstück aus, oder verlassen Ihr Bootshaus mit dem Angelboot, das einschließlich Straßentrailer im Angebot enthalten ist, in Richtung Kummerower See.
Wenn Sie weite Bootsfahrten lieben, verlassen Sie Ihr Bootshaus mit Ihrem möglichen
Kajütboot, das in Ihrem Bootshaus liegen könnte. Sie erreichen dann über die Peene die
Ostsee. Im Achterwasser an der Boddenseite der Insel Usedom zum Beispiel die Häfen
Krummin oder Zinnowitz.
Auch wenn Sie kein Bootfahrer sind, ist diese Immobilie als zukünftiger Altersruhesitz
bestens geeignet.
Wohnhaus (nicht unter Denkmalschutz):
Gebaut als Einfamilienhaus für den ersten Hafenmeister der Stadt Neukalen.
Außen weitgehend saniert, im Jahr 2011 neuer Dachstuhl und neue Dacheindeckung.
Innen noch nicht fertiggestellt aber teilweise bewohnt. In diesem Bereich mit einem großen Kachelofen und einem modernen Kaminofen beheizt. Möglichkeit für den Bau
einer Solaranlage für Heizsysteme ist vorhanden. Der Energieausweis ist beantragt.
Wohnhausplanung (gesamt ca. 161qm):
Erdgeschoss ca. 99 qm laut beiliegendem Grundriss.
Obergeschoss ca. 62 qm laut beiliegendem Grundriss, als Ferienwohnung geplant.
Ausstattungsmerkmale
| Anzahl der Etagen im Haus | 2 |
| Bad | 2 |
| Bad | Dusche |
| Balkone | 0 |
| Garten | |
| Terrassen | 1 |
| Carport | 1 |
Terrasse, Wintergarten, Garten, Duschbad, Gäste-WC
Bemerkungen:
Stellplätze für Mobile:
2x PKW im Doppelcarport, 1x Wohnmobilparkplatz, 1x Winterparkplatz für Trailer u. Boot.
Bemerkungen:
Stellplätze für Mobile:
2x PKW im Doppelcarport, 1x Wohnmobilparkplatz, 1x Winterparkplatz für Trailer u. Boot.
Sonstige Informationen
Heizungsart: Ofenheizung
Energieträger: Holz
Energieausweis nicht vorhanden
Makleranfragen nicht erwünscht. Nach § 7 UWG sind unaufgeforderte Kontaktaufnahmen durch Makler ohne ausdrückliche Einwilligung des Empfängers verboten!
ohne-makler (OM) ist weder Anbieter noch Vermittler der Immobilie. OM betreibt eine Plattform für Immobilieneigentümer, die unter anderem die gleichzeitige Veröffentlichung einzelner Inserate auf mehreren Immobilienportalen ermöglicht. Die Inhalte dieser Inserate werden ausschließlich von Dritten verantwortet. Für die Richtigkeit, Vollständigkeit oder Rechtmäßigkeit der Angaben übernimmt OM keine Haftung. Hinweise auf mögliche Rechtsverstöße können jederzeit gemeldet werden und werden nach Prüfung umgehend bearbeitet.
Energieträger: Holz
Energieausweis nicht vorhanden
Makleranfragen nicht erwünscht. Nach § 7 UWG sind unaufgeforderte Kontaktaufnahmen durch Makler ohne ausdrückliche Einwilligung des Empfängers verboten!
ohne-makler (OM) ist weder Anbieter noch Vermittler der Immobilie. OM betreibt eine Plattform für Immobilieneigentümer, die unter anderem die gleichzeitige Veröffentlichung einzelner Inserate auf mehreren Immobilienportalen ermöglicht. Die Inhalte dieser Inserate werden ausschließlich von Dritten verantwortet. Für die Richtigkeit, Vollständigkeit oder Rechtmäßigkeit der Angaben übernimmt OM keine Haftung. Hinweise auf mögliche Rechtsverstöße können jederzeit gemeldet werden und werden nach Prüfung umgehend bearbeitet.
Karte wird geladen...
Objektstandort
Hafenstraße 1
17154 Neukalen
- Mecklenburg-Vorpommern
Lage & Infrastruktur
Objektstandort
Hafenstraße 1
17154 Neukalen
- Mecklenburg-Vorpommern
In der Peenestadt Neukalen, siehe Internet, direkt an der Teterower Peene.
Einkaufsmöglichkeiten, Arztpraxis, Apotheke und Sparkasse sind vorhanden.
Mehrere Vereine und die freiwillige Feuerwehr gibt es ebenfalls.
Rostock, Stralsund, Greifswald oder Rügen sind jeweils in ca. 1 Autostunde zu erreichen.
Bilder zum Ort und der angebotenen Immobilie finden Sie im Internet, hier hat der Fotograf Berthold Brinkmann aus Rostock schöne Bilder im Bereich bertbrink, fotografie I, Luftbilder, Juli 2021 Neukalen, ins Internet gestellt
Infrastruktur (im Umkreis von 5 km):
Apotheke, Lebensmittel-Discount, Allgemeinmediziner, Kindergarten, Öffentliche Verkehrsmittel
Einkaufsmöglichkeiten, Arztpraxis, Apotheke und Sparkasse sind vorhanden.
Mehrere Vereine und die freiwillige Feuerwehr gibt es ebenfalls.
Rostock, Stralsund, Greifswald oder Rügen sind jeweils in ca. 1 Autostunde zu erreichen.
Bilder zum Ort und der angebotenen Immobilie finden Sie im Internet, hier hat der Fotograf Berthold Brinkmann aus Rostock schöne Bilder im Bereich bertbrink, fotografie I, Luftbilder, Juli 2021 Neukalen, ins Internet gestellt
Infrastruktur (im Umkreis von 5 km):
Apotheke, Lebensmittel-Discount, Allgemeinmediziner, Kindergarten, Öffentliche Verkehrsmittel
Kontaktanfrage senden
Über den Anbieter
OM PropTech GmbH
Humboldtstraße 25a
21509 Glinde
Kontakt
| Telefon | - |
| Fax | - |
| Website | www.ohne-makler.net |
Ansprechpartner/in
Privat vom Eigentümer
Weitere Angebote des Anbieters
17
Ihr neues Wohlfühlnest: Gepflegtes Reihenhaus in ...
Haus
27572 Bremerhaven
Dieses modernisierte Reihenhaus in Bremerhaven vereint zeitgemäßes Wohnen auf zwei Etagen mit hochwertiger Ausstattung, großzügigen Außenflächen und einer nachhaltigen Energielösung. Es eignet sich ideal für Familien ...
259.900 €
Kaufpreis
129,95 m²
Wohnfläche
4
Zimmer
24
18 Minuten zum Flughafen München // Sonnige 2-Zimmer ...
Wohnung
85416 Langenbach
Willkommen in Ihrem neuen Paradies in Langenbach! Diese zauberhafte Neubauwohnung lädt Sie ein, erstmals ihre Türen zu öffnen und Ihr Herz zu erobern. Auf knapp 60 Quadratmetern entfaltet sich eine Wohnlandschaft, die ...
1.290 €
Kaltmiete (netto)
62 m²
Wohnfläche
2
Zimmer
20
Familien-Reihenhaus, bis zu 5 Schlafzimmern – neue ...
Haus
28277 Bremen
Zuhause für die ganze Familie Dieses gepflegte Reihenhaus aus dem Jahr 1958 bietet mit rund 110 m² Wohnfläche, bis zu fünf Schlafzimmern und einem zusätzlichen Hobbyraum im Keller viel Platz für Familien, die ein ...
259.900 €
Kaufpreis
105 m²
Wohnfläche
6
Zimmer
4
Helle, moderne 3-Zimmer-Wohnung mit Balkon, Garten, ...
Wohnung
97350 Mainbernheim
Zur Vermietung steht eine hochwertig kernsanierte 3-Zimmer-Wohnung mit 89 m² Wohnfläche im 1. Obergeschoss eines gepflegten Wohnhauses in Mainbernheim. Die lichtdurchflutete Wohnung befindet sich in einer ruhigen ...
1.020 €
Kaltmiete (netto)
89 m²
Wohnfläche
3
Zimmer
12
3-Zimmer Wohnung in Moers Zentrum
Wohnung
47441 Moers
Diese gemütliche 3-Zimmer-Wohnung bietet auf ca. 64 m² ein einladendes und behagliches Zuhause. Sie befindet sich in einem Mehrfamilienhaus in Bahnhofsnähe und überzeugt durch eine intelligente Raumaufteilung sowie ...
770 €
Kaltmiete (netto)
64 m²
Wohnfläche
3
Zimmer