Freistehendes Blockbohlenhaus direkt am See
599.000 €
Kaufpreis
161,83 m²
Wohnfläche
8
Zimmer
immobilien.de Nr.: 9488940
Objektnummer: 399589
Kaufpreis
| Kaufpreis | 599.000 € |
| Maklerprovision | keine Provision, courtagefrei |
Wohnfläche, Grundstück & Bausubstanz
| Wohnfläche | 161,83 m² |
| Grundstücksfläche | 511 m² |
| Zimmer | 8 |
| Baujahr | 2011 |
| Verfügbar ab | nach Absprache |
| Zustand | Gepflegt |
Energie
| Energieausweistyp | Verbrauch |
| Energieeffizienzklasse | C |
| Energieverbrauchkennwert | 92 kWh/(m²*a) |
| Heizungsart | Zentralheizung |
| Energieträger/Befeuerung | Gas |
Beschreibung der Immobilie
Willkommen am Lünner See – Ihr Zuhause, wo andere Urlaub machen (courtagefrei)
Dieses Zuhause ist mehr als nur ein Ort zum Wohnen – es ist ein Rückzugsort, ein Stückchen Urlaub, ein Platz zum Ankommen und Aufatmen.
Wenn am Morgen das Licht sanft über den See gleitet, Kanadagänse und Schwäne ihre Kreise ziehen und Sie den Tag auf Ihrer Terrasse mit Blick auf das glitzernde Wasser beginnen, dann wissen Sie: Hier sind Sie angekommen. Hier können Sie tief durchatmen, alt werden, sich etwas gönnen, die Ruhe genießen und das gesunde Klima dieser einzigartigen Umgebung spüren.
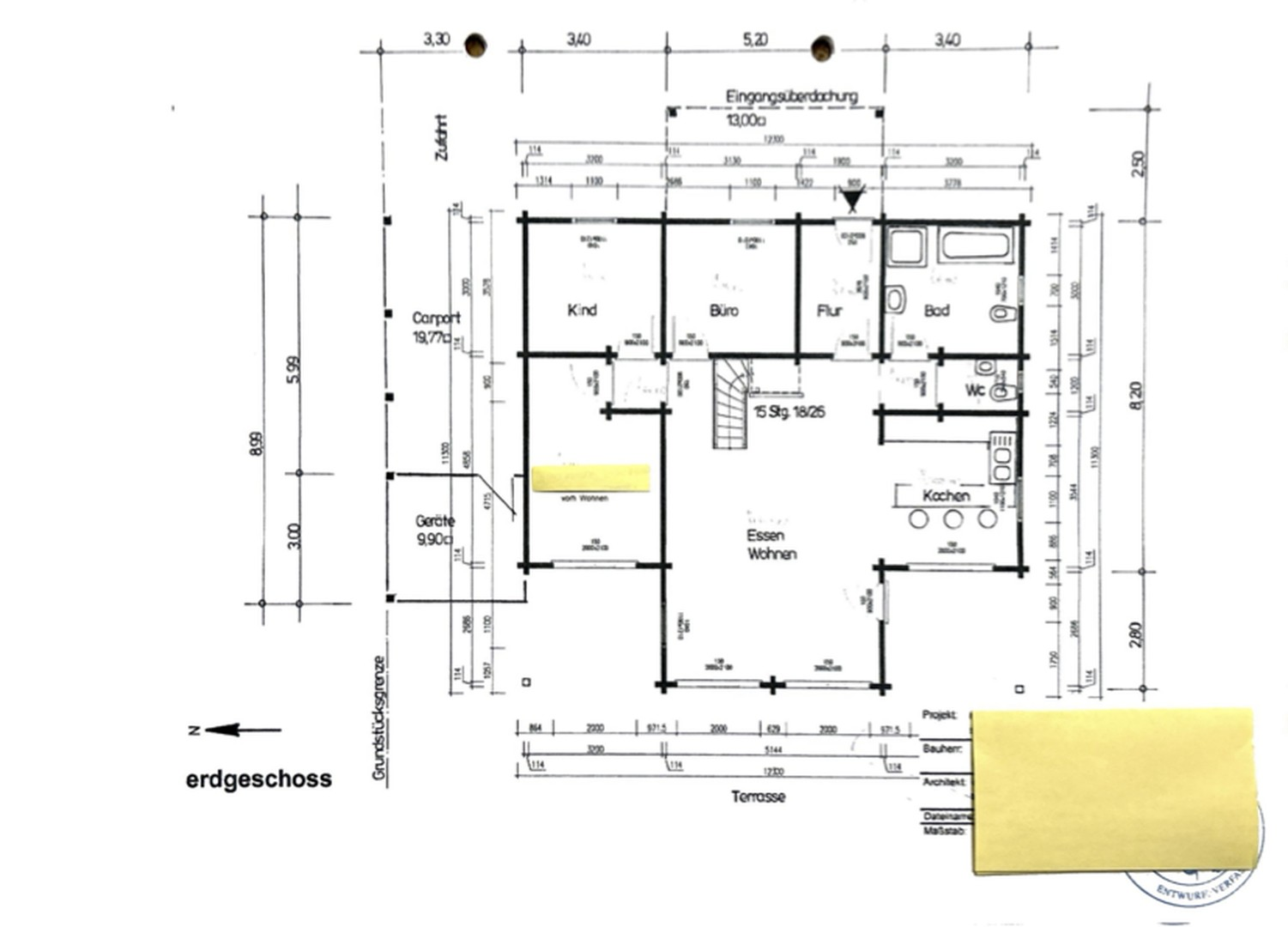
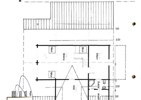
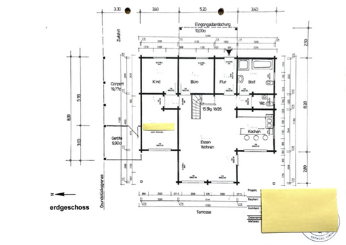
Das im Jahr 2011 erbaute Blockbohlenhaus steht auf einem 511 m² großen Eigentumsgrundstück mit direktem Zugang zum Lünner See – eine seltene Gelegenheit für alle, die das Besondere suchen. Mit einer Wohn- und Nutzfläche von rund 191,50 m² und insgesamt acht Zimmern, darunter eine lichtdurchflutete Galerie mit Seeblick, bietet dieses Haus ein außergewöhnlich behagliches Wohngefühl.
Bereits beim Betreten des Hauses wird klar, dass die Adresse „Seeblick“ hier Programm ist. Warme Holztöne, großzügige Fensterflächen und eine offene Raumgestaltung schaffen eine Atmosphäre der Geborgenheit und Natürlichkeit. Das Blockbohlenhaus aus hochwertigem Leimholz vereint handwerkliche Qualität mit modernem Wohnkomfort.
Die natürlichen Eigenschaften des Holzes sorgen für ein Wohlfühlklima, das Sie spüren werden – zu jeder Jahreszeit. Die massiven Holzwände speichern Wärme im Winter und regulieren die Luftfeuchtigkeit durch ihre dampfdurchlässigen Eigenschaften auf natürliche Weise – für ein gesundes, angenehmes Raumklima.
Zu den besonderen Highlights zählen der weitläufige Wohn- und Essbereich, die Galerie, sowie der stilvolle Wellnessbereich mit Sauna und Ruheraum, von wo aus sich ein herrlicher Blick auf den funkelnden See eröffnet – ein Ort der Ruhe und Erholung.
Auf den teilweise überdachten Hartholzterrassen aus Garapa-Holz lässt sich die Abendsonne mit einem Glas Wein genießen, während das sanfte Plätschern des Wassers den Tag ausklingen lässt. Der pflegeleichte Garten ist harmonisch zum See hin gestaltet und von massiven Sandsteinblöcken eingefasst.
Im gesamten Erdgeschoss sorgt eine Fußbodenheizung für gleichmäßige, angenehme Wärme und unterstreicht das behagliche Wohngefühl des Hauses.
Das großzügige Badezimmer überzeugt mit geschmackvollen Fliesen und einer großen Eckbadewanne, die zum Abschalten und Wohlfühlen einlädt, während ein separates Gäste-WC zusätzlichen Komfort bietet.
Alles ist darauf ausgelegt, Ihnen komfortables Wohnen in einer Umgebung voller Ruhe und Geborgenheit zu bieten.
Das Haus wird provisionsfrei angeboten.
Fazit
Dieses besondere Blockbohlenhaus vereint natürliche Bauweise, modernes Wohnen und eine einmalige Lage direkt am See.
Es ist ein Zuhause, das Körper und Seele guttut – ein Ort zum Durchatmen, zum Leben, zum Bleiben.
Hier werden Sie nicht nur wohnen –
Sie werden ankommen.
Dieses Zuhause ist mehr als nur ein Ort zum Wohnen – es ist ein Rückzugsort, ein Stückchen Urlaub, ein Platz zum Ankommen und Aufatmen.
Wenn am Morgen das Licht sanft über den See gleitet, Kanadagänse und Schwäne ihre Kreise ziehen und Sie den Tag auf Ihrer Terrasse mit Blick auf das glitzernde Wasser beginnen, dann wissen Sie: Hier sind Sie angekommen. Hier können Sie tief durchatmen, alt werden, sich etwas gönnen, die Ruhe genießen und das gesunde Klima dieser einzigartigen Umgebung spüren.
Das im Jahr 2011 erbaute Blockbohlenhaus steht auf einem 511 m² großen Eigentumsgrundstück mit direktem Zugang zum Lünner See – eine seltene Gelegenheit für alle, die das Besondere suchen. Mit einer Wohn- und Nutzfläche von rund 191,50 m² und insgesamt acht Zimmern, darunter eine lichtdurchflutete Galerie mit Seeblick, bietet dieses Haus ein außergewöhnlich behagliches Wohngefühl.
Bereits beim Betreten des Hauses wird klar, dass die Adresse „Seeblick“ hier Programm ist. Warme Holztöne, großzügige Fensterflächen und eine offene Raumgestaltung schaffen eine Atmosphäre der Geborgenheit und Natürlichkeit. Das Blockbohlenhaus aus hochwertigem Leimholz vereint handwerkliche Qualität mit modernem Wohnkomfort.
Die natürlichen Eigenschaften des Holzes sorgen für ein Wohlfühlklima, das Sie spüren werden – zu jeder Jahreszeit. Die massiven Holzwände speichern Wärme im Winter und regulieren die Luftfeuchtigkeit durch ihre dampfdurchlässigen Eigenschaften auf natürliche Weise – für ein gesundes, angenehmes Raumklima.
Zu den besonderen Highlights zählen der weitläufige Wohn- und Essbereich, die Galerie, sowie der stilvolle Wellnessbereich mit Sauna und Ruheraum, von wo aus sich ein herrlicher Blick auf den funkelnden See eröffnet – ein Ort der Ruhe und Erholung.
Auf den teilweise überdachten Hartholzterrassen aus Garapa-Holz lässt sich die Abendsonne mit einem Glas Wein genießen, während das sanfte Plätschern des Wassers den Tag ausklingen lässt. Der pflegeleichte Garten ist harmonisch zum See hin gestaltet und von massiven Sandsteinblöcken eingefasst.
Im gesamten Erdgeschoss sorgt eine Fußbodenheizung für gleichmäßige, angenehme Wärme und unterstreicht das behagliche Wohngefühl des Hauses.
Das großzügige Badezimmer überzeugt mit geschmackvollen Fliesen und einer großen Eckbadewanne, die zum Abschalten und Wohlfühlen einlädt, während ein separates Gäste-WC zusätzlichen Komfort bietet.
Alles ist darauf ausgelegt, Ihnen komfortables Wohnen in einer Umgebung voller Ruhe und Geborgenheit zu bieten.
Das Haus wird provisionsfrei angeboten.
Fazit
Dieses besondere Blockbohlenhaus vereint natürliche Bauweise, modernes Wohnen und eine einmalige Lage direkt am See.
Es ist ein Zuhause, das Körper und Seele guttut – ein Ort zum Durchatmen, zum Leben, zum Bleiben.
Hier werden Sie nicht nur wohnen –
Sie werden ankommen.
Ausstattungsmerkmale
| Anzahl der Etagen im Haus | 2 |
| Küche | Einbauküche |
| Bad | 2 |
| Bad | Wanne |
| Boden | Fliesen, Laminat |
| Balkone | 0 |
| Garten | |
| Terrassen | 1 |
| Carport | 1 |
Terrasse, Garten, Vollbad, Sauna, Einbauküche, Gäste-WC, Laminat, Fliesen
Sonstige Informationen
Heizungsart: Zentralheizung
Energieträger: Gas
Hinweis
Besichtigungen können gerne, nach vorheriger Absprache, vereinbart werden.
Bitte geben Sie bei Ihrer Anfrage Ihren vollständigen Namen, Ihre Anschrift sowie eine Telefonnummer für die Kontaktaufnahme an.
Eine Finanzierungsbestätigung oder ein aussagekräftiger Eigenkapitalnachweis erleichtert die Terminvereinbarung und wird bevorzugt berücksichtigt.
Makleranfragen sind ausdrücklich nicht erwünscht.
Eine Kontaktaufnahme zu Vermittlungs- oder Vermarktungszwecken wird nicht beantwortet und kann als unzulässige Werbung gewertet werden.
Makleranfragen nicht erwünscht. Nach § 7 UWG sind unaufgeforderte Kontaktaufnahmen durch Makler ohne ausdrückliche Einwilligung des Empfängers verboten!
ohne-makler (OM) ist weder Anbieter noch Vermittler der Immobilie. OM betreibt eine Plattform für Immobilieneigentümer, die unter anderem die gleichzeitige Veröffentlichung einzelner Inserate auf mehreren Immobilienportalen ermöglicht. Die Inhalte dieser Inserate werden ausschließlich von Dritten verantwortet. Für die Richtigkeit, Vollständigkeit oder Rechtmäßigkeit der Angaben übernimmt OM keine Haftung. Hinweise auf mögliche Rechtsverstöße können jederzeit gemeldet werden und werden nach Prüfung umgehend bearbeitet.
Energieträger: Gas
Hinweis
Besichtigungen können gerne, nach vorheriger Absprache, vereinbart werden.
Bitte geben Sie bei Ihrer Anfrage Ihren vollständigen Namen, Ihre Anschrift sowie eine Telefonnummer für die Kontaktaufnahme an.
Eine Finanzierungsbestätigung oder ein aussagekräftiger Eigenkapitalnachweis erleichtert die Terminvereinbarung und wird bevorzugt berücksichtigt.
Makleranfragen sind ausdrücklich nicht erwünscht.
Eine Kontaktaufnahme zu Vermittlungs- oder Vermarktungszwecken wird nicht beantwortet und kann als unzulässige Werbung gewertet werden.
Makleranfragen nicht erwünscht. Nach § 7 UWG sind unaufgeforderte Kontaktaufnahmen durch Makler ohne ausdrückliche Einwilligung des Empfängers verboten!
ohne-makler (OM) ist weder Anbieter noch Vermittler der Immobilie. OM betreibt eine Plattform für Immobilieneigentümer, die unter anderem die gleichzeitige Veröffentlichung einzelner Inserate auf mehreren Immobilienportalen ermöglicht. Die Inhalte dieser Inserate werden ausschließlich von Dritten verantwortet. Für die Richtigkeit, Vollständigkeit oder Rechtmäßigkeit der Angaben übernimmt OM keine Haftung. Hinweise auf mögliche Rechtsverstöße können jederzeit gemeldet werden und werden nach Prüfung umgehend bearbeitet.
Karte wird geladen...
Objektstandort
48480 Lünne
- Niedersachsen
Lage & Infrastruktur
Objektstandort
48480 Lünne
- Niedersachsen
Leben, wo andere die Ruhe suchen
Die Immobilie liegt am Lünner See in der idyllischen Gemeinde Lünne, im südlichen Teil des Landkreises Emsland – einer Region, die für ihre Flüsse, Seen, Moor- und Heideflächen bekannt ist.
Umgeben von Wäldern, klarer Luft und einer intakten Natur bietet Lünne einen hohen Wohn- und Freizeitwert.
Gleichzeitig ist der Ort verkehrsgünstig gelegen: Über die Autobahnen A 30 und A 31 erreichen Sie schnell das Ruhrgebiet, die Nordseeküste oder die niederländische Grenze (nur etwa 30 km entfernt). Auch die Städte Nordhorn, Rheine und Osnabrück sind in kurzer Zeit erreichbar.
Vor Ort finden Sie im Umkreis von nur drei Kilometern Ärzte, Einkaufsmöglichkeiten, Kindergarten, Grundschule, Bäcker und Gastronomieangebote. Weiterführende Schulen, Apotheken und die Autobahnanbindung befinden sich im 10 km-Radius. Die Stadt Lingen (Ems) liegt rund 15 km entfernt, Rheine etwa 20 km. Den Flughafen Münster/Osnabrück erreichen Sie in ca. 45 Minuten.
Die Gemeinde selbst besticht durch ihren historischen Ortskern, weitläufige Felder und Nadelwälder sowie ein ausgedehntes Rad- und Wanderwegenetz – ideal für Naturliebhaber, die Wert auf Ruhe und Lebensqualität legen.
Infrastruktur (im Umkreis von 5 km):
Lebensmittel-Discount, Allgemeinmediziner, Kindergarten, Grundschule, Öffentliche Verkehrsmittel
Die Immobilie liegt am Lünner See in der idyllischen Gemeinde Lünne, im südlichen Teil des Landkreises Emsland – einer Region, die für ihre Flüsse, Seen, Moor- und Heideflächen bekannt ist.
Umgeben von Wäldern, klarer Luft und einer intakten Natur bietet Lünne einen hohen Wohn- und Freizeitwert.
Gleichzeitig ist der Ort verkehrsgünstig gelegen: Über die Autobahnen A 30 und A 31 erreichen Sie schnell das Ruhrgebiet, die Nordseeküste oder die niederländische Grenze (nur etwa 30 km entfernt). Auch die Städte Nordhorn, Rheine und Osnabrück sind in kurzer Zeit erreichbar.
Vor Ort finden Sie im Umkreis von nur drei Kilometern Ärzte, Einkaufsmöglichkeiten, Kindergarten, Grundschule, Bäcker und Gastronomieangebote. Weiterführende Schulen, Apotheken und die Autobahnanbindung befinden sich im 10 km-Radius. Die Stadt Lingen (Ems) liegt rund 15 km entfernt, Rheine etwa 20 km. Den Flughafen Münster/Osnabrück erreichen Sie in ca. 45 Minuten.
Die Gemeinde selbst besticht durch ihren historischen Ortskern, weitläufige Felder und Nadelwälder sowie ein ausgedehntes Rad- und Wanderwegenetz – ideal für Naturliebhaber, die Wert auf Ruhe und Lebensqualität legen.
Infrastruktur (im Umkreis von 5 km):
Lebensmittel-Discount, Allgemeinmediziner, Kindergarten, Grundschule, Öffentliche Verkehrsmittel
Kontaktanfrage senden
Über den Anbieter
OM PropTech GmbH
Humboldtstraße 25a
21509 Glinde
Kontakt
| Telefon | - |
| Fax | - |
| Website | www.ohne-makler.net |
Ansprechpartner/in
Privat vom Eigentümer
Weitere Angebote des Anbieters
7
Schöne und großzügige 3-Zimmer-DG-Wohnung in Herne
Wohnung
44649 Herne
Willkommen in Ihrem neuen Zuhause! Diese helle 3-Zimmer-Dachgeschosswohnung befindet sich in einem charmanten, im Jahr 1914 errichteten Mehrfamilienhaus, das in den letzten Jahren umfassend modernisiert wurde. ...
680 €
Kaltmiete (netto)
75 m²
Wohnfläche
3
Zimmer
22
Helles, loftiges Dachgeschoss mit großer Dachterrasse ...
Wohnung
04177 Leipzig
91,5 m² Wohnfläche, 3 Zimmer + offene Küche + Flur + Bad (Eckbadewanne + Dusche + Handtuchheizkörper), 2 Abstellräume Traumhafte, große Dachterrasse mit Morgensonne & Weitblick Ruhige Rücklage zur Kleinen Luppe ...
968 €
Kaltmiete (netto)
91,5 m²
Wohnfläche
3
Zimmer
15
Müllheim, 1ZW im EG mit Terrasse und Garten
Wohnung
79379 Müllheim
Die Wohnung wird frei zum 01.06.2026 oder nach Absprache etwas früher oder später, ca. 30,17m² mit östlicher Himmelsausrichtung, Vinylboden und Sockelleisten 10.20224 erneuert im Zimmer und Abstellraum, Duschbad mit ...
138.000 €
Kaufpreis
30,17 m²
Wohnfläche
1
Zimmer
14
Frisch Sanierte 3,5 Zimmer 108m2
Wohnung
89150 Laichingen
+++ALLES AUF EINEN BLICK+++ - Zentrumsnah - Frisch Sanierte helle und sehr schön geschnittene 3,5-Zimmer-Wohnung - im 2.OG eines Mehrfamilienhauses - 2 tolle überdachte Balkone mit Zugang zum Wohnbereich und ins ...
300.000 €
Kaufpreis
108 m²
Wohnfläche
3,5
Zimmer
12
Bürofläche in verkehrsgünstiger Lage im EG
Büro / Praxen
65589 Hadamar
2021 fertig gestelltes Haus in Massivbauweise mit Dämmsteinen, Dreifachverglasung, elektrischen Rolladen, Fußbodenheizung, Gelände videoüberwacht inkl. Aufzeichnung
1.600 €
Kaltmiete (netto)
137 m²
Gesamtfläche