Haus in Höhenlage mit Baugrundstück & Ausbaupotenzial -Wachtberg-Niederbachem
680.000 €
Kaufpreis
206 m²
Wohnfläche
6
Zimmer
immobilien.de Nr.: 9488889
Objektnummer: 428198
Kaufpreis
| Kaufpreis | 680.000 € |
| Maklerprovision | keine Provision, courtagefrei |
Wohnfläche, Grundstück & Bausubstanz
| Wohnfläche | 206 m² |
| Grundstücksfläche | 992 m² |
| Zimmer | 6 |
| Baujahr | 1979 |
| Verfügbar ab | sofort |
| Zustand | Gepflegt |
Energie
| Energieausweistyp | Bedarfsausweis |
| Energieeffizienzklasse | G |
| Endenergiebedarf | 225 |
| Heizungsart | Zentralheizung |
| Energieträger/Befeuerung | Öl |
Beschreibung der Immobilie
Dieses freistehende Einfamilienhaus präsentiert sich in bevorzugter Höhenlage in einem exklusiven Wohnumfeld. Die solide Architektur der 1960er Jahre mit klaren Linien und großen Fensterfronten, bietet eine repräsentative Erscheinung und zugleich hervorragendes Entwicklungspotenzial.
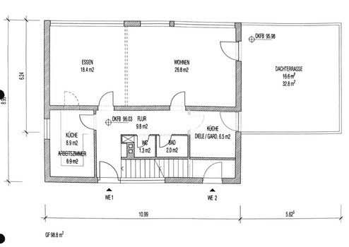
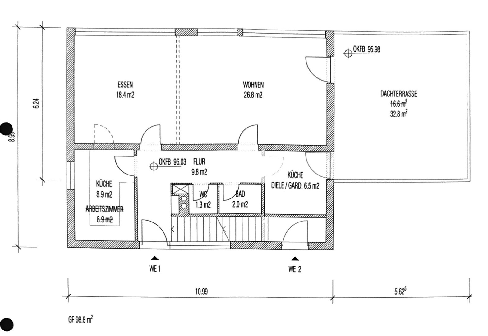
Von außen besticht das Haus durch seine großzügige Bauweise mit drei Wohnebenen, einer großen Dachterrasse mit ganztägiger Sonneinstrahlung sowie einem Balkon mit Blick ins Grüne.
Die großflächigen Fenster sorgen für helle, lichtdurchflutete Räume und eröffnen zugleich einen wunderschönen Fernblick über den Rodderberg und das Siebengebirge.
Eine seitlich angeordnete Außentreppe, der externen Zugang zur Einliegerwohnung sowie die Terrassenbereiche schaffen flexible Nutzungsmöglichkeiten und unterstreichen den offenen, modernen Charakter des Gebäudes.
Dieses Objekt eignet sich gleichsam für Familien oder Paare mit Platzbedarf, die ein großzügiges Haus mit Potenzial suchen und die Lage in grüner Umgebung schätzen und wegen des Entwicklungspotenzials auch für Investoren.
Dem Objekt liegt eine positive Bauvoranfrage vor, die dem zukünftigen Eigentümer interessante Gestaltungsmöglichkeiten eröffnet. Genehmigt ist sowohl eine Erweiterung der bestehenden Garage um einen weiteren Stellplatz als auch die damit verbundene Vergrößerung der Terrassenfläche auf die doppelte Größe.
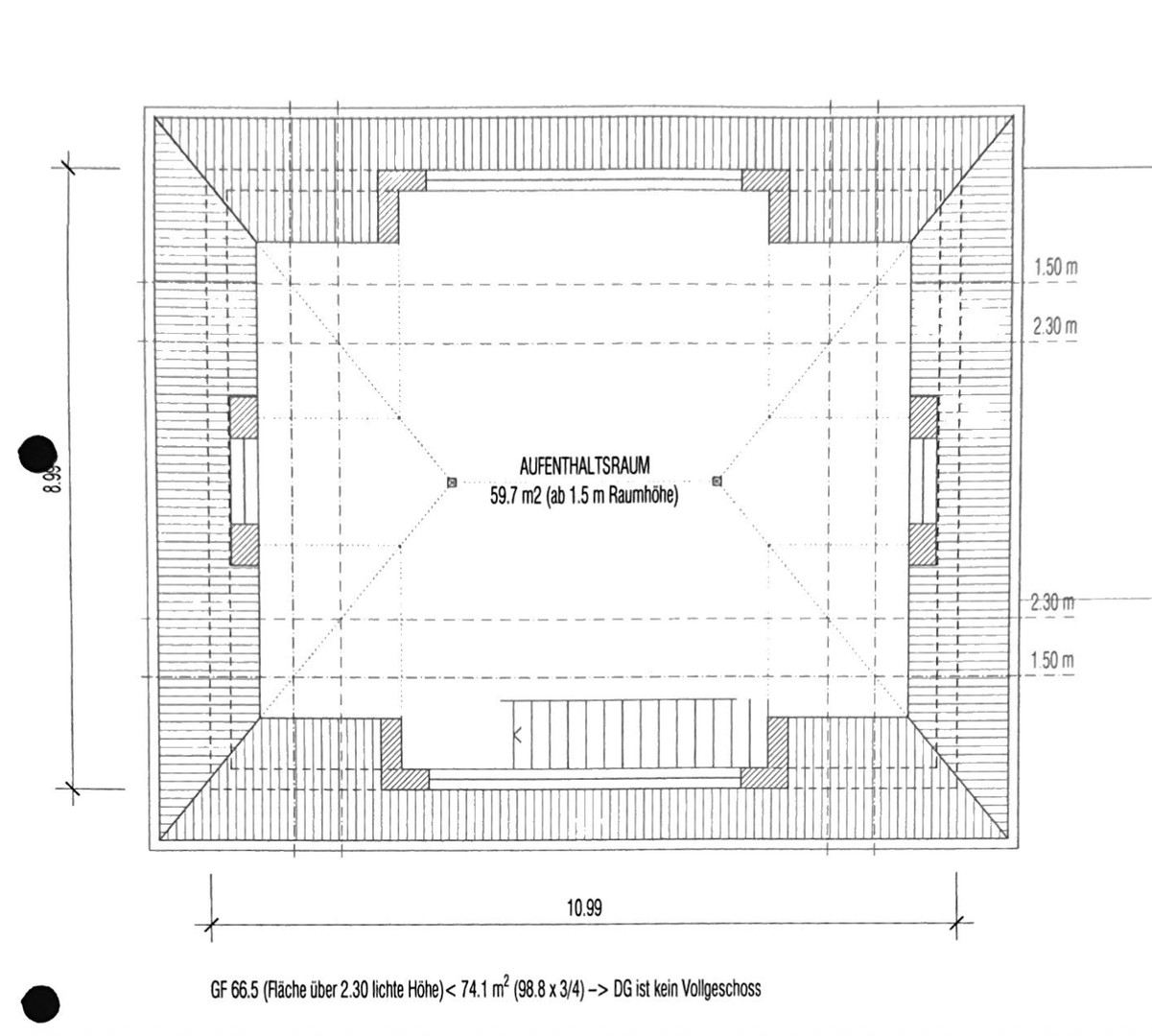
Darüber hinaus ist eine Dachaufstockung möglich, wodurch eine zusätzliche Wohnebene mit ca. 60 qm (brutto) Wohnfläche geschaffen werden kann.
Der künftige Bauherr hat hierbei die Wahl, ob dieses obere Geschoss eine eigene Wohneinheit bilden wird oder in die bestehende Wohnfläche des Hauses miteinbezogen werden soll.
Das untere Flurstück bietet die Möglichkeit ein weiteres Haus zu realisieren. Auch hierfür liegt eine positive Bauvoranfrage vor.
Die vollständigen Unterlagen zur Bauvoranfrage stelle ich Ihnen bei Interesse selbstverständlich gerne zur Verfügung.
Hinweis: Das angrenzende Baugrundstück, Flurstück 303 im Wert von ca. 150.000,-€ ist im Kaufpreis inkludiert!
(261 qm bei einem Bodenrichtwert von 580,-€/qm)
Von außen besticht das Haus durch seine großzügige Bauweise mit drei Wohnebenen, einer großen Dachterrasse mit ganztägiger Sonneinstrahlung sowie einem Balkon mit Blick ins Grüne.
Die großflächigen Fenster sorgen für helle, lichtdurchflutete Räume und eröffnen zugleich einen wunderschönen Fernblick über den Rodderberg und das Siebengebirge.
Eine seitlich angeordnete Außentreppe, der externen Zugang zur Einliegerwohnung sowie die Terrassenbereiche schaffen flexible Nutzungsmöglichkeiten und unterstreichen den offenen, modernen Charakter des Gebäudes.
Dieses Objekt eignet sich gleichsam für Familien oder Paare mit Platzbedarf, die ein großzügiges Haus mit Potenzial suchen und die Lage in grüner Umgebung schätzen und wegen des Entwicklungspotenzials auch für Investoren.
Dem Objekt liegt eine positive Bauvoranfrage vor, die dem zukünftigen Eigentümer interessante Gestaltungsmöglichkeiten eröffnet. Genehmigt ist sowohl eine Erweiterung der bestehenden Garage um einen weiteren Stellplatz als auch die damit verbundene Vergrößerung der Terrassenfläche auf die doppelte Größe.
Darüber hinaus ist eine Dachaufstockung möglich, wodurch eine zusätzliche Wohnebene mit ca. 60 qm (brutto) Wohnfläche geschaffen werden kann.
Der künftige Bauherr hat hierbei die Wahl, ob dieses obere Geschoss eine eigene Wohneinheit bilden wird oder in die bestehende Wohnfläche des Hauses miteinbezogen werden soll.
Das untere Flurstück bietet die Möglichkeit ein weiteres Haus zu realisieren. Auch hierfür liegt eine positive Bauvoranfrage vor.
Die vollständigen Unterlagen zur Bauvoranfrage stelle ich Ihnen bei Interesse selbstverständlich gerne zur Verfügung.
Hinweis: Das angrenzende Baugrundstück, Flurstück 303 im Wert von ca. 150.000,-€ ist im Kaufpreis inkludiert!
(261 qm bei einem Bodenrichtwert von 580,-€/qm)
Ausstattungsmerkmale
| Anzahl der Etagen im Haus | 3 |
| Küche | Einbauküche |
| Bad | 3 |
| Bad | Dusche, Wanne |
| Boden | Fliesen, Laminat |
| Balkone | 1 |
| Garten | |
| Terrassen | 1 |
| Garage/Stellplätze | 1 |
| Keller |
Balkon, Terrasse, Garten, Keller, Vollbad, Duschbad, Einbauküche, Gäste-WC, Laminat, Fliesen
Bemerkungen:
- großzügiges Einfamilienhaus in idyllischer Höhenlage
- wunderschöner Aus- und Fernblick
- Ausbaupotenzial innerhalb des Hauses
- Baugrundstück vorhanden und im Preis inkludiert
- Terrasse durch genehmigte Garage (erweiterbar)
- angelegter Garten
- Garage (erweiterbar u. an das Haus angeschlossen)
- moderne Einliegerwohnung von außen aber auch von innen durch das Haus erreichbar
- sofort zur Selbstnutzung verfügbar
- Bauvoranfragen mit positivem Bescheiden vorhanden
Bemerkungen:
- großzügiges Einfamilienhaus in idyllischer Höhenlage
- wunderschöner Aus- und Fernblick
- Ausbaupotenzial innerhalb des Hauses
- Baugrundstück vorhanden und im Preis inkludiert
- Terrasse durch genehmigte Garage (erweiterbar)
- angelegter Garten
- Garage (erweiterbar u. an das Haus angeschlossen)
- moderne Einliegerwohnung von außen aber auch von innen durch das Haus erreichbar
- sofort zur Selbstnutzung verfügbar
- Bauvoranfragen mit positivem Bescheiden vorhanden
Sonstige Informationen
Heizungsart: Zentralheizung
Energieträger: Öl
Gerne sende ein ausführliches Exposé und weitere Informationen zu.
Makleranfragen nicht erwünscht. Nach § 7 UWG sind unaufgeforderte Kontaktaufnahmen durch Makler ohne ausdrückliche Einwilligung des Empfängers verboten!
ohne-makler (OM) ist weder Anbieter noch Vermittler der Immobilie. OM betreibt eine Plattform für Immobilieneigentümer, die unter anderem die gleichzeitige Veröffentlichung einzelner Inserate auf mehreren Immobilienportalen ermöglicht. Die Inhalte dieser Inserate werden ausschließlich von Dritten verantwortet. Für die Richtigkeit, Vollständigkeit oder Rechtmäßigkeit der Angaben übernimmt OM keine Haftung. Hinweise auf mögliche Rechtsverstöße können jederzeit gemeldet werden und werden nach Prüfung umgehend bearbeitet.
Energieträger: Öl
Gerne sende ein ausführliches Exposé und weitere Informationen zu.
Makleranfragen nicht erwünscht. Nach § 7 UWG sind unaufgeforderte Kontaktaufnahmen durch Makler ohne ausdrückliche Einwilligung des Empfängers verboten!
ohne-makler (OM) ist weder Anbieter noch Vermittler der Immobilie. OM betreibt eine Plattform für Immobilieneigentümer, die unter anderem die gleichzeitige Veröffentlichung einzelner Inserate auf mehreren Immobilienportalen ermöglicht. Die Inhalte dieser Inserate werden ausschließlich von Dritten verantwortet. Für die Richtigkeit, Vollständigkeit oder Rechtmäßigkeit der Angaben übernimmt OM keine Haftung. Hinweise auf mögliche Rechtsverstöße können jederzeit gemeldet werden und werden nach Prüfung umgehend bearbeitet.
Karte wird geladen...
Objektstandort
53343 Wachtberg Niederbachem
- Nordrhein-Westfalen
Lage & Infrastruktur
Objektstandort
53343 Wachtberg Niederbachem
- Nordrhein-Westfalen
Die Lage überzeugt durch eine attraktive Kombination aus ruhiger, exklusiver, naturnaher Wohnlage sowie der guten Anbindung an Infrastruktur und Versorgung.
Die Nähe zu Bad Godesberg und Bonn mit ihren Bahnhöfen und der Autobahn bietet Pendlern Vorteile. Gleichzeitig sind Bildungseinrichtungen, Kindertagesbetreuung und Einkaufsmöglichkeiten in der Gemeinde oder in benachbarten Ortschaften schnell erreichbar.
Die Rheinnähe, das ausgeprägte Freizeit-, Sport- und Kulturangebot sowie Naherholungsmöglichkeiten machen die Lage besonders für Familien und Menschen attraktiv, die ländliche Ruhe und städtische Erreichbarkeit verbinden wollen. So ist insbesondere der fussläufig erreichbare Rodderberg ein beliebtes Naherholungsgebiet, welches bekannt ist für seine vulkanische Geschichte, weite Aussichten über das Rheintal und den Drachenfels sowie den dort ansässigen Golfplatz.
Infrastruktur (im Umkreis von 5 km):
Apotheke, Lebensmittel-Discount, Allgemeinmediziner, Kindergarten, Grundschule, Gymnasium, Öffentliche Verkehrsmittel
Die Nähe zu Bad Godesberg und Bonn mit ihren Bahnhöfen und der Autobahn bietet Pendlern Vorteile. Gleichzeitig sind Bildungseinrichtungen, Kindertagesbetreuung und Einkaufsmöglichkeiten in der Gemeinde oder in benachbarten Ortschaften schnell erreichbar.
Die Rheinnähe, das ausgeprägte Freizeit-, Sport- und Kulturangebot sowie Naherholungsmöglichkeiten machen die Lage besonders für Familien und Menschen attraktiv, die ländliche Ruhe und städtische Erreichbarkeit verbinden wollen. So ist insbesondere der fussläufig erreichbare Rodderberg ein beliebtes Naherholungsgebiet, welches bekannt ist für seine vulkanische Geschichte, weite Aussichten über das Rheintal und den Drachenfels sowie den dort ansässigen Golfplatz.
Infrastruktur (im Umkreis von 5 km):
Apotheke, Lebensmittel-Discount, Allgemeinmediziner, Kindergarten, Grundschule, Gymnasium, Öffentliche Verkehrsmittel
Kontaktanfrage senden
Über den Anbieter
OM PropTech GmbH
Humboldtstraße 25a
21509 Glinde
Kontakt
| Telefon | - |
| Fax | - |
| Website | www.ohne-makler.net |
Ansprechpartner/in
Privat von Stefan Michels
Weitere Angebote des Anbieters
11
Vollmöbliertes 1-Zimmer Apartment mit Ausblick im ...
Wohnung
70567 Stuttgart Möhringen
Vollmöbliertes 1-Zimmer Apartment mit Ausblick im 14. Stock des SI-Centrum in Stuttgart-Möhringen. Komplett Saniert und neu vollmöbliert in 2023. In Mietpreis inbegriffen: Möblierung/Ausstattung, Wasser, Heizung, ...
950 €
Warmmiete
23 m²
Wohnfläche
1
Zimmer
25
Großzügiges Einfamilienhaus in Weilerbach – gepflegt, ...
Haus
67685 Weilerbach
Dieses sehr gepflegte Einfamilienhaus aus dem Baujahr 1985 befindet sich in ruhiger Wohnlage von 67685 Weilerbach und überzeugt durch ein außergewöhnlich großzügiges Raumangebot, eine solide Bausubstanz und vielseitige ...
579.000 €
Kaufpreis
297 m²
Wohnfläche
7
Zimmer
20
Reihenendhaus
Haus
24321 Hohwacht
Objektbeschreibung : Bei dieser ansprechenden, hochwertigen Immobilie in Bestlage handelt es sich um ein Endreihenhaus von fünf neu gebauten, zweistöckigen Reihenhäusern. Neben drei schönen Zimmern, überwiegend mit ...
1.430 €
Kaltmiete (netto)
81 m²
Wohnfläche
4
Zimmer
18
Modernes Einfamilienhaus mit Top-Energieeffizienz in ...
Haus
63579 Freigericht
Dieses energieeffiziente Einfamilienhaus (Baujahr 2007) mit 117 m² Wohnfläche und 23m² Nutzfläche überzeugt durch seine moderne Ausstattung, durchdachte Raumaufteilung und ruhige aber zentrale Lage in einer Sackgasse. ...
598.000 €
Kaufpreis
117 m²
Wohnfläche
4
Zimmer
8
Moderne 2-Zimmer Wohnung in Bessungen mit 2 ...
Wohnung
64285 Darmstadt
Diese kernsanierte 2-Zimmer-Wohnung in einem gepflegten Mehrfamilienhaus im beliebten Stadtteil Bessungen bietet modernen Wohnkomfort auf ca. 54 m². Sie wurde 2023 umfassend renoviert und besticht durch ihre ...
1.150 €
Kaltmiete (netto)
54 m²
Wohnfläche
2
Zimmer