Baugrundstücke am Brasselsberg in Kassel
427.350 €
Kaufpreis
immobilien.de Nr.: 9485847
Objektnummer: 305389
Kaufpreis
| Kaufpreis | 427.350 € |
| Maklerprovision | keine Provision, courtagefrei |
Wohnfläche, Grundstück & Bausubstanz
| Grundstücksfläche | 1.295 m² |
| Verfügbar ab | sofort |
Beschreibung der Immobilie
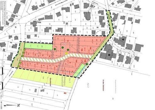
Bauen in einer der schönsten Lagen Kassels!
Der angegebene Preis bezieht sich beispielhaft auf Grundstück Nummer 7.
Verkauft werden Grundstücke in verschiedenen Größen (Von 505qm bis 1833qm) für den Bau von Ein- und Mehrfamilienhäusern. Die Preise orientieren sich an dem Bodenrichtwert i.H.v. ca. 420€/qm mit leichten Ausreißern nach oben und unten.
Beispielsweise Grundstück 8 (1625 qm) zum Preis von 487.500,00€ oder Grundstück 4 (968 qm) zum Preis von 435.600,00€.
Das Baugebiet in attraktiver Hanglage bietet die Möglichkeit zur Errichtung von Ein- und Mehrfamilienhäusern.
Die Grundstücke werden voll erschlossen und liegen zwischen der Hohefeldstraße und der Gänseweide. Im Bebauungsplan ist auf nachhaltiges Bauen ein besonderer Wert gelegt worden.
Die noch verfügbaren Grundstücksgrößen teilen wir Ihnen gerne im persönlichen Gespräch mit. Ein großer Teil der Grundstücke ist bereits verkauft, kontaktieren Sie uns für weitere Informationen.
Der angegebene Preis bezieht sich beispielhaft auf Grundstück Nummer 7.
Verkauft werden Grundstücke in verschiedenen Größen (Von 505qm bis 1833qm) für den Bau von Ein- und Mehrfamilienhäusern. Die Preise orientieren sich an dem Bodenrichtwert i.H.v. ca. 420€/qm mit leichten Ausreißern nach oben und unten.
Beispielsweise Grundstück 8 (1625 qm) zum Preis von 487.500,00€ oder Grundstück 4 (968 qm) zum Preis von 435.600,00€.
Das Baugebiet in attraktiver Hanglage bietet die Möglichkeit zur Errichtung von Ein- und Mehrfamilienhäusern.
Die Grundstücke werden voll erschlossen und liegen zwischen der Hohefeldstraße und der Gänseweide. Im Bebauungsplan ist auf nachhaltiges Bauen ein besonderer Wert gelegt worden.
Die noch verfügbaren Grundstücksgrößen teilen wir Ihnen gerne im persönlichen Gespräch mit. Ein großer Teil der Grundstücke ist bereits verkauft, kontaktieren Sie uns für weitere Informationen.
Sonstige Informationen
Weitblick Immobilien GmbH & Co. KG
Weidenbuschweg 8c
34132 Kassel
Deutschland
Tel.: +491739041638
E-Mail: s.itter@weitblickimmobilien.com
Registergericht: Amtsgericht Kassel
Registernummer: HRA 18303
Vertretungsberechtigte Gesellschafterin (Komplementärin): Weitblick Verwaltungs GmbH, Registergericht: Amtsgericht Kassel, Registernummer: HRB 19671, ihrerseits vertreten durch den Geschäftsführer: Norbert Itter
Plattform der EU-Kommission zur Online-Streitbeilegung: https://ec.europa.eu/odr
Wir sind zur Teilnahme an einem Streitbeilegungsverfahren vor einer Verbraucherschlichtungsstelle weder verpflichtet noch bereit.
Makleranfragen nicht erwünscht. Nach § 7 UWG sind unaufgeforderte Kontaktaufnahmen durch Makler ohne ausdrückliche Einwilligung des Empfängers verboten!
ohne-makler (OM) ist weder Anbieter noch Vermittler der Immobilie. OM betreibt eine Plattform für Immobilieneigentümer, die unter anderem die gleichzeitige Veröffentlichung einzelner Inserate auf mehreren Immobilienportalen ermöglicht. Die Inhalte dieser Inserate werden ausschließlich von Dritten verantwortet. Für die Richtigkeit, Vollständigkeit oder Rechtmäßigkeit der Angaben übernimmt OM keine Haftung. Hinweise auf mögliche Rechtsverstöße können jederzeit gemeldet werden und werden nach Prüfung umgehend bearbeitet.
Weidenbuschweg 8c
34132 Kassel
Deutschland
Tel.: +491739041638
E-Mail: s.itter@weitblickimmobilien.com
Registergericht: Amtsgericht Kassel
Registernummer: HRA 18303
Vertretungsberechtigte Gesellschafterin (Komplementärin): Weitblick Verwaltungs GmbH, Registergericht: Amtsgericht Kassel, Registernummer: HRB 19671, ihrerseits vertreten durch den Geschäftsführer: Norbert Itter
Plattform der EU-Kommission zur Online-Streitbeilegung: https://ec.europa.eu/odr
Wir sind zur Teilnahme an einem Streitbeilegungsverfahren vor einer Verbraucherschlichtungsstelle weder verpflichtet noch bereit.
Makleranfragen nicht erwünscht. Nach § 7 UWG sind unaufgeforderte Kontaktaufnahmen durch Makler ohne ausdrückliche Einwilligung des Empfängers verboten!
ohne-makler (OM) ist weder Anbieter noch Vermittler der Immobilie. OM betreibt eine Plattform für Immobilieneigentümer, die unter anderem die gleichzeitige Veröffentlichung einzelner Inserate auf mehreren Immobilienportalen ermöglicht. Die Inhalte dieser Inserate werden ausschließlich von Dritten verantwortet. Für die Richtigkeit, Vollständigkeit oder Rechtmäßigkeit der Angaben übernimmt OM keine Haftung. Hinweise auf mögliche Rechtsverstöße können jederzeit gemeldet werden und werden nach Prüfung umgehend bearbeitet.
Karte wird geladen...
Objektstandort
34132 Kassel
- Hessen
Lage & Infrastruktur
Objektstandort
34132 Kassel
- Hessen
Der Stadtteil Brasselsberg liegt im Süd-Westen der Stadt Kassel und ist geprägt durch seine weitläufige Bebauung mit vielen Grün- und Gartenflächen.
Der Brasselsberg ist bekannt für seine glückliche Lage zwischen dem Habichtswald und dem innerstädtischen Naturschutzgebiet Dönche - zwei geschätzte
Naherholungsgebiete der Einwohner des Stadtteils.
Neben seiner grünen Lage überzeugt der Stadtteil durch seine vielfältige Architektur: von gemütlichen Einfamilienhäusern über mittlere bis große Villenanlagen
bis hin zur modernen Bauhaus-Architektur. Heimelig wird der Brasselsberg durch seine kleine Ortsmitte bestehend aus der Emmauskirche, dem Italienischen Restaurant um die Ecke und einem kleinen,aber gut sortierten Supermarkt.
Der Brasselsberg liegt verkehrstechnisch gut gelegen. Die direkte Anbindung an die Bundesautobahn 44 und an den bekannten Nachbarstadtteil Bad Wilhelmshöhe ermöglichen gute Erreichbarkeiten auf Kurz- oder Fernstrecke.
Schul- und Kinderbetreuungsangebote befinden sich in den gut erreichbaren Nachbarstadtteilen Bad Wilhelmshöhe und Nordshausen. Eine evangelische Kirchengemeinde und ein niedergelassener Allgemeinmediziner sowie zwei Zahnarztpraxen sind auch im Stadtteil zu finden.
Infrastruktur (im Umkreis von 5 km):
Apotheke, Kindergarten, Grundschule, Gymnasium, Öffentliche Verkehrsmittel
Der Brasselsberg ist bekannt für seine glückliche Lage zwischen dem Habichtswald und dem innerstädtischen Naturschutzgebiet Dönche - zwei geschätzte
Naherholungsgebiete der Einwohner des Stadtteils.
Neben seiner grünen Lage überzeugt der Stadtteil durch seine vielfältige Architektur: von gemütlichen Einfamilienhäusern über mittlere bis große Villenanlagen
bis hin zur modernen Bauhaus-Architektur. Heimelig wird der Brasselsberg durch seine kleine Ortsmitte bestehend aus der Emmauskirche, dem Italienischen Restaurant um die Ecke und einem kleinen,aber gut sortierten Supermarkt.
Der Brasselsberg liegt verkehrstechnisch gut gelegen. Die direkte Anbindung an die Bundesautobahn 44 und an den bekannten Nachbarstadtteil Bad Wilhelmshöhe ermöglichen gute Erreichbarkeiten auf Kurz- oder Fernstrecke.
Schul- und Kinderbetreuungsangebote befinden sich in den gut erreichbaren Nachbarstadtteilen Bad Wilhelmshöhe und Nordshausen. Eine evangelische Kirchengemeinde und ein niedergelassener Allgemeinmediziner sowie zwei Zahnarztpraxen sind auch im Stadtteil zu finden.
Infrastruktur (im Umkreis von 5 km):
Apotheke, Kindergarten, Grundschule, Gymnasium, Öffentliche Verkehrsmittel
Kontaktanfrage senden
Über den Anbieter
OM PropTech GmbH
Humboldtstraße 25a
21509 Glinde
Kontakt
| Telefon | 0173 9041638 |
| Fax | - |
| Website | www.ohne-makler.net |
Ansprechpartner/in
Angebot von Sebastian Itter
Weitere Angebote des Anbieters
15
Attraktive 3-Zimmer- und 2 Zimmer -Wohnung mit KDB – ...
Wohnung
57577 Hamm(sieg)
Wir vermieten verschiedene Wohnungen in den Größen zwischen 83 qm bis 96 qm. Es sind 3 Zimmer KDB . Jede Wohnung ist frisch renoviert. Alle Wohnungen sind hell und gut geschnitten, sie verfügen jeweils über einen ...
672 €
Kaltmiete (netto)
84 m²
Wohnfläche
3
Zimmer
22
Wunderschöne 4-Zi.-Maisonette mit Haus-im-Haus-Charakte ...
Wohnung
71101 SCHOENAICH
In begehrter, zentraler Lage von Schönaich bieten wir diese außergewöhnlich geschnittene 4-Zimmer-Maisonettewohnung mit ca. 101 m² Wohnfläche im Privatverkauf an. Die Wohnung überzeugt durch ihren separaten Hauseingang ...
379.000 €
Kaufpreis
101 m²
Wohnfläche
4
Zimmer
11
Schöne renovierte 3-Zimmer Altbauwohnung in Straubing ...
Wohnung
94315 Straubung
Diese helle neuwertige Altbauwohnung befindet sich in einem ruhigen Mehrfamilienhaus mitten im Herzen von Straubing. Die Wohnung überzeugt durch ihren großzügigen Grundriss. Küche, Wohnzimmer und zwei Schlafzimmer oder ...
820 €
Kaltmiete (netto)
84 m²
Wohnfläche
4
Zimmer
7
Schöne renovierte 2-Zi-Altbauwohnung und EBK in Bogen ...
Wohnung
94327 Bogen
Diese schöne, vollständig renovierte Wohnung in der zweiten Etage zeichnet sich durch eine gehobene Innenausstattung aus und kann zum 01.12.2025 bezogen werden. Die Wohnung bietet neben zwei attraktiven Zimmern nicht ...
676 €
Kaltmiete (netto)
81 m²
Wohnfläche
3
Zimmer
9
Erstbezug nach Sanierung: Großzügige Etagenwohnung
Wohnung
68307 Mannheim
Bei dieser ansprechenden Immobilie handelt es sich um einen Erstbezug nach umfassender Sanierung (Türen, Böden, Fenster, Bäder, Elektroleitungen, gesamte Heizungsanlage, einschließlich Leitungen neu). Die Wohnung in ...
1.550 €
Kaltmiete (netto)
115 m²
Wohnfläche
3
Zimmer