Gepflegtes Mehrfamilienhaus in Lossburg-Betzweiler
569.000 €
Kaufpreis
389 m²
Wohnfläche
14
Zimmer
immobilien.de Nr.: 9485004
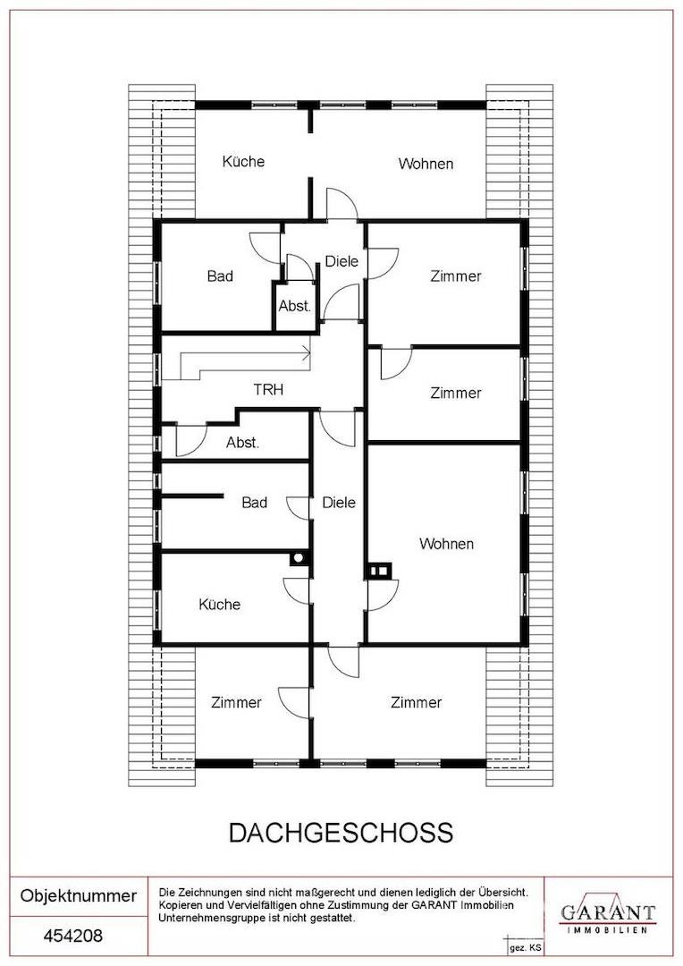
Objektnummer: 454208
Kaufpreis
| Kaufpreis | 569.000 € |
| Maklerprovision | 3,57 % (inkl. MwSt.) |
Wohnfläche, Grundstück & Bausubstanz
| Wohnfläche | 389 m² |
| Grundstücksfläche | 1.113 m² |
| Zimmer | 14 |
| Baujahr | 1958 |
| Verfügbar ab | keine Angabe |
| Zustand | Gepflegt |
Energie
| Energieausweistyp | Verbrauch |
| Ausstellungsdatum | 17. 02. 2026 |
| Baujahr (laut Energieausweis) | 1958 |
| Energieeffizienzklasse | C |
| Energieverbrauchkennwert | 91.41 kWh/(m²*a) |
| Heizungsart | Zentralheizung |
| Wesentlicher Energieträger | Öl |
| Energieträger/Befeuerung | Öl |
Beschreibung der Immobilie
In attraktiver, unverbaubarer Lage mit herrlicher Aussicht präsentiert sich dieses gepflegte Mehrfamilienhaus im Ortsteil Betzweiler der Gemeinde Loßburg. Das im Jahr 1958 in massiver Bauweise errichtete Gebäude überzeugt durch seine solide Substanz und die laufenden Modernisierungen.
Das Mehrfamilienhaus umfasst insgesamt fünf Wohneinheiten mit einer großzügigen Gesamtwohnfläche von ca. 389 m². Alle Wohnungen sind derzeit vermietet und bieten somit eine attraktive Kapitalanlage mit stabilen Mieteinnahmen.
Die Aufteilung gestaltet sich wie folgt:
Untergeschoss: 3 Zimmer-Wohnung sowie Heizraum, Fahrradraum und separate Abstellräume.
Erdgeschoss: 2 Zimmer-Wohnung mit großzügigem Balkon in sonniger Ost/Süd-Ausrichtung.
Zusätzlich eine weitere 3-Zimmer-Wohnung auf derselben Ebene.
Dachgeschoss: Zwei weitere 3 Zimmer-Wohnungen mit angenehmer Raumaufteilung.
2. Dachgeschoss: Bühnenräume, die jeweils den einzelnen Wohnungen zugeordnet sind.
Das großzügige Grundstück steht den Mietern zur gemeinschaftlichen Nutzung zur Verfügung und unterstreicht die Wohnqualität des Hauses. Für Fahrzeuge sind Carport-Stellplätze vorhanden.
Die Immobilie wurde regelmäßig instand gehalten und modernisiert:
- 1990: Einbau einer Fußbodenheizung in der Einliegerwohnung
- 2008: Erneuerung der Fenster und Rollläden
- 2009: Fassadenanstrich
- 2013: Dachdämmung sowie Neueindeckung des Daches
Diese Maßnahmen tragen maßgeblich zum gepflegten Gesamtzustand und zur nachhaltigen Werterhaltung der Immobilie bei.
Dieses solide Mehrfamilienhaus stellt eine interessante Investitionsmöglichkeit dar. Die Kombination aus durchdachter Wohnungsaufteilung, vollständiger Vermietung, kontinuierlicher Modernisierung macht diese Immobilie zu einer wertstabilen Kapitalanlage mit Entwicklungspotenzial.
Weitere Angebote unter www.GARANT-IMMO.de
Das Mehrfamilienhaus umfasst insgesamt fünf Wohneinheiten mit einer großzügigen Gesamtwohnfläche von ca. 389 m². Alle Wohnungen sind derzeit vermietet und bieten somit eine attraktive Kapitalanlage mit stabilen Mieteinnahmen.
Die Aufteilung gestaltet sich wie folgt:
Untergeschoss: 3 Zimmer-Wohnung sowie Heizraum, Fahrradraum und separate Abstellräume.
Erdgeschoss: 2 Zimmer-Wohnung mit großzügigem Balkon in sonniger Ost/Süd-Ausrichtung.
Zusätzlich eine weitere 3-Zimmer-Wohnung auf derselben Ebene.
Dachgeschoss: Zwei weitere 3 Zimmer-Wohnungen mit angenehmer Raumaufteilung.
2. Dachgeschoss: Bühnenräume, die jeweils den einzelnen Wohnungen zugeordnet sind.
Das großzügige Grundstück steht den Mietern zur gemeinschaftlichen Nutzung zur Verfügung und unterstreicht die Wohnqualität des Hauses. Für Fahrzeuge sind Carport-Stellplätze vorhanden.
Die Immobilie wurde regelmäßig instand gehalten und modernisiert:
- 1990: Einbau einer Fußbodenheizung in der Einliegerwohnung
- 2008: Erneuerung der Fenster und Rollläden
- 2009: Fassadenanstrich
- 2013: Dachdämmung sowie Neueindeckung des Daches
Diese Maßnahmen tragen maßgeblich zum gepflegten Gesamtzustand und zur nachhaltigen Werterhaltung der Immobilie bei.
Dieses solide Mehrfamilienhaus stellt eine interessante Investitionsmöglichkeit dar. Die Kombination aus durchdachter Wohnungsaufteilung, vollständiger Vermietung, kontinuierlicher Modernisierung macht diese Immobilie zu einer wertstabilen Kapitalanlage mit Entwicklungspotenzial.
Weitere Angebote unter www.GARANT-IMMO.de
Ausstattungsmerkmale
| Anzahl der Etagen im Haus | 3 |
| Küche | Einbauküche |
| Bad | 5 |
| Boden | Fliesen, Laminat |
| Balkone | 1 |
UG: 3 Zimmer-Wohnung, Heizraum und Abstellraum
EG: 2 Zimmer-Wohnung und 3 Zimmer-Wohnung
DG: zwei 3 Zimmer-Wohnungen
2. DG: Abstellräume
EG: 2 Zimmer-Wohnung und 3 Zimmer-Wohnung
DG: zwei 3 Zimmer-Wohnungen
2. DG: Abstellräume
Sonstige Informationen
Energieverbrauchsausweis
Energiekennwert: 91,41 kWh/(qm*a)
Energieeffizienz: Klasse C (<100)
Heizung: Zentralheizung mit Öl
Baujahr laut Energieausweis: 1958
Energiekennwert: 91,41 kWh/(qm*a)
Energieeffizienz: Klasse C (<100)
Heizung: Zentralheizung mit Öl
Baujahr laut Energieausweis: 1958
Karte wird geladen...
Objektstandort
72290 Loßburg
Lage & Infrastruktur
Objektstandort
72290 Loßburg
Betzweiler ist ein Ortsteil der Gemeinde Loßburg im nördlichen Schwarzwald und hat ca. 900 Einwohner und liegt im Heimbachtal zwischen den Orten Loßburg und Dornhan.
In Betzweiler gibt es noch Einkaufmöglichkeiten für den täglichen Bedarf. Weitere Einkaufmöglihkeiten, Ärzte, Apotheken finden Sie in Loßburg und Dornhan.
In Betzweiler gibt es den integrativen Kindergarten und Kinderkrippe Sonnenwiese" und eine Grundschule. Weitereführende Schulen befinden sich in Dornhan und Loßburg.
Betzweiler ist ein kleiner, ländlicher Schwarzwaldort, eingebettet in Natur, mit einer engen Dorfgemeinschaft und Basis-Infrastruktur für Familien:
In Betzweiler gibt es noch Einkaufmöglichkeiten für den täglichen Bedarf. Weitere Einkaufmöglihkeiten, Ärzte, Apotheken finden Sie in Loßburg und Dornhan.
In Betzweiler gibt es den integrativen Kindergarten und Kinderkrippe Sonnenwiese" und eine Grundschule. Weitereführende Schulen befinden sich in Dornhan und Loßburg.
Betzweiler ist ein kleiner, ländlicher Schwarzwaldort, eingebettet in Natur, mit einer engen Dorfgemeinschaft und Basis-Infrastruktur für Familien:
Kontaktanfrage senden
Über den Anbieter
Garant Immobilien AG
Wilhelmstr.5
70182 Stuttgart
Kontakt
| Telefon | 07452/84 960-0 |
| Fax | 07452/84 960-20 |
| Website | www.garant-immo.de |
Ansprechpartner/in
Büro Calw / Freudenstadt