Helle 3-Zimmer-Wohnung in zentraler Lage von Wurzen – Bezugsfrei ab 01.03.
517 €
Kaltmiete (netto)
69 m²
Wohnfläche
3
Zimmer
immobilien.de Nr.: 9484994
Objektnummer: 426118
Mietpreis & Nebenkosten
| Kaltmiete (netto) | 517 € |
| Nebenkosten | 150 € |
| Heizkosten enthalten | Ja |
| Kaution | 1.551 € |
Wohnfläche, Grundstück & Bausubstanz
| Wohnfläche | 69 m² |
| Zimmer | 3 |
| Verfügbar ab | 01.03.2026 |
| Zustand | Gepflegt |
Energie
| Heizungsart | Etagenheizung |
| Energieträger/Befeuerung | Gas |
Beschreibung der Immobilie
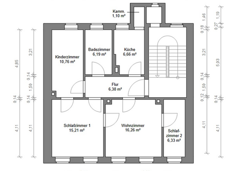
Diese gut geschnittene 3-Zimmer-Wohnung befindet sich in einem gepflegten Mehrfamilienhaus in der Kantstraße 32 in Wurzen. Auf ca. 69 m² bietet die Wohnung genügend Platz für Paare, kleine Familien oder auch als großzügiges Home-Office-Domizil.
Die Räume sind hell und freundlich gestaltet. Der praktische Grundriss sorgt dafür, dass jeder Quadratmeter optimal genutzt werden kann. Vom Flur aus gelangen Sie bequem in alle Räume. Das Wohnzimmer bietet ausreichend Stellfläche für eine gemütliche Wohnlandschaft und einen Essbereich.
Highlights der Wohnung:
+++ Provisionsfrei: Vermietung direkt vom Eigentümer – keine Maklergebühr.
+++ Zustand: gepflegter Zustand
+++ Lichtdurchflutet: Große Fenster sorgen für eine angenehme Wohnatmosphäre.
Die Räume sind hell und freundlich gestaltet. Der praktische Grundriss sorgt dafür, dass jeder Quadratmeter optimal genutzt werden kann. Vom Flur aus gelangen Sie bequem in alle Räume. Das Wohnzimmer bietet ausreichend Stellfläche für eine gemütliche Wohnlandschaft und einen Essbereich.
Highlights der Wohnung:
+++ Provisionsfrei: Vermietung direkt vom Eigentümer – keine Maklergebühr.
+++ Zustand: gepflegter Zustand
+++ Lichtdurchflutet: Große Fenster sorgen für eine angenehme Wohnatmosphäre.
Ausstattungsmerkmale
| Anzahl der Etagen im Haus | 1 |
| Inserat befindet sich im Stockwerk | 2 |
| Bad | 1 |
| Boden | Laminat |
Laminat
Bemerkungen:
Adresse: Kantstraße 32, 04808 Wurzen
Wohnfläche: ca. 69 m²
Zimmer: 3
Kaltmiete: 517,50 €
Betriebskosten (VZ):150,00 €
Gesamtmiete: 617,50 €
Kaution: 1.552,50 €
Verfügbar ab: 01.03.2026
Etage: 1.OG
Bemerkungen:
Adresse: Kantstraße 32, 04808 Wurzen
Wohnfläche: ca. 69 m²
Zimmer: 3
Kaltmiete: 517,50 €
Betriebskosten (VZ):150,00 €
Gesamtmiete: 617,50 €
Kaution: 1.552,50 €
Verfügbar ab: 01.03.2026
Etage: 1.OG
Sonstige Informationen
Heizungsart: Etagenheizung
Energieträger: Gas
Energieausweis nicht vorhanden
Haben wir Ihr Interesse geweckt? Scheiben Sie uns gerne eine Nachricht!
Impressum:
Vasto Capital GmbH
Lilienthalstraße 2
12529 Schönefeld
Makleranfragen nicht erwünscht. Nach § 7 UWG sind unaufgeforderte Kontaktaufnahmen durch Makler ohne ausdrückliche Einwilligung des Empfängers verboten!
ohne-makler (OM) ist weder Anbieter noch Vermittler der Immobilie. OM betreibt eine Plattform für Immobilieneigentümer, die unter anderem die gleichzeitige Veröffentlichung einzelner Inserate auf mehreren Immobilienportalen ermöglicht. Die Inhalte dieser Inserate werden ausschließlich von Dritten verantwortet. Für die Richtigkeit, Vollständigkeit oder Rechtmäßigkeit der Angaben übernimmt OM keine Haftung. Hinweise auf mögliche Rechtsverstöße können jederzeit gemeldet werden und werden nach Prüfung umgehend bearbeitet.
Energieträger: Gas
Energieausweis nicht vorhanden
Haben wir Ihr Interesse geweckt? Scheiben Sie uns gerne eine Nachricht!
Impressum:
Vasto Capital GmbH
Lilienthalstraße 2
12529 Schönefeld
Makleranfragen nicht erwünscht. Nach § 7 UWG sind unaufgeforderte Kontaktaufnahmen durch Makler ohne ausdrückliche Einwilligung des Empfängers verboten!
ohne-makler (OM) ist weder Anbieter noch Vermittler der Immobilie. OM betreibt eine Plattform für Immobilieneigentümer, die unter anderem die gleichzeitige Veröffentlichung einzelner Inserate auf mehreren Immobilienportalen ermöglicht. Die Inhalte dieser Inserate werden ausschließlich von Dritten verantwortet. Für die Richtigkeit, Vollständigkeit oder Rechtmäßigkeit der Angaben übernimmt OM keine Haftung. Hinweise auf mögliche Rechtsverstöße können jederzeit gemeldet werden und werden nach Prüfung umgehend bearbeitet.
Karte wird geladen...
Objektstandort
Kantstraße 32
04808 Wurzen
- Sachsen
Lage & Infrastruktur
Objektstandort
Kantstraße 32
04808 Wurzen
- Sachsen
Die Immobilie befindet sich in einer ruhigen Wohngegend von Wurzen. Die Lage zeichnet sich durch kurze Wege und eine gute Infrastruktur aus:
Einkaufen: Supermärkte, Bäcker und Geschäfte des täglichen Bedarfs sind in wenigen Minuten fußläufig erreichbar.
Verkehrsanbindung: Der Bahnhof Wurzen ist gut erreichbar. Von dort bringt Sie die S-Bahn in ca. 20 Minuten direkt ins Stadtzentrum von Leipzig – ideal für Pendler.
Freizeit: Der nahegelegene Stadtpark und die Muldenaue laden zu Spaziergängen und sportlichen Aktivitäten ein. Schulen und Kindergärten befinden sich ebenfalls im nahen Umfeld.
Infrastruktur (im Umkreis von 5 km):
Apotheke, Lebensmittel-Discount, Allgemeinmediziner, Kindergarten, Grundschule, Hauptschule, Realschule, Gymnasium, Gesamtschule, Öffentliche Verkehrsmittel
Einkaufen: Supermärkte, Bäcker und Geschäfte des täglichen Bedarfs sind in wenigen Minuten fußläufig erreichbar.
Verkehrsanbindung: Der Bahnhof Wurzen ist gut erreichbar. Von dort bringt Sie die S-Bahn in ca. 20 Minuten direkt ins Stadtzentrum von Leipzig – ideal für Pendler.
Freizeit: Der nahegelegene Stadtpark und die Muldenaue laden zu Spaziergängen und sportlichen Aktivitäten ein. Schulen und Kindergärten befinden sich ebenfalls im nahen Umfeld.
Infrastruktur (im Umkreis von 5 km):
Apotheke, Lebensmittel-Discount, Allgemeinmediziner, Kindergarten, Grundschule, Hauptschule, Realschule, Gymnasium, Gesamtschule, Öffentliche Verkehrsmittel
Kontaktanfrage senden
Über den Anbieter
OM PropTech GmbH
Humboldtstraße 25a
21509 Glinde
Kontakt
| Telefon | - |
| Fax | - |
| Website | www.ohne-makler.net |
Ansprechpartner/in
Angebot von Heidrun Reichelt
Weitere Angebote des Anbieters
6
Freie sanierte 2-Zimmer-Wohnung im 4. OG Düsseldorf ...
Wohnung
40233 Düsseldorf
Direkt vom Eigentümer (von privat, keine Maklerprovision): Diese exklusive 2-Zimmer-Wohnung mit ca. 55 m² Wohnfläche befindet sich im 4. Obergeschoss eines modernen Mehrfamilienhauses in Düsseldorf Flingern Nord direkt ...
255.000 €
Kaufpreis
55 m²
Wohnfläche
2
Zimmer
7
Privates Naturparadies in Biesenthal – 4.340 m² ...
Grundstück
16359 Biesenthal
Stell dir vor: Es ist Mai... Die alten Apfelbäume stehen in voller Blüte, das Wasser des Fließes glitzert in der Sonne und du stehst auf deinem eigenen halben Hektar Land… Suchst du einen Ort, an dem die Zeit stehen ...
98.000 €
Kaufpreis
4.340 m²
Grundstücksfläche
14
Traumhaus bezugsfrei nach Modernisierung
Haus
22851 Norderstedt
Dieses traumhafte Einfamilienhaus steht auf einem herrlich gelegenen Grundstück mit 454 Quadratmetern. Umgeben von Pferdewiesen und Feldern und mit nur einem direkten Nachbarn auf der linken Seite, können Sie hier die ...
599.900 €
Kaufpreis
115,27 m²
Wohnfläche
4
Zimmer
10
Sehr schöne drei Zimmer Wohnung mit zwei Balkonen und ...
Wohnung
51429 Bergisch Gladbach
Diese renovierte /sanierte Dreizimmerwohnung liegt im Erdgeschoss eines sehr gepflegten Wohnhauses; ein Tiefgaragenstellplatz gehört zur Wohnung. Die Wohnung besteht aus drei Zimmern, einer Küche, einem Bad und einem ...
1.255 €
Kaltmiete (netto)
93 m²
Wohnfläche
3
Zimmer
9
Schöne 4-Zimmer-Penthouse in Rodgau-Nieder-Roden – ...
Wohnung
63110 Rodgau
Dieses schöne 4-Zimmer-Penthouse in der Strandpromenade 6 beeindruckt durch seine moderne Architektur, seine außergewöhnliche Wohnlage und den unvergleichlichen Ausblick auf den Rodgauer See. Die Wohnung befindet sich ...
249.000 €
Kaufpreis
90 m²
Wohnfläche
4
Zimmer