Stilvolle Eigentumswohnung mit Einbauküche in exclusiver Stadtvilla in Hamburg-Rahlstedt

22143 Hamburg, Hamburg
770.000 € Kaufpreis
Wohnfläche
120,31 m²
Zimmer
5
Etage
0
Einbauküche
Balkon
Garten
Keller

Kaufpreis

Kaufpreis 770.000 €
Kaufpreis pro m²4864 €

Wohnfläche, Grundstück & Bausubstanz

Wohnfläche120,31 m²
Nutzfläche38 m²
Zimmer5
Stockwerk0
Baujahr1900
Verfügbar ab Keine Angabe
ZustandVoll Saniert

Beschreibung der Immobilie

Diese stilvolle Stadtvilla aus der Jahrhundertwende vereint modernen Wohnkomfort mit historischem Charme. Das ca. 432 m² große Anwesen befindet sich in Hamburg-Rahlstedt, einer begehrten Wohnlage der Stadt. Die gepflegte Villa besteht aus vier separat nutzbaren Einheiten und bietet vielseitige Nutzungsmöglichkeiten.

Zum Verkauf stehen zwei abgeschlossene Wohneinheiten (laut Teilungserklärung eine Einheit WE 01), die sich ideal zur Eigennutzung oder als attraktive Kapitalanlage eignen.

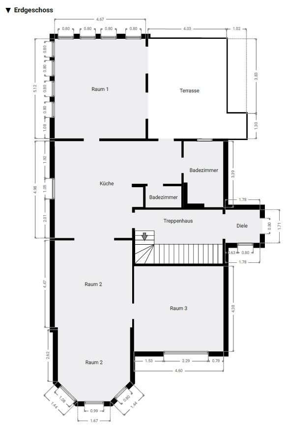
Die Wohneinheit im Erdgeschoss überzeugt mit ca.120m² Wohnfläche, einem großzügigen und lichtdurchfluteten Wohnzimmer, einer modernen Siemens-Einbauküche mit Kochinsel sowie einer angrenzenden hellen Veranda mit Blick ins Grüne. Ein geräumiges Schlafzimmer mit direktem Zugang zur sonnigen Terrasse bietet höchsten Wohnkomfort. Neben dem Masterbad mit Dusche und Badewanne gibt es zusätzlich ein Gäste-WC. Die Einheit ist zudem mit einer Alarmanlage sowie einer Trinkwasser-Enthärtungsanlage im Keller ausgestattet.

Die kleinere Einheit befindet sich im Souterrain der gepflegten Stadtvilla und verfügt über 38m². Die charmanten 2-Zimmer bieten einen separaten Zugang von außen, zwei gemütliche Räume, eine Pantryküche und ein modernes Badezimmer. Diese Einheit eignet sich ideal für Gewerbe oder Hobby.

Das Anwesen bietet zahlreiche weitere Highlights. Der gepflegte Hofbereich verfügt über einen Grillplatz mit gemauertem Grill, Backofen und Räucherkammer. Hinter dem Haus befinden sich 2 PKW-Stellplätze sowie die Zufahrt zur Garage mit einem weiteren Stellplatz. Der Hof und der Zugang zur Haustür sind gepflastert, im Bereich des Grillplatzes wurden Bruchsteine verlegt. 2019 wurde eine neue Gas-Zentralheizung eingebaut, um energieeffizientes Wohnen zu gewährleisten. Teile des Flurstückes 4525 sind als Bodendenkmal ausgewiesen. Aktuell sind alle Einheiten vermietet, was diese Immobilie auch für Kapitalanleger attraktiv macht.

Diese außergewöhnliche Stadtvilla vereint historische Architektur, modernen Wohnkomfort und eine erstklassige Lage in Hamburg-Rahlstedt. Nutzen Sie diese einmalige Gelegenheit und investieren Sie in ein stilvolles Zuhause mit Potenzial. Vereinbaren Sie noch heute einen persönlichen Besichtigungstermin


" frisch, engagiert, solide "

Die Künne Immobilien Gruppe ist professioneller Dienstleister der Immobilienbranche und steht Ihnen in den Bereichen Projektentwicklung, Verkauf, Vermietung, Verwaltung und Facility Management zur Verfügung.

Für weitere Informationen und Einblicke besuchen Sie unsere Homepage: www.kuenne-gruppe.de Sie wollen Ihre Immobilie verkaufen? Egal ob Mehrfamilien- oder Einfamilienhaus, Eigentumswohnung, Grundstück oder Neubau- bzw. Bauträgerprojekt. Wir vermitteln kompetent, transparent und zügig Ihre Immobilie, bundesweit.

Ausstattungsmerkmale

KücheEinbauküche
Bad2
Bad (Ausstattung)Dusche, Wanne, Fenster
BodenFliesen, Laminat
Balkone1
GartenJa
KellerJa

Energie

G
Energieeffizienzklasse G · 204.5 kWh/(m²*a)
EnergieausweistypBedarfsausweis
Ausstellungsdatum23. 04. 2021
Gültig bis23.04.2031
EnergieeffizienzklasseG
Endenergiebedarf204.5
Heizungsart Zentralheizung
Wesentlicher EnergieträgerGas
Energieträger/Befeuerung Gas

Karte wird geladen...
22143 Hamburg – Hamburg

Lage & Infrastruktur

Rahlstedt ist ein Stadtteil im Nordosten von Hamburg. Die Umgebung ist geprägt von bedeutenden Villen und zum Teil herrschaftlichen Häusern. In unmittelbarer Nähe zum Objekt befinden sich eine Kita und ein Gymnasium, sowie zahlreiche Einkaufsmöglichkeiten, Drogerien und Apotheken. Augrund der guten Vekehrsanbindung durch den nahe gelegenen Bahnhof Rahlstedt ist man in nur wenigen Minuten in der Hamburger Innenstadt.
Die Oldenfelder Straße ist eine Nebenstraße, die nicht hoch frequentiert ist. Die Terrassen und Balkone sind zur Rückseite und damit sehr ruhig gelegen. Gleiches gilt für den Grillplatz, der etwas versteckt liegt.

Sonstige Informationen

Alle Angaben sind ohne Gewähr und basieren ausschließlich auf Informationen, die uns von unserem Auftraggeber zur Verfügung gestellt wurden. Wir übernehmen keine Gewähr für die Vollständig, Richtigkeit und Aktualität dieser Angaben
0341 442 9566
Marko Künne Immobilien
Käthe-Kollwitz-Str. 58c, 04109 Leipzig
0341 442 9566

Weitere Angebote in Hamburg