Einziehen & Wohlfühlen -Einfamilienhaus -frisch renoviert- Carport, Balkon u. Terrasse sucht Familie
465.000 €
Kaufpreis
188 m²
Wohnfläche
202 m²
Nutzfläche
6
Zimmer
immobilien.de Nr.: 9478961
Objektnummer: 2127 7
Kaufpreis
| Kaufpreis | 465.000 € |
| Maklerprovision | 3,57 % des Kaufpreises inkl. ges. MwSt. (in Höhe von derzeit 19 %) |
| Stellplatz Carport Kaufpreis | 0 € |
Wohnfläche, Grundstück & Bausubstanz
| Wohnfläche | 188 m² |
| Nutzfläche | 202 m² |
| Grundstücksfläche | 644 m² |
| Zimmer | 6 |
| Baujahr | 2006 |
| Verfügbar ab | keine Angabe |
| Zustand | Gepflegt |
Energie
| Energieausweistyp | Bedarfsausweis |
| Gültig bis | 2035-09-11 |
| Baujahr (laut Energieausweis) | 2006 |
| Energieeffizienzklasse | C |
| Endenergiebedarf | 98.92 |
| Wesentlicher Energieträger | Gas |
| Energieträger/Befeuerung | Gas |
Beschreibung der Immobilie
Entdecken Sie dieses beeindruckende, renovierte Einfamilienhaus in Schönwölkau, das Ihnen und Ihrer Familie ein modernes und komfortables Zuhause bietet. Erbaut im Jahr 2006 in solider Massivbauweise, vereint diese Immobilie zeitgemäße Architektur mit hoher Bauqualität.
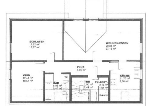
Dieses großzügige Haus steht auf einem ca. 644 m² großen Grundstück und bietet eine Wohnfläche von ca. 188 m² sowie eine Nutzfläche von ca. 202 m². Mit insgesamt sechs Zimmern, darunter vier geräumige Schlafzimmer und zwei Badezimmer, bietet das Haus ausreichend Platz für eine große Familie oder die Möglichkeit der separaten Nutzung durch zwei Haushalte.
Die durchdachte Raumaufteilung und die großzügige Zimmeranzahl ermöglichen eine Vielzahl von Nutzungsmöglichkeiten und gestalten jede Etage zu einem komfortablen Wohnbereich. Genießen Sie die Annehmlichkeiten und den Platz, den dieses Familien-Paradies bietet, und nutzen Sie die Gelegenheit, in einem attraktiven Wohnumfeld sesshaft zu werden.
Erleben Sie die perfekte Balance zwischen modernem Design und funktionalem Wohnraum in Schönwölkau. Dieses Einfamilienhaus ist mehr als nur ein Dach über dem Kopf – es ist Ihr zukünftiges Zuhause.
Dieses großzügige Haus steht auf einem ca. 644 m² großen Grundstück und bietet eine Wohnfläche von ca. 188 m² sowie eine Nutzfläche von ca. 202 m². Mit insgesamt sechs Zimmern, darunter vier geräumige Schlafzimmer und zwei Badezimmer, bietet das Haus ausreichend Platz für eine große Familie oder die Möglichkeit der separaten Nutzung durch zwei Haushalte.
Die durchdachte Raumaufteilung und die großzügige Zimmeranzahl ermöglichen eine Vielzahl von Nutzungsmöglichkeiten und gestalten jede Etage zu einem komfortablen Wohnbereich. Genießen Sie die Annehmlichkeiten und den Platz, den dieses Familien-Paradies bietet, und nutzen Sie die Gelegenheit, in einem attraktiven Wohnumfeld sesshaft zu werden.
Erleben Sie die perfekte Balance zwischen modernem Design und funktionalem Wohnraum in Schönwölkau. Dieses Einfamilienhaus ist mehr als nur ein Dach über dem Kopf – es ist Ihr zukünftiges Zuhause.
Ausstattungsmerkmale
| Anzahl der Etagen im Haus | 2 |
| Bad | 2 |
| Balkone | 1 |
| Terrassen | 1 |
| Carport | 2 |
Sie erhalten ein frisch renoviertes Massivhaus mit Blähtonwänden und Vollwärmeschutz, Fußbodenheizung sowie Fenster mit Rollläden.
Aktuell wird das Haus durch Therme mit Flüssiggas betrieben.
Die Umrüstung auf Luftwärmepumpe ist möglich.
Die Bäder verfügen über eine Badewanne, Dusche, Waschbecken und WC. In jeder Etage gibt es 4 Räume neben dem Bad und einem Flur.
Vom Wohnzimmer im Erdgeschoss gelangt man über die Terrasse in den Garten. Im Obergeschoss lädt ein herrlicher Balkon zum Verweilen ein. Der Balkon wurde im Jahr 2025 modernisiert.
Auf dem Grundstück gibt es noch ein Doppelcarport und ein Gartenhaus. Das Carport ist von 3 Seiten geschlossen, so dass Ihre Fahrzeuge sicher und geschützt parken. Im geräumigen Gartenhaus finden Ihre Gartengeräte und Fahrräder Platz.
Bisher war das Haus vermietet und wartet nun auf einen neuen Eigentümer. Das Haus wird aktuell renoviert und ist ab Frühjahr 2026 bezugsfertig.
Aktuell wird das Haus durch Therme mit Flüssiggas betrieben.
Die Umrüstung auf Luftwärmepumpe ist möglich.
Die Bäder verfügen über eine Badewanne, Dusche, Waschbecken und WC. In jeder Etage gibt es 4 Räume neben dem Bad und einem Flur.
Vom Wohnzimmer im Erdgeschoss gelangt man über die Terrasse in den Garten. Im Obergeschoss lädt ein herrlicher Balkon zum Verweilen ein. Der Balkon wurde im Jahr 2025 modernisiert.
Auf dem Grundstück gibt es noch ein Doppelcarport und ein Gartenhaus. Das Carport ist von 3 Seiten geschlossen, so dass Ihre Fahrzeuge sicher und geschützt parken. Im geräumigen Gartenhaus finden Ihre Gartengeräte und Fahrräder Platz.
Bisher war das Haus vermietet und wartet nun auf einen neuen Eigentümer. Das Haus wird aktuell renoviert und ist ab Frühjahr 2026 bezugsfertig.
Sonstige Informationen
Machen Sie sich ein eigenes Bild und lassen Sie sich von dem Angebot überzeugen. Kontaktieren uns unter 0341/124 78 15.
Weitere ausführliche Details besprechen wir gern persönlich und vereinbaren einen Besichtigungstermin mit Ihnen.
Weitere ausführliche Details besprechen wir gern persönlich und vereinbaren einen Besichtigungstermin mit Ihnen.
Karte wird geladen...
Objektstandort
04509 Schönwölkau
Lage & Infrastruktur
Objektstandort
04509 Schönwölkau
Die zu Nordsachsen gehörende Ortschaft ist eine Gemeinde im Kreis Delitzsch-Eilenburg mit hervorragender Anbindung an Leipzig ( ca. 17 km ), Kurstadt Bad Düben ( ca. 15 km ) über die B2; Eilenburg ( ca. 10 km ) und Delitzsch (ca.12 km ).
Der OT Wölkau als einer von 11 Ortsteilen der Gemeinde Schönwölkau verfügt als einzige Ortschaft über eine Grundschule mit Computerkabinett, Kita, Arzt, 2 Sportplätze, Sporthalle, 2 Angelseen, Badesee mit Einrichtungen wie Grillplätze, Volleyballplatz, Spielplatz, überdachten Sitzgruppen, Tischtennisplatte uvm..Die berühmte Patronatskirche mit Openair-Konzerten und das Barockschloss mit Teich runden das Bild des nördlich von Leipzig gelegenen, mittlerweile sehr begehrten Wohnstandortes ab. Die wachsende Nachfrage, der Zuzug junger Familien mit Kindern als auch vieler Leipziger bestätigen die Wohnqualität in dieser Region. Die reizvolle, waldreiche Umgebung lädt zu ausgiebigen Radtouren in die Dübener Heide ein. Mehrere Pferdehöfe lassen das Herz von Reitern und Pferdeliebhabern höher schlagen. Ein Leben wie im Urlaub, fernab der Hektik und der Wirtschaftsmetropole Leipzig doch so nah, ca. 15 min. zum Sachsenpark und dem Wirtschaftsschwerpunkt im Leipziger Norden mit den Standorten von BMW, Porsche, dem Güterverkehrszentrum sowie dem Flughafen Leipzig-Halle und den Autobahnanbindungen A14 und A4.
Umfassende Versorgungseinrichtungen wie Penny, Apotheke, Getränkemarkt, Bäcker/Fleischer, Blumen, Reisebüro, Sparkasse befinden sind im nahegelegenem Ort Krostitz, eine wöchentlich zweimalige mobile Versorgung von Bäcker und Fleischer sichern die Belieferung im Ort.
Der OT Wölkau als einer von 11 Ortsteilen der Gemeinde Schönwölkau verfügt als einzige Ortschaft über eine Grundschule mit Computerkabinett, Kita, Arzt, 2 Sportplätze, Sporthalle, 2 Angelseen, Badesee mit Einrichtungen wie Grillplätze, Volleyballplatz, Spielplatz, überdachten Sitzgruppen, Tischtennisplatte uvm..Die berühmte Patronatskirche mit Openair-Konzerten und das Barockschloss mit Teich runden das Bild des nördlich von Leipzig gelegenen, mittlerweile sehr begehrten Wohnstandortes ab. Die wachsende Nachfrage, der Zuzug junger Familien mit Kindern als auch vieler Leipziger bestätigen die Wohnqualität in dieser Region. Die reizvolle, waldreiche Umgebung lädt zu ausgiebigen Radtouren in die Dübener Heide ein. Mehrere Pferdehöfe lassen das Herz von Reitern und Pferdeliebhabern höher schlagen. Ein Leben wie im Urlaub, fernab der Hektik und der Wirtschaftsmetropole Leipzig doch so nah, ca. 15 min. zum Sachsenpark und dem Wirtschaftsschwerpunkt im Leipziger Norden mit den Standorten von BMW, Porsche, dem Güterverkehrszentrum sowie dem Flughafen Leipzig-Halle und den Autobahnanbindungen A14 und A4.
Umfassende Versorgungseinrichtungen wie Penny, Apotheke, Getränkemarkt, Bäcker/Fleischer, Blumen, Reisebüro, Sparkasse befinden sind im nahegelegenem Ort Krostitz, eine wöchentlich zweimalige mobile Versorgung von Bäcker und Fleischer sichern die Belieferung im Ort.
Kontaktanfrage senden
Über den Anbieter
Immobilien Kompetenz Mitteldeutschland eG
An der Alten Mühle 1
04356 Leipzig
Kontakt
| Telefon | 00493411247815 |
| Fax | 00493411247823 |
Ansprechpartner/in
Frau Jenny Fengler