Renditeobjekt >6%! Mehrfamilienhaus mit weiterem Ausbaupotenzial rd. 350 m2
799.000 €
Kaufpreis
443 m²
Wohnfläche
15
Zimmer
immobilien.de Nr.: 9478834
Objektnummer: 422876
Dateien
Kaufpreis
| Kaufpreis | 799.000 € |
| Maklerprovision | keine Provision, courtagefrei |
Wohnfläche, Grundstück & Bausubstanz
| Wohnfläche | 443 m² |
| Grundstücksfläche | 1.079 m² |
| Zimmer | 15 |
| Baujahr | 1990 |
| Verfügbar ab | sofort |
| Zustand | Teil Vollrenovierungsbed |
Energie
| Energieausweistyp | Bedarfsausweis |
| Energieeffizienzklasse | F |
| Endenergiebedarf | 168 |
| Heizungsart | Zentralheizung |
| Energieträger/Befeuerung | Öl |
Beschreibung der Immobilie
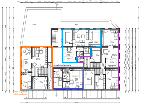
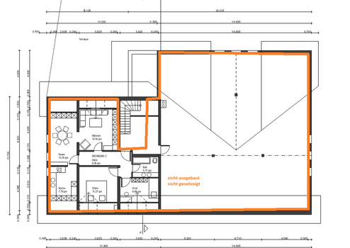
Die aktuelle Kaltmiete beträgt rund 43.000 € im Jahr. Eine leerstehende Wohnung wird nach der Renovierung die Kaltmiete auf rund 50.000 € erhöhen.
Vorabinfo: Die Gewerbeeinheit(ca. 55 m) erscheint nicht in der angegebenen Wohnfläche.
Dieses Mehrfamilienhaus (vermutlich Baujahr ca. 1900; Anbau vermutlich ca. 1990) mit fünf Wohneinheiten und einer vermieteten Gewerbeeinheit stellt eine attraktive Investmentchance mit laufendem Cashflow und erheblichem Entwicklungspotenzial dar.
Aktuell sind vier Wohnungen vermietet, eine Einheit leerstehend (eine davon ab Februar verfügbar). Die derzeitige Jahreskaltmiete beläuft sich auf ca. 43.000 € und bietet bereits eine solide Basisrendite.
Ein zentrales Highlight für Investoren ist die unverbindlich geschätzte Ausbaureserve von ca. 350 m², die – vorbehaltlich behördlicher Genehmigungen – die Schaffung weiterer Wohneinheiten und damit eine signifikante Steigerung der Mieteinnahmen und des Objektwertes ermöglicht.
Das Objekt eignet sich ideal für Buy-and-Hold-Strategien mit langfristigem Cashflow-Fokus ebenso wie für Fix-and-Flip-Konzepte mit klarer Exit-Option.
Durch gezielte Renovierungs- und Optimierungsmaßnahmen lässt sich das vorhandene Ertragspotenzial kurzfristig heben und langfristig ausbauen.
Der bauliche Zustand ist insgesamt solide, teilweise ist ein sofortiges Bewohnen möglich, jedoch besteht Renovierungsbedarf, der aktiven Investoren Raum zur Wertschöpfung bietet.
Die Fenster sind teils als Kunststofffenster mit 2-fach-Verglasung, teils als Holzfenster ausgeführt. Die Heizungsanlage wurde 2018 erneuert und bildet eine gute technische Grundlage.
Die in den Bildern dargestellten Grundrisse dienen lediglich als nicht verbindlicher Plansatz.
Insgesamt handelt es sich um ein entwicklungsfähiges Renditeobjekt mit laufenden Einnahmen, Leerstand zur sofortigen Optimierung sowie erheblicher Ausbaureserve – ideal für Investoren mit Weitblick und Vision.
Vorabinfo: Die Gewerbeeinheit(ca. 55 m) erscheint nicht in der angegebenen Wohnfläche.
Dieses Mehrfamilienhaus (vermutlich Baujahr ca. 1900; Anbau vermutlich ca. 1990) mit fünf Wohneinheiten und einer vermieteten Gewerbeeinheit stellt eine attraktive Investmentchance mit laufendem Cashflow und erheblichem Entwicklungspotenzial dar.
Aktuell sind vier Wohnungen vermietet, eine Einheit leerstehend (eine davon ab Februar verfügbar). Die derzeitige Jahreskaltmiete beläuft sich auf ca. 43.000 € und bietet bereits eine solide Basisrendite.
Ein zentrales Highlight für Investoren ist die unverbindlich geschätzte Ausbaureserve von ca. 350 m², die – vorbehaltlich behördlicher Genehmigungen – die Schaffung weiterer Wohneinheiten und damit eine signifikante Steigerung der Mieteinnahmen und des Objektwertes ermöglicht.
Das Objekt eignet sich ideal für Buy-and-Hold-Strategien mit langfristigem Cashflow-Fokus ebenso wie für Fix-and-Flip-Konzepte mit klarer Exit-Option.
Durch gezielte Renovierungs- und Optimierungsmaßnahmen lässt sich das vorhandene Ertragspotenzial kurzfristig heben und langfristig ausbauen.
Der bauliche Zustand ist insgesamt solide, teilweise ist ein sofortiges Bewohnen möglich, jedoch besteht Renovierungsbedarf, der aktiven Investoren Raum zur Wertschöpfung bietet.
Die Fenster sind teils als Kunststofffenster mit 2-fach-Verglasung, teils als Holzfenster ausgeführt. Die Heizungsanlage wurde 2018 erneuert und bildet eine gute technische Grundlage.
Die in den Bildern dargestellten Grundrisse dienen lediglich als nicht verbindlicher Plansatz.
Insgesamt handelt es sich um ein entwicklungsfähiges Renditeobjekt mit laufenden Einnahmen, Leerstand zur sofortigen Optimierung sowie erheblicher Ausbaureserve – ideal für Investoren mit Weitblick und Vision.
Ausstattungsmerkmale
| Küche | Einbauküche |
| Bad | Dusche |
| Boden | Fliesen, Laminat |
| Balkone | 1 |
| Terrassen | 1 |
| Keller |
Balkon, Terrasse, Keller, Duschbad, Einbauküche, Gäste-WC, Laminat, Fliesen
Sonstige Informationen
Heizungsart: Zentralheizung
Energieträger: Öl
Bitte beachten Sie, dass die Antwortdauer ca. 2 Tage betragen kann. Gerne kann ein Besichtungstermin vereinbart werden.
Makleranfragen nicht erwünscht. Nach § 7 UWG sind unaufgeforderte Kontaktaufnahmen durch Makler ohne ausdrückliche Einwilligung des Empfängers verboten!
ohne-makler (OM) ist weder Anbieter noch Vermittler der Immobilie. OM betreibt eine Plattform für Immobilieneigentümer, die unter anderem die gleichzeitige Veröffentlichung einzelner Inserate auf mehreren Immobilienportalen ermöglicht. Die Inhalte dieser Inserate werden ausschließlich von Dritten verantwortet. Für die Richtigkeit, Vollständigkeit oder Rechtmäßigkeit der Angaben übernimmt OM keine Haftung. Hinweise auf mögliche Rechtsverstöße können jederzeit gemeldet werden und werden nach Prüfung umgehend bearbeitet.
Energieträger: Öl
Bitte beachten Sie, dass die Antwortdauer ca. 2 Tage betragen kann. Gerne kann ein Besichtungstermin vereinbart werden.
Makleranfragen nicht erwünscht. Nach § 7 UWG sind unaufgeforderte Kontaktaufnahmen durch Makler ohne ausdrückliche Einwilligung des Empfängers verboten!
ohne-makler (OM) ist weder Anbieter noch Vermittler der Immobilie. OM betreibt eine Plattform für Immobilieneigentümer, die unter anderem die gleichzeitige Veröffentlichung einzelner Inserate auf mehreren Immobilienportalen ermöglicht. Die Inhalte dieser Inserate werden ausschließlich von Dritten verantwortet. Für die Richtigkeit, Vollständigkeit oder Rechtmäßigkeit der Angaben übernimmt OM keine Haftung. Hinweise auf mögliche Rechtsverstöße können jederzeit gemeldet werden und werden nach Prüfung umgehend bearbeitet.
Karte wird geladen...
Objektstandort
Ottobeurer Straße 17
87733 Markt Rettenbach
- Bayern
Lage & Infrastruktur
Objektstandort
Ottobeurer Straße 17
87733 Markt Rettenbach
- Bayern
Das Objekt befindet sich in zentraler Lage von Markt Rettenbach (87733). Alle Einrichtungen des täglichen Bedarfs wie Bäcker, Metzger, Lebensmittelmarkt, Arzt, Bank, Kindergarten sowie eine Bushaltestelle sind bequem fußläufig erreichbar.
Gleichzeitig ist man in wenigen Minuten im Grünen und genießt die ruhige, ländliche Umgebung des Allgäus.
Die Nähe zu Ottobeuren sowie die Lage zwischen Kempten, Memmingen und Mindelheim machen den Standort besonders attraktiv. Die Autobahn A96 ist schnell erreichbar und sorgt für eine gute regionale und überregionale Anbindung.
Das Haus ist mit seinen Balkonen nach Süden ausgerichtet und bietet dadurch viel Sonne und eine angenehme Wohnatmosphäre.
Infrastruktur (im Umkreis von 5 km):
Apotheke, Lebensmittel-Discount, Allgemeinmediziner, Kindergarten, Grundschule, Hauptschule, Realschule, Gymnasium, Gesamtschule, Öffentliche Verkehrsmittel
Gleichzeitig ist man in wenigen Minuten im Grünen und genießt die ruhige, ländliche Umgebung des Allgäus.
Die Nähe zu Ottobeuren sowie die Lage zwischen Kempten, Memmingen und Mindelheim machen den Standort besonders attraktiv. Die Autobahn A96 ist schnell erreichbar und sorgt für eine gute regionale und überregionale Anbindung.
Das Haus ist mit seinen Balkonen nach Süden ausgerichtet und bietet dadurch viel Sonne und eine angenehme Wohnatmosphäre.
Infrastruktur (im Umkreis von 5 km):
Apotheke, Lebensmittel-Discount, Allgemeinmediziner, Kindergarten, Grundschule, Hauptschule, Realschule, Gymnasium, Gesamtschule, Öffentliche Verkehrsmittel
Kontaktanfrage senden
Über den Anbieter
OM PropTech GmbH
Humboldtstraße 25a
21509 Glinde
Kontakt
| Telefon | - |
| Fax | - |
| Website | www.ohne-makler.net |
Ansprechpartner/in
Privat vom Eigentümer