Maisonette-Traum mit Sauna und flexibler Teilungsoption

50259 Pulheim, Nordrhein-Westfalen
Frei ab: nach Absprache
945.000 € Kaufpreis
Wohnfläche
240 m²
Zimmer
5
Etage
1
Einbauküche
Balkon
Terrasse
Stellplatz

Kaufpreis

Kaufpreis 945.000 €
Hausgeld450 €
Maklerprovisionkeine Provision, courtagefrei

Wohnfläche, Grundstück & Bausubstanz

Wohnfläche240 m²
Zimmer5
Etagen2
Stockwerk1
Baujahr2001
Verfügbar ab nach Absprache
ZustandGepflegt

Beschreibung der Immobilie

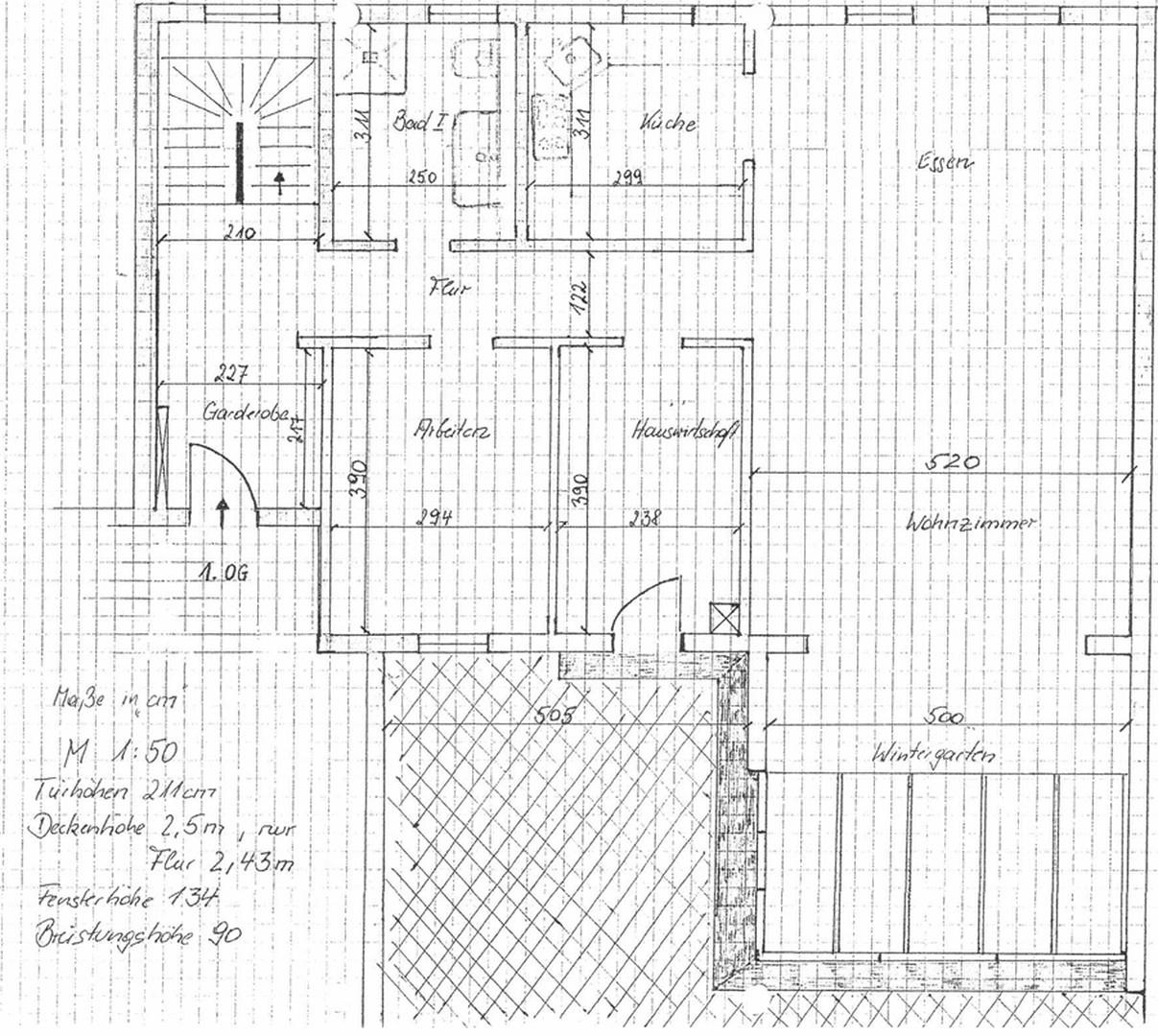
Zum Verkauf steht eine außergewöhnliche Maisonette-Wohnung, die mit ca. 240 m² Wohnfläche und einer durchdachten Raumaufteilung höchste Ansprüche an modernes Wohnen erfüllt.

Herzstück der Immobilie ist das weitläufige Wohn- und Esszimmer, an das sich ein lichtdurchfluteter Wintergarten mit automatischer Beschattung nahtlos anschließt (ca. 65m²). Die erst in 2024 eingebaute hochwertige Markenküche fügt sich perfekt in das offene Wohnkonzept ein.

Wellness-Liebhaber finden in der privaten Elternsuite mit direkt angeschlossenem Bad und integrierter Sauna und Klimaanlage ihren idealen Rückzugsort. Zwei große Kinderzimmer sowie ein separates Büro bieten zudem reichlich Platz für Familie und Home-Office.

Ein besonderes Highlight ist die ca. 30 m² große Terrasse mit Markise, die direkt über den praktischen Hauswirtschaftsraum und den Wintergarten zugänglich ist. Die gesamte Wohnung wird über eine komfortable Fußbodenheizung beheizt und bietet durch den Dachboden, sowie einen separaten Heizungsraum außergewöhnlich viel zusätzlichen Stauraum. Ein überdachter Stellplatz rundet das Angebot ab.

Besonders attraktiv für Visionäre: Die Wohnung ist architektonisch so konzipiert, dass sie bei Bedarf in zwei separate Einheiten geteilt werden kann. Die Lage kombiniert erstklassige Infrastruktur mit idealer Pendler-Anbindung. Schulen, Kindergärten und Geschäfte befinden sich in direkter Nachbarschaft und der Bahnhof ist bequem zu Fuß erreichbar – von dort aus sind Sie in nur 12 Minuten am Kölner Hauptbahnhof. Eine Immobilie, die Luxus, Funktionalität und eine erstklassige Lage perfekt vereint.

Verfügbar nach Absprache.

Von Makleranfragen bitten wir abzusehen!

Ausstattungsmerkmale

KücheEinbauküche
Bad3
Bad (Ausstattung)Dusche, Wanne
BodenFliesen, Kunststoff
Balkone0
Terrassen1
Carport1
Terrasse, Wintergarten, Vollbad, Duschbad, Sauna, Einbauküche, Gäste-WC, Fliesen, Sonstiges (s. Text)

Bemerkungen:
Fußbodenheizung, große Sonnenterrasse, Elternsuite mit Klimaanlage, drei Badezimmer, Sauna, kontrollierte Wohnraumlüftung, hochwertiger Einbauschrank im Elternschlafzimmer, Fußböden mit exklusivem Feinsteinzeug und Vinyl, Wintergarten mit elektrischer Beschattung, Terrasse mit Markise, Strom - und Wasseranschluss

Energie

Heizungsart Fußbodenheizung
Energieträger/Befeuerung Gas

Karte wird geladen...
50259 Pulheim – Nordrhein-Westfalen

Lage & Infrastruktur

Pulheim, als Teil des Rhein-Erft-Kreises, bietet eine gute Infrastruktur mit zahlreichen Einkaufsmöglichkeiten, Ärzten und Schulen. Die Anbindung an den öffentlichen Nahverkehr ist durch diverse Buslinien und die Nähe zu Bahnhöfen gewährleistet, was eine gute Erreichbarkeit von Köln und anderen umliegenden Städten ermöglicht. Zahlreiche Grünflächen und Parks in und um Pulheim laden zu Freizeitaktivitäten im Freien ein.
Infrastruktur (im Umkreis von 5 km):
Apotheke, Lebensmittel-Discount, Allgemeinmediziner, Kindergarten, Grundschule, Hauptschule, Realschule, Gymnasium, Öffentliche Verkehrsmittel

Sonstige Informationen

Heizungsart: Fußbodenheizung
Energieträger: Gas
Energieausweis nicht vorhanden

Das Haus hat keinen Aufzug, jedoch bietet das große Treppenhaus die Möglichkeit diesen ggfs. einzubauen.

Makleranfragen nicht erwünscht. Nach § 7 UWG sind unaufgeforderte Kontaktaufnahmen durch Makler ohne ausdrückliche Einwilligung des Empfängers verboten!

ohne-makler (OM) ist weder Anbieter noch Vermittler der Immobilie. OM betreibt eine Plattform für Immobilieneigentümer, die unter anderem die gleichzeitige Veröffentlichung einzelner Inserate auf mehreren Immobilienportalen ermöglicht. Die Inhalte dieser Inserate werden ausschließlich von Dritten verantwortet. Für die Richtigkeit, Vollständigkeit oder Rechtmäßigkeit der Angaben übernimmt OM keine Haftung. Hinweise auf mögliche Rechtsverstöße können jederzeit gemeldet werden und werden nach Prüfung umgehend bearbeitet.
Ansprechpartner/in: Privat von Jennifer Junge
OM PropTech GmbH
Humboldtstraße 25a, 21509 Glinde

Weitere Angebote in Pulheim