6 exklusive ETW in Schwäbisch Gmünd mit Förderdarlehen zu 2.03% und 45.000 € Zuschuss je Wohnung
327.660 €
Kaufpreis
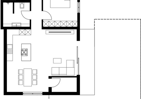
76,18 m²
Wohnfläche
3,5
Zimmer
immobilien.de Nr.: 9478201
Objektnummer: 392255
Dateien
Kaufpreis
| Kaufpreis | 327.660 € |
| Maklerprovision | keine Provision, courtagefrei |
| Stellplatz Freiplatz Kaufpreis | 16.000 € |
| Stellplatz Garage Kaufpreis | 16.000 € |
Wohnfläche, Grundstück & Bausubstanz
| Wohnfläche | 76,18 m² |
| Zimmer | 3,5 |
| Baujahr | 1953 |
| Verfügbar ab | nach Absprache |
| Zustand | Teil Vollsaniert |
Energie
| Energieausweistyp | Bedarfsausweis |
| Energieeffizienzklasse | A+ |
| Endenergiebedarf | 17 |
| Heizungsart | Fußbodenheizung |
| Energieträger/Befeuerung | Luft-Wärme-Pumpe |
Beschreibung der Immobilie
In Schwäbisch Gmünd entsteht durch eine umfassende Kernsanierung mit Erweiterungsanbau ein modernes Mehrfamilienhaus mit insgesamt sechs exklusiven Eigentumswohnungen.
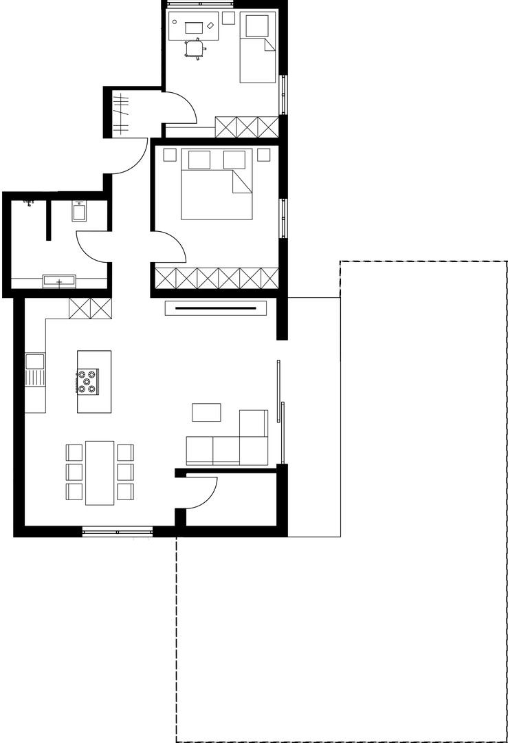
Die Wohnungen verfügen über 2,5 bis 3,5 Zimmer und Wohnflächen zwischen 62 und 92 m². Jede Einheit bietet einen Balkon oder eine Terrasse und eignet sich ideal sowohl für Eigennutzer als auch für Kapitalanleger.
Alle Wohnungen überzeugen durch helle, durchdachte Grundrisse, hochwertige Ausstattung sowie eine energieeffiziente Bauweise nach KfW-55-EE-Standard.
Attraktive Fördermöglichkeiten:
Je Wohnung ist ein zinsgünstiges KfW-Darlehen in Höhe von 150.000 € zu 2,03 % gesichert. Zusätzlich erhält jede Einheit einen Tilgungszuschuss von 45.000 €. Für Eigennutzer können darüber hinaus – vorbehaltlich Verfügbarkeit – weitere Fördermittel von bis zu 150.000 € beantragt werden. Dank dieser Konditionen sowie der überdurchschnittlichen Ausstattung bietet sich Ihnen ein außergewöhnliches Immobilienangebot mit hervorragendem Preis-Leistungs-Verhältnis.
Wohnungsübersicht:
2,5 Zimmer, EG/Souterrain, Terrasse, 62,06 m², Kaufpreis 263.276 €
3,5 Zimmer, EG, Terrasse mit Gartenanteil, 87,30 m², Kaufpreis 367.852 €
3,5 Zimmer, EG, Terrasse/Balkon, 76,18 m², Kaufpreis 327.660 €
3,5 Zimmer, 1. OG, Balkon, 86,55 m², Kaufpreis 372.208 €
3,5 Zimmer, 1. OG, Balkon, 71,02 m², Kaufpreis 303.494 €
3,5 Zimmer, DG, Dachterrasse, 92,11 m², Kaufpreis 390.353 €
Zusätzlich verfügbar: Stellplätze (12.000 €) oder Garagenplätze (16.000 €).
Die Fertigstellung ist für das 4. Quartal 2026 vorgesehen.
Objektzustand: Erstbezug nach Sanierung
Die Wohnungen verfügen über 2,5 bis 3,5 Zimmer und Wohnflächen zwischen 62 und 92 m². Jede Einheit bietet einen Balkon oder eine Terrasse und eignet sich ideal sowohl für Eigennutzer als auch für Kapitalanleger.
Alle Wohnungen überzeugen durch helle, durchdachte Grundrisse, hochwertige Ausstattung sowie eine energieeffiziente Bauweise nach KfW-55-EE-Standard.
Attraktive Fördermöglichkeiten:
Je Wohnung ist ein zinsgünstiges KfW-Darlehen in Höhe von 150.000 € zu 2,03 % gesichert. Zusätzlich erhält jede Einheit einen Tilgungszuschuss von 45.000 €. Für Eigennutzer können darüber hinaus – vorbehaltlich Verfügbarkeit – weitere Fördermittel von bis zu 150.000 € beantragt werden. Dank dieser Konditionen sowie der überdurchschnittlichen Ausstattung bietet sich Ihnen ein außergewöhnliches Immobilienangebot mit hervorragendem Preis-Leistungs-Verhältnis.
Wohnungsübersicht:
2,5 Zimmer, EG/Souterrain, Terrasse, 62,06 m², Kaufpreis 263.276 €
3,5 Zimmer, EG, Terrasse mit Gartenanteil, 87,30 m², Kaufpreis 367.852 €
3,5 Zimmer, EG, Terrasse/Balkon, 76,18 m², Kaufpreis 327.660 €
3,5 Zimmer, 1. OG, Balkon, 86,55 m², Kaufpreis 372.208 €
3,5 Zimmer, 1. OG, Balkon, 71,02 m², Kaufpreis 303.494 €
3,5 Zimmer, DG, Dachterrasse, 92,11 m², Kaufpreis 390.353 €
Zusätzlich verfügbar: Stellplätze (12.000 €) oder Garagenplätze (16.000 €).
Die Fertigstellung ist für das 4. Quartal 2026 vorgesehen.
Objektzustand: Erstbezug nach Sanierung
Ausstattungsmerkmale
| Inserat befindet sich im Stockwerk | 0 |
| Balkone | 1 |
| Terrassen | 1 |
| Garage/Stellplätze | 3 |
| Keller |
Balkon, Terrasse, Keller
Bemerkungen:
- Fußbodenheizung in allen Wohnräumen
- Dezentrale Lüftungsanlage mit Wärmerückgewinnung
- 3-fach verglaste Fenster mit elektrischen Rollläden
- Großzügige Balkone oder Terrassen
- hochwertige, flächenbündige Türzargen mit Drückergarnitur
- Dimmbare LED Beleuchtung
- Designelemente
- Hochwertige Design-Vinylböden
- Moderne Bäder mit bodengleichen Duschen, Designspiegel und großformatigen Fliesen
- Photovoltaikanlage vorbereitet
- individuelles Farbkonzept
- intelligente Elektroinstallation mit Gira-Schaltern
- Luft-Wärmepumpe
- optional Smart-Home-System (Loxone)
Bemerkungen:
- Fußbodenheizung in allen Wohnräumen
- Dezentrale Lüftungsanlage mit Wärmerückgewinnung
- 3-fach verglaste Fenster mit elektrischen Rollläden
- Großzügige Balkone oder Terrassen
- hochwertige, flächenbündige Türzargen mit Drückergarnitur
- Dimmbare LED Beleuchtung
- Designelemente
- Hochwertige Design-Vinylböden
- Moderne Bäder mit bodengleichen Duschen, Designspiegel und großformatigen Fliesen
- Photovoltaikanlage vorbereitet
- individuelles Farbkonzept
- intelligente Elektroinstallation mit Gira-Schaltern
- Luft-Wärmepumpe
- optional Smart-Home-System (Loxone)
Sonstige Informationen
Heizungsart: Fußbodenheizung
Energieträger: Luft-/Wasserwärme
Makleranfragen nicht erwünscht. Nach § 7 UWG sind unaufgeforderte Kontaktaufnahmen durch Makler ohne ausdrückliche Einwilligung des Empfängers verboten!
ohne-makler (OM) ist weder Anbieter noch Vermittler der Immobilie. OM betreibt eine Plattform für Immobilieneigentümer, die unter anderem die gleichzeitige Veröffentlichung einzelner Inserate auf mehreren Immobilienportalen ermöglicht. Die Inhalte dieser Inserate werden ausschließlich von Dritten verantwortet. Für die Richtigkeit, Vollständigkeit oder Rechtmäßigkeit der Angaben übernimmt OM keine Haftung. Hinweise auf mögliche Rechtsverstöße können jederzeit gemeldet werden und werden nach Prüfung umgehend bearbeitet.
Energieträger: Luft-/Wasserwärme
Makleranfragen nicht erwünscht. Nach § 7 UWG sind unaufgeforderte Kontaktaufnahmen durch Makler ohne ausdrückliche Einwilligung des Empfängers verboten!
ohne-makler (OM) ist weder Anbieter noch Vermittler der Immobilie. OM betreibt eine Plattform für Immobilieneigentümer, die unter anderem die gleichzeitige Veröffentlichung einzelner Inserate auf mehreren Immobilienportalen ermöglicht. Die Inhalte dieser Inserate werden ausschließlich von Dritten verantwortet. Für die Richtigkeit, Vollständigkeit oder Rechtmäßigkeit der Angaben übernimmt OM keine Haftung. Hinweise auf mögliche Rechtsverstöße können jederzeit gemeldet werden und werden nach Prüfung umgehend bearbeitet.
Karte wird geladen...
Objektstandort
73525 Schwäbisch Gmünd
- Baden-Württemberg
Lage & Infrastruktur
Objektstandort
73525 Schwäbisch Gmünd
- Baden-Württemberg
Das Objekt befindet sich in bevorzugter, zentrumsnaher Lage von Schwäbisch Gmünd. In wenigen Gehminuten erreichen Sie die Altstadt mit vielfältigen Einkaufsmöglichkeiten, Restaurants und kulturellen Angeboten. Schulen, Kindergärten, Ärzte und Freizeitmöglichkeiten sind ebenfalls in unmittelbarer Nähe vorhanden.
Schwäbisch Gmünd liegt idyllisch im Remstal, bietet aber gleichzeitig eine hervorragende Verkehrsanbindung in Richtung Stuttgart, Aalen und Ulm. Der Bahnhof ist Teil der IC-Linie Stuttgart–Nürnberg, zudem sind die Autobahnen A7 und A8 in rund 20 Minuten erreichbar.
Die Stadt selbst überzeugt mit historischem Flair, hoher Lebensqualität und einem breiten Freizeitangebot.
Infrastruktur (im Umkreis von 5 km):
Apotheke, Lebensmittel-Discount, Allgemeinmediziner, Kindergarten, Grundschule, Hauptschule, Realschule, Gymnasium, Gesamtschule, Öffentliche Verkehrsmittel
Schwäbisch Gmünd liegt idyllisch im Remstal, bietet aber gleichzeitig eine hervorragende Verkehrsanbindung in Richtung Stuttgart, Aalen und Ulm. Der Bahnhof ist Teil der IC-Linie Stuttgart–Nürnberg, zudem sind die Autobahnen A7 und A8 in rund 20 Minuten erreichbar.
Die Stadt selbst überzeugt mit historischem Flair, hoher Lebensqualität und einem breiten Freizeitangebot.
Infrastruktur (im Umkreis von 5 km):
Apotheke, Lebensmittel-Discount, Allgemeinmediziner, Kindergarten, Grundschule, Hauptschule, Realschule, Gymnasium, Gesamtschule, Öffentliche Verkehrsmittel
Kontaktanfrage senden
Kontakt
| Telefon | 07171 9594940 |
| Fax | - |
| Website | www.ohne-makler.net |
Ansprechpartner/in
Angebot von Novus Projektbau GmbH