Vorankündigung - Designhaus inkl. Grundstück am See
195.500 €
Kaufpreis
50 m²
Wohnfläche
3
Zimmer
immobilien.de Nr.: 9478138
Objektnummer: 431108
Kaufpreis
| Kaufpreis | 195.500 € |
| Maklerprovision | keine Provision, courtagefrei |
Wohnfläche, Grundstück & Bausubstanz
| Wohnfläche | 50 m² |
| Grundstücksfläche | 300 m² |
| Zimmer | 3 |
| Baujahr | 2026 |
| Verfügbar ab | 01.07.2026 |
| Zustand | Erstbezug |
Energie
| Energieausweistyp | Bedarfsausweis |
| Energieeffizienzklasse | A |
| Endenergiebedarf | 40 |
| Heizungsart | Fußbodenheizung |
| Energieträger/Befeuerung | Luft-Wärme-Pumpe |
Beschreibung der Immobilie
Vorankündigung:
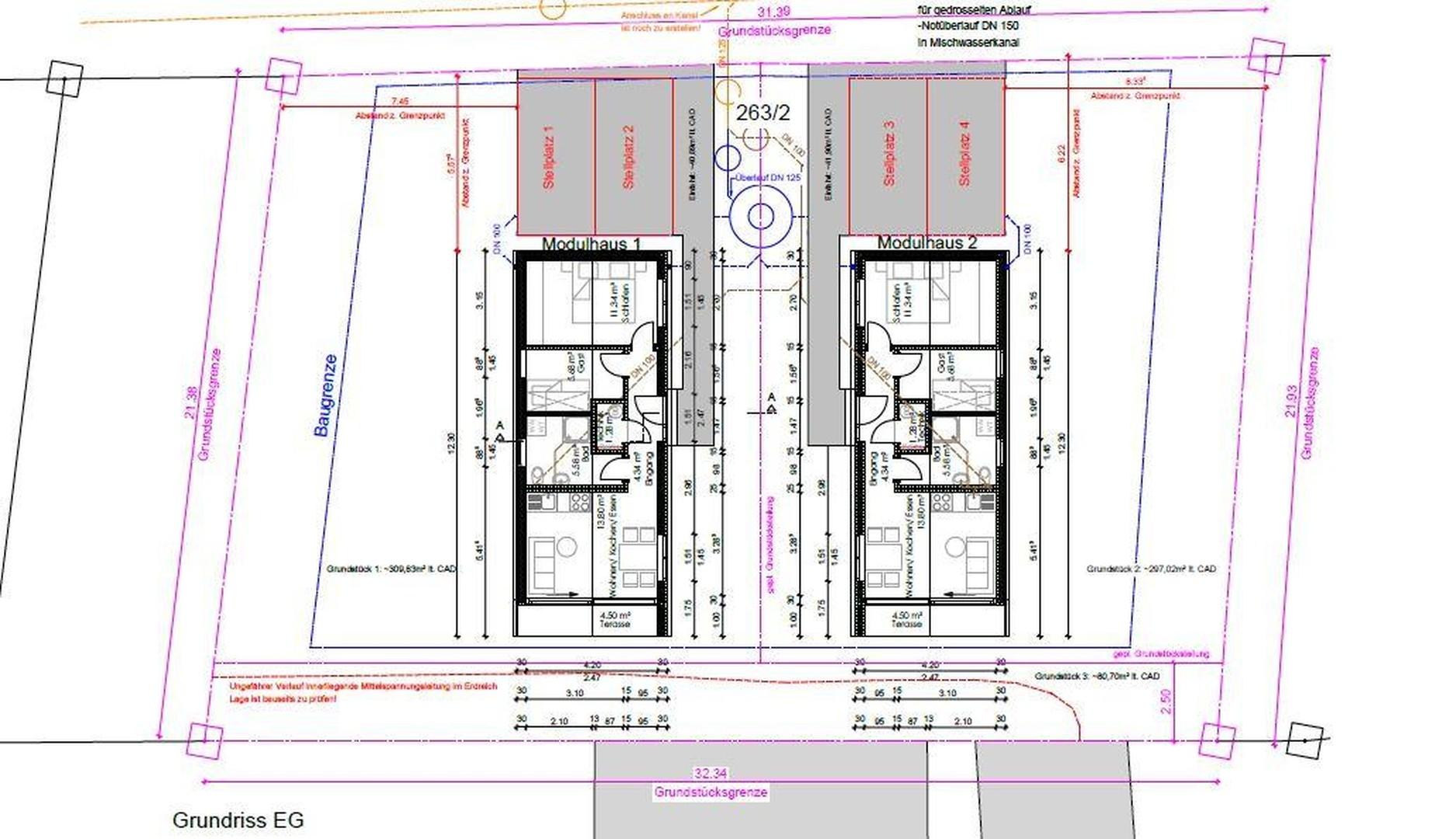
50 qm Design Fertighaus mit ca. 300 qm Grundstück am See in Bruck in der Oberpfalz.
Es sind 2 Fertighäuser geplant. Diese sind projektiert für Fertigstellung ca. Juni / Juli 2026. Es sind auch größere Wohnflächen möglich.
Die Grundstücke können auch ohne Fertighäuser erworben werden. Sollten Sie bereits über ein Grundstück verfügen, können Sie selbstverständlich unsere Fertighäuser auch ohne Grundstück erwerben.
Die Visualisierungen der Fertighäuser sind Beispiele. Die Fertighäuser können nach Ihren Wünschen gebaut und auf Wunsch auch mit Inneneinrichtung angeboten werden.
Der Kaufpreis von 195.500 Euro bezieht sich auf einen unverbindlichen Richtwert eines Fertighauses nach EH 55 (nach GEG) ohne unsere Leistungen, d.h. ohne besondere Designelemente, mit Standardausstattung, Standardfenster und Fußbodenheizung, ohne Inneneinrichtung, ohne Solaranlage und mit einer Grundstückgröße von ca. 300 qm in der oben beschriebenen Lage. Die Fertighäuser können auf den jew. Kundenwunsch angepasst werden und auch mit EH 40 ausgeliefert werden. Für weitere Details und konkrete Angebotspreise kontaktieren Sie uns gerne.
50 qm Design Fertighaus mit ca. 300 qm Grundstück am See in Bruck in der Oberpfalz.
Es sind 2 Fertighäuser geplant. Diese sind projektiert für Fertigstellung ca. Juni / Juli 2026. Es sind auch größere Wohnflächen möglich.
Die Grundstücke können auch ohne Fertighäuser erworben werden. Sollten Sie bereits über ein Grundstück verfügen, können Sie selbstverständlich unsere Fertighäuser auch ohne Grundstück erwerben.
Die Visualisierungen der Fertighäuser sind Beispiele. Die Fertighäuser können nach Ihren Wünschen gebaut und auf Wunsch auch mit Inneneinrichtung angeboten werden.
Der Kaufpreis von 195.500 Euro bezieht sich auf einen unverbindlichen Richtwert eines Fertighauses nach EH 55 (nach GEG) ohne unsere Leistungen, d.h. ohne besondere Designelemente, mit Standardausstattung, Standardfenster und Fußbodenheizung, ohne Inneneinrichtung, ohne Solaranlage und mit einer Grundstückgröße von ca. 300 qm in der oben beschriebenen Lage. Die Fertighäuser können auf den jew. Kundenwunsch angepasst werden und auch mit EH 40 ausgeliefert werden. Für weitere Details und konkrete Angebotspreise kontaktieren Sie uns gerne.
Ausstattungsmerkmale
| Anzahl der Etagen im Haus | 1 |
| Bad | 1 |
| Bad | Dusche, Wanne |
| Boden | Fliesen, Laminat |
| Balkone | 0 |
| Garten | |
| Terrassen | 1 |
| Barrierefrei | |
| Carport | 1 |
Terrasse, Garten, Vollbad, Duschbad, Barrierefrei, Laminat, Fliesen
Bemerkungen:
Größe und Ausstattung kann nach Kundenwunsch angepasst werden.
Bemerkungen:
Größe und Ausstattung kann nach Kundenwunsch angepasst werden.
Sonstige Informationen
Heizungsart: Fußbodenheizung
Energieträger: Luft-/Wasserwärme
Impressum:
MeinDesignhaus powered by DEGOS Immobilien Projektentwicklung.
DEGOS Immobilien Projektentwicklung ist eine Zweigniederlassung der DEGOS Dental GmbH, Bayernstr. 10a, 93128 Regenstauf.
Makleranfragen nicht erwünscht. Nach § 7 UWG sind unaufgeforderte Kontaktaufnahmen durch Makler ohne ausdrückliche Einwilligung des Empfängers verboten!
ohne-makler (OM) ist weder Anbieter noch Vermittler der Immobilie. OM betreibt eine Plattform für Immobilieneigentümer, die unter anderem die gleichzeitige Veröffentlichung einzelner Inserate auf mehreren Immobilienportalen ermöglicht. Die Inhalte dieser Inserate werden ausschließlich von Dritten verantwortet. Für die Richtigkeit, Vollständigkeit oder Rechtmäßigkeit der Angaben übernimmt OM keine Haftung. Hinweise auf mögliche Rechtsverstöße können jederzeit gemeldet werden und werden nach Prüfung umgehend bearbeitet.
Energieträger: Luft-/Wasserwärme
Impressum:
MeinDesignhaus powered by DEGOS Immobilien Projektentwicklung.
DEGOS Immobilien Projektentwicklung ist eine Zweigniederlassung der DEGOS Dental GmbH, Bayernstr. 10a, 93128 Regenstauf.
Makleranfragen nicht erwünscht. Nach § 7 UWG sind unaufgeforderte Kontaktaufnahmen durch Makler ohne ausdrückliche Einwilligung des Empfängers verboten!
ohne-makler (OM) ist weder Anbieter noch Vermittler der Immobilie. OM betreibt eine Plattform für Immobilieneigentümer, die unter anderem die gleichzeitige Veröffentlichung einzelner Inserate auf mehreren Immobilienportalen ermöglicht. Die Inhalte dieser Inserate werden ausschließlich von Dritten verantwortet. Für die Richtigkeit, Vollständigkeit oder Rechtmäßigkeit der Angaben übernimmt OM keine Haftung. Hinweise auf mögliche Rechtsverstöße können jederzeit gemeldet werden und werden nach Prüfung umgehend bearbeitet.
Karte wird geladen...
Objektstandort
92436 Bruck in der Oberpfalz
- Bayern
Lage & Infrastruktur
Objektstandort
92436 Bruck in der Oberpfalz
- Bayern
Seenahes Grundstück in Bruck in der Oberpfalz
Infrastruktur (im Umkreis von 5 km):
Apotheke, Lebensmittel-Discount, Allgemeinmediziner, Kindergarten, Grundschule, Hauptschule, Realschule, Gymnasium, Gesamtschule, Öffentliche Verkehrsmittel
Infrastruktur (im Umkreis von 5 km):
Apotheke, Lebensmittel-Discount, Allgemeinmediziner, Kindergarten, Grundschule, Hauptschule, Realschule, Gymnasium, Gesamtschule, Öffentliche Verkehrsmittel
Kontaktanfrage senden
Über den Anbieter
OM PropTech GmbH
Humboldtstraße 25a
21509 Glinde
Kontakt
| Telefon | - |
| Fax | - |
| Website | www.ohne-makler.net |
Ansprechpartner/in
Angebot von Roland Göken
Weitere Angebote des Anbieters
12
2Raumwohnung mit Wohnküche
Wohnung
58452 Witten
Diese Wohnung wird nur an maximal zwei Personen über 25 Jahren, die arbeiten, vermietet. Voraussetzung für einen Mietvertrag ist Berufstätig und Deutschsprachigkeit. Besichtigungen können nur Vormittags angeboten ...
500 €
Kaltmiete (netto)
65 m²
Wohnfläche
2
Zimmer
16
Reiheneckhaus für Handwerker direkt in 72348 Rosenfeld ...
Haus
72348 Rosenfeld
Verkaufe mein sanierungsbedürftiges Reiheneckhaus/Reihenhaus direkt in Rosenfeld, ohne Energieausweis (Ofenheizung und teilweise Elektroheizung). Das Objekt (Baujahr frühes 19. Jahrhundert) ist aktuell vermietet. ...
119.000 €
Kaufpreis
130 m²
Wohnfläche
7
Zimmer
16
PROVISIONSFREI: Hochwertig sanierte 3-Zi. Whg. im ...
Wohnung
10961 Berlin
Die einladende 3-Zimmer Wohnung wurde umfassend kernsaniert und befindet sich in ruhiger Lage im Herzen Kreuzbergs, dem Bergmannkiez. Die Wohnung verfügt über folgende Highlights: ✅ Erstbezug nach hochwertiger ...
439.900 €
Kaufpreis
70 m²
Wohnfläche
3
Zimmer
15
Townhouse-Maisonette mit Terrasse & Balkon im Winskiez ...
Wohnung
10405 Berlin
Diese außergewöhnliche Maisonettewohnung verbindet das Wohngefühl eines Townhouses mit der Ruhe eines grünen Innenhofs im Herzen des Prenzlauer Bergs. Die Wohnung wird über einen separaten Eingang im ersten Hinterhof ...
995.000 €
Kaufpreis
116 m²
Wohnfläche
3,5
Zimmer
20
5 Zimmer Wohnung in Berlin Mitte
Wohnung
10179 Berlin
360°-Rundgang: https://www.ohne-makler.net/panorama/434665/ Willkommen in dieser exklusiven 5-Zimmer-Neubauwohnung im 1. Obergeschoss eines modernen Mehrfamilienhauses in bester Lage von Berlin-Mitte. Die Wohnung wurde ...
995.000 €
Kaufpreis
130 m²
Wohnfläche
5
Zimmer