*Neubau* Doppelhaushälfte mit traumhaftem Garten mitten in Grenzach-Wyhlen
579.000 €
Kaufpreis
114 m²
Wohnfläche
4,5
Zimmer
immobilien.de Nr.: 9477637
Objektnummer: 431213
Kaufpreis
| Kaufpreis | 579.000 € |
| Maklerprovision | keine Provision, courtagefrei |
Wohnfläche, Grundstück & Bausubstanz
| Wohnfläche | 114 m² |
| Grundstücksfläche | 250 m² |
| Zimmer | 4,5 |
| Verfügbar ab | nach Absprache |
Beschreibung der Immobilie
Mitten im gewachsenen Ortskern von Grenzach-Wyhlen bietet sich eine außergewöhnliche Gelegenheit: Ein ruhig gelegenes Grundstück an der Klosterstraße 6, direkt hinter einem bestehenden Mehrfamilienhaus, mit einem großzügigen, privaten Garten – und einer bereits projektierten Doppelhaushälfte, die genau auf dieses Grundstück zugeschnitten ist.
Das Grundstück beherbergt heute noch ein altes Werkstattgebäude – ein letztes Zeugnis des ursprünglichen Ortscharakters. Das neu geplante Doppelhaus wird in ähnlichen Abmessungen entstehen und fügt sich damit harmonisch in das gewachsene Ortsbild ein. Der dahinterliegende Garten ist ruhig, grün und wirkt wie eine kleine Oase – mitten im Dorf, aber fernab von Lärm und Hektik.
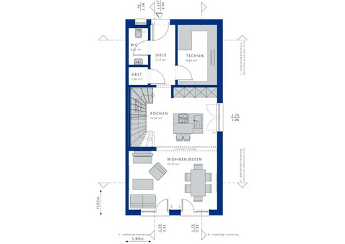
Die projektierte Doppelhaushälfte CELEBRATION 114 L SD 25 von Bien-Zenker wird schlüsselfertig nach Effizienzhaus-40-Standard errichtet – mit modernster Wärmepumpentechnik, Thermo-Wand mit Putzfassade, Dreifachverglasung und gedämmter Bodenplatte. Im Erdgeschoss erwarten Sie bodentiefe Fenster, eine großzügige Wohnküche, offener Ess-Wohnbereich sowie eine Gästetoilette. Das Dachgeschoss bietet zwei Kinderzimmer, ein großes Schlafzimmer mit Ankleidebereich und ein gemeinsames Bad. Planungswünsche können noch berücksichtigt werden.
Das Grundstück beherbergt heute noch ein altes Werkstattgebäude – ein letztes Zeugnis des ursprünglichen Ortscharakters. Das neu geplante Doppelhaus wird in ähnlichen Abmessungen entstehen und fügt sich damit harmonisch in das gewachsene Ortsbild ein. Der dahinterliegende Garten ist ruhig, grün und wirkt wie eine kleine Oase – mitten im Dorf, aber fernab von Lärm und Hektik.
Die projektierte Doppelhaushälfte CELEBRATION 114 L SD 25 von Bien-Zenker wird schlüsselfertig nach Effizienzhaus-40-Standard errichtet – mit modernster Wärmepumpentechnik, Thermo-Wand mit Putzfassade, Dreifachverglasung und gedämmter Bodenplatte. Im Erdgeschoss erwarten Sie bodentiefe Fenster, eine großzügige Wohnküche, offener Ess-Wohnbereich sowie eine Gästetoilette. Das Dachgeschoss bietet zwei Kinderzimmer, ein großes Schlafzimmer mit Ankleidebereich und ein gemeinsames Bad. Planungswünsche können noch berücksichtigt werden.
Ausstattungsmerkmale
| Küche | Einbauküche |
| Garten |
Garten, Einbauküche, Gäste-WC
Sonstige Informationen
Theoretisch könnte auch das gesamte 500m2-große Grundstück mit dem Werkstattgebäude kaufen und dieses ausbauen. Nähere Informationen erhalten Sie auf Anfrage.
Makleranfragen nicht erwünscht. Nach § 7 UWG sind unaufgeforderte Kontaktaufnahmen durch Makler ohne ausdrückliche Einwilligung des Empfängers verboten!
ohne-makler (OM) ist weder Anbieter noch Vermittler der Immobilie. OM betreibt eine Plattform für Immobilieneigentümer, die unter anderem die gleichzeitige Veröffentlichung einzelner Inserate auf mehreren Immobilienportalen ermöglicht. Die Inhalte dieser Inserate werden ausschließlich von Dritten verantwortet. Für die Richtigkeit, Vollständigkeit oder Rechtmäßigkeit der Angaben übernimmt OM keine Haftung. Hinweise auf mögliche Rechtsverstöße können jederzeit gemeldet werden und werden nach Prüfung umgehend bearbeitet.
Makleranfragen nicht erwünscht. Nach § 7 UWG sind unaufgeforderte Kontaktaufnahmen durch Makler ohne ausdrückliche Einwilligung des Empfängers verboten!
ohne-makler (OM) ist weder Anbieter noch Vermittler der Immobilie. OM betreibt eine Plattform für Immobilieneigentümer, die unter anderem die gleichzeitige Veröffentlichung einzelner Inserate auf mehreren Immobilienportalen ermöglicht. Die Inhalte dieser Inserate werden ausschließlich von Dritten verantwortet. Für die Richtigkeit, Vollständigkeit oder Rechtmäßigkeit der Angaben übernimmt OM keine Haftung. Hinweise auf mögliche Rechtsverstöße können jederzeit gemeldet werden und werden nach Prüfung umgehend bearbeitet.
Karte wird geladen...
Objektstandort
Klosterstr. 6
79639 Grenzach-Wyhlen
- Baden-Württemberg
Lage & Infrastruktur
Objektstandort
Klosterstr. 6
79639 Grenzach-Wyhlen
- Baden-Württemberg
Grenzach-Wyhlen liegt direkt an der Schweizer Grenze, nur wenige Minuten von Basel entfernt – ideal für Grenzgänger oder Pendler.
Die Bushaltestelle der Linie 38 befindet sich 5 Minuten zu Fuß entfernt und fährt direkt in die Basler Innenstadt.
Auch der Bahnhof ist fußläufig erreichbar und der nächste Autobahnanschluss ist auch nur wenige Minuten entfernt.
Einkaufsmöglichkeiten, eine Apotheke, Ärzte und Schulen befinden sich ebenfalls in unmittelbarer Nähe.
Infrastruktur (im Umkreis von 5 km):
Apotheke, Lebensmittel-Discount, Allgemeinmediziner, Kindergarten, Grundschule, Hauptschule, Realschule, Gymnasium, Öffentliche Verkehrsmittel
Die Bushaltestelle der Linie 38 befindet sich 5 Minuten zu Fuß entfernt und fährt direkt in die Basler Innenstadt.
Auch der Bahnhof ist fußläufig erreichbar und der nächste Autobahnanschluss ist auch nur wenige Minuten entfernt.
Einkaufsmöglichkeiten, eine Apotheke, Ärzte und Schulen befinden sich ebenfalls in unmittelbarer Nähe.
Infrastruktur (im Umkreis von 5 km):
Apotheke, Lebensmittel-Discount, Allgemeinmediziner, Kindergarten, Grundschule, Hauptschule, Realschule, Gymnasium, Öffentliche Verkehrsmittel
Kontaktanfrage senden
Über den Anbieter
OM PropTech GmbH
Humboldtstraße 25a
21509 Glinde
Kontakt
| Telefon | - |
| Fax | - |
| Website | www.ohne-makler.net |
Ansprechpartner/in
Privat von Caroline Dougoud
Weitere Angebote des Anbieters
2
Maisonette-Wohnung im Herzen von Mindelheim
Wohnung
87719 Mindelheim
Mitten im Herzen der Stadt, in der traditionsreichen Maximilianstraße, liegt dieses attraktive Objekt. Die Nachbarschaft bietet eine gelungene Mischung aus exklusiven Boutiquen, charmanten Cafés und abwechslungsreicher ...
590 €
Kaltmiete (netto)
54 m²
Wohnfläche
2
Zimmer
17
Mietwohnung WE2 Piesport - Neubau inkl. Einbauküche
Wohnung
54498 Piesport
Im malerischen Piesport, einer der größten Weinbaugemeinden an der Mosel, entsteht auf einem ca. 765 m² großen Areal ein modernes Mehrfamilienhaus, das sowohl architektonisch als auch nachhaltig überzeugt. Der ...
650 €
Kaltmiete (netto)
62,01 m²
Wohnfläche
1
Zimmer
24
Mietwohnung WE3 Piesport - Neubau inkl. Einbauküche
Wohnung
54498 Piesport
Im malerischen Piesport, einer der größten Weinbaugemeinden an der Mosel, entsteht auf einem ca. 765 m² großen Areal ein modernes Mehrfamilienhaus, das sowohl architektonisch als auch nachhaltig überzeugt. Der ...
855 €
Kaltmiete (netto)
81,45 m²
Wohnfläche
2
Zimmer
26
Exklusives Apartment * Blick auf Wallanlagen * Wohnen ...
Wohnung
28195 Bremen
Charmantes 1-Zimmer-Apartment in Bestlage – frisch renoviert, möbliert und bezugsfertig Diese frisch renovierte 1-Zimmer-Wohnung überzeugt durch ihre clevere Raumaufteilung und eine angenehme Wohnatmosphäre. Der ...
1.100 €
Warmmiete
34 m²
Wohnfläche
1
Zimmer
9
Hochwertige Eigentumswohnung in Kemptener Toplage
Büro / Praxen
87435 Kempten
Diese großzügige Praxis- bzw. Gewerbefläche vereint repräsentativen Altbaucharakter mit einer Lage und Ausstattung, die im Praxisalltag echten Mehrwert bieten. Edler grüner Naturmarmorboden, Deckenhöhen von rund 3,80 ...
735.000 €
Kaufpreis
187 m²
Gesamtfläche