Idyllisches, modernes Einfamilienhaus (5 Jahre) in Beeskow Stadt
380.000 €
Kaufpreis
107 m²
Wohnfläche
4
Zimmer
immobilien.de Nr.: 9476919
Objektnummer: 412647
Kaufpreis
| Kaufpreis | 380.000 € |
| Maklerprovision | keine Provision, courtagefrei |
Wohnfläche, Grundstück & Bausubstanz
| Wohnfläche | 107 m² |
| Grundstücksfläche | 920 m² |
| Zimmer | 4 |
| Baujahr | 2020 |
| Verfügbar ab | sofort |
| Zustand | Neuwertig |
Energie
| Energieausweistyp | Bedarfsausweis |
| Energieeffizienzklasse | A+ |
| Endenergiebedarf | 24 |
| Energieträger/Befeuerung | Elektro |
Beschreibung der Immobilie
Dieses moderne Einfamilienhaus mit Energieeffizienzklasse A+ und einer Sauna wurde 2021 fertiggestellt und befindet sich in einem neuwertigen, einladenden Zustand. Das Südwest gelegene Objekt, vereint hochwertige Ausstattung, ruhiges Wohnen und eine naturnahe Lage zwischen Spree und Wald. Die Kombination aus Nähe zur Natur und guter Anbindung macht dieses Haus zu einer attraktiven Wahl für Paare und kleine Familien, die Wert auf Qualität, Effizienz und Wohnkomfort legen. Die Spree ist in Sichtweite und nur wenige hundert Meter entfernt. Mehrere Badestellen sind bequem mit dem Fahrrad erreichbar. Die kalte Jahreszeit lässt sich mit der Sauna und dem Kamin besonders gemütlich genießen.
Der Außenbereich bietet vielfältige Nutzungsmöglichkeiten. Die großzügige Südwest-Terrasse schafft ideale Voraussetzungen für entspannte Stunden im Freien. Ergänzt wird das Grundstück durch ein Atelier in Holzbauweise, einen Schuppen, einen separaten Fahrradraum, eine Außenküche sowie ein Gewächshaus. Für Fahrzeuge stehen zwei Stellplätze bereit mit der Möglichkeit, ein Elektrofahrzeug über eine Wallbox zu laden. Die Lage in einer kleinen Siedlung verbindet Ruhe und Privatsphäre mit kurzen Wegen zu Einkaufsmöglichkeiten und Infrastruktur. Der nächste Supermarkt ist nur ca. 1 km entfernt, der Bahnhof etwa 2,5 km. Berlin ist mit Auto oder ÖPNV in rund 1,5 Stunden erreichbar.
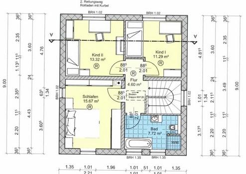
Im Inneren überzeugt das Haus durch eine moderne, offene Raumgestaltung. Im Erdgeschoss befinden sich ein Hauswirtschaftsraum, ein Gäste-WC, die Küche mit Einbauküche aus dem Jahr 2021 und der großzügige Wohn- und Essbereich, der direkten Zugang zur Terrasse bietet. Ein praktischer Abstellraum unter der Treppe ergänzt das Platzangebot. Im Obergeschoss liegen das Schlafzimmer, ein Kinderzimmer, ein Büro sowie das Badezimmer mit ebenerdiger Dusche und Badewanne. Alle Räume sind einheitlich mit großen, modernen Fliesen ausgestattet. Ein zusätzlicher Dachboden bietet weiteren Stauraum.
Technisch ist das Haus auf einem zeitgemäßen, energieeffizienten Stand. Die Luft-Wasser-Wärmepumpe von Daikin versorgt das gesamte Haus über eine vollflächige Fußbodenheizung. Dreifach verglaste Kunststofffenster, ein Glasfaseranschluss sowie eine Einbauküche gehören ebenfalls zur Ausstattung. Besondere Highlights sind der Kaminofen von Oranier im Wohnbereich sowie die finnische Sauna mit Ofen, die zusätzlichen Komfort schaffen und den Wohnwert deutlich erhöhen.
Das Objekt ist sofort bezugsfertig und wird provisionsfrei veräußert.
Makleranfragen sind unerwünscht.
Makleranfragen unerwünscht! Nach § 7 UWG sind unaufgeforderte Kontaktaufnahmen durch Makler ohne ausdrückliche Einwilligung des Empfängers verboten!
Der Außenbereich bietet vielfältige Nutzungsmöglichkeiten. Die großzügige Südwest-Terrasse schafft ideale Voraussetzungen für entspannte Stunden im Freien. Ergänzt wird das Grundstück durch ein Atelier in Holzbauweise, einen Schuppen, einen separaten Fahrradraum, eine Außenküche sowie ein Gewächshaus. Für Fahrzeuge stehen zwei Stellplätze bereit mit der Möglichkeit, ein Elektrofahrzeug über eine Wallbox zu laden. Die Lage in einer kleinen Siedlung verbindet Ruhe und Privatsphäre mit kurzen Wegen zu Einkaufsmöglichkeiten und Infrastruktur. Der nächste Supermarkt ist nur ca. 1 km entfernt, der Bahnhof etwa 2,5 km. Berlin ist mit Auto oder ÖPNV in rund 1,5 Stunden erreichbar.
Im Inneren überzeugt das Haus durch eine moderne, offene Raumgestaltung. Im Erdgeschoss befinden sich ein Hauswirtschaftsraum, ein Gäste-WC, die Küche mit Einbauküche aus dem Jahr 2021 und der großzügige Wohn- und Essbereich, der direkten Zugang zur Terrasse bietet. Ein praktischer Abstellraum unter der Treppe ergänzt das Platzangebot. Im Obergeschoss liegen das Schlafzimmer, ein Kinderzimmer, ein Büro sowie das Badezimmer mit ebenerdiger Dusche und Badewanne. Alle Räume sind einheitlich mit großen, modernen Fliesen ausgestattet. Ein zusätzlicher Dachboden bietet weiteren Stauraum.
Technisch ist das Haus auf einem zeitgemäßen, energieeffizienten Stand. Die Luft-Wasser-Wärmepumpe von Daikin versorgt das gesamte Haus über eine vollflächige Fußbodenheizung. Dreifach verglaste Kunststofffenster, ein Glasfaseranschluss sowie eine Einbauküche gehören ebenfalls zur Ausstattung. Besondere Highlights sind der Kaminofen von Oranier im Wohnbereich sowie die finnische Sauna mit Ofen, die zusätzlichen Komfort schaffen und den Wohnwert deutlich erhöhen.
Das Objekt ist sofort bezugsfertig und wird provisionsfrei veräußert.
Makleranfragen sind unerwünscht.
Makleranfragen unerwünscht! Nach § 7 UWG sind unaufgeforderte Kontaktaufnahmen durch Makler ohne ausdrückliche Einwilligung des Empfängers verboten!
Ausstattungsmerkmale
| Anzahl der Etagen im Haus | 2 |
| Küche | Einbauküche |
| Bad | 2 |
| Bad | Wanne |
| Boden | Fliesen |
| Balkone | 0 |
| Garten | |
| Terrassen | 1 |
Terrasse, Garten, Vollbad, Sauna, Einbauküche, Gäste-WC, Kamin, Fliesen
Sonstige Informationen
Heizungsart: Sonstiges (s. Text)
Energieträger: Strom
Energieausweis: Energiebedarfsausweis
Wesentliche Energieträger: Strom-Mix
Endenergiebedarf: 24,7 kWh(m²*a)
Energieeffizienzklasse: A+
Gültig bis: aktuell nicht vorhanden
Baujahr (gemäß Energieausweis): 2020
Heizungsart: Wärmepumpe
Wesentliche Energieträger: Strom
Makleranfragen nicht erwünscht. Nach § 7 UWG sind unaufgeforderte Kontaktaufnahmen durch Makler ohne ausdrückliche Einwilligung des Empfängers verboten!
ohne-makler (OM) ist weder Anbieter noch Vermittler der Immobilie. OM betreibt eine Plattform für Immobilieneigentümer, die unter anderem die gleichzeitige Veröffentlichung einzelner Inserate auf mehreren Immobilienportalen ermöglicht. Die Inhalte dieser Inserate werden ausschließlich von Dritten verantwortet. Für die Richtigkeit, Vollständigkeit oder Rechtmäßigkeit der Angaben übernimmt OM keine Haftung. Hinweise auf mögliche Rechtsverstöße können jederzeit gemeldet werden und werden nach Prüfung umgehend bearbeitet.
Energieträger: Strom
Energieausweis: Energiebedarfsausweis
Wesentliche Energieträger: Strom-Mix
Endenergiebedarf: 24,7 kWh(m²*a)
Energieeffizienzklasse: A+
Gültig bis: aktuell nicht vorhanden
Baujahr (gemäß Energieausweis): 2020
Heizungsart: Wärmepumpe
Wesentliche Energieträger: Strom
Makleranfragen nicht erwünscht. Nach § 7 UWG sind unaufgeforderte Kontaktaufnahmen durch Makler ohne ausdrückliche Einwilligung des Empfängers verboten!
ohne-makler (OM) ist weder Anbieter noch Vermittler der Immobilie. OM betreibt eine Plattform für Immobilieneigentümer, die unter anderem die gleichzeitige Veröffentlichung einzelner Inserate auf mehreren Immobilienportalen ermöglicht. Die Inhalte dieser Inserate werden ausschließlich von Dritten verantwortet. Für die Richtigkeit, Vollständigkeit oder Rechtmäßigkeit der Angaben übernimmt OM keine Haftung. Hinweise auf mögliche Rechtsverstöße können jederzeit gemeldet werden und werden nach Prüfung umgehend bearbeitet.
Karte wird geladen...
Objektstandort
15848 Beeskow
- Brandenburg
Lage & Infrastruktur
Objektstandort
15848 Beeskow
- Brandenburg
Die Kreisstadt Beeskow liegt im Landkreis Oder-Spree im Osten von Brandenburg und verbindet historischen Charme mit naturnaher Lebensqualität. Die idyllische Lage an der Spree sowie die wald- und seenreiche Umgebung bieten einen hohen Freizeit- und Erholungswert.
Die gut erhaltene Altstadt mit mittelalterlicher Stadtmauer prägt das Stadtbild und unterstreicht den besonderen Charakter des Ortes. Gleichzeitig ist Beeskow verkehrstechnisch günstig angebunden. Die Hauptstadt Berlin sowie Frankfurt (Oder) sind in gut erreichbarer Distanz.
Als Kreisstadt verfügt Beeskow über eine solide Infrastruktur mit Einkaufsmöglichkeiten, Schulen, medizinischer Versorgung und kulturellen Angeboten. Ideal für alle, die ruhiges Wohnen mit guter Anbindung kombinieren möchten.
Das Einfamilienhaus befindet sich in einer kleinen, familienfreundlichen Siedlung in Beeskow Stadt. Die Umgebung ist geprägt von Natur, Ruhe und Nähe zur Spree sowie zum angrenzenden Wald, jeweils nur rund 100 Meter entfernt.
Einkaufsmöglichkeiten, Schulen, Kitas und medizinische Versorgung sind im nahen Umfeld vorhanden. Der nächste Supermarkt liegt ca. 1 km entfernt, der Bahnhof etwa 2,5 km. Die Anbindung nach Berlin ist komfortabel, mit dem Auto oder ÖPNV beträgt die Fahrzeit etwa 1,5 Stunden.
Unweit des Hauses befinden sich ein neu gebauter Spielplatz mit Sport- und Spielgeräten sowie ein Fußballplatz.
Die Bahrensdorfer Straße wurde erst kürzlich vollständig erneuert. Zudem ist eine Bushaltestelle fußläufig erreichbar.
Der langjährige Bahrensdorfer Verein bietet die Möglichkeit, in der Nachbarschaft schnell Anschluss zu finden und sich aktiv zu engagieren.
Infrastruktur (im Umkreis von 5 km):
Apotheke, Lebensmittel-Discount, Allgemeinmediziner, Kindergarten, Grundschule, Hauptschule, Realschule, Gymnasium, Gesamtschule, Öffentliche Verkehrsmittel
Die gut erhaltene Altstadt mit mittelalterlicher Stadtmauer prägt das Stadtbild und unterstreicht den besonderen Charakter des Ortes. Gleichzeitig ist Beeskow verkehrstechnisch günstig angebunden. Die Hauptstadt Berlin sowie Frankfurt (Oder) sind in gut erreichbarer Distanz.
Als Kreisstadt verfügt Beeskow über eine solide Infrastruktur mit Einkaufsmöglichkeiten, Schulen, medizinischer Versorgung und kulturellen Angeboten. Ideal für alle, die ruhiges Wohnen mit guter Anbindung kombinieren möchten.
Das Einfamilienhaus befindet sich in einer kleinen, familienfreundlichen Siedlung in Beeskow Stadt. Die Umgebung ist geprägt von Natur, Ruhe und Nähe zur Spree sowie zum angrenzenden Wald, jeweils nur rund 100 Meter entfernt.
Einkaufsmöglichkeiten, Schulen, Kitas und medizinische Versorgung sind im nahen Umfeld vorhanden. Der nächste Supermarkt liegt ca. 1 km entfernt, der Bahnhof etwa 2,5 km. Die Anbindung nach Berlin ist komfortabel, mit dem Auto oder ÖPNV beträgt die Fahrzeit etwa 1,5 Stunden.
Unweit des Hauses befinden sich ein neu gebauter Spielplatz mit Sport- und Spielgeräten sowie ein Fußballplatz.
Die Bahrensdorfer Straße wurde erst kürzlich vollständig erneuert. Zudem ist eine Bushaltestelle fußläufig erreichbar.
Der langjährige Bahrensdorfer Verein bietet die Möglichkeit, in der Nachbarschaft schnell Anschluss zu finden und sich aktiv zu engagieren.
Infrastruktur (im Umkreis von 5 km):
Apotheke, Lebensmittel-Discount, Allgemeinmediziner, Kindergarten, Grundschule, Hauptschule, Realschule, Gymnasium, Gesamtschule, Öffentliche Verkehrsmittel
Kontaktanfrage senden
Über den Anbieter
OM PropTech GmbH
Humboldtstraße 25a
21509 Glinde
Kontakt
| Telefon | - |
| Fax | - |
| Website | www.ohne-makler.net |
Ansprechpartner/in
Privat von Franz Walter
Weitere Angebote des Anbieters
6
Freie sanierte 2-Zimmer-Wohnung im 4. OG Düsseldorf ...
Wohnung
40233 Düsseldorf
Direkt vom Eigentümer (von privat, keine Maklerprovision): Diese exklusive 2-Zimmer-Wohnung mit ca. 55 m² Wohnfläche befindet sich im 4. Obergeschoss eines modernen Mehrfamilienhauses in Düsseldorf Flingern Nord direkt ...
255.000 €
Kaufpreis
55 m²
Wohnfläche
2
Zimmer
7
Privates Naturparadies in Biesenthal – 4.340 m² ...
Grundstück
16359 Biesenthal
Stell dir vor: Es ist Mai... Die alten Apfelbäume stehen in voller Blüte, das Wasser des Fließes glitzert in der Sonne und du stehst auf deinem eigenen halben Hektar Land… Suchst du einen Ort, an dem die Zeit stehen ...
98.000 €
Kaufpreis
4.340 m²
Grundstücksfläche
14
Traumhaus bezugsfrei nach Modernisierung
Haus
22851 Norderstedt
Dieses traumhafte Einfamilienhaus steht auf einem herrlich gelegenen Grundstück mit 454 Quadratmetern. Umgeben von Pferdewiesen und Feldern und mit nur einem direkten Nachbarn auf der linken Seite, können Sie hier die ...
599.900 €
Kaufpreis
115,27 m²
Wohnfläche
4
Zimmer
10
Sehr schöne drei Zimmer Wohnung mit zwei Balkonen und ...
Wohnung
51429 Bergisch Gladbach
Diese renovierte /sanierte Dreizimmerwohnung liegt im Erdgeschoss eines sehr gepflegten Wohnhauses; ein Tiefgaragenstellplatz gehört zur Wohnung. Die Wohnung besteht aus drei Zimmern, einer Küche, einem Bad und einem ...
1.255 €
Kaltmiete (netto)
93 m²
Wohnfläche
3
Zimmer
9
Schöne 4-Zimmer-Penthouse in Rodgau-Nieder-Roden – ...
Wohnung
63110 Rodgau
Dieses schöne 4-Zimmer-Penthouse in der Strandpromenade 6 beeindruckt durch seine moderne Architektur, seine außergewöhnliche Wohnlage und den unvergleichlichen Ausblick auf den Rodgauer See. Die Wohnung befindet sich ...
249.000 €
Kaufpreis
90 m²
Wohnfläche
4
Zimmer