***Verbindungen schaffen: Ein Zuhause für die Familie mit Klinkeraktion!***
715.348 €
Kaufpreis
143,84 m²
Wohnfläche
25 m²
Nutzfläche
4
Zimmer
immobilien.de Nr.: 9474421
Objektnummer: KR260219_304ST
Kaufpreis
| Kaufpreis | 715.348 € |
| Stellplatz Carport Kaufpreis | 10 € |
Wohnfläche, Grundstück & Bausubstanz
| Wohnfläche | 143,84 m² |
| Nutzfläche | 25 m² |
| Grundstücksfläche | 1.015 m² |
| Zimmer | 4 |
| Baujahr | 2026 |
| Verfügbar ab | 2026 |
| Zustand | Projektiert |
Energie
| Energietyp | KfW-40 |
| Heizungsart | Zentralheizung |
| Energieträger/Befeuerung | Luft-Wärme-Pumpe |
Beschreibung der Immobilie
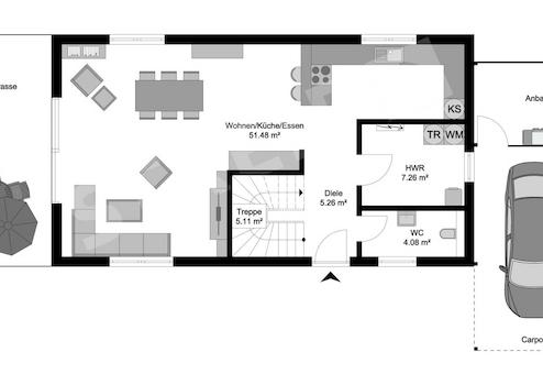
Willkommen in Ihrem neuen Traumhaus in Garbsen/ Stellingen, einem ruhigen Wohngebiet, das Ihnen nicht nur ein modernes Zuhause bietet, sondern auch Lebensqualität pur. Dieses Einfamilienhaus, projektiert nach Ihren individuellen Wünschen, umfasst 4 Zimmer auf einer großzügigen Wohnfläche von 143,84 m². Mit 3 Schlafzimmern und 2 Badezimmern, die mit Dusche, Wanne und Fenster ausgestattet sind, bietet dieses Haus genügend Platz für die ganze Familie. Das durchdachte Baukonzept ermöglicht Ihnen, Ihr Zuhause in zwei Etagen zu gestalten und dabei Ihre persönlichen Vorstellungen zu realisieren.
Ausstattungsmerkmale
| Anzahl der Etagen im Haus | 2 |
| Küche | Offene Küche |
| Bad | 2 |
| Bad | Dusche, Wanne, Fenster |
| Terrassen | 1 |
| Carport | 1 |
Die gehobene Ausstattung dieses Hauses lässt keine Wünsche offen. Der Bodenbelag kann nach Ihren Wünschen ausgewählt werden, was Ihnen die Möglichkeit gibt, Ihr Zuhause ganz nach Ihrem Geschmack zu gestalten. Die Verwendung von hochwertigen Materialien sorgt für ein angenehmes Wohnklima. Mit einer modernen Wärmepumpe als Befeuerungsart profitieren Sie von einer umweltfreundlichen und effizienten Heizlösung, die nicht nur die Energiekosten senkt, sondern auch den KFW40 Standard erfüllt und somit einen wichtigen Beitrag zur Nachhaltigkeit leistet.
Sonstige Informationen
Achtung: Klinkeraktion ist verlängert!
STREIF Haus - der Pionier der deutschen Fertighausbranche
Die langjährige Firmentradition des Unternehmens reicht bis in das Jahr 1929 zurück. In den 50er und 60er Jahren wurde in Deutschland schnell und viel Wohnraum für Familien benötigt, seitdem konzentrierte sich das Unternehmen auf die Entwicklung und Produktion von Fertighaustypen, die im Werk in großen Stückzahlen hergestellt werden konnten. So kann das Unternehmen auf 90.000 gebaute Hausobjekte zurückblicken und sich zu Recht als Pionier der deutschen Fertighausbranche bezeichnen.
Die neuen Energiesparhäuser - So baut man heute.
Unser Anspruch ist es, in enger Partnerschaft mit unseren Kunden langlebige Häuser zu bauen, mit einer hohen architektonischen Qualität, individuell geplant und dabei energieeffizient und ressourcenschonend. Jedes STREIF-Haus ist einzigartig und wird speziell für jeden Kunden "maßgeschneidert" und gebaut. Passend zu den persönlichen Wünschen, dem vorgegebenen Budget und dem vorhandenen Grundstück planen und bauen wir jedes Haus mit viel Liebe zum Detail.
STREIF Haus - der Pionier der deutschen Fertighausbranche
Die langjährige Firmentradition des Unternehmens reicht bis in das Jahr 1929 zurück. In den 50er und 60er Jahren wurde in Deutschland schnell und viel Wohnraum für Familien benötigt, seitdem konzentrierte sich das Unternehmen auf die Entwicklung und Produktion von Fertighaustypen, die im Werk in großen Stückzahlen hergestellt werden konnten. So kann das Unternehmen auf 90.000 gebaute Hausobjekte zurückblicken und sich zu Recht als Pionier der deutschen Fertighausbranche bezeichnen.
Die neuen Energiesparhäuser - So baut man heute.
Unser Anspruch ist es, in enger Partnerschaft mit unseren Kunden langlebige Häuser zu bauen, mit einer hohen architektonischen Qualität, individuell geplant und dabei energieeffizient und ressourcenschonend. Jedes STREIF-Haus ist einzigartig und wird speziell für jeden Kunden "maßgeschneidert" und gebaut. Passend zu den persönlichen Wünschen, dem vorgegebenen Budget und dem vorhandenen Grundstück planen und bauen wir jedes Haus mit viel Liebe zum Detail.
Karte wird geladen...
Objektstandort
30827 Garbsen
Lage & Infrastruktur
Objektstandort
30827 Garbsen
Das Grundstück mit einer Größe von 1015 m² liegt in Garbsen/ Stellingen, in einem familienfreundlichen Wohngebiet. In unmittelbarer Nähe finden Sie eine Vielzahl von Einrichtungen, darunter Apotheken, Einkaufsmöglichkeiten, Grundschulen, Kindergärten und weiterführende Schulen. Auch ein Spielplatz ist in der Nähe, was das Leben für Familien besonders angenehm macht. Zudem ist die Anbindung an den öffentlichen Nahverkehr durch Buslinien hervorragend.
Es wäre auch möglich, das Grundstück zu teilen, um dann eine andere Gesamtinvestition zu haben.
Es wäre auch möglich, das Grundstück zu teilen, um dann eine andere Gesamtinvestition zu haben.
Kontaktanfrage senden
Über den Anbieter
STREIF Haus GmbH
Josef-Streif-Straße 1
54595 Weinsheim
Kontakt
| Telefon | 06551 12 00 |
| Mobil | +49 174 6403310 |
| Website | www.streif.de |
Ansprechpartner/in
Herr Andreas Maurer