Raus aus der Miete !

66424 Homburg
Frei ab: nach Vereinbarung
451.000 € Kaufpreis
Wohnfläche
167,22 m²
Zimmer
5
Offene Küche
Terrasse
Stellplatz

Kaufpreis

Kaufpreis 451.000 €
Stellplatz Garage Kaufpreis9.000 €

Wohnfläche, Grundstück & Bausubstanz

Wohnfläche167,22 m²
Grundstücksfläche700 m²
Zimmer5
Etagen2
Baujahr2027
Verfügbar ab nach Vereinbarung
ZustandErstbezug

Beschreibung der Immobilie

Wenn Sie nicht weiter Miete-, sondern für Ihr eigenes Zuhause zahlen wollen, ist unser Konzept jetzt genau das Richtige !

Nehmen Sie sich die Zeit und lassen Sie uns gemeinsam darüber reden, wie es auch ohne Eigenkapital möglich ist, dass ihre Familie eine Zukunft im Eigenheim genießen kann.

Thomas Heitz 0160/7038141 oder thomas.heitz@streif.de

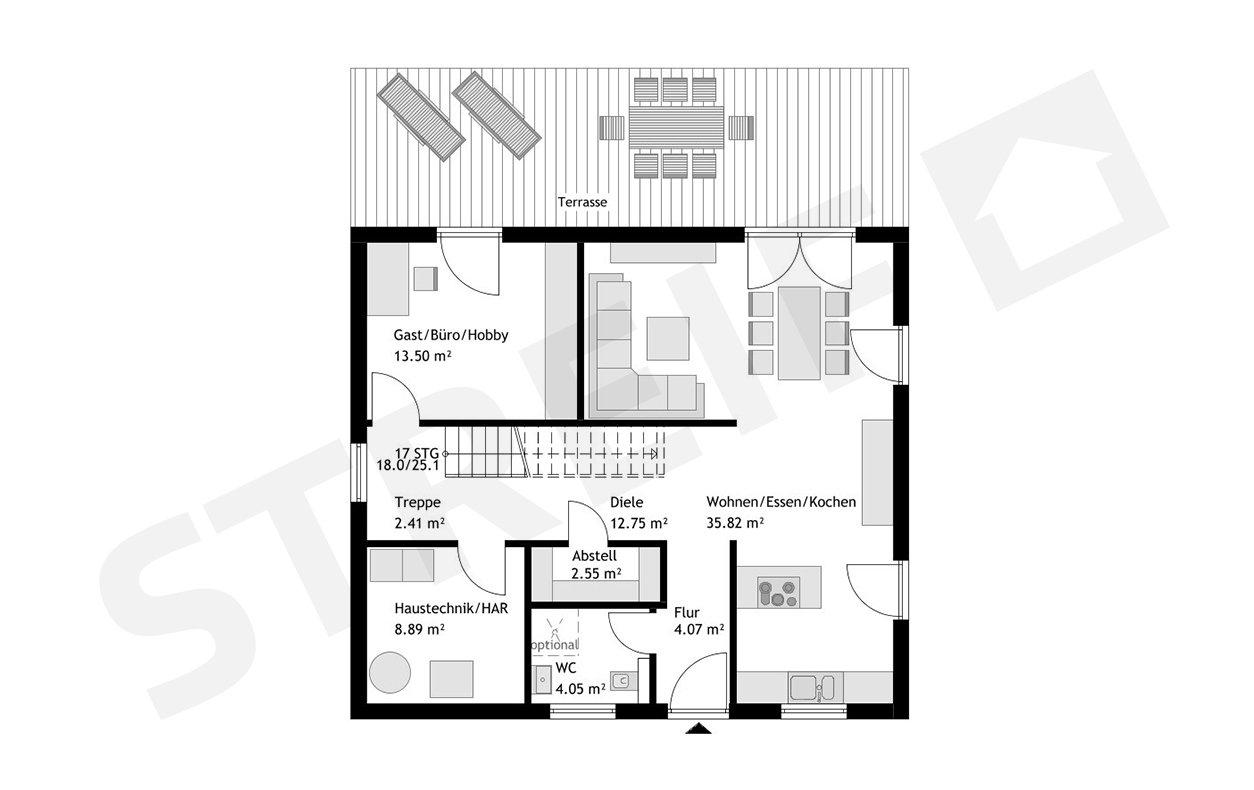
Das behagliche Haus mit Satteldach punktet mit einem gut durchdachten Grundriss. Der offen gestaltete Wohn-/Ess- und Kochbereich ist lichtdurchflutet. Ein praktischer Hauswirtschaftsraum ist direkt neben der Küche platziert. Komplettiert wird das Raumangebot im Erdgeschoss mit einem Gäste-WC, das optional auch als Duschbad ausgeführt werden kann, einer Diele und einem Haustechnikraum.
Im Dachgeschoss des Hauses sind zwei schöne Kinderzimmer, ein Elternschlafzimmer, ein Flur und ein Familienbad untergebracht. Die Lage der Treppe und des Haustechnikraumes sind fixiert.
Objektart: Einfamilienhaus, 1,5-geschossig
Dachform: Satteldach
Kniestock: 1,25m

Ausstattungsmerkmale

KücheOffene Küche
Bad1
Bad (Ausstattung)Dusche, Wanne, Fenster
BodenFliesen, Stein, Teppich, Parkett, Fertigparkett, Laminat, Dielen, Kunststoff, Linoleum, Marmor, Granit
Terrassen1
Garage/Stellplätze1
Bei uns übernehmen Sie die vereinbarte Leistung immer in garantiert einwandfreiem Zustand, auf Wunsch auch gerne mit zusätzlicher, Bauherren seitiger Abnahme. Unsere Bauleiter stellen die einwandfreie Erstellung sicher und erläutern bei der Übergabe gerne alle relevanten Funktionen und Vorteile, damit Sie auf sehr lange Sicht sorgenfrei wohnen werden.

STREIF-Häuser sind Energiesparhäuser. Die STREIF-Passiv-Außenwände und eine sparsame Heiztechnik mit integrierter Wohnraumlüftung und Wärmerückgewinnung, garantieren einen geringen Energieverbrauch und ein fantastisches Raumklima, das insbesondere Allergiker aufatmen lässt.

STREIF Leistungen sind MEHR WERT - schon im Grundpreis enthalten!

- 16-monatige Festpreisgarantie

- Energieeffizienzhaus KfW 40 EE im Standard

- Inkl. individuelle Grundrissgestaltung und Raumaufteilung

- Inkl. Fundamentplatte

- Inkl. STREIF-Luft-Luft-Wärmepumpe mit integrierter

Lüftungsanlage mit Wärmerückgewinnung

- Inkl. Haustür von KERA und Fenster von Porta/Kömmerling

- Inkl. Massivholz-Geschosstreppe aus eigener Produktion

- Inkl. Sanitärobjekte von Markenherstellern

- Inkl. Elektroinstallation

- Inkl. Baubetreuung u.v.m.

Die hohe Wertigkeit und Langlebigkeit eines STREIF-Energiespar-Hauses wird durch zahlreiche Auszeichnungen, Qualitäts- und Gütesiegel unabhängiger Institute und Verbände dokumentiert.

Der Angebotspreis ist inklusive Grundstück und bezieht sich auf die Standard-Ausbaustufe Fast-Fertig-Plus. Ihre Eigenleistungen: Spachtel-,Tapezier- und Malerarbeiten, Bodenbeläge, Innentüren.

Baunebenkosten fallen zuzüglich an.

Der Verkauf des Grundstücks erfolgt über einen unserer Netzwerkpartner.

Bilder können evtl. Anbauteile, Carports, Balkone, Gauben usw. zeigen, die nicht im Angebotspreis enthalten sind. Änderungen und Irrtümer vorbehalten.

Thomas Heitz 0160 7038141 oder thomas.heitz@streif.de

Energie

A+
Energieeffizienzklasse A+ · 43.00 kWh/(m²*a)
EnergieausweistypVerbrauch
Baujahr (laut Energieausweis)2027
EnergieeffizienzklasseA+
Energietyp Niedrigenergie, Neubaustandard, KfW-55
Energieverbrauchkennwert43.00 kWh/(m²*a)
Heizungsart Zentralheizung
Wesentlicher EnergieträgerStrom
Energieträger/Befeuerung Luft-Wärme-Pumpe

Karte wird geladen...
66424 Homburg

Lage & Infrastruktur

Das Grundstück liegt in sehr guter Wohnlage von Bruchhof.

Das Haus ist auf einem realen Baugrundstück geplant oder auf einem Grundstück in einer Planungsphase. Das Grundstück erwerben Sie direkt vom Eigentümer. Der Preis des Grundstücks ist im Angebotspreis bereits eingerechnet.

Bitte haben Sie Verständnis dafür, dass wir ohne ein persönliches Gespräch keine Grundstücksdaten weiterleiten können.

Gern sind wir bei der Wahl Ihres Traumgrundstückes behilflich!

Natürlich können wir ihren Haustraum auch auf einem anderen Grundstück realisieren, lassen Sie sich dazu in einem unverbindlichen Gespräch zu Ihrem Bauvorhaben beraten.

Thomas Heitz 0160/7038141 oder thomas.heitz@streif.de

Sonstige Informationen

Wahlweise kann Ihr Haus in den Ausbaustufen "AUSBAUFERTIG" oder "FASTFERTIG" oder FASTFERTIG PLUS" bis hin zu "SCHLÜSSELFERTIG" geplant werden.

Wir ermitteln in der Bedarfsanalyse gemeinsam mit Ihnen den gewünschten Fertigstellungsgrad und kalkulieren den entsprechenden Preis für Sie.

Abgesehen von den Ausbaustufen bestimmen Sie ebenso die technische und optische Ausstattung ganz nach Ihren Vorstellungen und Wünschen.

Diese ersten Gespräche und die Erstellung eines Angebotes sind für Sie kostenlos.

Ich freue mich schon jetzt auf unseren ersten gemeinsamen Termin damit wir mit den ersten Schritten beginnen können.

Thomas Heitz 0160 7038141 oder thomas.heitz@streif.de
Ansprechpartner/in: Herr Thomas Heitz
STREIF Haus GmbH
Josef-Streif-Straße 1, 54595 Weinsheim

Weitere Angebote in Homburg