5-Zimmer Maisonette-Wohnung mit Kamin, Garten und Garage in Untermeitingen - sofort bezugsfertig!
449.000 €
Kaufpreis
95 m²
Wohnfläche
5
Zimmer
immobilien.de Nr.: 9467115
Objektnummer: 422538
Kaufpreis
| Kaufpreis | 449.000 € |
| Hausgeld | 321 € |
| Maklerprovision | keine Provision, courtagefrei |
Wohnfläche, Grundstück & Bausubstanz
| Wohnfläche | 95 m² |
| Zimmer | 5 |
| Baujahr | 1983 |
| Verfügbar ab | sofort |
| Zustand | Modernisiert |
Energie
| Energieausweistyp | Verbrauch |
| Energieeffizienzklasse | D |
| Energieverbrauchkennwert | 100 kWh/(m²*a) |
| Heizungsart | Zentralheizung |
| Energieträger/Befeuerung | Gas |
Beschreibung der Immobilie
Diese großzügige und lichtdurchflutete 5-Zimmer-Maisonette Wohnung befindet sich in einem gepflegten Mehrfamilienhaus aus dem Jahr 1983 in ruhiger Lage von Untermeitingen. Die Wohnung erstreckt sich über zwei Ebenen und verbindet gemütliches Wohnambiente mit einer modernen, offenen Raumgestaltung.
Besonders hervorzuheben sind der gemütliche Kamin im Wohnzimmer, der sonnige Balkon, ein eigener Gartenanteil sowie die inkludierte Garage + Stellplatz, eine Kombination, die man in dieser Form äußerst selten findet.
Die Wohnung wurde in den letzten Jahren modernisiert und befindet sich in einem sehr gepflegten Zustand. Sie eignet sich ideal für Paare, Familien oder alle, die ein stilvolles und sofort bezugsfertiges Zuhause suchen.
Ausstattung:
Wohn-/Essbereich & Küche:
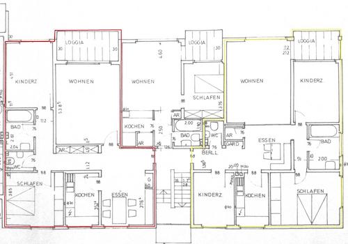
- Großzügiger Wohnbereich (24 m²) mit viel Licht und direktem Zugang zum Balkon
- Gemütlicher echter Kamin – ideal für entspannte Abende
- Großer und heller Essbereich, direkt neben der Küche (15,63m²)
- Moderne Einbauküche (8,69 m²) mit allen wichtigen Geräten
- Balkon (5,23 m² / 2,61 m² anrechenbar) nach Osten
(Sonnenaufgang)
Schlafräume & Zusatzräume:
- Kinder-/Arbeitszimmer im 1. OG (8,88 m²)
- Zwei weitere Räume im Dachgeschoss: eins perfekt geeignet als
Schlafzimmer, das andere ideal als Büro- oder Kinderzimmer
Sanitäre Bereiche:
- Zwei vollwertige Bäder: eines im 1. Obergeschoss und eines im Dachgeschoss
- Beide Bäder ausgestattet mit WC und Dusche
- Badmodernisierung inkl. neuem WC, Waschtisch und
Fliesenlack (2023)
Technik & Komfort:
- Elektrische Velux-Rollläden an den Dachfenstern (Sonnenseite)
- Vinylboden im Dachgeschoss erneuert 2023
- Hochwertige Fliegengitter an vielen Fenstern
- Abstellraum in der Wohnung
- Großer, eigener Kellerraum
- Eigene Garage im Kaufpreis enthalten
Außenbereich:
- Eigener Gartenanteil als Sondernutzungsrecht, ideal für Entspannung, Grillen oder als Spielfläche für Kinder
- Sonniger Balkon mit Sicht auf den Sonnenaufgang
Besonders hervorzuheben sind der gemütliche Kamin im Wohnzimmer, der sonnige Balkon, ein eigener Gartenanteil sowie die inkludierte Garage + Stellplatz, eine Kombination, die man in dieser Form äußerst selten findet.
Die Wohnung wurde in den letzten Jahren modernisiert und befindet sich in einem sehr gepflegten Zustand. Sie eignet sich ideal für Paare, Familien oder alle, die ein stilvolles und sofort bezugsfertiges Zuhause suchen.
Ausstattung:
Wohn-/Essbereich & Küche:
- Großzügiger Wohnbereich (24 m²) mit viel Licht und direktem Zugang zum Balkon
- Gemütlicher echter Kamin – ideal für entspannte Abende
- Großer und heller Essbereich, direkt neben der Küche (15,63m²)
- Moderne Einbauküche (8,69 m²) mit allen wichtigen Geräten
- Balkon (5,23 m² / 2,61 m² anrechenbar) nach Osten
(Sonnenaufgang)
Schlafräume & Zusatzräume:
- Kinder-/Arbeitszimmer im 1. OG (8,88 m²)
- Zwei weitere Räume im Dachgeschoss: eins perfekt geeignet als
Schlafzimmer, das andere ideal als Büro- oder Kinderzimmer
Sanitäre Bereiche:
- Zwei vollwertige Bäder: eines im 1. Obergeschoss und eines im Dachgeschoss
- Beide Bäder ausgestattet mit WC und Dusche
- Badmodernisierung inkl. neuem WC, Waschtisch und
Fliesenlack (2023)
Technik & Komfort:
- Elektrische Velux-Rollläden an den Dachfenstern (Sonnenseite)
- Vinylboden im Dachgeschoss erneuert 2023
- Hochwertige Fliegengitter an vielen Fenstern
- Abstellraum in der Wohnung
- Großer, eigener Kellerraum
- Eigene Garage im Kaufpreis enthalten
Außenbereich:
- Eigener Gartenanteil als Sondernutzungsrecht, ideal für Entspannung, Grillen oder als Spielfläche für Kinder
- Sonniger Balkon mit Sicht auf den Sonnenaufgang
Ausstattungsmerkmale
| Anzahl der Etagen im Haus | 2 |
| Inserat befindet sich im Stockwerk | 1 |
| Küche | Einbauküche |
| Bad | 2 |
| Bad | Dusche |
| Boden | Laminat, Kunststoff |
| Balkone | 1 |
| Garten | |
| Terrassen | 1 |
| Garage/Stellplätze | 1 |
| Keller |
Balkon, Terrasse, Garten, Keller, Duschbad, Einbauküche, Gäste-WC, Kamin, Laminat
Sonstige Informationen
Heizungsart: Zentralheizung
Energieträger: Gas
Wirtschaftliche Daten:
- Hausgeld ab 06/2025: 321 € / Monat
- Rücklagenstand der WEG vorhanden (nachweisbar)
- Gaszentralheizung (Baujahr 2005)
Energieausweis: Verbrauchsausweis
- Endenergieverbrauch: 100,79 kWh/(m²·a)
- Energieeffizienzklasse: D
- Wesentlicher Energieträger: Erdgas
- Baujahr Gebäude: 1983
- Baujahr Wärmeerzeuger: 2005
- Gültig bis: 13.09.2034
Sonstiges:
- Sofort bezugsfertig
- keine Maklerprovision
- keine Makleranfragen gewünscht!
- Garage im Kaufpreis enthalten
- Verkauf „wie gesehen“, inklusive Einbauküche
DG ohne offizielle Baugenehmigung → nur relevant bei
Vermietung, nicht bei Selbstnutzung
Makleranfragen nicht erwünscht. Nach § 7 UWG sind unaufgeforderte Kontaktaufnahmen durch Makler ohne ausdrückliche Einwilligung des Empfängers verboten!
ohne-makler (OM) ist weder Anbieter noch Vermittler der Immobilie. OM betreibt eine Plattform für Immobilieneigentümer, die unter anderem die gleichzeitige Veröffentlichung einzelner Inserate auf mehreren Immobilienportalen ermöglicht. Die Inhalte dieser Inserate werden ausschließlich von Dritten verantwortet. Für die Richtigkeit, Vollständigkeit oder Rechtmäßigkeit der Angaben übernimmt OM keine Haftung. Hinweise auf mögliche Rechtsverstöße können jederzeit gemeldet werden und werden nach Prüfung umgehend bearbeitet.
Energieträger: Gas
Wirtschaftliche Daten:
- Hausgeld ab 06/2025: 321 € / Monat
- Rücklagenstand der WEG vorhanden (nachweisbar)
- Gaszentralheizung (Baujahr 2005)
Energieausweis: Verbrauchsausweis
- Endenergieverbrauch: 100,79 kWh/(m²·a)
- Energieeffizienzklasse: D
- Wesentlicher Energieträger: Erdgas
- Baujahr Gebäude: 1983
- Baujahr Wärmeerzeuger: 2005
- Gültig bis: 13.09.2034
Sonstiges:
- Sofort bezugsfertig
- keine Maklerprovision
- keine Makleranfragen gewünscht!
- Garage im Kaufpreis enthalten
- Verkauf „wie gesehen“, inklusive Einbauküche
DG ohne offizielle Baugenehmigung → nur relevant bei
Vermietung, nicht bei Selbstnutzung
Makleranfragen nicht erwünscht. Nach § 7 UWG sind unaufgeforderte Kontaktaufnahmen durch Makler ohne ausdrückliche Einwilligung des Empfängers verboten!
ohne-makler (OM) ist weder Anbieter noch Vermittler der Immobilie. OM betreibt eine Plattform für Immobilieneigentümer, die unter anderem die gleichzeitige Veröffentlichung einzelner Inserate auf mehreren Immobilienportalen ermöglicht. Die Inhalte dieser Inserate werden ausschließlich von Dritten verantwortet. Für die Richtigkeit, Vollständigkeit oder Rechtmäßigkeit der Angaben übernimmt OM keine Haftung. Hinweise auf mögliche Rechtsverstöße können jederzeit gemeldet werden und werden nach Prüfung umgehend bearbeitet.
Karte wird geladen...
Objektstandort
86836 Untermeitingen
- Bayern
Lage & Infrastruktur
Objektstandort
86836 Untermeitingen
- Bayern
Die Wohnung befindet sich in einer ruhigen und gewachsenen Wohnlage im beliebten Ort Untermeitingen, südlich von Augsburg. Die Gemeinde gehört zu den nachgefragtesten Wohnstandorten im Landkreis und überzeugt durch eine hervorragende Infrastruktur, eine familienfreundliche Umgebung sowie eine schnelle Anbindung an die umliegenden Städte.
Der Ortskern mit Einkaufsmöglichkeiten für den täglichen Bedarf, Bäckereien, Restaurants, Apotheken, Ärzten sowie weiteren Dienstleistern liegt nur wenige Minuten entfernt. Mehrere Kindergärten, eine Grund- und Mittelschule, Sportvereine und Spielplätze machen die Lage besonders attraktiv für Familien.
Für Pendler ideal: Über die nahegelegene B17 erreicht man Augsburg in ca. 20 Minuten, Landsberg am Lech in etwa 15 Minuten und München über die A96 angenehm schnell. Der Bahnhof Klosterlechfeld, ebenfalls gut erreichbar, bietet regelmäßige Verbindungen in Richtung Augsburg und Füssen. Eine Buslinie verbindet Untermeitingen zudem zuverlässig mit dem Umland.
Naturfreunde kommen ebenfalls auf ihre Kosten: Der Lech mit seinen zahlreichen Rad- und Spazierwegen sowie Naherholungsgebieten liegt in unmittelbarer Nähe und lädt zu Aktivitäten im Freien ein.
Die Kombination aus ruhiger Lage, guter Erreichbarkeit,
moderner Infrastruktur und hoher Lebensqualität macht diese Wohngegend besonders attraktiv – für Paare, Familien und alle, die naturnah und dennoch gut angebunden wohnen möchten.
Infrastruktur (im Umkreis von 5 km):
Apotheke, Lebensmittel-Discount, Allgemeinmediziner, Kindergarten, Grundschule, Hauptschule, Realschule, Gymnasium, Gesamtschule, Öffentliche Verkehrsmittel
Der Ortskern mit Einkaufsmöglichkeiten für den täglichen Bedarf, Bäckereien, Restaurants, Apotheken, Ärzten sowie weiteren Dienstleistern liegt nur wenige Minuten entfernt. Mehrere Kindergärten, eine Grund- und Mittelschule, Sportvereine und Spielplätze machen die Lage besonders attraktiv für Familien.
Für Pendler ideal: Über die nahegelegene B17 erreicht man Augsburg in ca. 20 Minuten, Landsberg am Lech in etwa 15 Minuten und München über die A96 angenehm schnell. Der Bahnhof Klosterlechfeld, ebenfalls gut erreichbar, bietet regelmäßige Verbindungen in Richtung Augsburg und Füssen. Eine Buslinie verbindet Untermeitingen zudem zuverlässig mit dem Umland.
Naturfreunde kommen ebenfalls auf ihre Kosten: Der Lech mit seinen zahlreichen Rad- und Spazierwegen sowie Naherholungsgebieten liegt in unmittelbarer Nähe und lädt zu Aktivitäten im Freien ein.
Die Kombination aus ruhiger Lage, guter Erreichbarkeit,
moderner Infrastruktur und hoher Lebensqualität macht diese Wohngegend besonders attraktiv – für Paare, Familien und alle, die naturnah und dennoch gut angebunden wohnen möchten.
Infrastruktur (im Umkreis von 5 km):
Apotheke, Lebensmittel-Discount, Allgemeinmediziner, Kindergarten, Grundschule, Hauptschule, Realschule, Gymnasium, Gesamtschule, Öffentliche Verkehrsmittel