STREIF Effizienzhaus inkl. Grundstück (KFW 40 Ready)

54426 Malborn
Frei ab: 2027
378.250 € Kaufpreis
Wohnfläche
114 m²
Zimmer
4

Kaufpreis

Kaufpreis 378.250 €

Wohnfläche, Grundstück & Bausubstanz

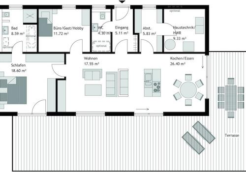
Wohnfläche114 m²
Nutzfläche114 m²
Grundstücksfläche700 m²
Zimmer4
Etagen2
Baujahr2026
Verfügbar ab 2027
ZustandProjektiert

Beschreibung der Immobilie

Bauen ist eine Entscheidung fürs Leben.

Wer ein Haus baut, baut nicht einfach nur vier Wände. Er schafft einen Ort, an dem Familie wächst, Ruhe einkehrt, Zukunft beginnt. So versteht Streif Hausbau!
Seit mehr als 95 Jahren realisiert Streif individuelle Häuser in nachhaltiger Holzständerbauweise. Fast 100.000 Bauvorhaben deutschlandweit, tausende davon hier in der Region. Produziert wird in Weinsheim bei Prüm, mitten in der Eifel. Regional, auf kurzem Weg zugänglich, kein anonymer Konzern.
Streif baut ausschließlich moderne Energiesparhäuser. Förderfähig, zinsvergünstigt, auf langfristige Kostenersparnis ausgelegt. Hochwertige Materialien, klare Abläufe, transparente Bauabwicklung. Von der ersten Skizze bis zur Schlüsselübergabe haben Sie einen festen Ansprechpartner vor Ort.
Durch die industrielle Vorfertigung im Werk entsteht Ihr Haus wetterunabhängig und auf den Millimeter genau. Auf Ihrem Bauplatz steht Ihr Zuhause innerhalb weniger Tage. Von Beginn an planbar, sauber & strukturiert. Streif tritt für Sie und Ihre Familie bei allen Gewerken in Vorleistung und steht zu verbindlichen Festpreis- und Terminzusagen. Das schafft Ihnen Sicherheit, bevor der erste Spatenstich erfolgt.
Ob Einfamilienhaus, Mehrfamilienhaus, Renditeobjekt oder gewerbliches Objekt, Streif plant individuell, modern und zukunftsorientiert. Auch als Ferien- oder Wochenendhaus. Sie können Ihr Haus aktiv mitgestalten, von der Architektur bis zur Ausstattung. Auf Wunsch schlüsselfertig oder mit Eigenleistung. Selbstverständlich auch mit Vorbemusterung und persönlichen Werkterminen.
Streif baut auf Vertrauen.
Wenn Sie nicht einfach nur bauen möchten, sondern sich auch gut aufgehoben wissen wollen, dann lassen Sie uns persönlich miteinander sprechen. Ein direktes Gespräch ist immer der beste Anfang.
Yannick Demmerath
0151 / 7050 7708 - yannick.demmerath@streif.de




Ausstattungsmerkmale

Bad1
Mit den STREIF "Platzwunder"-Häusern beginnt ein neues Kapitel: durchdachte, funktionale Einfamilienhäuser, die genau das bieten, was heute wichtig ist. Raum für Familie, Alltag und Rückzug. Ohne Schnickschnack, aber mit allem, was ein Zuhause braucht.

In diesem Exposé ist ein Platzwunder 03 /Smart Line/ Ausbaustufe fast fertig plus mit 114 qm und Satteldach zu einem Fixpreis beschrieben. (alternativ sind 2 Vollgeschosse mit Flach-/Walmdach gegen Aufpreis genehmigungsfähig)

Mit den STREIF "Platzwunder"-Häusern beginnt ein neues Kapitel: durchdachte, funktionale Einfamilienhäuser, die genau das bieten, was heute wichtig ist. Raum für Familie, Alltag und Rückzug. Ohne Schnickschnack, aber mit allem, was ein Zuhause braucht.
Jeder Entwurf ist so geplant, dass Wohnfläche, Raumfluss und Alltagstauglichkeit im Mittelpunkt stehen. Vom kompakten 107 m²-Stadtvilla-Konzept über familienfreundliche 119 m² und 154 m² Häuser bis hin zu großzügigen 167 m²-Grundrissen: hier findet jedes Leben seinen Raum.
Im Kern verbinden die Platzwunder klar strukturierte Grundrisse mit solider, energieeffizienter Bauweise und einer Ausstattung, die in dieser Klasse überzeugt. Das beginnt bei der hochwertigen Holzständerbauweise, die für angenehmes, gesundes Raumklima sorgt, und setzt sich fort in der modernen Haustechnik: eine STREIF-Luft-Luft-Wärmepumpe mit integrierter Wohnraumlüftung sorgt für frische Luft und niedrige Betriebskosten - schon in der Smartline-Basisversion. (Luft Wasser Wärmepumpe gegen Aufpreis)

Helle Kunststoff-Fenster mit 3-fach-Wärmeschutzverglasung und eine Vorbereitung für Photovoltaik-Installation sind inklusive. Im Hausinneren sind Bad/WC gefliest und mit Marken-Sanitärobjekten ausgestattet, die Elektroinstallation ist komplett geplant, und auf Wunsch gibt es eine Designküche direkt dazu.
Trotz des attraktiven Preisniveaus bleibt die Qualität nicht auf der Strecke: zahlreiche Auszeichnungen, Gütesiegel und unabhängige Prüfungen dokumentieren, dass STREIF-Häuser langlebig, energieeffizient und hochwertig gebaut werden.
Flexibilität bleibt erhalten: Mit dem Smart-Indi-Paket lassen sich Fenster verändern, Grundrisse spiegeln oder Anbauten planen (gegen Aufpreis). Die Speed-Lieferung innerhalb von circa acht Monaten macht den Weg ins eigene Haus planbar und verlässlich.
Das Ergebnis sind Häuser, die genau das tun, was man von einem Zuhause erwartet: sie bieten Raum, Komfort und Alltagstauglichkeit - ohne Kompromisse bei Technik und Bauqualität und zu einem Preis, der fair und nachvollziehbar ist.

Jeder Entwurf ist so geplant, dass Wohnfläche, Raumfluss und Alltagstauglichkeit im Mittelpunkt stehen. Vom kompakten 107 m²-Stadtvilla-Konzept über familienfreundliche 119 m² und 154 m² Häuser bis hin zu großzügigen 167 m²
Grundrissen: Hier findet jedes Leben seinen Raum.

Im Kern verbinden die Platzwunder klar strukturierte Grundrisse mit solider, energieeffizienter Bauweise und einer Ausstattung, die in dieser Klasse überzeugt. Das beginnt bei der hochwertigen Holzständerbauweise, die für angenehmes, gesundes Raumklima sorgt, und setzt sich fort in der modernen Haustechnik: eine STREIF-Luft-Luft-Wärmepumpe mit integrierter Wohnraumlüftung sorgt für frische Luft und niedrige Betriebskosten - schon in der Smartline-Basisversion.

Helle Kunststoff-Fenster mit 3-fach-Wärmeschutzverglasung und eine Vorbereitung für Photovoltaik-Installation sind inklusive. Im Hausinneren sind Bad/WC gefliest und mit Marken-Sanitärobjekten ausgestattet, die Elektroinstallation ist komplett geplant.

Trotz des attraktiven Preisniveaus bleibt die Qualität nicht auf der Strecke: zahlreiche Auszeichnungen, Gütesiegel und unabhängige Prüfungen dokumentieren, dass STREIF-Häuser langlebig, energieeffizient und hochwertig gebaut werden.

Flexibilität bleibt erhalten: Mit dem Smart-Indi-Paket lassen sich Fenster verändern, Grundrisse spiegeln oder Anbauten planen (optional gegen Aufpreis). Auch ein zusätzlicher Balkon und die Aufbemusterung auf KFW 40 ist möglich.
Die Speed-Lieferung innerhalb von circa acht Monaten macht den Weg ins eigene Haus planbar und verlässlich. (zugesicherte 3 Monate von Stelltermin bis Übergabe)

Das Ergebnis sind Häuser, die genau das tun, was man von einem Zuhause erwartet: sie bieten Raum, Komfort und Alltagstauglichkeit - ohne Kompromisse bei Technik und Bauqualität und zu einem Preis, der fair und nachvollziehbar ist.

Zum Angebotspreis kommen die Grundstücksnebenkosten, Baunebenkosten sowie Ihre Eigenleistungen (Böden/Malerarbeiten und Innentüren) hinzu. Keller optional möglich.

Weitere Informationen zu den STREIF Haus Platzwundern finden Sie auf www.streif.de (Suchbegriff Platzwunder)

Energie

Energietyp KfW-55
Energieträger/Befeuerung Luft-Wärme-Pumpe

Karte wird geladen...
54426 Malborn

Lage & Infrastruktur

Ortslage
Ansprechpartner/in: Herr Yannick Demmerath
STREIF Haus GmbH
Josef-Streif-Straße 1, 54595 Weinsheim

Weitere Angebote in Berglicht