NEUBAU - Reihenmittelhaus mit Garten, Garage und zusätzlichem Stellplatz
1.680 €
Kaltmiete
183,28 m²
Wohnfläche
5
Zimmer
immobilien.de Nr.: 9455579
Objektnummer: 576
Mietpreis & Nebenkosten
| Kaltmiete | 1.680 € |
| Nebenkosten | 150 € |
| Heizkosten enthalten | Ja |
| Kaution | 3.560 € |
Wohnfläche, Grundstück & Bausubstanz
| Wohnfläche | 183,28 m² |
| Grundstücksfläche | 167 m² |
| Zimmer | 5 |
| Baujahr | 2026 |
| Verfügbar ab | keine Angabe |
| Zustand | Erstbezug |
Energie
| Energieausweistyp | Bedarfsausweis |
| Ausstellungsdatum | 22. 10. 2025 |
| Gültig bis | 10-2035 |
| Baujahr (laut Energieausweis) | 2026 |
| Energieeffizienzklasse | B |
| Endenergiebedarf | 48.4 |
| Heizungsart | Fernwärme, Fußbodenheizung |
| Energieträger/Befeuerung | Fernwärme, Pellet |
Ausstattungsmerkmale
| Anzahl der Etagen im Haus | 3 |
| Bad | 2 |
| Bad | Dusche, Wanne, Fenster |
| Boden | Fliesen, Kunststoff |
| Garten | |
| Terrassen | 1 |
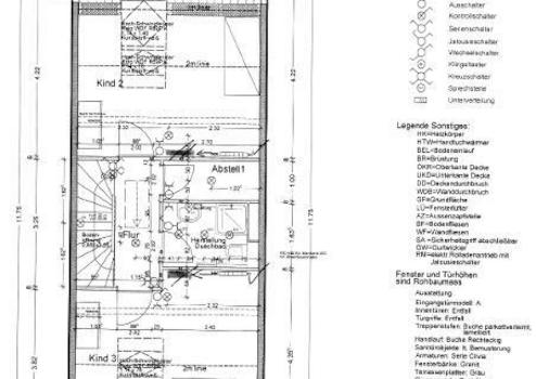
Gebäude: Das Gebäude wird voraussichtlich im Februar 2026 in Massivbauweise (KFW 40) fertig gestellt werden und wird über Nahwärme beheizt. Im Erdgeschoss des Hauses befinden sich ein großzügiger Wohn- /Essbereich mit einer offenen Küche, eine Diele und ein Gäste - WC.
Unter der Treppe, die ins Obergeschoss führt, ist ein Abstellraum für die Unterbringung eines Staubsaugers usw. geplant. Vom Wohnbereich aus haben die Kinder Zugang zum Garten und die Eltern können an sonnigen Tagen auf die Terrasse grillen. An der Hauswand zur Terrasse ist ein
Stromanschluss vorhanden. Der Garten ist mit Rasen und einem Gartenzaun angelegt.
Das gesamte Erdgeschoss ist mit einer Fußbodenheizung ausgestattet. Als Bodenbelag sind Fliesen im Eingangsbereich und dem Gäste – WC verlegt, sonst ist im Erdgeschoss Vinylboden zu finden. Auf Wunsch kann das Haus mit einer Einbauküche angemietet werden
Im Obergeschoss befinden sich ein Bad mit Badewanne und Dusche, Das Elternschlafzimmer mit Zugang zu einem Ankleideraum, ein Kinder- /oder Arbeitszimmer und der Hauswirtschaftsraum. Das Bad ist gefliest, die anderen Räume, sowie der Flur sind mit Vinylboden versehen.
Im Dachgeschoss sind über den Flur zwei weitere Kinder- /oder Arbeitszimmer, ein zweites Bad (mit Dusche) und ein Abstellraum zu erreichen. Die Bodenbeläge sind hier ebenfalls Fliesen (im Bad) und ansonsten überall Vinylböden. Alle Räume des Hauses sind mit Fernsehanschlüssen und
Netzwerkanschlüssen versehen. Der Fernsehempfang ist über SAT oder Internet vorgesehen. Als Internetzugang ist Glasfaser verfügbar, der Anschluss wird über das DG verteilt.
Zum Objekt gehören eine Garage und ein Stellplatz. Haustiere sind im Objekt leider nicht möglich. Das Objekt wird zum Erstbezug übergeben.
Baujahr: 2026
Grundstück: ca. 167 m²
Wohnfläche: ca. 183,28 m²
Heizung: Nahwärmeversorgung (mit Pelletheizung)
Haustiere: Haustiere sind im Haus leider nicht möglich
Internet: Glasfaser 1.000 ist mit bis zu 1.000 MBit/s im Download und bis zu 500 MBit/s im Upload verfügbar (gem. Online-Auskunft der Telekom)
Energiepass: vorhanden
(Bedarf)
Miete/Monat: € 1680.- kalt
Garage/Monat: € 60.-
Stellplatz/Monat: € 40.-
Nebenkosten/Monat: € 150.- (Heizkosten werden über den Versorger abgerechnet, Nebenkosten werden jährlich abgerechnet, exkl. GEZ, Internet, Strom usw.)
Kaution: € 3560.-
Bezug: ab 01.03.2026
Unter der Treppe, die ins Obergeschoss führt, ist ein Abstellraum für die Unterbringung eines Staubsaugers usw. geplant. Vom Wohnbereich aus haben die Kinder Zugang zum Garten und die Eltern können an sonnigen Tagen auf die Terrasse grillen. An der Hauswand zur Terrasse ist ein
Stromanschluss vorhanden. Der Garten ist mit Rasen und einem Gartenzaun angelegt.
Das gesamte Erdgeschoss ist mit einer Fußbodenheizung ausgestattet. Als Bodenbelag sind Fliesen im Eingangsbereich und dem Gäste – WC verlegt, sonst ist im Erdgeschoss Vinylboden zu finden. Auf Wunsch kann das Haus mit einer Einbauküche angemietet werden
Im Obergeschoss befinden sich ein Bad mit Badewanne und Dusche, Das Elternschlafzimmer mit Zugang zu einem Ankleideraum, ein Kinder- /oder Arbeitszimmer und der Hauswirtschaftsraum. Das Bad ist gefliest, die anderen Räume, sowie der Flur sind mit Vinylboden versehen.
Im Dachgeschoss sind über den Flur zwei weitere Kinder- /oder Arbeitszimmer, ein zweites Bad (mit Dusche) und ein Abstellraum zu erreichen. Die Bodenbeläge sind hier ebenfalls Fliesen (im Bad) und ansonsten überall Vinylböden. Alle Räume des Hauses sind mit Fernsehanschlüssen und
Netzwerkanschlüssen versehen. Der Fernsehempfang ist über SAT oder Internet vorgesehen. Als Internetzugang ist Glasfaser verfügbar, der Anschluss wird über das DG verteilt.
Zum Objekt gehören eine Garage und ein Stellplatz. Haustiere sind im Objekt leider nicht möglich. Das Objekt wird zum Erstbezug übergeben.
Baujahr: 2026
Grundstück: ca. 167 m²
Wohnfläche: ca. 183,28 m²
Heizung: Nahwärmeversorgung (mit Pelletheizung)
Haustiere: Haustiere sind im Haus leider nicht möglich
Internet: Glasfaser 1.000 ist mit bis zu 1.000 MBit/s im Download und bis zu 500 MBit/s im Upload verfügbar (gem. Online-Auskunft der Telekom)
Energiepass: vorhanden
(Bedarf)
Miete/Monat: € 1680.- kalt
Garage/Monat: € 60.-
Stellplatz/Monat: € 40.-
Nebenkosten/Monat: € 150.- (Heizkosten werden über den Versorger abgerechnet, Nebenkosten werden jährlich abgerechnet, exkl. GEZ, Internet, Strom usw.)
Kaution: € 3560.-
Bezug: ab 01.03.2026
Sonstige Informationen
Bitte beachten Sie mein vollständiges Angebot unter www.mulfinger-immobilien.de
Karte wird geladen...
Objektstandort
91154 Roth OT
Lage & Infrastruktur
Objektstandort
91154 Roth OT
Lage: Das angebotene Reihenmittelhaus befindet sich in einem Neubaugebiet in Eckersmühlen. Eckersmühlen ist ein Gemeindeteil der Kreisstadt Roth im Landkreis Roth (Mittelfranken, Bayern). Die Gemeinde Eckersmühlen hat 2776 Einwohner und über die Bundesstraße 2 ist Nürnberg in ca. 20 Minuten erreichbar. Die A9 (München – Nürnberg) liegt mit der Auffahrt Allersberg etwa 25 Minuten entfernt. Roth (ca. 5km) und Hilpoltestein (ca. 4 km) sind ebenfalls schnell erreichbar. Als Naherholungsgebiet ist man schnell am Rothsee.
In Eckersmühlen selbst gibt es eine Grundschule. Realschulen und Gymnasien gibt es in Roth und Hilpoltstein. Sämtliche Einkaufsmöglichkeiten sind in Roth gegeben. In Eckersmühlen selbst gibt es einen Allgemeinarzt, weitere Ärzte sind in Roth zu finden. Weiterhin gibt es in Eckersmühlen auch eine Zugverbindung nach Roth und Hilpoltstein. Die Planungen für einen S-Bahn-Anschluss bis Nürnberg sind auch bereits freigegeben.
In Eckersmühlen selbst gibt es eine Grundschule. Realschulen und Gymnasien gibt es in Roth und Hilpoltstein. Sämtliche Einkaufsmöglichkeiten sind in Roth gegeben. In Eckersmühlen selbst gibt es einen Allgemeinarzt, weitere Ärzte sind in Roth zu finden. Weiterhin gibt es in Eckersmühlen auch eine Zugverbindung nach Roth und Hilpoltstein. Die Planungen für einen S-Bahn-Anschluss bis Nürnberg sind auch bereits freigegeben.
Kontaktanfrage senden
Über den Anbieter
Mulfinger Immobilien
Braungardtstrasse 13
91325 Adelsdorf-Neuhaus
Kontakt
| Telefon | 0171 2441686 |
| Mobil | 0171 2441686 |
| Fax | 09195 992344 |
| Website | www.mulfinger-immobilien.de |
Ansprechpartner/in
Herr Volker Mulfinger
Weitere Angebote des Anbieters
48
Reihenmittelhaus mit Garten und Carport in ...
Haus
91315 Höchstadt OT
1.350 €
Kaltmiete
120 m²
Wohnfläche
5
Zimmer
22
3 Zi. EG Wohnung mit Balkon
Wohnung
96178 Pommersfelden
700 €
Kaltmiete
70 m²
Wohnfläche
3
Zimmer
20
2 Zi. EG/DG Wohnung mit Terrasse in Frauenaurach
Wohnung
91056 Erlangen OT
580 €
Kaltmiete
49,96 m²
Wohnfläche
2
Zimmer
40
NEUBAU - Reihenmittelhaus mit Garten, Garage und ...
Haus
91154 Roth OT
1.680 €
Kaltmiete
183,28 m²
Wohnfläche
5
Zimmer
3
4 Zi. Neubauwohnung (Nr. 7) im OG mit Balkon
Wohnung
91325 Adelsdorf OT
1.280 €
Kaltmiete
115,07 m²
Wohnfläche
4
Zimmer