Zentrale Kapitalanlage: Gepflegtes Wohn- und Geschäftshaus in Coesfeld
1.600.000 €
Kaufpreis
333 m²
Wohnfläche
immobilien.de Nr.: 9452581
Objektnummer: FALC-NJa-79957
Kaufpreis
| Kaufpreis | 1.600.000 € |
| Kaufpreis pro m² | 1854 € |
Wohnfläche, Grundstück & Bausubstanz
| Wohnfläche | 333 m² |
| Gesamtfläche | 863 m² |
| Grundstücksfläche | 362 m² |
| Baujahr | 1961 |
| Letzte Modernisierung | 2025 |
| Verfügbar ab | keine Angabe |
| Zustand | Modernisiert |
Energie
| Energieausweistyp | Verbrauch |
| Ausstellungsdatum | 03. 02. 2026 |
| Gültig bis | 03.02.2036 |
| Energieeffizienzklasse | D |
| Energieverbrauchkennwert | 124.9 kWh/(m²*a) |
| Wesentlicher Energieträger | Erdgas Leicht |
Beschreibung der Immobilie
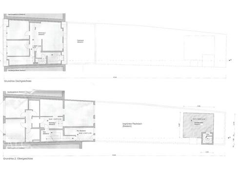
Bei dem angebotenen Objekt handelt es sich um ein gepflegtes Wohn- und Geschäftshaus in zentraler Lage von Coesfeld - Für den Einzelhandel eine klare 1A - Lage. Das Gebäudeensemble besteht aus einem Vorderhaus aus dem Baujahr 1961 sowie einem später errichteten Anbau aus dem Jahr 1981 und präsentiert sich heute in einem modernisierten und gut instandgehaltenen Zustand. In den vergangenen Jahren wurden umfangreiche Sanierungs- und Modernisierungsmaßnahmen durchgeführt, darunter die Erneuerung der Heizungsanlage, der Wasserleitungen, der Dachflächen inklusive Dämmung sowie der Fassade. Auch der Innenausbau wurde kontinuierlich weiterentwickelt, unter anderem durch die Schaffung zusätzlicher Wohnflächen in den oberen Geschossen.
Das Objekt umfasst insgesamt fünf Einheiten, bestehend aus zwei Gewerbeeinheiten im Erd- und ersten Obergeschoss sowie drei Wohneinheiten in den oberen Etagen. Das Erdgeschoss ist vollständig an einen Einzelhändler vermietet und wurde zuletzt 2018 modernisiert. Im Anbau befindet sich eine hochwertige Loft-Wohnung mit großzügiger Dachterrasse. Die weiteren Wohneinheiten sind ebenfalls vermietet und bieten attraktive, zeitgemäße Wohnqualitäten.
Das vollständig unterkellerte Gebäude verfügt zudem über Außenstellplätze im rückwärtigen Bereich. Insgesamt stellt das Objekt eine solide Kapitalanlage mit einer attraktiven Mischung aus Wohn- und Gewerbeflächen dar.
Nicht alle Einheiten verfügen über eine Einbauküche.
Weitere Bilder und Informationen gerne auf Anfrage.
Mieteinnahmen und Informationen zu Mietern gerne ebenfalls auf Anfrage.
Das Objekt umfasst insgesamt fünf Einheiten, bestehend aus zwei Gewerbeeinheiten im Erd- und ersten Obergeschoss sowie drei Wohneinheiten in den oberen Etagen. Das Erdgeschoss ist vollständig an einen Einzelhändler vermietet und wurde zuletzt 2018 modernisiert. Im Anbau befindet sich eine hochwertige Loft-Wohnung mit großzügiger Dachterrasse. Die weiteren Wohneinheiten sind ebenfalls vermietet und bieten attraktive, zeitgemäße Wohnqualitäten.
Das vollständig unterkellerte Gebäude verfügt zudem über Außenstellplätze im rückwärtigen Bereich. Insgesamt stellt das Objekt eine solide Kapitalanlage mit einer attraktiven Mischung aus Wohn- und Gewerbeflächen dar.
Nicht alle Einheiten verfügen über eine Einbauküche.
Weitere Bilder und Informationen gerne auf Anfrage.
Mieteinnahmen und Informationen zu Mietern gerne ebenfalls auf Anfrage.
Ausstattungsmerkmale
| Küche | Einbauküche |
| Balkone | 1 |
| Keller |
Wohn- und Geschäftshaus in Coesfeld
Grundstück: 362 qm
Baujahr Vorderhaus: 1961
Baujahr Anbau: 1981
Fassade neugestaltet: 2001
Flachdach Anbau erneuert und begrünt: 2006
Neue Gasheizung: September 2016
Erneuerung Wasserleitungen Vorderhaus: November 2016
Umbau 2. OG von Büro zu Wohnung: November 2016
Dachbodenisolierung: Sommer 2017
Ausbau 3. OG zur Wohnung: 2017
Neugestaltung EG (Verkaufsräume/Eingang): Mai 2018
Betonschutzanstrich Anbau Rückseite: 2019
Ausbau 1. OG Anbau zur Loft-Wohnung mit Dachterrasse: 2020/21
Neue Fenster und gedämmte Fassade Rückseite 2. OG: 2022
Neue gedämmte Fassade 3. OG: 2023
Neues, isoliertes Dach Vorderhaus: 2023
Betonschutzanstrich Anbau Seitenwände: 2023 und 2025
- Flächen & Nutzung:
Gesamtfläche: ca. 863 qm
Wohnfläche: ca. 333 qm
Gewerbefläche: ca. 530 qm
Voll unterkellert mit hohen Decken
Im Keller sind weitere Verkaufsflächen möglich
Grundstück: 362 qm
Baujahr Vorderhaus: 1961
Baujahr Anbau: 1981
Fassade neugestaltet: 2001
Flachdach Anbau erneuert und begrünt: 2006
Neue Gasheizung: September 2016
Erneuerung Wasserleitungen Vorderhaus: November 2016
Umbau 2. OG von Büro zu Wohnung: November 2016
Dachbodenisolierung: Sommer 2017
Ausbau 3. OG zur Wohnung: 2017
Neugestaltung EG (Verkaufsräume/Eingang): Mai 2018
Betonschutzanstrich Anbau Rückseite: 2019
Ausbau 1. OG Anbau zur Loft-Wohnung mit Dachterrasse: 2020/21
Neue Fenster und gedämmte Fassade Rückseite 2. OG: 2022
Neue gedämmte Fassade 3. OG: 2023
Neues, isoliertes Dach Vorderhaus: 2023
Betonschutzanstrich Anbau Seitenwände: 2023 und 2025
- Flächen & Nutzung:
Gesamtfläche: ca. 863 qm
Wohnfläche: ca. 333 qm
Gewerbefläche: ca. 530 qm
Voll unterkellert mit hohen Decken
Im Keller sind weitere Verkaufsflächen möglich
Sonstige Informationen
Wir bieten nicht nur eine kostenlose Hotline, sondern auch einen Service am Wochenende. Bei Interesse geben Sie bitte immer Ihre vollständigen Kontaktdaten an.
Die Objektbeschreibung beruht ganz oder zum Teil auf Angaben des Eigentümers. Für die Richtigkeit oder Vollständigkeit übernehmen wir keine Gewähr.
Sie wollen Ihre Immobilie ebenfalls professionell vermarkten, rufen Sie uns an, wir stehen Ihnen von Mo. bis So. von 6.00 - 22.00h persönlich zur Seite!
Über 150.000 aktive Interessenten warten bereits auf Sie.
FALC Immobilien
Nico Jakob
01577 4619816
0800 - 646 0 646 Mo. bis So. von 6.00 - 22.00h
Die Objektbeschreibung beruht ganz oder zum Teil auf Angaben des Eigentümers. Für die Richtigkeit oder Vollständigkeit übernehmen wir keine Gewähr.
Sie wollen Ihre Immobilie ebenfalls professionell vermarkten, rufen Sie uns an, wir stehen Ihnen von Mo. bis So. von 6.00 - 22.00h persönlich zur Seite!
Über 150.000 aktive Interessenten warten bereits auf Sie.
FALC Immobilien
Nico Jakob
01577 4619816
0800 - 646 0 646 Mo. bis So. von 6.00 - 22.00h
Karte wird geladen...
Objektstandort
48653 Coesfeld
- Nordrhein-Westfalen
Lage & Infrastruktur
Objektstandort
48653 Coesfeld
- Nordrhein-Westfalen
Das Objekt befindet sich in der Letter Straße 8b in 48653 Coesfeld, einer mittelgroßen Stadt im westlichen Münsterland. Die Lage zeichnet sich durch eine gute Anbindung an das Stadtzentrum aus, das in wenigen Minuten erreichbar ist. Einkaufsmöglichkeiten, Dienstleister, Restaurants und öffentliche Einrichtungen befinden sich in unmittelbarer Umgebung.
Coesfeld bietet eine hohe Lebensqualität mit einer gut ausgebauten Infrastruktur, zahlreichen Grünflächen und einem breiten Bildungs- und Freizeitangebot. Die Verkehrsanbindung ist sowohl für den Individualverkehr als auch für den öffentlichen Personennahverkehr günstig. Über die nahegelegenen Bundesstraßen besteht eine gute Erreichbarkeit der umliegenden Städte und des gesamten Münsterlandes.
Die Kombination aus zentraler Lage und ruhigem Umfeld macht den Standort sowohl für gewerbliche Mieter als auch für Bewohner besonders attraktiv.
Coesfeld bietet eine hohe Lebensqualität mit einer gut ausgebauten Infrastruktur, zahlreichen Grünflächen und einem breiten Bildungs- und Freizeitangebot. Die Verkehrsanbindung ist sowohl für den Individualverkehr als auch für den öffentlichen Personennahverkehr günstig. Über die nahegelegenen Bundesstraßen besteht eine gute Erreichbarkeit der umliegenden Städte und des gesamten Münsterlandes.
Die Kombination aus zentraler Lage und ruhigem Umfeld macht den Standort sowohl für gewerbliche Mieter als auch für Bewohner besonders attraktiv.
Kontaktanfrage senden
Über den Anbieter
FALC Immobilien GmbH & Co. KG
Humperdickstr. 3
53773 Hennef (Sieg)
Kontakt
| Telefon | +49 800 6460646 |
| Mobil | +49 157 74619816 |
| Fax | +49 2242 9010319 |
| Website | www.falcimmo.de |
Ansprechpartner/in
Herr Nico Jakob