Bezug Ende 2026! Neubau ETW mit Aufzug und Tiefgarage als KFW 40 und QNG-Förderkredit
379.900 €
Kaufpreis
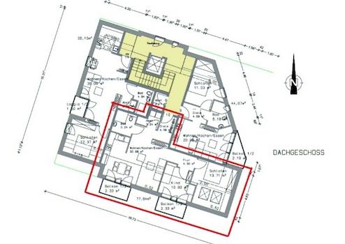
77,64 m²
Wohnfläche
3
Zimmer
immobilien.de Nr.: 9451882
Objektnummer: 5135_10SB_2
Kaufpreis
| Kaufpreis | 379.900 € |
| Stellplatz Freiplatz Kaufpreis | 6.900 € |
| Stellplatz Tiefgarage Kaufpreis | 24.900 € |
Wohnfläche, Grundstück & Bausubstanz
| Wohnfläche | 77,64 m² |
| Zimmer | 3 |
| Baujahr | 2025 |
| Verfügbar ab | 2026 |
| Zustand | Erstbezug |
Energie
| Energietyp | Niedrigenergie, KfW-40 |
| Heizungsart | Zentralheizung, Fußbodenheizung |
| Energieträger/Befeuerung | Luft-Wärme-Pumpe |
Beschreibung der Immobilie
Diese 11 Neubau-Eigentumswohnungen in der Größe von 31 m² - 77 m² Wohnfläche werden als Effizienzhaus-Stufe KFW 40 mit QNG Zertifikat erstellt.
Nutzen Sie die Möglichkeit mit dem Förderprogramm: Klimafreundlicher Neubau, der staatlichen Förderbank KFW Ihre Wohneinheit zu finanzieren.
Dieses Programm hat die Programmnummer KfW 297/298 und bietet Ihnen Förderkredite
über 150.000,- EUR zu sehr günstigen Konditionen.
Es ermöglicht Eigentümern zusätzliche steuerliche Abschreibungen geltend zu machen. Die Regelung zielt darauf ab, den Bau von energieeffizienten und nachhaltigen Wohngebäuden zu fördern.
Die normale AfA ist in beiden Formen zulässig als 3 % lineare oder 5 % degressive.
Die Sonderabschreibung nach § 7 b ist möglich. Dies sind noch einmal 5 % auf maximal 4000 Euro/qm für 4 Jahre. Im ersten Jahr sind das dann z.B. 10 % AfA.
Diese hochwertigen, komfortablen und massiv gebauten Eigentumswohnungen werden in ansprechender und hochwertiger Ausstattung gebaut.
Das Haus wird mit Aufzugsanlage und Tiefgarage bezugsfertig erstellt.
Die Wohnungen bieten Ihnen die besten Voraussetzungen nach Ihren individuellen Bedürfnissen wohnen zu können. Ob Eigennutzer oder Kapitalanleger, profitieren Sie von den werthaltigen Nutzungsmöglichkeiten. Zu den Wohnungen im Erdgeschoss gehört eine große Terrasse mit alleiniger Gartennutzung um Ihre Wohnung herum,
die Wohnungen in den oberen Geschossen sind durch den Aufzug barrierefrei zu erreichen und erhalten je einen schönen Balkon.
Zu jeder Wohnung gehört ein PKW-Tiefgaragen-Stellplatz der zusätzlich 24.900,-EUR kostet, ebenfalls gibt es 2 PKW Außenstellplätze für jeweils 6.900,- EUR.
Nutzen Sie die Möglichkeit mit dem Förderprogramm: Klimafreundlicher Neubau, der staatlichen Förderbank KFW Ihre Wohneinheit zu finanzieren.
Dieses Programm hat die Programmnummer KfW 297/298 und bietet Ihnen Förderkredite
über 150.000,- EUR zu sehr günstigen Konditionen.
Es ermöglicht Eigentümern zusätzliche steuerliche Abschreibungen geltend zu machen. Die Regelung zielt darauf ab, den Bau von energieeffizienten und nachhaltigen Wohngebäuden zu fördern.
Die normale AfA ist in beiden Formen zulässig als 3 % lineare oder 5 % degressive.
Die Sonderabschreibung nach § 7 b ist möglich. Dies sind noch einmal 5 % auf maximal 4000 Euro/qm für 4 Jahre. Im ersten Jahr sind das dann z.B. 10 % AfA.
Diese hochwertigen, komfortablen und massiv gebauten Eigentumswohnungen werden in ansprechender und hochwertiger Ausstattung gebaut.
Das Haus wird mit Aufzugsanlage und Tiefgarage bezugsfertig erstellt.
Die Wohnungen bieten Ihnen die besten Voraussetzungen nach Ihren individuellen Bedürfnissen wohnen zu können. Ob Eigennutzer oder Kapitalanleger, profitieren Sie von den werthaltigen Nutzungsmöglichkeiten. Zu den Wohnungen im Erdgeschoss gehört eine große Terrasse mit alleiniger Gartennutzung um Ihre Wohnung herum,
die Wohnungen in den oberen Geschossen sind durch den Aufzug barrierefrei zu erreichen und erhalten je einen schönen Balkon.
Zu jeder Wohnung gehört ein PKW-Tiefgaragen-Stellplatz der zusätzlich 24.900,-EUR kostet, ebenfalls gibt es 2 PKW Außenstellplätze für jeweils 6.900,- EUR.
Ausstattungsmerkmale
| Anzahl der Etagen im Haus | 2 |
| Inserat befindet sich im Stockwerk | 2 |
| Bad | 1 |
| Bad | Dusche |
| Boden | Fliesen, Fertigparkett |
| Balkone | 1 |
| Fahrstuhl | |
| Barrierefrei |
Vorteile die überzeugen:
heller großzügiger Grundriss
moderne Aufzugsanlage bis auf die Wohnetage
niedrige Energiekosten
stadtnahe Wohnlage
großer Balkon / Terrasse
sehr gut möblierbare Grundrisse
große Fenster mit 3-fach Verglasung
Fußbodenheizung, jeder Raum einzeln steuerbar
Zeitgemäße Gebäudetechnik mit Photovoltaik Anlage
KfW Klimafreundlicher Neubau mit QNG Zertifikat ermöglicht einen Förderkredit bis zu 150.000,- EUR je Wohneinheit zu zinsgünstigen Konditionen
Sonderabschreibung für Kapitalanleger
zentrale Luftwärmepumpe
Aufzug
Barrierefrei
Laminat-, Vinyl-, Parkett-, Korkboden nach Wahl
Malerarbeiten
Kunststoff-Fenster mit 3-fach-Verglasung und Wärmeisolierglas
Elektrische Rollladen
bodengleiche Duschen
Sicherheitsglas-Duschkabine
Handtuchheizkörper im Bad
Tiefgaragenstellplatz oder Außenstellplatz (gegen Mehrpreis)
Video-Sprechanlage
keine zus. Maklergebühr
heller großzügiger Grundriss
moderne Aufzugsanlage bis auf die Wohnetage
niedrige Energiekosten
stadtnahe Wohnlage
großer Balkon / Terrasse
sehr gut möblierbare Grundrisse
große Fenster mit 3-fach Verglasung
Fußbodenheizung, jeder Raum einzeln steuerbar
Zeitgemäße Gebäudetechnik mit Photovoltaik Anlage
KfW Klimafreundlicher Neubau mit QNG Zertifikat ermöglicht einen Förderkredit bis zu 150.000,- EUR je Wohneinheit zu zinsgünstigen Konditionen
Sonderabschreibung für Kapitalanleger
zentrale Luftwärmepumpe
Aufzug
Barrierefrei
Laminat-, Vinyl-, Parkett-, Korkboden nach Wahl
Malerarbeiten
Kunststoff-Fenster mit 3-fach-Verglasung und Wärmeisolierglas
Elektrische Rollladen
bodengleiche Duschen
Sicherheitsglas-Duschkabine
Handtuchheizkörper im Bad
Tiefgaragenstellplatz oder Außenstellplatz (gegen Mehrpreis)
Video-Sprechanlage
keine zus. Maklergebühr
Sonstige Informationen
Das Angebot gefällt Ihnen ?
Schreiben Sie uns über den Kontakt-Button des jeweiligen Internetportales, wir übersenden Ihnen ein Exposé.
Es fällt keine Maklergebühr an, Sie kaufen direkt vom Ersteller!
Gerne möchte ich Sie zu einer Tasse Kaffee zu uns ins Büro an die Detmolder Str. 71 einladen, um Ihnen weitere Informationen zu geben, oder vereinbaren Sie mit mir Ihren unverbindlichen Beratungs- und Besichtigungstermin .
Sie erreichen uns:
Georg Knaup : 05251 - 20 778 10 und Mobil: 0171 21 22 320
und
Andreas Scheurell: 05251 - 2077818 und Mobil 0170 23 07 555
weitere Angebote unter www.Immopartner-PB.de
Haben Sie bereits ein Finanzierungsangebot Ihrer Bank?
Auch hier helfen wir Ihnen gerne weiter und vermitteln Ihnen ein Beratungsgespräch mit einem Bank - unabhängigen Finanzierungsexperten,
unverbindlich und kostenlos.
Sonstiges:
Alle Angaben ohne Gewähr!
Der Makler haftet nicht für Tipp- oder Datenübermittlungsfehler.
Vertragsgrundlage ist ausschließlich der Notarielle Kaufvertag.
Schreiben Sie uns über den Kontakt-Button des jeweiligen Internetportales, wir übersenden Ihnen ein Exposé.
Es fällt keine Maklergebühr an, Sie kaufen direkt vom Ersteller!
Gerne möchte ich Sie zu einer Tasse Kaffee zu uns ins Büro an die Detmolder Str. 71 einladen, um Ihnen weitere Informationen zu geben, oder vereinbaren Sie mit mir Ihren unverbindlichen Beratungs- und Besichtigungstermin .
Sie erreichen uns:
Georg Knaup : 05251 - 20 778 10 und Mobil: 0171 21 22 320
und
Andreas Scheurell: 05251 - 2077818 und Mobil 0170 23 07 555
weitere Angebote unter www.Immopartner-PB.de
Haben Sie bereits ein Finanzierungsangebot Ihrer Bank?
Auch hier helfen wir Ihnen gerne weiter und vermitteln Ihnen ein Beratungsgespräch mit einem Bank - unabhängigen Finanzierungsexperten,
unverbindlich und kostenlos.
Sonstiges:
Alle Angaben ohne Gewähr!
Der Makler haftet nicht für Tipp- oder Datenübermittlungsfehler.
Vertragsgrundlage ist ausschließlich der Notarielle Kaufvertag.
Karte wird geladen...
Objektstandort
33100 Paderborn
Lage & Infrastruktur
Objektstandort
33100 Paderborn
Diese modernen Neubau-Eigentumswohnungen entstehen in einer Stichstraße, im direkten Kernstadtbereich von Paderborn, östlich der Paderborner Innenstadt in einem gewachsenen Wohngebiet zwischen der Detmolder Straße und der Benhauser Straße. Die Innenstadt ist fußläufig erreichbar.
Hier herrscht eine angenehme Atmosphäre, die perfekt für alle geeignet ist die dem Trubel der Stadt entfliehen möchten. Die Straße selbst ist eine Sackgasse, was bedeutet, dass hier kaum Verkehr herrscht und somit eine ruhige Wohngegend garantiert ist.
Direkt vor der Haustür befindet sich eine wunderschöne Grünanlage namens Tausendquell, die zum Spazieren und Verweilen einlädt. Hier kann man dem Alltagsstress entfliehen und die Natur in vollen Zügen genießen. Besonders im Frühling, wenn die Blumen blühen und die Vögel zwitschern, ist die Grünanlage ein wahrer Ort der Entspannung.
Die Nachbarschaft ist freundlich und hilfsbereit, sodass man sich schnell heimisch fühlt.
In der Nähe der Wohnung gibt es verschiedene Einkaufsmöglichkeiten, eine Bäckerei und eine Apotheke, auch Schulen und Kindergärten sind in der Umgebung.
Die Anbindung an den öffentlichen Nahverkehr ist ebenfalls sehr gut. In wenigen Minuten erreicht man zu Fuß die nächste Bushaltestelle, von der aus man bequem in die Innenstadt gelangen kann.
Zusammenfassend lässt sich sagen, dass die Wohnung in der Straße An der Springbeke ein wahrer Glücksgriff ist. Hier vereinen sich Ruhe, Natur und eine gute Infrastruktur zu einer perfekten Wohnlage.
Hier herrscht eine angenehme Atmosphäre, die perfekt für alle geeignet ist die dem Trubel der Stadt entfliehen möchten. Die Straße selbst ist eine Sackgasse, was bedeutet, dass hier kaum Verkehr herrscht und somit eine ruhige Wohngegend garantiert ist.
Direkt vor der Haustür befindet sich eine wunderschöne Grünanlage namens Tausendquell, die zum Spazieren und Verweilen einlädt. Hier kann man dem Alltagsstress entfliehen und die Natur in vollen Zügen genießen. Besonders im Frühling, wenn die Blumen blühen und die Vögel zwitschern, ist die Grünanlage ein wahrer Ort der Entspannung.
Die Nachbarschaft ist freundlich und hilfsbereit, sodass man sich schnell heimisch fühlt.
In der Nähe der Wohnung gibt es verschiedene Einkaufsmöglichkeiten, eine Bäckerei und eine Apotheke, auch Schulen und Kindergärten sind in der Umgebung.
Die Anbindung an den öffentlichen Nahverkehr ist ebenfalls sehr gut. In wenigen Minuten erreicht man zu Fuß die nächste Bushaltestelle, von der aus man bequem in die Innenstadt gelangen kann.
Zusammenfassend lässt sich sagen, dass die Wohnung in der Straße An der Springbeke ein wahrer Glücksgriff ist. Hier vereinen sich Ruhe, Natur und eine gute Infrastruktur zu einer perfekten Wohnlage.
Kontaktanfrage senden
Über den Anbieter
Immopartner Paderborn
Detmolder Str. 71
33100 Paderborn
Kontakt
| Telefon | 05251 20 778-10 |
| Mobil | 0171 21 22 320 |
| Fax | 05251 20 778-29 |
| Website | www.Immopartner-PB.de |
Ansprechpartner/in
Georg Knaup