Wunderschönes Einfamilienhaus mit Einliegerwohnung!
737.400 €
Kaufpreis
167,94 m²
Wohnfläche
167 m²
Nutzfläche
5
Zimmer
immobilien.de Nr.: 9451376
Objektnummer: KT-013-033-NAU
Kaufpreis
| Kaufpreis | 737.400 € |
Wohnfläche, Grundstück & Bausubstanz
| Wohnfläche | 167,94 m² |
| Nutzfläche | 167 m² |
| Grundstücksfläche | 1.242 m² |
| Zimmer | 5 |
| Verfügbar ab | keine Angabe |
| Zustand | Projektiert |
Energie
| Energietyp | KfW-40 |
| Energieträger/Befeuerung | Luft-Wärme-Pumpe |
Beschreibung der Immobilie
Das Einfamilienhaus mit Einliegerwohnung ist in der Architektur klassisch mit einem
Satteldach geplant worden. Die Einliegerwohnung ist zum Vermieten, für ein
Familienmitglied oder auch für eine Selbstständigkeit geeignet. Die "Hauptwohnung" bietet
im Erdgeschoss einen behaglichen Wohn-/Ess- und Kochbereich, der über 4 Terrassentüren
und 3 Fenster von drei Seiten mit viel Tageslicht versorgt wird. Die 4 Terrassentüren sind
übereck angeordnet, sodass sich beim Essbereich "Wintergartenfeeling" verbreitet. Im
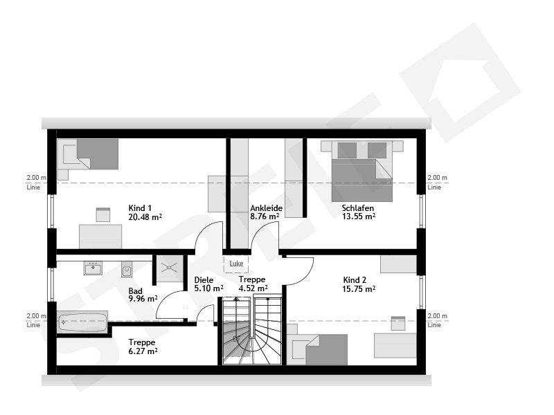
Dachgeschoss des Hauses finden zwei große Kinderzimmer Platz, sowie ein Elternbereich
mit Ankleide, ein großes Familienbad und einen Abstellraum. Insgesamt bietet das Haus
eine Netto-Raumfläche von 169,1 m².
Satteldach geplant worden. Die Einliegerwohnung ist zum Vermieten, für ein
Familienmitglied oder auch für eine Selbstständigkeit geeignet. Die "Hauptwohnung" bietet
im Erdgeschoss einen behaglichen Wohn-/Ess- und Kochbereich, der über 4 Terrassentüren
und 3 Fenster von drei Seiten mit viel Tageslicht versorgt wird. Die 4 Terrassentüren sind
übereck angeordnet, sodass sich beim Essbereich "Wintergartenfeeling" verbreitet. Im
Dachgeschoss des Hauses finden zwei große Kinderzimmer Platz, sowie ein Elternbereich
mit Ankleide, ein großes Familienbad und einen Abstellraum. Insgesamt bietet das Haus
eine Netto-Raumfläche von 169,1 m².
Ausstattungsmerkmale
| Anzahl der Etagen im Haus | 2 |
| Küche | Offene Küche |
| Bad | 1 |
| Bad | Dusche, Wanne, Fenster |
Dieses Einfamilienhaus überzeugt durch seine gehobene Ausstattung und modernste Bauweise. Die effiziente Wärmepumpe garantiert eine umweltfreundliche Befeuerung und trägt zur Reduzierung der Energiekosten bei. Dank des KFW40 Standards profitieren Sie von einem besonders niedrigen Energieverbrauch. Das Haus bietet die Möglichkeit zur individuellen Gestaltung, sei es mit einem Walmdach, Flachdach oder klassischem Satteldach - ganz nach Ihren Wünschen.
Sonstige Informationen
Bei STREIF haben Sie die Wahl zwischen verschiedenen Ausbaustufen, wobei dieses projektierte Objekt die Stufe 'FastFertigPlus' umfasst. Diese Stufe beinhaltet eine Sanitär-Grundausstattung, während haustechnische Gewerke wie Heizung, Lüftung und Estrich von Fachbetrieben erledigt werden. Dies ermöglicht Ihnen, selbst Hand anzulegen und kosteneffizient zu bauen. Der Preis für das Haus beginnt ab 344.375 EUR. Vor jedem Bauprojekt stehen wir Ihnen beratend zur Seite, um Ihre Wünsche genau zu erfassen und Ihr Traumhaus maßgeschneidert zu planen.
Karte wird geladen...
Objektstandort
14641 Nauen
Lage & Infrastruktur
Objektstandort
14641 Nauen
Der Standort Nauen besticht durch seine hervorragende Infrastruktur und eine Vielzahl an Freizeitmöglichkeiten. Genießen Sie die ruhige Umgebung mit der Nähe zu allen wichtigen Einrichtungen des täglichen Bedarfs sowie Schulen und Kindergärten. Die gute Verkehrsanbindung ermöglicht es Ihnen, schnell in die umliegenden Städte zu gelangen.
Kontaktanfrage senden
Über den Anbieter
STREIF Haus GmbH
Josef-Streif-Straße 1
54595 Weinsheim
Kontakt
| Telefon | +49 3327 6679010 |
| Mobil | +49 179 5093906 |
| Website | www.streif.de |
Ansprechpartner/in
Herr Kai Günther Trapp (IHK Zertifiziert)