"Ein Zuhause für höchste Ansprüche"
1.283.080 €
Kaufpreis
212,78 m²
Wohnfläche
212 m²
Nutzfläche
5
Zimmer
immobilien.de Nr.: 9451360
Objektnummer: KT-002-033-STA
Kaufpreis
| Kaufpreis | 1.283.080 € |
Wohnfläche, Grundstück & Bausubstanz
| Wohnfläche | 212,78 m² |
| Nutzfläche | 212 m² |
| Grundstücksfläche | 1.213 m² |
| Zimmer | 5 |
| Verfügbar ab | keine Angabe |
Energie
| Energieträger/Befeuerung | Luft-Wärme-Pumpe |
Beschreibung der Immobilie
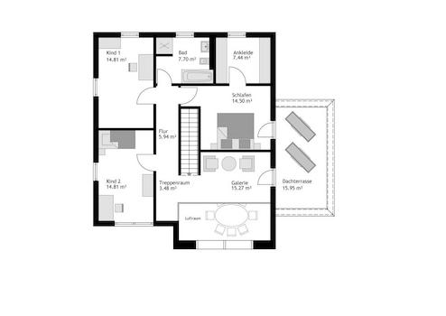
Die Architektur des Hauses ist im klassischen Stadtvillenstil gehalten. Der Grundriss ist klug durchdacht. Im Erdgeschoss befinden sich ein offen gestalteter Wohn-/Ess- und Kochbereich mit einem praktischen Haustechnik-/Hauswirtschaftsraum, direkt neben der Küche. Ein Zusatzraum, der als Homeoffice, Gäste-, Schlaf- oder Hobbyraum genutzt werden kann, bietet zusätzlichen Komfort. Die Diele mit dem Treppenhaus ist mittig angeordnet, neben dem Eingangsbereich ist eine Garderobennische und ein Gäste/WC eingeplant. Das Gäste-WC kann optional auch als Duschbad ausgebaut werden. Im Obergeschoss des Hausentwurfes befinden sich zwei nahezu gleich große Kinderzimmer, ein geräumiges Familienbad und der Elternschlafbereich mit Ankleide und direktem Zugang zum Bad.
Ausstattungsmerkmale
| Anzahl der Etagen im Haus | 2 |
| Küche | Einbauküche |
| Bad | 1 |
| Bad | Dusche, Wanne, Fenster |
Sonstige Informationen
Das projektierte Objekt wird in der Ausbaustufe 3 - FastFertigPlus angeboten, welche eine nahezu schlüsselfertige Übergabe mit bereits installierter Sanitär-Grundausstattung umfasst. Diese Ausbaustufe ist ideal für Bauherren, die bei der Errichtung ihres Hauses mitwirken möchten, aber die komplexen haustechnischen Gewerke wie Heizung, Lüftung und Sanitär von Fachbetrieben erledigen lassen möchten. Der Einstiegspreis für den Haustyp STREIF-City beginnt bei 344.375 EUR. Durch Eigenleistungen können Sie zudem erheblich sparen und damit Kreditlaufzeiten verkürzen.
Karte wird geladen...
Objektstandort
14532 Stahnsdorf
Lage & Infrastruktur
Objektstandort
14532 Stahnsdorf
Stahnsdorf bietet eine idyllische Lage mit hervorragender Infrastruktur. Das großzügige Grundstück von 1213 m² lädt zu ausgedehnten Erholungsmöglichkeiten im eigenen Garten ein. Dank der idealen Anbindung an öffentliche Verkehrsmittel und Autobahnen erreichen Sie schnell das Stadtzentrum sowie umliegende Freizeit- und Einkaufsmöglichkeiten.
Kontaktanfrage senden
Über den Anbieter
STREIF Haus GmbH
Josef-Streif-Straße 1
54595 Weinsheim
Kontakt
| Telefon | +49 3327 6679010 |
| Mobil | +49 179 5093906 |
| Website | www.streif.de |
Ansprechpartner/in
Herr Kai Günther Trapp (IHK Zertifiziert)
Weitere Angebote des Anbieters
20
Sehr schöne Stadtvilla in erstklassiger Lage von St. ...
Haus
66386 St. Ingbert
Viel Platz und von Licht erfüllte Räume bietet diese traumhafte Stadtvilla. Im Erdgeschoss bildet der offen gestaltete Wohn-, Ess- und Kochbereich mit 49 m² das Herzstück des Hauses. Der gesamte Wohnbereich wird von ...
608.000 €
Kaufpreis
186 m²
Wohnfläche
5
Zimmer
30
STREIF baut Euer perfektes Zuhause
Haus
76707 Hambrücken
Das zweieinhalbgeschossige Mehrfamilienhaus mit zwei Wohnungen überzeugt mit einer klassisch eleganten Architektur mit Satteldach und zwei behaglichen Terrassen. Der Hausentwurf kann mit Stahlbalkonen an der ...
1.293.936 €
Kaufpreis
358 m²
Wohnfläche
18
Zimmer
30
STREIF baut Euer perfektes Zuhause
Haus
76707 Hambrücken
Das zweigeschossige Mehrfamilienhaus mit zwei Wohnungen überzeugt mit einer klassisch eleganten Architektur mit Walmdach und zwei behaglichen Terrassen. Der Hausentwurf kann mit Stahlbalkonen an der Gartenseite ...
1.139.664 €
Kaufpreis
301 m²
Wohnfläche
18
Zimmer
30
STREIF baut Euer perfektes Zuhause
Haus
76707 Hambrücken
Das zweigeschossige Mehrfamilienhaus mit zwei Wohnungen überzeugt mit einer klassisch eleganten Architektur mit Walmdach und einer behaglichen Terrasse. Der Hausentwurf kann mit einem Carport und einer darüberliegenden ...
828.414 €
Kaufpreis
186 m²
Wohnfläche
10
Zimmer
17
STREIF baut Euer perfektes Zuhause
Haus
76707 Hambrücken
STREIF-Villa 4: Exklusives Wohnen mit Flachdach, zwei Erkern, Galerie und Dachterrasse Der Entwurf der exklusiven STREIF-Villa 4 bietet seinen Bewohnern zahlreiche luxuriöse Merkmale, darunter eine zweigeschossige ...
950.650 €
Kaufpreis
210 m²
Wohnfläche
8
Zimmer