Einfamilienhaus mit Einliegerwohnung!
379.999 €
Kaufpreis
169 m²
Wohnfläche
4
Zimmer
immobilien.de Nr.: 9450881
Objektnummer: 2024-EFH Einliegerwohnung A
Kaufpreis
| Kaufpreis | 379.999 € |
Wohnfläche, Grundstück & Bausubstanz
| Wohnfläche | 169 m² |
| Grundstücksfläche | 681 m² |
| Zimmer | 4 |
| Verfügbar ab | 2025 |
| Zustand | Projektiert |
Energie
| Energietyp | KfW-40 |
| Energieträger/Befeuerung | Luft-Wärme-Pumpe |
Beschreibung der Immobilie
95 Jahre STREIF-Jubiläums-Einfamilienhaus mit Einliegerwohnung
Variante A: Gemeinsamer Eingang
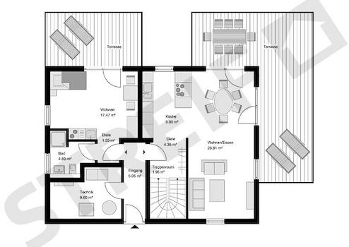
Das Einfamilienhaus mit Einliegerwohnung ist in der Architektur klassisch mit einem
Satteldach geplant worden. Die Einliegerwohnung ist zum Vermieten, für ein
Familienmitglied oder auch für eine Selbstständigkeit geeignet. Die "Hauptwohnung" bietet
im Erdgeschoss einen behaglichen Wohn-/Ess- und Kochbereich, der über 4 Terrassentüren
und 3 Fenster von drei Seiten mit viel Tageslicht versorgt wird. Die 4 Terrassentüren sind
übereck angeordnet, sodass sich beim Essbereich "Wintergartenfeeling" verbreitet. Im
Dachgeschoss des Hauses finden zwei große Kinderzimmer Platz, sowie ein Elternbereich
mit Ankleide, ein großes Familienbad und einen Abstellraum. Insgesamt bietet das Haus
eine Netto-Raumfläche von 169,1 m².
Objektart: Einfamilienhaus mit Einliegerwohnung, Variante A
Dachform: Satteldach, Kniestock 1 m
Hausmaße: 11,25 m x 8,705 m
Netto-Raumfläche: 169,1 m²
95-Jahre STREIF-Jubiläums-Einfamilienhaus mit Einliegerwohnung, Variante A
Variante A: Gemeinsamer Eingang
Das Einfamilienhaus mit Einliegerwohnung ist in der Architektur klassisch mit einem
Satteldach geplant worden. Die Einliegerwohnung ist zum Vermieten, für ein
Familienmitglied oder auch für eine Selbstständigkeit geeignet. Die "Hauptwohnung" bietet
im Erdgeschoss einen behaglichen Wohn-/Ess- und Kochbereich, der über 4 Terrassentüren
und 3 Fenster von drei Seiten mit viel Tageslicht versorgt wird. Die 4 Terrassentüren sind
übereck angeordnet, sodass sich beim Essbereich "Wintergartenfeeling" verbreitet. Im
Dachgeschoss des Hauses finden zwei große Kinderzimmer Platz, sowie ein Elternbereich
mit Ankleide, ein großes Familienbad und einen Abstellraum. Insgesamt bietet das Haus
eine Netto-Raumfläche von 169,1 m².
Objektart: Einfamilienhaus mit Einliegerwohnung, Variante A
Dachform: Satteldach, Kniestock 1 m
Hausmaße: 11,25 m x 8,705 m
Netto-Raumfläche: 169,1 m²
95-Jahre STREIF-Jubiläums-Einfamilienhaus mit Einliegerwohnung, Variante A
Ausstattungsmerkmale
| Anzahl der Etagen im Haus | 2 |
| Küche | Offene Küche |
| Bad | 1 |
| Bad | Dusche, Wanne, Fenster |
Die Preise für die limitierten Jubiläumshäuser gelten beim Hauskauf bis zum 31.03.2024.
STREIF-Energiespar-Häuser sind für die Effizienzhaus-Klasse 40 ausgestattet. Gegen Aufpreis kann eine Ökobilanz erstellt werden, die bescheinigt, dass Ihr STREIF-Haus den neuen KfW-Förderrichtlinien in der Stufe KFWG für den Klimafreundlichen Neubau (KFN) entspricht. Für das Erfüllen der Voraussetzungen zur KfW-Förderung ist eine Photovoltaikanlage mit Batteriespeicher erforderlich.
Folgende STREIF-Leistungen sind im Jubiläums-Feierpreis enthalten -
bei Ausbaustufe FASTFERTIG+:
20-monatige Fair- und Festpreisgarantie
Inklusive gedämmter Fundamentplatte
Inklusive STREIF-Luft-Luft-Wärmepumpen-Technologie, mit integrierter Lüftungsanlage mit Wärmerückgewinnung
Inklusive hochwertiger Holzhaustür von KERA
Inklusive Fenster von Porta/Kömmerling, Fenster innen und außen in Weiß
Inklusive Massivholz-Geschosstreppe aus eigener Produktion (außer Bungalow)
Inklusive Sanitärobjekten von Markenherstellern in Bad/WC
Inklusive Elektroinstallation u.v.m.
Inklusive Vorbereitung zur Installation einer Photovoltaik-Anlage
Inklusive individueller Grundrissgestaltung und Raumaufteilung | Die Position der Bäder, die Größe der Haustechnikräume und der Treppen sind bei den Jubiläumshäusern nicht veränderbar.
Die STREIF-Passiv-Außenwand und eine sparsame Heiztechnik mit integrierter Wohnraumlüftung und Wärmerückgewinnung garantieren einen geringen Energieverbrauch und ein fantastisches Raumklima, das insbesondere Allergiker aufatmen lässt.
Die hohe Wertigkeit und Langlebigkeit eines STREIF-Energiespar-Hauses werden durch zahlreiche Auszeichnungen, Qualitäts- und Gütesiegel unabhängiger Institute und Verbände dokumentiert.
Der Angebotspreis ist inklusive Grundstück und bezieht sich auf die Standard-Ausbaustufe Fast-Fertig-Plus. Ihre Eigenleistungen: Spachtel-, Tapezier- und Malerarbeiten, Bodenbeläge, Innentüren.
Baunebenkosten fallen zuzüglich an. Der Verkauf des Grundstücks erfolgt über einen unserer Netzwerkpartner. Bilder können evtl. Anbauteile, Carports, Balkone, Gauben usw. zeigen, die nicht im Angebotspreis enthalten sind. Änderungen und Irrtümer vorbehalten. Fragen Sie Ihre persönliche STREIF-Bauberatung.
STREIF-Energiespar-Häuser sind für die Effizienzhaus-Klasse 40 ausgestattet. Gegen Aufpreis kann eine Ökobilanz erstellt werden, die bescheinigt, dass Ihr STREIF-Haus den neuen KfW-Förderrichtlinien in der Stufe KFWG für den Klimafreundlichen Neubau (KFN) entspricht. Für das Erfüllen der Voraussetzungen zur KfW-Förderung ist eine Photovoltaikanlage mit Batteriespeicher erforderlich.
Folgende STREIF-Leistungen sind im Jubiläums-Feierpreis enthalten -
bei Ausbaustufe FASTFERTIG+:
20-monatige Fair- und Festpreisgarantie
Inklusive gedämmter Fundamentplatte
Inklusive STREIF-Luft-Luft-Wärmepumpen-Technologie, mit integrierter Lüftungsanlage mit Wärmerückgewinnung
Inklusive hochwertiger Holzhaustür von KERA
Inklusive Fenster von Porta/Kömmerling, Fenster innen und außen in Weiß
Inklusive Massivholz-Geschosstreppe aus eigener Produktion (außer Bungalow)
Inklusive Sanitärobjekten von Markenherstellern in Bad/WC
Inklusive Elektroinstallation u.v.m.
Inklusive Vorbereitung zur Installation einer Photovoltaik-Anlage
Inklusive individueller Grundrissgestaltung und Raumaufteilung | Die Position der Bäder, die Größe der Haustechnikräume und der Treppen sind bei den Jubiläumshäusern nicht veränderbar.
Die STREIF-Passiv-Außenwand und eine sparsame Heiztechnik mit integrierter Wohnraumlüftung und Wärmerückgewinnung garantieren einen geringen Energieverbrauch und ein fantastisches Raumklima, das insbesondere Allergiker aufatmen lässt.
Die hohe Wertigkeit und Langlebigkeit eines STREIF-Energiespar-Hauses werden durch zahlreiche Auszeichnungen, Qualitäts- und Gütesiegel unabhängiger Institute und Verbände dokumentiert.
Der Angebotspreis ist inklusive Grundstück und bezieht sich auf die Standard-Ausbaustufe Fast-Fertig-Plus. Ihre Eigenleistungen: Spachtel-, Tapezier- und Malerarbeiten, Bodenbeläge, Innentüren.
Baunebenkosten fallen zuzüglich an. Der Verkauf des Grundstücks erfolgt über einen unserer Netzwerkpartner. Bilder können evtl. Anbauteile, Carports, Balkone, Gauben usw. zeigen, die nicht im Angebotspreis enthalten sind. Änderungen und Irrtümer vorbehalten. Fragen Sie Ihre persönliche STREIF-Bauberatung.
Sonstige Informationen
Sie brauchen einen kompetenten und verlässlichen Baupartner? Wir stehen Ihnen von Anfang an zur Seite und begleiten Sie auf dem Weg in Ihr Eigenheim.
Mit großem Engagement, Persönlichkeit und der Fachfirma STREIF mit immensen Bau-Know-how, die seit 1929 auf über 90.000 realisierte Wohnträume zurückblicken kann.
Jedes Haus von STREIF wird individuell als Energiesparhaus geplant und gebaut. Eine nachhaltige, ökologische und wohngesunde Bauweise, eine zertifizierte Ausführungsqualität und eine kurze Bauzeit, dafür stehen wir.
Gerne beraten wir Sie nach Vereinbarung im Beratungsbüro Dölau bei Greiz oder ganz unkompliziert bei Ihnen zu Hause und erstellen Ihnen ein Angebot mit einer realistisch ermittelten Aufstellung der Gesamt-Investition.
Wir freuen uns auf Ihren Anruf / Nachricht!
Ihr STREIF Fachberater
Nicole Bamberger
E-Mail: nicole.bamberger@streif.de
Mobil: 0151-10658277
Hinweis:
Vorverkauf und Irrtümer vorbehalten. Bilder können Sonderbauteile darstellen, die im Preis nicht enthalten sind und abweichend von textlichen Inhalten sein.
zzgl. Baunebenkosten.
Der Grundstückserwerb stellt keine STREIF Leistung dar.
Hinweis zu den gesetzlichen Pflichtangaben gemäß der EnEV 2016: Bei dem hier angebotenen Haus handelt es sich um ein Neubauprojekt.
Wir weisen darauf hin, dass zu diesem projektierten Haus noch kein Energieausweis vorliegt. Der Energieausweis wird Ihnen spätestens im Rahmen der Erstellung des Objektes ausgehändigt
Mit großem Engagement, Persönlichkeit und der Fachfirma STREIF mit immensen Bau-Know-how, die seit 1929 auf über 90.000 realisierte Wohnträume zurückblicken kann.
Jedes Haus von STREIF wird individuell als Energiesparhaus geplant und gebaut. Eine nachhaltige, ökologische und wohngesunde Bauweise, eine zertifizierte Ausführungsqualität und eine kurze Bauzeit, dafür stehen wir.
Gerne beraten wir Sie nach Vereinbarung im Beratungsbüro Dölau bei Greiz oder ganz unkompliziert bei Ihnen zu Hause und erstellen Ihnen ein Angebot mit einer realistisch ermittelten Aufstellung der Gesamt-Investition.
Wir freuen uns auf Ihren Anruf / Nachricht!
Ihr STREIF Fachberater
Nicole Bamberger
E-Mail: nicole.bamberger@streif.de
Mobil: 0151-10658277
Hinweis:
Vorverkauf und Irrtümer vorbehalten. Bilder können Sonderbauteile darstellen, die im Preis nicht enthalten sind und abweichend von textlichen Inhalten sein.
zzgl. Baunebenkosten.
Der Grundstückserwerb stellt keine STREIF Leistung dar.
Hinweis zu den gesetzlichen Pflichtangaben gemäß der EnEV 2016: Bei dem hier angebotenen Haus handelt es sich um ein Neubauprojekt.
Wir weisen darauf hin, dass zu diesem projektierten Haus noch kein Energieausweis vorliegt. Der Energieausweis wird Ihnen spätestens im Rahmen der Erstellung des Objektes ausgehändigt
Karte wird geladen...
Objektstandort
08261 Schöneck/Vogtland
Lage & Infrastruktur
Objektstandort
08261 Schöneck/Vogtland
Schöneck ist eine Stadt im sächsischen Vogtlandkreis. Sie liegt idyllisch im Naturpark Erzgebirge/Vogtland und ist von wunderschöner Natur umgeben. Die Stadt erstreckt sich entlang eines Bergrückens und bietet daher eine herrliche Aussicht auf das umliegende Land.
Schöneck ist vor allem als Wintersportort bekannt und zieht viele Besucher an, die gerne Skifahren oder Snowboarden. Es gibt hier mehrere Skipisten und Loipen, die sowohl Anfängern als auch Fortgeschrittenen die Möglichkeit bieten, ihren Sport auszuüben.
Abseits des Wintersports bietet Schöneck auch viele andere Freizeitmöglichkeiten. Es gibt beispielsweise Wanderrouten, Mountainbike-Strecken und einen Kletterpark. Auch für Familien gibt es hier zahlreiche Attraktionen, wie zum Beispiel einen Erlebnisbauernhof.
Die Stadt selbst hat auch einiges zu bieten. Es gibt charmante Fachwerkhäuser, gemütliche Restaurants und Cafés sowie einige interessante Sehenswürdigkeiten, wie das Schloss Schöneck oder das Renaissance-Rathaus.
Alles in allem ist Schöneck Vogtland ein wunderbarer Ort für Naturliebhaber, Aktivurlauber und Erholungssuchende.
Schöneck ist vor allem als Wintersportort bekannt und zieht viele Besucher an, die gerne Skifahren oder Snowboarden. Es gibt hier mehrere Skipisten und Loipen, die sowohl Anfängern als auch Fortgeschrittenen die Möglichkeit bieten, ihren Sport auszuüben.
Abseits des Wintersports bietet Schöneck auch viele andere Freizeitmöglichkeiten. Es gibt beispielsweise Wanderrouten, Mountainbike-Strecken und einen Kletterpark. Auch für Familien gibt es hier zahlreiche Attraktionen, wie zum Beispiel einen Erlebnisbauernhof.
Die Stadt selbst hat auch einiges zu bieten. Es gibt charmante Fachwerkhäuser, gemütliche Restaurants und Cafés sowie einige interessante Sehenswürdigkeiten, wie das Schloss Schöneck oder das Renaissance-Rathaus.
Alles in allem ist Schöneck Vogtland ein wunderbarer Ort für Naturliebhaber, Aktivurlauber und Erholungssuchende.
Kontaktanfrage senden
Über den Anbieter
STREIF Haus GmbH
Josef-Streif-Straße 1
54595 Weinsheim
Kontakt
| Telefon | 06551 12 00 |
| Mobil | +49 151 10658277 |
| Website | www.streif.de |
Ansprechpartner/in
Frau Nicole Bamberger