Speed Lieferung in 6 Monaten +++ Streif macht es möglich!
379.999 €
Kaufpreis
169 m²
Wohnfläche
4
Zimmer
immobilien.de Nr.: 9450842
Objektnummer: 2024-038
Kaufpreis
| Kaufpreis | 379.999 € |
Wohnfläche, Grundstück & Bausubstanz
| Wohnfläche | 169 m² |
| Grundstücksfläche | 846 m² |
| Zimmer | 4 |
| Verfügbar ab | 2025 |
| Zustand | Projektiert |
Energie
| Energietyp | KfW-40 |
| Energieträger/Befeuerung | Luft-Wärme-Pumpe |
Beschreibung der Immobilie
Herzlich willkommen bei STREIF, Ihrem Spezialisten für maßgeschneiderte Traumhäuser! Sie träumen von einem Zweifamilienhaus, das genau nach Ihren Wünschen und Vorstellungen gefertigt wird? Dann sind Sie bei uns genau richtig. Unser projektiertes Zweifamilienhaus in Falkenstein bietet Ihnen die Möglichkeit, Ihre Wohnträume wahr werden zu lassen.
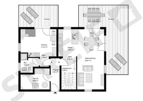
Mit einer Wohnfläche von großzügigen 169,00 m² auf einem 846,00 m² großen Grundstück erstreckt sich dieses moderne Haus über zwei Etagen und begeistert mit insgesamt 4,0 Zimmern, 3 Schlafzimmern sowie einem Badezimmer mit Dusche, Wanne und Fenster. Zusätzlich verfügt das Haus über ein Gäste-WC, was den Komfort für Sie und Ihre Familie weiter erhöht.
Die gehobene Ausstattung des Hauses lässt keine Wünsche offen und sorgt für ein stilvolles Ambiente, in dem Sie sich rundum wohlfühlen werden. Die Befeuerungsart mittels Wärmepumpe garantiert nicht nur eine effiziente und umweltschonende Beheizung des Hauses, sondern hilft Ihnen auch dabei, langfristig Kosten zu sparen.
Unser Zweifamilienhaus entspricht dem KfW40 Standard und ist ein Energieeffizienzhaus der Erneuerbaren Energienklasse. Dies ermöglicht Ihnen nicht nur eine nachhaltige Lebensweise, sondern auch attraktive staatliche Fördermöglichkeiten im Rahmen der KfW-Förderung.
Ein besonderes Highlight dieses Hauses ist die Möglichkeit der individuellen Gestaltung und Anpassung an Ihre Bedürfnisse. Als STREIF-Kunde haben Sie die Wahl zwischen verschiedenen Ausbaustufen. Für dieses Projekt ist die Ausbaustufe "FastFertigPlus" vorgesehen, welche Ihnen erlaubt, bei der Erstellung Ihres Traumhauses aktiv mitzuwirken. Gleichzeitig werden die haustechnischen Gewerke von Fachbetrieben ausgeführt, sodass höchste Qualität gewährleistet ist.
Die Entscheidung für ein Zweifamilienhaus bietet Ihnen nicht nur eine hohe Flexibilität in der Nutzung der Räumlichkeiten, sondern auch finanzielle Vorteile. Dank der Möglichkeit einer zusätzlichen Wohneinheit auf dem Grundstück können Sie langfristig von Mieteinnahmen profitieren oder gemeinsam mit mehreren Generationen unter einem Dach leben - ganz nach Ihren individuellen Vorstellungen.
Wir laden Sie herzlich ein, sich von unserem projektierten Zweifamilienhaus in Falkenstein inspirieren zu lassen und gemeinsam mit uns Ihren Wohntraum zu verwirklichen. Nehmen Sie Kontakt mit uns auf und lassen Sie sich persönlich beraten - wir freuen uns darauf, Sie auf Ihrem Weg zum Traumhaus begleiten zu dürfen!
Mit einer Wohnfläche von großzügigen 169,00 m² auf einem 846,00 m² großen Grundstück erstreckt sich dieses moderne Haus über zwei Etagen und begeistert mit insgesamt 4,0 Zimmern, 3 Schlafzimmern sowie einem Badezimmer mit Dusche, Wanne und Fenster. Zusätzlich verfügt das Haus über ein Gäste-WC, was den Komfort für Sie und Ihre Familie weiter erhöht.
Die gehobene Ausstattung des Hauses lässt keine Wünsche offen und sorgt für ein stilvolles Ambiente, in dem Sie sich rundum wohlfühlen werden. Die Befeuerungsart mittels Wärmepumpe garantiert nicht nur eine effiziente und umweltschonende Beheizung des Hauses, sondern hilft Ihnen auch dabei, langfristig Kosten zu sparen.
Unser Zweifamilienhaus entspricht dem KfW40 Standard und ist ein Energieeffizienzhaus der Erneuerbaren Energienklasse. Dies ermöglicht Ihnen nicht nur eine nachhaltige Lebensweise, sondern auch attraktive staatliche Fördermöglichkeiten im Rahmen der KfW-Förderung.
Ein besonderes Highlight dieses Hauses ist die Möglichkeit der individuellen Gestaltung und Anpassung an Ihre Bedürfnisse. Als STREIF-Kunde haben Sie die Wahl zwischen verschiedenen Ausbaustufen. Für dieses Projekt ist die Ausbaustufe "FastFertigPlus" vorgesehen, welche Ihnen erlaubt, bei der Erstellung Ihres Traumhauses aktiv mitzuwirken. Gleichzeitig werden die haustechnischen Gewerke von Fachbetrieben ausgeführt, sodass höchste Qualität gewährleistet ist.
Die Entscheidung für ein Zweifamilienhaus bietet Ihnen nicht nur eine hohe Flexibilität in der Nutzung der Räumlichkeiten, sondern auch finanzielle Vorteile. Dank der Möglichkeit einer zusätzlichen Wohneinheit auf dem Grundstück können Sie langfristig von Mieteinnahmen profitieren oder gemeinsam mit mehreren Generationen unter einem Dach leben - ganz nach Ihren individuellen Vorstellungen.
Wir laden Sie herzlich ein, sich von unserem projektierten Zweifamilienhaus in Falkenstein inspirieren zu lassen und gemeinsam mit uns Ihren Wohntraum zu verwirklichen. Nehmen Sie Kontakt mit uns auf und lassen Sie sich persönlich beraten - wir freuen uns darauf, Sie auf Ihrem Weg zum Traumhaus begleiten zu dürfen!
Ausstattungsmerkmale
| Anzahl der Etagen im Haus | 2 |
| Küche | Offene Küche |
| Bad | 1 |
| Bad | Dusche, Wanne, Fenster |
STREIF-Energiespar-Häuser sind für die Effizienzhaus-Klasse 40 ausgestattet. Gegen Aufpreis kann eine Ökobilanz erstellt werden, die bescheinigt, dass Ihr STREIF-Haus den neuen KfW-Förderrichtlinien in der Stufe KFWG für den Klimafreundlichen Neubau (KFN) entspricht. Für das Erfüllen der Voraussetzungen zur KfW-Förderung ist eine Photovoltaikanlage mit Batteriespeicher erforderlich.
Folgende STREIF-Leistungen sind im Jubiläums-Feierpreis enthalten -
bei Ausbaustufe FASTFERTIG+:
20-monatige Fair- und Festpreisgarantie
Inklusive gedämmter Fundamentplatte
Inklusive STREIF-Luft-Luft-Wärmepumpen-Technologie, mit integrierter Lüftungsanlage mit Wärmerückgewinnung
Inklusive hochwertiger Holzhaustür von KERA
Inklusive Fenster von Porta/Kömmerling, Fenster innen und außen in Weiß
Inklusive Massivholz-Geschosstreppe aus eigener Produktion (außer Bungalow)
Inklusive Sanitärobjekten von Markenherstellern in Bad/WC
Inklusive Elektroinstallation u.v.m.
Inklusive Vorbereitung zur Installation einer Photovoltaik-Anlage
Inklusive individueller Grundrissgestaltung und Raumaufteilung | Die Position der Bäder, die Größe der Haustechnikräume und der Treppen sind bei den Jubiläumshäusern nicht veränderbar.
Die STREIF-Passiv-Außenwand und eine sparsame Heiztechnik mit integrierter Wohnraumlüftung und Wärmerückgewinnung garantieren einen geringen Energieverbrauch und ein fantastisches Raumklima, das insbesondere Allergiker aufatmen lässt.
Die hohe Wertigkeit und Langlebigkeit eines STREIF-Energiespar-Hauses werden durch zahlreiche Auszeichnungen, Qualitäts- und Gütesiegel unabhängiger Institute und Verbände dokumentiert.
Der Angebotspreis ist exklusive Grundstück und bezieht sich auf die Standard-Ausbaustufe Fast-Fertig-Plus. Ihre Eigenleistungen: Spachtel-, Tapezier- und Malerarbeiten, Bodenbeläge, Innentüren.
Baunebenkosten fallen zuzüglich an. Der Verkauf des Grundstücks erfolgt über einen unserer Netzwerkpartner. Bilder können evtl. Anbauteile, Carports, Balkone, Gauben usw. zeigen, die nicht im Angebotspreis enthalten sind. Änderungen und Irrtümer vorbehalten. Fragen Sie Ihre persönliche STREIF-Bauberatung.
Folgende STREIF-Leistungen sind im Jubiläums-Feierpreis enthalten -
bei Ausbaustufe FASTFERTIG+:
20-monatige Fair- und Festpreisgarantie
Inklusive gedämmter Fundamentplatte
Inklusive STREIF-Luft-Luft-Wärmepumpen-Technologie, mit integrierter Lüftungsanlage mit Wärmerückgewinnung
Inklusive hochwertiger Holzhaustür von KERA
Inklusive Fenster von Porta/Kömmerling, Fenster innen und außen in Weiß
Inklusive Massivholz-Geschosstreppe aus eigener Produktion (außer Bungalow)
Inklusive Sanitärobjekten von Markenherstellern in Bad/WC
Inklusive Elektroinstallation u.v.m.
Inklusive Vorbereitung zur Installation einer Photovoltaik-Anlage
Inklusive individueller Grundrissgestaltung und Raumaufteilung | Die Position der Bäder, die Größe der Haustechnikräume und der Treppen sind bei den Jubiläumshäusern nicht veränderbar.
Die STREIF-Passiv-Außenwand und eine sparsame Heiztechnik mit integrierter Wohnraumlüftung und Wärmerückgewinnung garantieren einen geringen Energieverbrauch und ein fantastisches Raumklima, das insbesondere Allergiker aufatmen lässt.
Die hohe Wertigkeit und Langlebigkeit eines STREIF-Energiespar-Hauses werden durch zahlreiche Auszeichnungen, Qualitäts- und Gütesiegel unabhängiger Institute und Verbände dokumentiert.
Der Angebotspreis ist exklusive Grundstück und bezieht sich auf die Standard-Ausbaustufe Fast-Fertig-Plus. Ihre Eigenleistungen: Spachtel-, Tapezier- und Malerarbeiten, Bodenbeläge, Innentüren.
Baunebenkosten fallen zuzüglich an. Der Verkauf des Grundstücks erfolgt über einen unserer Netzwerkpartner. Bilder können evtl. Anbauteile, Carports, Balkone, Gauben usw. zeigen, die nicht im Angebotspreis enthalten sind. Änderungen und Irrtümer vorbehalten. Fragen Sie Ihre persönliche STREIF-Bauberatung.
Sonstige Informationen
Sie brauchen einen kompetenten und verlässlichen Baupartner? Wir stehen Ihnen von Anfang an zur Seite und begleiten Sie auf dem Weg in Ihr Eigenheim.
Mit großem Engagement, Persönlichkeit und der Fachfirma STREIF mit immensen Bau-Know-how, die seit 1929 auf über 85.000 realisierte Wohnträume zurückblicken kann.
Jedes Haus von STREIF wird individuell als Energiesparhaus geplant und gebaut. Eine nachhaltige, ökologische und wohngesunde Bauweise, eine zertifizierte Ausführungsqualität und eine kurze Bauzeit, dafür stehen wir.
Gerne beraten wir Sie nach Vereinbarung im Beratungsbüro Dölau bei Greiz oder ganz unkompliziert bei Ihnen zu Hause und erstellen Ihnen ein Angebot mit einer realistisch ermittelten Aufstellung der Gesamt-Investition.
Wir freuen uns auf Ihren Anruf / Nachricht!
Ihr STREIF Fachberaterin
Nicole Bamberger
E-Mail: nicole.bamberger@streif.de
Mobil: 0151-10658277
Hinweis:
Vorverkauf und Irrtümer vorbehalten. Bilder können Sonderbauteile darstellen, die im Preis nicht enthalten sind und abweichend von textlichen Inhalten sein.
zzgl. Baunebenkosten.
Der Grundstückserwerb stellt keine STREIF Leistung dar.
Hinweis zu den gesetzlichen Pflichtangaben gemäß der EnEV 2016: Bei dem hier angebotenen Haus handelt es sich um ein Neubauprojekt.
Wir weisen darauf hin, dass zu diesem projektierten Haus noch kein Energieausweis vorliegt. Der Energieausweis wird Ihnen spätestens im Rahmen der Erstellung des Objektes ausgehändigt
Mit großem Engagement, Persönlichkeit und der Fachfirma STREIF mit immensen Bau-Know-how, die seit 1929 auf über 85.000 realisierte Wohnträume zurückblicken kann.
Jedes Haus von STREIF wird individuell als Energiesparhaus geplant und gebaut. Eine nachhaltige, ökologische und wohngesunde Bauweise, eine zertifizierte Ausführungsqualität und eine kurze Bauzeit, dafür stehen wir.
Gerne beraten wir Sie nach Vereinbarung im Beratungsbüro Dölau bei Greiz oder ganz unkompliziert bei Ihnen zu Hause und erstellen Ihnen ein Angebot mit einer realistisch ermittelten Aufstellung der Gesamt-Investition.
Wir freuen uns auf Ihren Anruf / Nachricht!
Ihr STREIF Fachberaterin
Nicole Bamberger
E-Mail: nicole.bamberger@streif.de
Mobil: 0151-10658277
Hinweis:
Vorverkauf und Irrtümer vorbehalten. Bilder können Sonderbauteile darstellen, die im Preis nicht enthalten sind und abweichend von textlichen Inhalten sein.
zzgl. Baunebenkosten.
Der Grundstückserwerb stellt keine STREIF Leistung dar.
Hinweis zu den gesetzlichen Pflichtangaben gemäß der EnEV 2016: Bei dem hier angebotenen Haus handelt es sich um ein Neubauprojekt.
Wir weisen darauf hin, dass zu diesem projektierten Haus noch kein Energieausweis vorliegt. Der Energieausweis wird Ihnen spätestens im Rahmen der Erstellung des Objektes ausgehändigt
Karte wird geladen...
Objektstandort
08223 Falkenstein
Lage & Infrastruktur
Objektstandort
08223 Falkenstein
Falkenstein ist eine Stadt im Vogtlandkreis in Sachsen, Deutschland. Sie liegt etwa 30 Kilometer südwestlich von Zwickau und etwa 15 Kilometer südlich von Plauen. Die Stadt befindet sich auf einem Felsenplateau und ist von grünen Hügeln und Wäldern umgeben.
Falkenstein hat eine malerische Lage mit einer beeindruckenden Aussicht auf die umliegende Landschaft. Die Stadt ist berühmt für ihre imposante Burg, die hoch oben auf einem Felsen thront und ein Wahrzeichen der Region ist. Die Burg Falkenstein stammt aus dem 12. Jahrhundert und ist heute ein beliebtes Ausflugsziel, das Besucher anlockt.
Die Altstadt von Falkenstein zeichnet sich durch ihre bezaubernde Atmosphäre aus. Traditionelle Fachwerkhäuser und historische Gebäude säumen die engen Kopfsteinpflastergassen. Es gibt auch einige interessante Museen, darunter das Burgmuseum und das Porzellanhofmuseum, die einen Einblick in die Geschichte und Kultur der Region bieten.
Die Umgebung von Falkenstein bietet zahlreiche Möglichkeiten für Outdoor-Aktivitäten. Wanderwege führen durch die Wälder und bieten beeindruckende Ausblicke auf die Landschaft. Auch Fahrradfahren, Reiten und Angeln sind in der Region möglich. Der nahe gelegene Göltzschtalradweg ist besonders bei Fahrradfahrern sehr beliebt.
In der Nähe von Falkenstein gibt es auch einige Ausflugsziele. Die Orte Plauen und Zwickau bieten eine Vielzahl von kulturellen Attraktionen und Einkaufsmöglichkeiten. Das Vogtland Museum und das Plauener Spitzenmuseum sind zwei beliebte Sehenswürdigkeiten in der Region.
Insgesamt ist Falkenstein ein charmantes Städtchen im Vogtland mit einer faszinierenden Burg und einer malerischen Umgebung. Es bietet eine Kombination aus Geschichte, Natur und Outdoor-Aktivitäten und ist ein idealer Ort für einen erholsamen Aufenthalt.
Falkenstein hat eine malerische Lage mit einer beeindruckenden Aussicht auf die umliegende Landschaft. Die Stadt ist berühmt für ihre imposante Burg, die hoch oben auf einem Felsen thront und ein Wahrzeichen der Region ist. Die Burg Falkenstein stammt aus dem 12. Jahrhundert und ist heute ein beliebtes Ausflugsziel, das Besucher anlockt.
Die Altstadt von Falkenstein zeichnet sich durch ihre bezaubernde Atmosphäre aus. Traditionelle Fachwerkhäuser und historische Gebäude säumen die engen Kopfsteinpflastergassen. Es gibt auch einige interessante Museen, darunter das Burgmuseum und das Porzellanhofmuseum, die einen Einblick in die Geschichte und Kultur der Region bieten.
Die Umgebung von Falkenstein bietet zahlreiche Möglichkeiten für Outdoor-Aktivitäten. Wanderwege führen durch die Wälder und bieten beeindruckende Ausblicke auf die Landschaft. Auch Fahrradfahren, Reiten und Angeln sind in der Region möglich. Der nahe gelegene Göltzschtalradweg ist besonders bei Fahrradfahrern sehr beliebt.
In der Nähe von Falkenstein gibt es auch einige Ausflugsziele. Die Orte Plauen und Zwickau bieten eine Vielzahl von kulturellen Attraktionen und Einkaufsmöglichkeiten. Das Vogtland Museum und das Plauener Spitzenmuseum sind zwei beliebte Sehenswürdigkeiten in der Region.
Insgesamt ist Falkenstein ein charmantes Städtchen im Vogtland mit einer faszinierenden Burg und einer malerischen Umgebung. Es bietet eine Kombination aus Geschichte, Natur und Outdoor-Aktivitäten und ist ein idealer Ort für einen erholsamen Aufenthalt.
Kontaktanfrage senden
Über den Anbieter
STREIF Haus GmbH
Josef-Streif-Straße 1
54595 Weinsheim
Kontakt
| Telefon | 06551 12 00 |
| Mobil | +49 151 10658277 |
| Website | www.streif.de |
Ansprechpartner/in
Frau Nicole Bamberger
Weitere Angebote des Anbieters
20
Sehr schöne Stadtvilla in erstklassiger Lage von St. ...
Haus
66386 St. Ingbert
Viel Platz und von Licht erfüllte Räume bietet diese traumhafte Stadtvilla. Im Erdgeschoss bildet der offen gestaltete Wohn-, Ess- und Kochbereich mit 49 m² das Herzstück des Hauses. Der gesamte Wohnbereich wird von ...
608.000 €
Kaufpreis
186 m²
Wohnfläche
5
Zimmer
30
STREIF baut Euer perfektes Zuhause
Haus
76707 Hambrücken
Das zweieinhalbgeschossige Mehrfamilienhaus mit zwei Wohnungen überzeugt mit einer klassisch eleganten Architektur mit Satteldach und zwei behaglichen Terrassen. Der Hausentwurf kann mit Stahlbalkonen an der ...
1.293.936 €
Kaufpreis
358 m²
Wohnfläche
18
Zimmer
30
STREIF baut Euer perfektes Zuhause
Haus
76707 Hambrücken
Das zweigeschossige Mehrfamilienhaus mit zwei Wohnungen überzeugt mit einer klassisch eleganten Architektur mit Walmdach und zwei behaglichen Terrassen. Der Hausentwurf kann mit Stahlbalkonen an der Gartenseite ...
1.139.664 €
Kaufpreis
301 m²
Wohnfläche
18
Zimmer
30
STREIF baut Euer perfektes Zuhause
Haus
76707 Hambrücken
Das zweigeschossige Mehrfamilienhaus mit zwei Wohnungen überzeugt mit einer klassisch eleganten Architektur mit Walmdach und einer behaglichen Terrasse. Der Hausentwurf kann mit einem Carport und einer darüberliegenden ...
828.414 €
Kaufpreis
186 m²
Wohnfläche
10
Zimmer
17
STREIF baut Euer perfektes Zuhause
Haus
76707 Hambrücken
STREIF-Villa 4: Exklusives Wohnen mit Flachdach, zwei Erkern, Galerie und Dachterrasse Der Entwurf der exklusiven STREIF-Villa 4 bietet seinen Bewohnern zahlreiche luxuriöse Merkmale, darunter eine zweigeschossige ...
950.650 €
Kaufpreis
210 m²
Wohnfläche
8
Zimmer