Gemeinsam BAUEN - Kosten SPAREN!!!
319.995 €
Kaufpreis
143 m²
Wohnfläche
5
Zimmer
immobilien.de Nr.: 9450841
Objektnummer: 2024-037
Kaufpreis
| Kaufpreis | 319.995 € |
Wohnfläche, Grundstück & Bausubstanz
| Wohnfläche | 143 m² |
| Grundstücksfläche | 868 m² |
| Zimmer | 5 |
| Verfügbar ab | 2025 |
| Zustand | Projektiert |
Energie
| Energietyp | KfW-40 |
| Energieträger/Befeuerung | Luft-Wärme-Pumpe |
Beschreibung der Immobilie
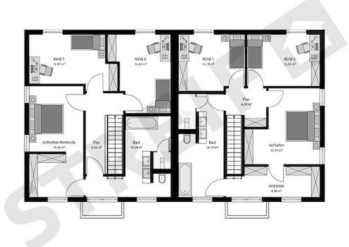
Herzlich willkommen in Falkenstein, wo Sie die Möglichkeit haben, Ihr Traumhaus mit STREIF zu bauen. Die moderne Doppelhaushälfte, die wir für Sie projektiert haben, bietet Ihnen auf einer Wohnfläche von 143,00 m² und einem Grundstück von 868,00 m² ausreichend Platz für Ihre individuellen Bedürfnisse. Mit 5 Zimmern, darunter 4 Schlafzimmer, und einem zusätzlichen Gäste-WC ist dieses Haus ideal für Paare und Familien geeignet.
Die gehobene Ausstattung und die optimale Raumaufteilung lassen keine Wünsche offen. Das Badezimmer verfügt über eine Dusche, eine Wanne und ein Fenster, was für ein angenehmes Ambiente sorgt. Die Befeuerungsart mittels Wärmepumpe bietet nicht nur eine umweltfreundliche Lösung, sondern ermöglicht auch eine effiziente und kostensparende Beheizung des Hauses.
Bei der Erstellung Ihres Hauses können Sie aktiv mitarbeiten und gleichzeitig von unserer Fachexpertise profitieren. Dank der Ausbaustufe "FastFertigPlus" werden die haustechnischen Gewerke (Heizung, Lüftung, Sanitär und Estrich) von unserem qualifizierten Fachbetrieb erledigt. Dadurch wird sichergestellt, dass Ihr Haus den höchsten Qualitätsstandards entspricht.
Unsere modernen Doppelhäuser und Generationenhäuser bieten nicht nur effiziente Nutzungsmöglichkeiten auf kleinen Flächen, sondern ermöglichen auch komfortables Wohnen. Die hervorragende Schallisolierung der STREIF Wandkonstruktion gewährleistet zudem ein ruhiges Wohnen - ganz gleich, ob Sie das Haus mit Freunden, Eltern oder einer anderen Familie teilen.
Darüber hinaus entspricht dieses Objekt dem KfW40 Standard und ist bereits ein Energieeffizienzhaus KfW 40 EE. Dies garantiert Ihnen nicht nur einen nachhaltigen Lebensstil, sondern ermöglicht Ihnen auch attraktive Fördermittel bei der Finanzierung Ihres Traumhauses.
Wenn Sie auf der Suche nach einem flexiblen Hausentwurf sind, der sich Ihren Platzbedürfnissen anpasst und sich an die Größe Ihres Grundstücks anpassen lässt, dann ist dieses Doppelhaus genau das Richtige für Sie. Die Entwürfe zu den Doppelhaushälften und Doppelhäusern TWIN oder GENERATION sind variabel und erweiterbar - ganz nach Ihren Vorstellungen.
Sichern Sie sich jetzt Ihren Traum vom Eigenheim in Falkenstein und lassen Sie sich von der Qualität und Vielseitigkeit eines STREIF-Fertighauses überzeugen!
Die gehobene Ausstattung und die optimale Raumaufteilung lassen keine Wünsche offen. Das Badezimmer verfügt über eine Dusche, eine Wanne und ein Fenster, was für ein angenehmes Ambiente sorgt. Die Befeuerungsart mittels Wärmepumpe bietet nicht nur eine umweltfreundliche Lösung, sondern ermöglicht auch eine effiziente und kostensparende Beheizung des Hauses.
Bei der Erstellung Ihres Hauses können Sie aktiv mitarbeiten und gleichzeitig von unserer Fachexpertise profitieren. Dank der Ausbaustufe "FastFertigPlus" werden die haustechnischen Gewerke (Heizung, Lüftung, Sanitär und Estrich) von unserem qualifizierten Fachbetrieb erledigt. Dadurch wird sichergestellt, dass Ihr Haus den höchsten Qualitätsstandards entspricht.
Unsere modernen Doppelhäuser und Generationenhäuser bieten nicht nur effiziente Nutzungsmöglichkeiten auf kleinen Flächen, sondern ermöglichen auch komfortables Wohnen. Die hervorragende Schallisolierung der STREIF Wandkonstruktion gewährleistet zudem ein ruhiges Wohnen - ganz gleich, ob Sie das Haus mit Freunden, Eltern oder einer anderen Familie teilen.
Darüber hinaus entspricht dieses Objekt dem KfW40 Standard und ist bereits ein Energieeffizienzhaus KfW 40 EE. Dies garantiert Ihnen nicht nur einen nachhaltigen Lebensstil, sondern ermöglicht Ihnen auch attraktive Fördermittel bei der Finanzierung Ihres Traumhauses.
Wenn Sie auf der Suche nach einem flexiblen Hausentwurf sind, der sich Ihren Platzbedürfnissen anpasst und sich an die Größe Ihres Grundstücks anpassen lässt, dann ist dieses Doppelhaus genau das Richtige für Sie. Die Entwürfe zu den Doppelhaushälften und Doppelhäusern TWIN oder GENERATION sind variabel und erweiterbar - ganz nach Ihren Vorstellungen.
Sichern Sie sich jetzt Ihren Traum vom Eigenheim in Falkenstein und lassen Sie sich von der Qualität und Vielseitigkeit eines STREIF-Fertighauses überzeugen!
Ausstattungsmerkmale
| Anzahl der Etagen im Haus | 2 |
| Küche | Offene Küche |
| Bad | 1 |
| Bad | Dusche, Wanne, Fenster |
STREIF-Energiespar-Häuser sind für die Effizienzhaus-Klasse 40 ausgestattet. Gegen Aufpreis kann eine Ökobilanz erstellt werden, die bescheinigt, dass Ihr STREIF-Haus den neuen KfW-Förderrichtlinien in der Stufe KFWG für den Klimafreundlichen Neubau (KFN) entspricht. Für das Erfüllen der Voraussetzungen zur KfW-Förderung ist eine Photovoltaikanlage mit Batteriespeicher erforderlich.
Folgende STREIF-Leistungen sind im Jubiläums-Feierpreis enthalten -
bei Ausbaustufe FASTFERTIG+:
20-monatige Fair- und Festpreisgarantie
Inklusive gedämmter Fundamentplatte
Inklusive STREIF-Luft-Luft-Wärmepumpen-Technologie, mit integrierter Lüftungsanlage mit Wärmerückgewinnung
Inklusive hochwertiger Holzhaustür von KERA
Inklusive Fenster von Porta/Kömmerling, Fenster innen und außen in Weiß
Inklusive Massivholz-Geschosstreppe aus eigener Produktion (außer Bungalow)
Inklusive Sanitärobjekten von Markenherstellern in Bad/WC
Inklusive Elektroinstallation u.v.m.
Inklusive Vorbereitung zur Installation einer Photovoltaik-Anlage
Inklusive individueller Grundrissgestaltung und Raumaufteilung | Die Position der Bäder, die Größe der Haustechnikräume und der Treppen sind bei den Jubiläumshäusern nicht veränderbar.
Die STREIF-Passiv-Außenwand und eine sparsame Heiztechnik mit integrierter Wohnraumlüftung und Wärmerückgewinnung garantieren einen geringen Energieverbrauch und ein fantastisches Raumklima, das insbesondere Allergiker aufatmen lässt.
Die hohe Wertigkeit und Langlebigkeit eines STREIF-Energiespar-Hauses werden durch zahlreiche Auszeichnungen, Qualitäts- und Gütesiegel unabhängiger Institute und Verbände dokumentiert.
Der Angebotspreis ist exklusive Grundstück und bezieht sich auf die Standard-Ausbaustufe Fast-Fertig-Plus. Ihre Eigenleistungen: Spachtel-, Tapezier- und Malerarbeiten, Bodenbeläge, Innentüren.
Baunebenkosten fallen zuzüglich an. Der Verkauf des Grundstücks erfolgt über einen unserer Netzwerkpartner. Bilder können evtl. Anbauteile, Carports, Balkone, Gauben usw. zeigen, die nicht im Angebotspreis enthalten sind. Änderungen und Irrtümer vorbehalten. Fragen Sie Ihre persönliche STREIF-Bauberatung.
Folgende STREIF-Leistungen sind im Jubiläums-Feierpreis enthalten -
bei Ausbaustufe FASTFERTIG+:
20-monatige Fair- und Festpreisgarantie
Inklusive gedämmter Fundamentplatte
Inklusive STREIF-Luft-Luft-Wärmepumpen-Technologie, mit integrierter Lüftungsanlage mit Wärmerückgewinnung
Inklusive hochwertiger Holzhaustür von KERA
Inklusive Fenster von Porta/Kömmerling, Fenster innen und außen in Weiß
Inklusive Massivholz-Geschosstreppe aus eigener Produktion (außer Bungalow)
Inklusive Sanitärobjekten von Markenherstellern in Bad/WC
Inklusive Elektroinstallation u.v.m.
Inklusive Vorbereitung zur Installation einer Photovoltaik-Anlage
Inklusive individueller Grundrissgestaltung und Raumaufteilung | Die Position der Bäder, die Größe der Haustechnikräume und der Treppen sind bei den Jubiläumshäusern nicht veränderbar.
Die STREIF-Passiv-Außenwand und eine sparsame Heiztechnik mit integrierter Wohnraumlüftung und Wärmerückgewinnung garantieren einen geringen Energieverbrauch und ein fantastisches Raumklima, das insbesondere Allergiker aufatmen lässt.
Die hohe Wertigkeit und Langlebigkeit eines STREIF-Energiespar-Hauses werden durch zahlreiche Auszeichnungen, Qualitäts- und Gütesiegel unabhängiger Institute und Verbände dokumentiert.
Der Angebotspreis ist exklusive Grundstück und bezieht sich auf die Standard-Ausbaustufe Fast-Fertig-Plus. Ihre Eigenleistungen: Spachtel-, Tapezier- und Malerarbeiten, Bodenbeläge, Innentüren.
Baunebenkosten fallen zuzüglich an. Der Verkauf des Grundstücks erfolgt über einen unserer Netzwerkpartner. Bilder können evtl. Anbauteile, Carports, Balkone, Gauben usw. zeigen, die nicht im Angebotspreis enthalten sind. Änderungen und Irrtümer vorbehalten. Fragen Sie Ihre persönliche STREIF-Bauberatung.
Sonstige Informationen
Sie brauchen einen kompetenten und verlässlichen Baupartner? Wir stehen Ihnen von Anfang an zur Seite und begleiten Sie auf dem Weg in Ihr Eigenheim.
Mit großem Engagement, Persönlichkeit und der Fachfirma STREIF mit immensen Bau-Know-how, die seit 1929 auf über 85.000 realisierte Wohnträume zurückblicken kann.
Jedes Haus von STREIF wird individuell als Energiesparhaus geplant und gebaut. Eine nachhaltige, ökologische und wohngesunde Bauweise, eine zertifizierte Ausführungsqualität und eine kurze Bauzeit, dafür stehen wir.
Gerne beraten wir Sie nach Vereinbarung im Beratungsbüro Dölau bei Greiz oder ganz unkompliziert bei Ihnen zu Hause und erstellen Ihnen ein Angebot mit einer realistisch ermittelten Aufstellung der Gesamt-Investition.
Wir freuen uns auf Ihren Anruf / Nachricht!
Ihr STREIF Fachberaterin
Nicole Bamberger
E-Mail: nicole.bamberger@streif.de
Mobil: 0151-10658277
Hinweis:
Vorverkauf und Irrtümer vorbehalten. Bilder können Sonderbauteile darstellen, die im Preis nicht enthalten sind und abweichend von textlichen Inhalten sein.
zzgl. Baunebenkosten.
Der Grundstückserwerb stellt keine STREIF Leistung dar.
Hinweis zu den gesetzlichen Pflichtangaben gemäß der EnEV 2016: Bei dem hier angebotenen Haus handelt es sich um ein Neubauprojekt.
Wir weisen darauf hin, dass zu diesem projektierten Haus noch kein Energieausweis vorliegt. Der Energieausweis wird Ihnen spätestens im Rahmen der Erstellung des Objektes ausgehändigt
Mit großem Engagement, Persönlichkeit und der Fachfirma STREIF mit immensen Bau-Know-how, die seit 1929 auf über 85.000 realisierte Wohnträume zurückblicken kann.
Jedes Haus von STREIF wird individuell als Energiesparhaus geplant und gebaut. Eine nachhaltige, ökologische und wohngesunde Bauweise, eine zertifizierte Ausführungsqualität und eine kurze Bauzeit, dafür stehen wir.
Gerne beraten wir Sie nach Vereinbarung im Beratungsbüro Dölau bei Greiz oder ganz unkompliziert bei Ihnen zu Hause und erstellen Ihnen ein Angebot mit einer realistisch ermittelten Aufstellung der Gesamt-Investition.
Wir freuen uns auf Ihren Anruf / Nachricht!
Ihr STREIF Fachberaterin
Nicole Bamberger
E-Mail: nicole.bamberger@streif.de
Mobil: 0151-10658277
Hinweis:
Vorverkauf und Irrtümer vorbehalten. Bilder können Sonderbauteile darstellen, die im Preis nicht enthalten sind und abweichend von textlichen Inhalten sein.
zzgl. Baunebenkosten.
Der Grundstückserwerb stellt keine STREIF Leistung dar.
Hinweis zu den gesetzlichen Pflichtangaben gemäß der EnEV 2016: Bei dem hier angebotenen Haus handelt es sich um ein Neubauprojekt.
Wir weisen darauf hin, dass zu diesem projektierten Haus noch kein Energieausweis vorliegt. Der Energieausweis wird Ihnen spätestens im Rahmen der Erstellung des Objektes ausgehändigt
Karte wird geladen...
Objektstandort
08223 Falkenstein
Lage & Infrastruktur
Objektstandort
08223 Falkenstein
Falkenstein ist eine Stadt im Vogtlandkreis in Sachsen, Deutschland. Sie liegt etwa 30 Kilometer südwestlich von Zwickau und etwa 15 Kilometer südlich von Plauen. Die Stadt befindet sich auf einem Felsenplateau und ist von grünen Hügeln und Wäldern umgeben.
Falkenstein hat eine malerische Lage mit einer beeindruckenden Aussicht auf die umliegende Landschaft. Die Stadt ist berühmt für ihre imposante Burg, die hoch oben auf einem Felsen thront und ein Wahrzeichen der Region ist. Die Burg Falkenstein stammt aus dem 12. Jahrhundert und ist heute ein beliebtes Ausflugsziel, das Besucher anlockt.
Die Altstadt von Falkenstein zeichnet sich durch ihre bezaubernde Atmosphäre aus. Traditionelle Fachwerkhäuser und historische Gebäude säumen die engen Kopfsteinpflastergassen. Es gibt auch einige interessante Museen, darunter das Burgmuseum und das Porzellanhofmuseum, die einen Einblick in die Geschichte und Kultur der Region bieten.
Die Umgebung von Falkenstein bietet zahlreiche Möglichkeiten für Outdoor-Aktivitäten. Wanderwege führen durch die Wälder und bieten beeindruckende Ausblicke auf die Landschaft. Auch Fahrradfahren, Reiten und Angeln sind in der Region möglich. Der nahe gelegene Göltzschtalradweg ist besonders bei Fahrradfahrern sehr beliebt.
In der Nähe von Falkenstein gibt es auch einige Ausflugsziele. Die Orte Plauen und Zwickau bieten eine Vielzahl von kulturellen Attraktionen und Einkaufsmöglichkeiten. Das Vogtland Museum und das Plauener Spitzenmuseum sind zwei beliebte Sehenswürdigkeiten in der Region.
Insgesamt ist Falkenstein ein charmantes Städtchen im Vogtland mit einer faszinierenden Burg und einer malerischen Umgebung. Es bietet eine Kombination aus Geschichte, Natur und Outdoor-Aktivitäten und ist ein idealer Ort für einen erholsamen Aufenthalt.
Falkenstein hat eine malerische Lage mit einer beeindruckenden Aussicht auf die umliegende Landschaft. Die Stadt ist berühmt für ihre imposante Burg, die hoch oben auf einem Felsen thront und ein Wahrzeichen der Region ist. Die Burg Falkenstein stammt aus dem 12. Jahrhundert und ist heute ein beliebtes Ausflugsziel, das Besucher anlockt.
Die Altstadt von Falkenstein zeichnet sich durch ihre bezaubernde Atmosphäre aus. Traditionelle Fachwerkhäuser und historische Gebäude säumen die engen Kopfsteinpflastergassen. Es gibt auch einige interessante Museen, darunter das Burgmuseum und das Porzellanhofmuseum, die einen Einblick in die Geschichte und Kultur der Region bieten.
Die Umgebung von Falkenstein bietet zahlreiche Möglichkeiten für Outdoor-Aktivitäten. Wanderwege führen durch die Wälder und bieten beeindruckende Ausblicke auf die Landschaft. Auch Fahrradfahren, Reiten und Angeln sind in der Region möglich. Der nahe gelegene Göltzschtalradweg ist besonders bei Fahrradfahrern sehr beliebt.
In der Nähe von Falkenstein gibt es auch einige Ausflugsziele. Die Orte Plauen und Zwickau bieten eine Vielzahl von kulturellen Attraktionen und Einkaufsmöglichkeiten. Das Vogtland Museum und das Plauener Spitzenmuseum sind zwei beliebte Sehenswürdigkeiten in der Region.
Insgesamt ist Falkenstein ein charmantes Städtchen im Vogtland mit einer faszinierenden Burg und einer malerischen Umgebung. Es bietet eine Kombination aus Geschichte, Natur und Outdoor-Aktivitäten und ist ein idealer Ort für einen erholsamen Aufenthalt.
Kontaktanfrage senden
Über den Anbieter
STREIF Haus GmbH
Josef-Streif-Straße 1
54595 Weinsheim
Kontakt
| Telefon | 06551 12 00 |
| Mobil | +49 151 10658277 |
| Website | www.streif.de |
Ansprechpartner/in
Frau Nicole Bamberger
Weitere Angebote des Anbieters
11
Platz zum Aufwachsen, Raum zum Ankommen - ...
Haus
91220 Schnaittach
Ihr neues Familienkapitel auf 163 m² Vergessen Sie Kompromisse - hier erwartet Sie ein Zuhause, das mit Ihrer Familie mitwächst. Modern, lichtdurchflutet und durchdacht bis ins kleinste Detail. Das Herzstück Ihres ...
737.309 €
Kaufpreis
163 m²
Wohnfläche
6
Zimmer
8
Ankommen. Durchatmen. Zuhause sein - Leben in ...
Haus
90610 Winkelhaid
Dieses zeitgemäße Eigenheim wurde speziell auf die Ansprüche einer jungen Familie abgestimmt. Im Mittelpunkt steht der großzügige Wohn-, Ess- und Kochbereich von etwa 40 m², der durch seine helle und freundliche ...
717.607 €
Kaufpreis
143 m²
Wohnfläche
5
Zimmer
11
Ein Stück Dorfgefühl mitten in Nürnberg - Wohnen in ...
Haus
90475 Nürnberg
Ihr neues Familienkapitel auf 163 m² Vergessen Sie Kompromisse - hier erwartet Sie ein Zuhause, das mit Ihrer Familie mitwächst. Modern, lichtdurchflutet und durchdacht bis ins kleinste Detail. Das Herzstück Ihres ...
763.202 €
Kaufpreis
163 m²
Wohnfläche
5
Zimmer
10
Familienwohnen im Grünen mit Stadtnähe
Haus
90475 Nürnberg
Ihr neues Familienkapitel auf 143 m² Vergessen Sie Kompromisse - hier erwartet Sie ein Zuhause, das mit Ihrer Familie mitwächst. Modern, lichtdurchflutet und durchdacht bis ins kleinste Detail. Das Herzstück Ihres ...
668.553 €
Kaufpreis
143 m²
Wohnfläche
500
Zimmer
10
Familienwohnen mit Weitblick
Haus
90475 Nürnberg
Ihr neues Familienkapitel auf 143 m² Vergessen Sie Kompromisse - hier erwartet Sie ein Zuhause, das mit Ihrer Familie mitwächst. Modern, lichtdurchflutet und durchdacht bis ins kleinste Detail. Das Herzstück Ihres ...
676.764 €
Kaufpreis
143 m²
Wohnfläche
6
Zimmer