AIGNER - Wohnqualität neu gedacht: Familiengerechtes Wohnen in ruhiger, zentraler Lage Dachaus
1.750.000 €
Kaufpreis
215 m²
Wohnfläche
7
Zimmer
immobilien.de Nr.: 9450371
Objektnummer: 43127
Kaufpreis
| Kaufpreis | 1.750.000 € |
| Maklerprovision | 3,57% |
| Stellplatz Garage Kaufpreis | 100.000 € |
Wohnfläche, Grundstück & Bausubstanz
| Wohnfläche | 215 m² |
| Grundstücksfläche | 310 m² |
| Zimmer | 7 |
| Baujahr | 2026 |
| Verfügbar ab | Frühjahr 2026 |
| Zustand | Erstbezug |
Energie
| Heizungsart | Zentralheizung |
| Energieträger/Befeuerung | Elektro |
Beschreibung der Immobilie
Bei dem angebotenen Objekt handelt es sich um ein Zweifamilienhaus, welches sich aktuell im fortgeschrittenen Rohbau befindet. Die Fertigstellung ist für Frühjahr 2026 vorgesehen. Das Gebäude ist in zeitgemäßer Massiv-Bauweise errichtet und erfüllt aktuelle Anforderungen an Energieeffizienz, Wohnkomfort und Funktionalität.
Ein besonderer Mehrwert dieses Projekts besteht in den umfangreichen Mitgestaltungsmöglichkeiten für den Käufer. Abhängig vom jeweiligen Baufortschritt können wesentliche Ausstattungsmerkmale individuell bemustert und ausgewählt werden. Dazu zählen unter anderem die Bodenbeläge, Innentüren, die Ausführung der Bäder, das Beleuchtungskonzept, Terrassen- und Dachterrassenbeläge, die Wandfarbgestaltung sowie das Schaltermaterial der Elektroinstallation. Dadurch besteht die Möglichkeit, das Objekt in weiten Teilen an persönliche Wohnvorstellungen anzupassen.
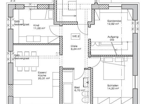
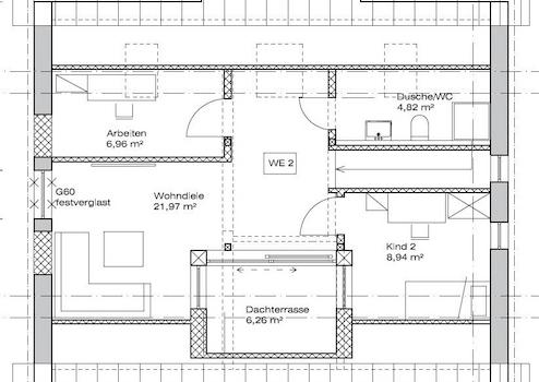
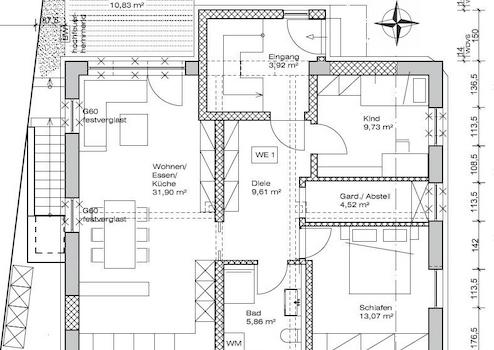
Die Grundrissgestaltung bietet attraktive Außenflächen: Das Erdgeschoss verfügt über eine direkt angeschlossene Terrasse inklusive eines gegenüberliegenden Anbaus mit überdachtem Grillplatz, während im Dachgeschoss zwei großzügige Dachterrassen vorhanden sind. Diese sind nach Nord-West sowie Süd-West ausgerichtet und bieten unterschiedliche Sonnen- und Nutzungsmöglichkeiten.
Die Beheizung des Gebäudes erfolgt über eine moderne Wärmepumpe in Kombination mit einer komfortablen Fußbodenheizung, was ein effizientes und zeitgemäßes Heizkonzept darstellt. Eine Doppelgarage sowie ein Stellplatz sind Bestandteil des Objekts und rundet das Angebot funktional ab.
Insgesamt besticht das Zweifamilienhaus mit flexiblen Ausstattungsoptionen, moderner Haustechnik und attraktiven Außenflächen – ideal für Eigennutzer wie auch für Kapitalanleger.
Der Kaufpreis setzt sich wie folgt zusammen: Kaufpreis Zweifamilienhaus 1.750.000 Euro + 2 Garagenstellplätze je 40.000 Euro + 20.000 Euro Außenstellplatz = 1.850.000 Euro Gesamtkaufpreis.
Ein besonderer Mehrwert dieses Projekts besteht in den umfangreichen Mitgestaltungsmöglichkeiten für den Käufer. Abhängig vom jeweiligen Baufortschritt können wesentliche Ausstattungsmerkmale individuell bemustert und ausgewählt werden. Dazu zählen unter anderem die Bodenbeläge, Innentüren, die Ausführung der Bäder, das Beleuchtungskonzept, Terrassen- und Dachterrassenbeläge, die Wandfarbgestaltung sowie das Schaltermaterial der Elektroinstallation. Dadurch besteht die Möglichkeit, das Objekt in weiten Teilen an persönliche Wohnvorstellungen anzupassen.
Die Grundrissgestaltung bietet attraktive Außenflächen: Das Erdgeschoss verfügt über eine direkt angeschlossene Terrasse inklusive eines gegenüberliegenden Anbaus mit überdachtem Grillplatz, während im Dachgeschoss zwei großzügige Dachterrassen vorhanden sind. Diese sind nach Nord-West sowie Süd-West ausgerichtet und bieten unterschiedliche Sonnen- und Nutzungsmöglichkeiten.
Die Beheizung des Gebäudes erfolgt über eine moderne Wärmepumpe in Kombination mit einer komfortablen Fußbodenheizung, was ein effizientes und zeitgemäßes Heizkonzept darstellt. Eine Doppelgarage sowie ein Stellplatz sind Bestandteil des Objekts und rundet das Angebot funktional ab.
Insgesamt besticht das Zweifamilienhaus mit flexiblen Ausstattungsoptionen, moderner Haustechnik und attraktiven Außenflächen – ideal für Eigennutzer wie auch für Kapitalanleger.
Der Kaufpreis setzt sich wie folgt zusammen: Kaufpreis Zweifamilienhaus 1.750.000 Euro + 2 Garagenstellplätze je 40.000 Euro + 20.000 Euro Außenstellplatz = 1.850.000 Euro Gesamtkaufpreis.
Ausstattungsmerkmale
| Bad | 3 |
| Garage/Stellplätze | 3 |
| Keller |
Geplante Fertigstellung: Frühjahr 2026
Aktuell im fortgeschrittenen Rohbau (Endstadium Rohbau)
Mitbestimmungsmöglichkeiten je nach Baufortschritt
Zwischenverkauf im jeweiligen Bauzustand möglich
Blick auf die Altstadt Dachaus
Erdgeschoss mit direkt zugeordneter Terrasse inkl. Anbau und überdachtem Grillplatz
Dachgeschoss mit zwei Dachterrassen in Nord-West- & Süd-West-Ausrichtung
Moderne Heiztechnik mit Wärmepumpe
Fußbodenheizung
Photovoltaikanlage (Südseite, optional)
3-fach verglaste Kunststofffenster in Anthrazit mit elektrischen Rolläden
Dachfenster (Thermo Velux), 3-fach verglast mit elektrischen Rolläden
Videosprechanlage
Eichenparkett
Doppelgarage mit 2x Wallbox und Außenstellplatz vorhanden
Aktuell im fortgeschrittenen Rohbau (Endstadium Rohbau)
Mitbestimmungsmöglichkeiten je nach Baufortschritt
Zwischenverkauf im jeweiligen Bauzustand möglich
Blick auf die Altstadt Dachaus
Erdgeschoss mit direkt zugeordneter Terrasse inkl. Anbau und überdachtem Grillplatz
Dachgeschoss mit zwei Dachterrassen in Nord-West- & Süd-West-Ausrichtung
Moderne Heiztechnik mit Wärmepumpe
Fußbodenheizung
Photovoltaikanlage (Südseite, optional)
3-fach verglaste Kunststofffenster in Anthrazit mit elektrischen Rolläden
Dachfenster (Thermo Velux), 3-fach verglast mit elektrischen Rolläden
Videosprechanlage
Eichenparkett
Doppelgarage mit 2x Wallbox und Außenstellplatz vorhanden
Sonstige Informationen
Heizungsart: Wärmepumpe
Baujahr: 2026
Befeuerung/Energieträger: Strom
Energieausweistyp: Bedarfsausweis
Energiekennwert: 41,3 kWh kWh/(m²*a)
Energieeffizienzklasse: A
Baujahr: 2026
Befeuerung/Energieträger: Strom
Energieausweistyp: Bedarfsausweis
Energiekennwert: 41,3 kWh kWh/(m²*a)
Energieeffizienzklasse: A
Karte wird geladen...
Objektstandort
85221 Dachau
Lage & Infrastruktur
Objektstandort
85221 Dachau
Das Objekt befindet sich in einer ruhigen und gewachsenen Wohnlage der Stadt Dachau.
Das direkte Umfeld zeichnet sich durch eine angenehme, familienfreundliche Wohnatmosphäre sowie eine gepflegte Nachbarschaft aus. Die geringe Verkehrsbelastung sorgt für ein hohes Maß an Ruhe und Wohnqualität.
Dachau verfügt über eine gut ausgebaute Infrastruktur. Einrichtungen des täglichen Bedarfs wie Einkaufsmöglichkeiten, Bäckereien, Apotheken sowie Banken sind in kurzer Zeit erreichbar.
Kindergärten, Schulen und ärztliche Versorgungseinrichtungen befinden sich ebenfalls in komfortabler Nähe und unterstreichen die Attraktivität des Standorts für Familien und Mehrgenerationenhaushalte.
Die Anbindung an den öffentlichen Personennahverkehr ist gut. Der S-Bahnhof Dachau mit direkter Verbindung in die Münchner Innenstadt ist mit dem Rad in 3 Minuten erreichbar.
Ergänzend besteht eine verkehrsgünstige Anbindung an das regionale und überregionale Straßennetz, wodurch sowohl München als auch die umliegenden Wirtschaftsstandorte schnell erreichbar sind.
Ein vielfältiges Freizeit- und Naherholungsangebot rundet die Lage ab. Grünflächen, Rad- und Spazierwege sowie naturnahe Erholungsräume bieten einen hohen Freizeitwert.
Die historische Altstadt von Dachau mit ihren kulturellen Einrichtungen, Gastronomieangeboten und Veranstaltungen trägt zusätzlich zur hohen Lebensqualität bei.
Insgesamt vereint die Lage ein ruhiges, wohnorientiertes Umfeld mit einer sehr guten Infrastruktur und einer attraktiven Nähe zur Landeshauptstadt München.
Das direkte Umfeld zeichnet sich durch eine angenehme, familienfreundliche Wohnatmosphäre sowie eine gepflegte Nachbarschaft aus. Die geringe Verkehrsbelastung sorgt für ein hohes Maß an Ruhe und Wohnqualität.
Dachau verfügt über eine gut ausgebaute Infrastruktur. Einrichtungen des täglichen Bedarfs wie Einkaufsmöglichkeiten, Bäckereien, Apotheken sowie Banken sind in kurzer Zeit erreichbar.
Kindergärten, Schulen und ärztliche Versorgungseinrichtungen befinden sich ebenfalls in komfortabler Nähe und unterstreichen die Attraktivität des Standorts für Familien und Mehrgenerationenhaushalte.
Die Anbindung an den öffentlichen Personennahverkehr ist gut. Der S-Bahnhof Dachau mit direkter Verbindung in die Münchner Innenstadt ist mit dem Rad in 3 Minuten erreichbar.
Ergänzend besteht eine verkehrsgünstige Anbindung an das regionale und überregionale Straßennetz, wodurch sowohl München als auch die umliegenden Wirtschaftsstandorte schnell erreichbar sind.
Ein vielfältiges Freizeit- und Naherholungsangebot rundet die Lage ab. Grünflächen, Rad- und Spazierwege sowie naturnahe Erholungsräume bieten einen hohen Freizeitwert.
Die historische Altstadt von Dachau mit ihren kulturellen Einrichtungen, Gastronomieangeboten und Veranstaltungen trägt zusätzlich zur hohen Lebensqualität bei.
Insgesamt vereint die Lage ein ruhiges, wohnorientiertes Umfeld mit einer sehr guten Infrastruktur und einer attraktiven Nähe zur Landeshauptstadt München.
Kontaktanfrage senden
Über den Anbieter
Aigner Immobilien GmbH
Ruffinistr. 26
80637 München
Kontakt
| Telefon | +49(89) 17 87 87 0 |
| Fax | (089) 17 87 87 88 |
| Website | www.aigner-immobilien.de |
Ansprechpartner/in
Frau Ann-Kathrin Kafitz
Weitere Angebote des Anbieters
3
AIGNER - Attraktives Grundstück in Feldafing für ...
Grundstück
82340 Feldafing
Dieses Grundstück mit einer Fläche von 545 m² befindet sich in einer ruhigen, attraktiven Wohnlage am Rand von Feldafing. Die Bebaubarkeit des Grundstückes orientiert sich an den Vorgaben des Bebauungsplans Nr. 81 der ...
650.000 €
Kaufpreis
545 m²
Grundstücksfläche
8
AIGNER - Ruhig gelegener Dachgeschosstraum in ...
Wohnung
81825 München
Die angebotene Dachgeschosswohnung befindet sich im 2. Obergeschoss eines 2020 erbauten Mehrfamilienhauses mit sechs Parteien. Ob zum Selbstbezug oder als Kapitalanlage - dieses Objekt erfüllt alle Anforderungen, die ...
540.000 €
Kaufpreis
67,48 m²
Wohnfläche
2
Zimmer
8
AIGNER - Top-Lage Obermenzing: 1,5 Zimmer ...
Wohnung
81245 München
Diese gepflegte 1,5-Zimmer-Erdgeschosswohnung in der München überzeugt mit einer durchdachten Raumaufteilung, umfangreichen Sanierungs-maßnahmen am Gebäude sowie einem attraktiven Außenbereich zur alleinigen Nutzung. ...
359.000 €
Kaufpreis
40 m²
Wohnfläche
1,5
Zimmer
5
AIGNER- Renovierungsbedürftige 2-Zimmer-Wohnung am ...
Wohnung
80639 München
Diese 2-Zimmer-Wohnung mit einer Wohnfläche von ca. 59,90 m² befindet sich im 1. Obergeschoss eines gepflegten Mehrfamilienhauses aus dem Jahr 1960. Die Wohnung ist renovierungsbedürftig und bietet somit eine gute ...
475.000 €
Kaufpreis
7929,88 €
Kaufpreis pro m²
60 m²
Wohnfläche
2
Zimmer
18
AIGNER - Großzügiges Einfamilienhaus in ruhiger ...
Haus
85354 Freising
Dieses exklusive Einfamilienhaus in Freising bietet auf über 1.000 m² Grundstücksfläche ein luxuriöses und großzügiges Wohnambiente. Schon im hellen und offenen Eingangsbereich beeindruckt der edle, rote Marmorboden, ...
2.390.000 €
Kaufpreis
358,72 m²
Wohnfläche
9
Zimmer