Modernes Reihenendhaus - Effizient. Massiv. Zukunftssicher.
672.000 €
Kaufpreis
111 m²
Wohnfläche
4
Zimmer
immobilien.de Nr.: 9449021
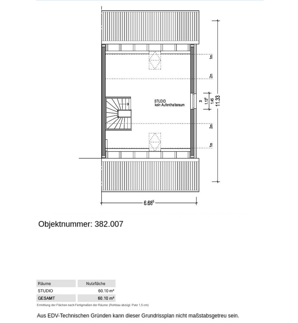
Objektnummer: 382007
Kaufpreis
| Kaufpreis | 672.000 € |
| Maklerprovision | 3,57 % (inkl. MwSt.) |
Wohnfläche, Grundstück & Bausubstanz
| Wohnfläche | 111 m² |
| Grundstücksfläche | 306 m² |
| Zimmer | 4 |
| Baujahr | 2026 |
| Verfügbar ab | keine Angabe |
Beschreibung der Immobilie
Zum Verkauf steht ein attraktives Baugrundstück in gefragter Wohnlage von Aichach-Unterwittelsbach, das vielseitige Bebauungsmöglichkeiten bietet. Zur besseren Vorstellung der Entwicklungspotenziale wurde für das Grundstück ein modernes Beispielhaus (Reihenendhaus S454) projektiert, das den geltenden Bebauungsvorschriften entspricht und als realistische Bauoption umgesetzt werden könnte.
Die Projektierung dient ausschließlich der Visualisierung einer möglichen Bebauung und zeigt, welches Wohnkonzept auf dem Grundstück realisierbar ist. Das Grundstück eignet sich sowohl für private Bauherren als auch für Bauträger oder Projektentwickler, die hier ein individuelles Wohnbauvorhaben umsetzen möchten.
Abhängig von den baurechtlichen Rahmenbedingungen sind unter anderem folgende Nutzungen denkbar:
* Einfamilienhaus
* Zweifamilienhaus
* mehrere Wohneinheiten, z. B. ein Dreier-Reihenhaus
Individuelle Bauträgerkonzepte:
Damit bietet das Grundstück ein hohes Maß an Flexibilität, sowohl für Eigennutzer mit persönlichen Wohnvorstellungen als auch für Investoren mit Entwicklungsabsicht.
Weitere Angebote unter www.GARANT-IMMO.de
Die Projektierung dient ausschließlich der Visualisierung einer möglichen Bebauung und zeigt, welches Wohnkonzept auf dem Grundstück realisierbar ist. Das Grundstück eignet sich sowohl für private Bauherren als auch für Bauträger oder Projektentwickler, die hier ein individuelles Wohnbauvorhaben umsetzen möchten.
Abhängig von den baurechtlichen Rahmenbedingungen sind unter anderem folgende Nutzungen denkbar:
* Einfamilienhaus
* Zweifamilienhaus
* mehrere Wohneinheiten, z. B. ein Dreier-Reihenhaus
Individuelle Bauträgerkonzepte:
Damit bietet das Grundstück ein hohes Maß an Flexibilität, sowohl für Eigennutzer mit persönlichen Wohnvorstellungen als auch für Investoren mit Entwicklungsabsicht.
Weitere Angebote unter www.GARANT-IMMO.de
Ausstattungsmerkmale
| Anzahl der Etagen im Haus | 2 |
| Bad | 1 |
Karte wird geladen...
Objektstandort
86551 Aichach
Lage & Infrastruktur
Objektstandort
86551 Aichach
Das Objekt befindet sich in Aichach-Unterwittelsbach, einem besonders gefragten und charmanten Ortsteil der Stadt Aichach. Die Lage verbindet ruhiges, familienfreundliches Wohnen mit einer sehr guten Infrastruktur.
Einkaufsmöglichkeiten, Schulen, Kindergärten sowie alle Einrichtungen des täglichen Bedarfs sind in weniger als einem Kilometer erreichbar. Die schnelle Anbindung an die Bundesstraße B300 ermöglicht kurze Wege in Richtung Augsburg und Ingolstadt, wodurch sich der Standort ideal für Berufspendler eignet.
Die Umgebung ist geprägt von gewachsener Wohnbebauung, Grünflächen und einer hohen Lebensqualität - perfekt für alle, die naturnah wohnen möchten, ohne auf eine gute Erreichbarkeit urbaner Zentren zu verzichten.
Einkaufsmöglichkeiten, Schulen, Kindergärten sowie alle Einrichtungen des täglichen Bedarfs sind in weniger als einem Kilometer erreichbar. Die schnelle Anbindung an die Bundesstraße B300 ermöglicht kurze Wege in Richtung Augsburg und Ingolstadt, wodurch sich der Standort ideal für Berufspendler eignet.
Die Umgebung ist geprägt von gewachsener Wohnbebauung, Grünflächen und einer hohen Lebensqualität - perfekt für alle, die naturnah wohnen möchten, ohne auf eine gute Erreichbarkeit urbaner Zentren zu verzichten.
Kontaktanfrage senden
Über den Anbieter
Garant Immobilien AG
Wilhelmstr.5
70182 Stuttgart
Kontakt
| Telefon | 0821/43 98 70-0 |
| Fax | 0821/43 98 70-20 |
| Website | www.garant-immo.de |
Ansprechpartner/in
Büro Augsburg