Lichtdurchflutetes Reihenendhaus in super Lage mit Garten
2.350 €
Kaltmiete (netto)
200 m²
Wohnfläche
9
Zimmer
immobilien.de Nr.: 9443584
Objektnummer: 424856
Mietpreis & Nebenkosten
| Kaltmiete (netto) | 2.350 € |
| Nebenkosten | Keine Angabe |
Wohnfläche, Grundstück & Bausubstanz
| Wohnfläche | 200 m² |
| Grundstücksfläche | 315 m² |
| Zimmer | 9 |
| Baujahr | 1977 |
| Verfügbar ab | nach Absprache |
| Zustand | Teil Vollsaniert |
Energie
| Energieausweistyp | Bedarfsausweis |
| Energieeffizienzklasse | E |
| Endenergiebedarf | 154 |
| Energieträger/Befeuerung | Gas |
Beschreibung der Immobilie
Nur selten findet man in dieser begehrten Lage ein Haus zur Miete! Das lichtdurchflutete Reihenendhaus, erbaut im Jahr 1977, wird derzeit aufwendig renoviert und bietet eine perfekte Kombination aus klassischer zweigeschossiger Architektur und modernem Wohnkomfort. Gelegen in einer ruhigen, grünen Oase direkt am Schrebergarten im exklusiven Stadtteil Mönchengladbach-Windberg, ist dieses Haus das ideale Zuhause für junge Familien und anspruchsvolle Paare.
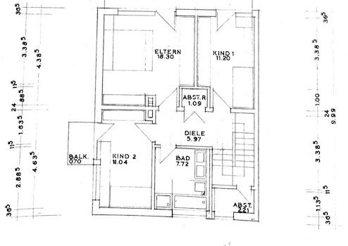
Raumaufteilung:
Erdgeschoss:
- Großzügiges Wohnzimmer mit Kamin (kann in Betrieb genommen werden) und Zugang zur Terrasse
- Küche
- Offene, geräumige Diele
- Gäste-WC
- Überdachte Terrasse mit Garten
Erstes Obergeschoss:
- Drei helle Zimmer ohne Schrägen mit Balkonzugang
- Modernes neues Bad mit Badewanne und geräumiger Dusche
- Praktische Abstellräume
Dachgeschoss:
- Drei vielseitig nutzbare Zimmer
- Separates und neues WC
Untergeschoss:
- Funktionale Waschküche mit Außenzugang; bietet Potential für Einbau einer Sauna
- Geräumiger Vorratsraum
- Büro- bzw. Hobbyraum im Souterrain
Dieses geräumige Zuhause mit Dach- und Untergeschoss besticht durch seine renommierte Lage, die modernisierte Ausstattung sowie flexible Raumnutzungsmöglichkeiten.
--- Bitte beachten Sie, dass die Fotos noch keinen abgeschlossenen Renovierungsstand zeigen. ---
Vereinbaren Sie einfach einen Besichtigungstermin und lassen Sie sich vor Ort von diesem einzigartigen Angebot begeistern!
Objektzustand: Erstbezug nach Sanierung
Raumaufteilung:
Erdgeschoss:
- Großzügiges Wohnzimmer mit Kamin (kann in Betrieb genommen werden) und Zugang zur Terrasse
- Küche
- Offene, geräumige Diele
- Gäste-WC
- Überdachte Terrasse mit Garten
Erstes Obergeschoss:
- Drei helle Zimmer ohne Schrägen mit Balkonzugang
- Modernes neues Bad mit Badewanne und geräumiger Dusche
- Praktische Abstellräume
Dachgeschoss:
- Drei vielseitig nutzbare Zimmer
- Separates und neues WC
Untergeschoss:
- Funktionale Waschküche mit Außenzugang; bietet Potential für Einbau einer Sauna
- Geräumiger Vorratsraum
- Büro- bzw. Hobbyraum im Souterrain
Dieses geräumige Zuhause mit Dach- und Untergeschoss besticht durch seine renommierte Lage, die modernisierte Ausstattung sowie flexible Raumnutzungsmöglichkeiten.
--- Bitte beachten Sie, dass die Fotos noch keinen abgeschlossenen Renovierungsstand zeigen. ---
Vereinbaren Sie einfach einen Besichtigungstermin und lassen Sie sich vor Ort von diesem einzigartigen Angebot begeistern!
Objektzustand: Erstbezug nach Sanierung
Ausstattungsmerkmale
| Anzahl der Etagen im Haus | 2 |
| Küche | Einbauküche |
| Bad | 3 |
| Bad | Dusche, Wanne |
| Boden | Fliesen, Kunststoff |
| Balkone | 1 |
| Garten | |
| Terrassen | 1 |
| Keller |
Balkon, Terrasse, Garten, Keller, Vollbad, Duschbad, Einbauküche, Gäste-WC, Kamin, Fliesen
Bemerkungen:
- gehobene Auststattung
- Bodentiefe Fenster im Wohnzimmer und im 1. OG mit Stulptüren
- Kamin
- Fußbodenheizung auf allen 4 Ebenen (KG, EG, 1. OG, DG).
- vollständig moderinisiertes Badezimmer mit großer begehbarer Dusche und zusätzlicher Badewanne
- 2 separate Balkone
- Keller mit Souterrain Fenster
- hochwertige 3-fach Verglasung mit Aluminium Rollläden
- neue moderne Sicherheitstür
- und vieles mehr
Bemerkungen:
- gehobene Auststattung
- Bodentiefe Fenster im Wohnzimmer und im 1. OG mit Stulptüren
- Kamin
- Fußbodenheizung auf allen 4 Ebenen (KG, EG, 1. OG, DG).
- vollständig moderinisiertes Badezimmer mit großer begehbarer Dusche und zusätzlicher Badewanne
- 2 separate Balkone
- Keller mit Souterrain Fenster
- hochwertige 3-fach Verglasung mit Aluminium Rollläden
- neue moderne Sicherheitstür
- und vieles mehr
Sonstige Informationen
Energieträger: Gas
Makleranfragen nicht erwünscht. Nach § 7 UWG sind unaufgeforderte Kontaktaufnahmen durch Makler ohne ausdrückliche Einwilligung des Empfängers verboten!
ohne-makler (OM) ist weder Anbieter noch Vermittler der Immobilie. OM betreibt eine Plattform für Immobilieneigentümer, die unter anderem die gleichzeitige Veröffentlichung einzelner Inserate auf mehreren Immobilienportalen ermöglicht. Die Inhalte dieser Inserate werden ausschließlich von Dritten verantwortet. Für die Richtigkeit, Vollständigkeit oder Rechtmäßigkeit der Angaben übernimmt OM keine Haftung. Hinweise auf mögliche Rechtsverstöße können jederzeit gemeldet werden und werden nach Prüfung umgehend bearbeitet.
Makleranfragen nicht erwünscht. Nach § 7 UWG sind unaufgeforderte Kontaktaufnahmen durch Makler ohne ausdrückliche Einwilligung des Empfängers verboten!
ohne-makler (OM) ist weder Anbieter noch Vermittler der Immobilie. OM betreibt eine Plattform für Immobilieneigentümer, die unter anderem die gleichzeitige Veröffentlichung einzelner Inserate auf mehreren Immobilienportalen ermöglicht. Die Inhalte dieser Inserate werden ausschließlich von Dritten verantwortet. Für die Richtigkeit, Vollständigkeit oder Rechtmäßigkeit der Angaben übernimmt OM keine Haftung. Hinweise auf mögliche Rechtsverstöße können jederzeit gemeldet werden und werden nach Prüfung umgehend bearbeitet.
Karte wird geladen...
Objektstandort
Braunsstraße 41
41063 Mönchengladbach
- Nordrhein-Westfalen
Lage & Infrastruktur
Objektstandort
Braunsstraße 41
41063 Mönchengladbach
- Nordrhein-Westfalen
Das Objekt befindet sich in ruhiger Wohnlage in Mönchengladbach Windberg. Fußläufig sind viele Bereiche des täglichen Bedarfs zu erreichen (Ärzte, Schulen, Supermarkt, Bäcker,..). Die Autobahnen A61 und A52 wird schnell erreichbar und ermöglichen schnelles pendeln nach Düsseldorf, Köln, Roermond und vielen weiteren umliegenden Städten.
Zudem ist das Objekt über mehrere Buslinien gut an den ÖPNV angebunden.
Infrastruktur (im Umkreis von 5 km):
Apotheke, Lebensmittel-Discount, Allgemeinmediziner, Kindergarten, Grundschule, Hauptschule, Realschule, Gymnasium, Gesamtschule, Öffentliche Verkehrsmittel
Zudem ist das Objekt über mehrere Buslinien gut an den ÖPNV angebunden.
Infrastruktur (im Umkreis von 5 km):
Apotheke, Lebensmittel-Discount, Allgemeinmediziner, Kindergarten, Grundschule, Hauptschule, Realschule, Gymnasium, Gesamtschule, Öffentliche Verkehrsmittel