2 Familienhaus - Mehrgenerationen finden eine Heimat mit großem Garten und Pool
935.000 €
Kaufpreis
271 m²
Wohnfläche
271 m²
Nutzfläche
8
Zimmer
immobilien.de Nr.: 9443020
Objektnummer: FALC-AmBl-78559
Kaufpreis
| Kaufpreis | 935.000 € |
| Maklerprovision | 3,57 % inkl. MwSt vom not. Kaufpreis |
Wohnfläche, Grundstück & Bausubstanz
| Wohnfläche | 271 m² |
| Nutzfläche | 271 m² |
| Gesamtfläche | 301,11 m² |
| Grundstücksfläche | 1.039 m² |
| Zimmer | 8 |
| Baujahr | 1996 |
| Letzte Modernisierung | 2020 |
| Verfügbar ab | Nach Absprache |
| Zustand | Gepflegt |
Energie
| Energieausweistyp | Bedarfsausweis |
| Ausstellungsdatum | 02. 01. 2025 |
| Gültig bis | 02.01.2035 |
| Energieeffizienzklasse | C |
| Endenergiebedarf | 88.9 |
| Heizungsart | Zentralheizung |
| Wesentlicher Energieträger | Gas |
| Energieträger/Befeuerung | Gas |
Beschreibung der Immobilie
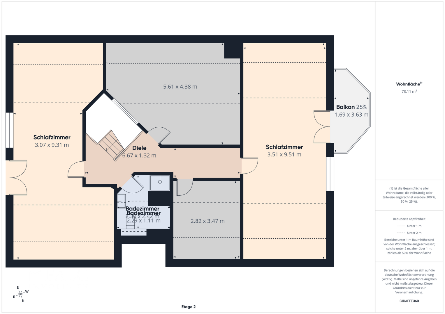
Dieses gepflegte komplett unterkellerte Zweifamilienhaus aus dem Baujahr 1996 bietet mit rund 271,55 m² Wohnfläche und 8 Zimmern viel Platz für gemeinsames Familienleben, Rückzugsmöglichkeiten und flexible Nutzung. Das Haus kann komfortabel als Einfamilienhaus genutzt werden, lässt sich jedoch auch problemlos als Zwei-Familienhaus bewohnen.
Im Erdgeschoss empfängt Sie ein heller Eingangsbereich mit zentraler Diele. Ein modernisiertes Gäste-WC (2021) sowie die separate Küche mit Platz für einen Frühstückstisch sorgen für Alltagstauglichkeit. Herzstück ist der großzügige Wohn- und Essbereich mit großen Fensterflächen, Kachelofen, integriertem Soundsystem und direktem Zugang zum Balkon. Hochwertige Granitböden im Eingangsbereich und Treppenhaus unterstreichen den gepflegten Eindruck. Ein Schlafzimmer und ein Badezimmer ergänzen diese Ebene.
Das Dachgeschoss bietet weitere flexibel nutzbare Zimmer für Kinder, Arbeiten oder Gäste. Das Bad wurde 2016 modernisiert, zudem wurden Balkongeländer aus Edelstahl erneuert. Ein weiterer Balkon rundet das Raumangebot ab.
Im unteren Geschoss stehen neben Hauswirtschafts- und Technikraum, Werkraum ein großer Hobbyraum so wie eine vollwertige Wohnung mit Wohn-Esszimmer, Schlafzimmer, Küche und Bad zur Verfügung – ideal für Hobby, Gäste oder Mehrgenerationennutzung.
Der Garten lädt zum Spielen und Entspannen ein. Besonderes Highlight ist der überdachte, beheizte Pool mit Filteranlage, dessen Dach 2020 erneuert wurde. Eine Zisterne zur Bewässerung des gesamten Gartens sowie ein Sichtschutz aus Cortenstahl sorgen für Komfort und Privatsphäre.
Ein Haus mit viel Platz, moderner Technik und laufend gepflegter Substanz – ideal für Familien, die heute großzügig wohnen und morgen flexibel bleiben möchten.
Im Erdgeschoss empfängt Sie ein heller Eingangsbereich mit zentraler Diele. Ein modernisiertes Gäste-WC (2021) sowie die separate Küche mit Platz für einen Frühstückstisch sorgen für Alltagstauglichkeit. Herzstück ist der großzügige Wohn- und Essbereich mit großen Fensterflächen, Kachelofen, integriertem Soundsystem und direktem Zugang zum Balkon. Hochwertige Granitböden im Eingangsbereich und Treppenhaus unterstreichen den gepflegten Eindruck. Ein Schlafzimmer und ein Badezimmer ergänzen diese Ebene.
Das Dachgeschoss bietet weitere flexibel nutzbare Zimmer für Kinder, Arbeiten oder Gäste. Das Bad wurde 2016 modernisiert, zudem wurden Balkongeländer aus Edelstahl erneuert. Ein weiterer Balkon rundet das Raumangebot ab.
Im unteren Geschoss stehen neben Hauswirtschafts- und Technikraum, Werkraum ein großer Hobbyraum so wie eine vollwertige Wohnung mit Wohn-Esszimmer, Schlafzimmer, Küche und Bad zur Verfügung – ideal für Hobby, Gäste oder Mehrgenerationennutzung.
Der Garten lädt zum Spielen und Entspannen ein. Besonderes Highlight ist der überdachte, beheizte Pool mit Filteranlage, dessen Dach 2020 erneuert wurde. Eine Zisterne zur Bewässerung des gesamten Gartens sowie ein Sichtschutz aus Cortenstahl sorgen für Komfort und Privatsphäre.
Ein Haus mit viel Platz, moderner Technik und laufend gepflegter Substanz – ideal für Familien, die heute großzügig wohnen und morgen flexibel bleiben möchten.
Ausstattungsmerkmale
| Anzahl der Etagen im Haus | 3 |
| Küche | Einbauküche |
| Bad | 3 |
| Bad | Dusche, Wanne, Fenster, Bidet |
| Boden | Fliesen, Parkett, Laminat, Granit |
| Balkone | 2 |
| Garten | |
| Terrassen | 2 |
| Garage/Stellplätze | 4 |
| Keller |
In den letzten Jahren wurde kontinuierlich in die WEBER-Immobilie investiert:
Eine neue Heizungsanlage mit solarthermischer Unterstützung, Smart-Home-Elektroinstallation, erneuerte Holzdecken, eine neue Treppe, umfassende Malerarbeiten innen und außen, ein Carport, eine 6,8 kWp PV-Anlage mit neuem Wechselrichter (2023) sowie Glasfaseranschluss (2024) bieten zeitgemäßen Wohnkomfort. Zusätzlich stehen eine Doppelgarage und eine E-Ladestation für Elektrofahrzeuge zur Verfügung. Die Energieeffizienzklasse C rundet das Gesamtbild ab.
Die Ausstattung dieser Immobilie überzeugt durch eine gelungene Kombination aus modernem Design, hochwertiger Technik (Videoüberwachung) und durchdachten Details.
Die Küche präsentiert sich als echtes Highlight: Edle Granitarbeitsplatten treffen auf exklusive Miele-Einbaugeräte und schaffen ein elegantes wie funktionales Ambiente für anspruchsvolles Kochen und Genießen.
Auch der Außenbereich lässt keine Wünsche offen. Das beheizbare Schwimmbad mit passendem Dach und moderner Filteranlage lädt zu entspannten Stunden ein und rundet das hochwertige Gesamtbild dieser Immobilie perfekt ab.
Eine neue Heizungsanlage mit solarthermischer Unterstützung, Smart-Home-Elektroinstallation, erneuerte Holzdecken, eine neue Treppe, umfassende Malerarbeiten innen und außen, ein Carport, eine 6,8 kWp PV-Anlage mit neuem Wechselrichter (2023) sowie Glasfaseranschluss (2024) bieten zeitgemäßen Wohnkomfort. Zusätzlich stehen eine Doppelgarage und eine E-Ladestation für Elektrofahrzeuge zur Verfügung. Die Energieeffizienzklasse C rundet das Gesamtbild ab.
Die Ausstattung dieser Immobilie überzeugt durch eine gelungene Kombination aus modernem Design, hochwertiger Technik (Videoüberwachung) und durchdachten Details.
Die Küche präsentiert sich als echtes Highlight: Edle Granitarbeitsplatten treffen auf exklusive Miele-Einbaugeräte und schaffen ein elegantes wie funktionales Ambiente für anspruchsvolles Kochen und Genießen.
Auch der Außenbereich lässt keine Wünsche offen. Das beheizbare Schwimmbad mit passendem Dach und moderner Filteranlage lädt zu entspannten Stunden ein und rundet das hochwertige Gesamtbild dieser Immobilie perfekt ab.
Sonstige Informationen
Wenn Sie Interesse an der Immobilie haben, fordern Sie gerne das ausführliche Exposé an, das Ihnen in der Regel kurzfristig und automatisch zugesandt wird. Sollten Sie eine Besichtigung wünschen, antworten Sie am besten direkt per E-Mail auf das Exposé. Wir setzen uns umgehend mit Ihnen in Verbindung und unterbreiten Ihnen passende Terminvorschläge. Bitte geben Sie dabei stets Ihre vollständigen Kontaktdaten an. Die Objektbeschreibung basiert ganz oder teilweise auf den Angaben des Eigentümers. Für die Richtigkeit und Vollständigkeit dieser Informationen übernehmen wir keine Gewähr. Möchten auch Sie Ihre Immobilie professionell vermarkten? Dann kontaktieren Sie uns gerne! Wir stehen Ihnen täglich von Montag bis Sonntag zwischen 6:00 und 22:00 Uhr persönlich zur Verfügung. Über 200.000 aktive Interessenten warten bereits auf Ihr Angebot. Bitte beachten Sie, dass das Exposé möglicherweise unter Zuhilfenahme von Künstlicher Intelligenz (KI) erstellt oder überarbeitet wurde. Dabei wurden jedoch keine wesentlichen Merkmale verändert.
Karte wird geladen...
Objektstandort
Oberärmel 17
79336 Herbolzheim
- Baden-Württemberg
Lage & Infrastruktur
Objektstandort
Oberärmel 17
79336 Herbolzheim
- Baden-Württemberg
Die Immobilie befindet sich in Herbolzheim, in einem ruhigen, gewachsenen Umfeld mit dörflichem Charakter. Die Nachbarschaft wirkt angenehm überschaubar und ist geprägt von einer hohen Eigentümerquote, was für ein stabiles Wohnumfeld spricht.
Alltag und Versorgung
Für den täglichen Bedarf sind Einkaufsmöglichkeiten gut erreichbar. Ein EDEKA sowie ein ALDI Süd liegen jeweils in ca. 4 bis 5 km Entfernung. Auch eine dm Drogerie befindet sich in ähnlicher Distanz. Post und Paketservices sind ebenfalls in wenigen Kilometern verfügbar.
Familie und Bildung
Für Familien ist die Lage praktisch: Ein Kindergarten wie der Katholische Kindergarten St Marien liegt in ca. 1 km Entfernung, die Grundschule ist ebenfalls in ca. 1 km erreichbar. Mehrere Spielplätze befinden sich in der Nähe und bieten kurze Wege für den Alltag.
Freizeit und Erholung
Grünflächen und Spaziermöglichkeiten sind schnell erreicht, ein Park liegt in ca. 2 km Entfernung. Für sportliche Aktivitäten bietet sich unter anderem das Terrassenfreibad Herbolzheim in ca. 4 km an. Wer gerne auswärts isst, findet mit dem Gasthaus Zur Krone in ca. 1 km eine nahe Option.
Verkehrsanbindung
Die nächste Bushaltestelle Bleichheim Vogtstraße liegt in ca. 700 m Entfernung. Der Bahnhof Herbolzheim Breisgau ist in ca. 5 km erreichbar und bietet eine gute Anbindung in der Region. Mit dem Auto ist die Autobahn A5 über die Anschlussstelle Herbolzheim schnell erreichbar. Für Flugreisen bieten sich mehrere Flughäfen in der weiteren Umgebung an, darunter der EuroAirport Basel Mulhouse Freiburg.
Alltag und Versorgung
Für den täglichen Bedarf sind Einkaufsmöglichkeiten gut erreichbar. Ein EDEKA sowie ein ALDI Süd liegen jeweils in ca. 4 bis 5 km Entfernung. Auch eine dm Drogerie befindet sich in ähnlicher Distanz. Post und Paketservices sind ebenfalls in wenigen Kilometern verfügbar.
Familie und Bildung
Für Familien ist die Lage praktisch: Ein Kindergarten wie der Katholische Kindergarten St Marien liegt in ca. 1 km Entfernung, die Grundschule ist ebenfalls in ca. 1 km erreichbar. Mehrere Spielplätze befinden sich in der Nähe und bieten kurze Wege für den Alltag.
Freizeit und Erholung
Grünflächen und Spaziermöglichkeiten sind schnell erreicht, ein Park liegt in ca. 2 km Entfernung. Für sportliche Aktivitäten bietet sich unter anderem das Terrassenfreibad Herbolzheim in ca. 4 km an. Wer gerne auswärts isst, findet mit dem Gasthaus Zur Krone in ca. 1 km eine nahe Option.
Verkehrsanbindung
Die nächste Bushaltestelle Bleichheim Vogtstraße liegt in ca. 700 m Entfernung. Der Bahnhof Herbolzheim Breisgau ist in ca. 5 km erreichbar und bietet eine gute Anbindung in der Region. Mit dem Auto ist die Autobahn A5 über die Anschlussstelle Herbolzheim schnell erreichbar. Für Flugreisen bieten sich mehrere Flughäfen in der weiteren Umgebung an, darunter der EuroAirport Basel Mulhouse Freiburg.
Kontaktanfrage senden
Über den Anbieter
FALC Immobilien GmbH & Co. KG
Humperdickstr. 3
53773 Hennef (Sieg)
Kontakt
| Telefon | +49 800 6460646 |
| Mobil | +49 1573 2128007 |
| Fax | +49 2242 9010319 |
| Website | www.falcimmo.de |
Ansprechpartner/in
Herr Armin Bleicher