Ein Haus, das mit Ihnen wächst * Raum für Familie, Arbeit & Zukunft*
749.000 €
Kaufpreis
235 m²
Wohnfläche
12
Zimmer
immobilien.de Nr.: 9442912
Objektnummer: 202177
Kaufpreis
| Kaufpreis | 749.000 € |
| Maklerprovision | 3,57 % (inkl. MwSt.) |
Wohnfläche, Grundstück & Bausubstanz
| Wohnfläche | 235 m² |
| Grundstücksfläche | 700 m² |
| Zimmer | 12 |
| Baujahr | 1977 |
| Verfügbar ab | nach Absprache |
| Zustand | Teil Vollrenovierungsbed |
Energie
| Energieausweistyp | Bedarfsausweis |
| Ausstellungsdatum | 25. 08. 2025 |
| Baujahr (laut Energieausweis) | 1977 |
| Energieeffizienzklasse | G |
| Endenergiebedarf | 214.5 |
| Heizungsart | Zentralheizung |
| Wesentlicher Energieträger | Öl |
| Energieträger/Befeuerung | Öl |
Beschreibung der Immobilie
Manche Häuser fühlen sich vom ersten Moment richtig an. Dieses hier ist eines davon.
In ruhiger und begehrter Lage von Herzogenaurach erwartet Sie ein gepflegtes Zweifamilienhaus, das weit mehr bietet als nur Wohnraum: Es bietet Freiheit, Flexibilität und zahlreiche Lebensmodelle unter einem Dach. Ob großzügiges Familienleben, Mehrgenerationenwohnen oder die Verbindung von Wohnen und Arbeiten - dieses Haus passt sich Ihren Plänen an.
Erd- und Obergeschoss sind bereits als zwei separate Wohneinheiten ausgeführt und ermöglichen dadurch eine flexible Nutzung. Ob Eigennutzung mit zusätzlicher Vermietung, Wohnen für mehrere Generationen oder eine klare Trennung von Privatem und Beruflichem - hier sind viele Konzepte problemlos realisierbar.
Ein besonderes Plus bietet das Untergeschoss: Mit separatem Eingang, mehreren ausgebauten Räumen und einem eigenen Bad eröffnet sich zusätzlicher Raum für individuelle Nutzungsideen - ideal als Homeoffice, Praxis, Atelier, Gäste- oder Jugendbereich.
Große Fensterflächen sorgen in allen Ebenen für helle, freundliche Räume. Die klassische und zugleich durchdachte Grundrissgestaltung lässt viel Spielraum für moderne Wohnkonzepte und persönliche Akzente. Auch im Außenbereich setzt sich dieses Gefühl fort: Garten, Süd-Terrasse, Balkon sowie ein überdachter Freisitz schaffen Platz für Erholung, Familienleben und gesellige Stunden im Freien.
Das Haus befindet sich in einem gepflegten Zustand und bietet gleichzeitig ideale Voraussetzungen, um moderne Wohnideen umzusetzen und das Zuhause ganz nach den eigenen Vorstellungen zu gestalten. Technisch wurde bereits an die Zukunft gedacht: Solarthermie und Photovoltaikanlagen sind vorhanden und unterstreichen den nachhaltigen Charakter der Immobilie. Eine Doppelgarage rundet dieses attraktive Gesamtangebot ab.
Ein Zuhause mit Substanz, Charakter und Perspektive - für Menschen, die mehr suchen als nur vier Wände.
Weitere Angebote unter www.GARANT-IMMO.de
In ruhiger und begehrter Lage von Herzogenaurach erwartet Sie ein gepflegtes Zweifamilienhaus, das weit mehr bietet als nur Wohnraum: Es bietet Freiheit, Flexibilität und zahlreiche Lebensmodelle unter einem Dach. Ob großzügiges Familienleben, Mehrgenerationenwohnen oder die Verbindung von Wohnen und Arbeiten - dieses Haus passt sich Ihren Plänen an.
Erd- und Obergeschoss sind bereits als zwei separate Wohneinheiten ausgeführt und ermöglichen dadurch eine flexible Nutzung. Ob Eigennutzung mit zusätzlicher Vermietung, Wohnen für mehrere Generationen oder eine klare Trennung von Privatem und Beruflichem - hier sind viele Konzepte problemlos realisierbar.
Ein besonderes Plus bietet das Untergeschoss: Mit separatem Eingang, mehreren ausgebauten Räumen und einem eigenen Bad eröffnet sich zusätzlicher Raum für individuelle Nutzungsideen - ideal als Homeoffice, Praxis, Atelier, Gäste- oder Jugendbereich.
Große Fensterflächen sorgen in allen Ebenen für helle, freundliche Räume. Die klassische und zugleich durchdachte Grundrissgestaltung lässt viel Spielraum für moderne Wohnkonzepte und persönliche Akzente. Auch im Außenbereich setzt sich dieses Gefühl fort: Garten, Süd-Terrasse, Balkon sowie ein überdachter Freisitz schaffen Platz für Erholung, Familienleben und gesellige Stunden im Freien.
Das Haus befindet sich in einem gepflegten Zustand und bietet gleichzeitig ideale Voraussetzungen, um moderne Wohnideen umzusetzen und das Zuhause ganz nach den eigenen Vorstellungen zu gestalten. Technisch wurde bereits an die Zukunft gedacht: Solarthermie und Photovoltaikanlagen sind vorhanden und unterstreichen den nachhaltigen Charakter der Immobilie. Eine Doppelgarage rundet dieses attraktive Gesamtangebot ab.
Ein Zuhause mit Substanz, Charakter und Perspektive - für Menschen, die mehr suchen als nur vier Wände.
Weitere Angebote unter www.GARANT-IMMO.de
Ausstattungsmerkmale
| Anzahl der Etagen im Haus | 3 |
| Küche | Einbauküche |
| Bad | 3 |
| Boden | Fliesen, Teppich, Parkett, Laminat, Marmor |
| Balkone | 1 |
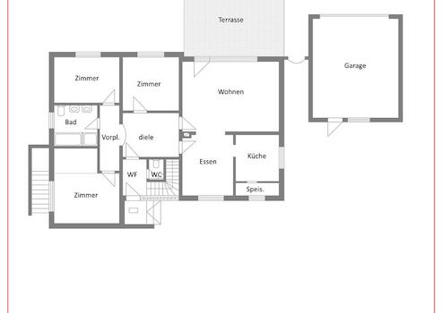
Erdgeschoss: Diele, Gäste-WC, Bad, Küche, Wohn-/Esszimmer mit Zugang zur Süd-Terrasse, drei Schlafzimmer
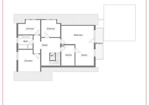
Dachgeschoss: Diele, Gäste-WC, Bad, offener Koch-/Wohn- und Essbereich mit Zugang zum West-Balkon, drei Schlafzimmer
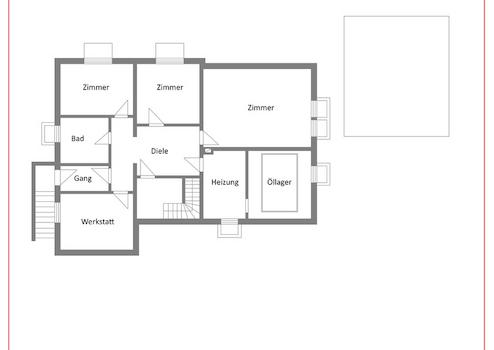
Untergeschoss: Diele, ein großer Raum, drei Räume, Bad, Heizung, Tankraum
Spitzboden: Stauraum (isoliert)
* zwei Einbauküchen im Kaufpreis enthalten
* Einbauschrank
* Holzdecken
* Fliesen-, Parkett-, Teppich-, Linoleum- und Marmorböden
* drei Tageslichtbäder
* Untergeschoss als Einliegerwohnung nutzbar
* Solarthermie mit Pufferspeicher
* zwei Photovoltaikanlagen
* West-Balkon
* Süd-Terrasse mit Granitbelag
* Markise
* überdachter Freisitz
* Garten
* Doppelgarage mit elektrischen Toren
Dachgeschoss: Diele, Gäste-WC, Bad, offener Koch-/Wohn- und Essbereich mit Zugang zum West-Balkon, drei Schlafzimmer
Untergeschoss: Diele, ein großer Raum, drei Räume, Bad, Heizung, Tankraum
Spitzboden: Stauraum (isoliert)
* zwei Einbauküchen im Kaufpreis enthalten
* Einbauschrank
* Holzdecken
* Fliesen-, Parkett-, Teppich-, Linoleum- und Marmorböden
* drei Tageslichtbäder
* Untergeschoss als Einliegerwohnung nutzbar
* Solarthermie mit Pufferspeicher
* zwei Photovoltaikanlagen
* West-Balkon
* Süd-Terrasse mit Granitbelag
* Markise
* überdachter Freisitz
* Garten
* Doppelgarage mit elektrischen Toren
Sonstige Informationen
Auf einen Blick
* Zweifamilienhaus mit flexibler Nutzung
* Erd- und Obergeschoss bereits getrennte Wohneinheiten
* Separates Untergeschoss mit eigenem Eingang & Bad
* Viel Platz für Familie, Arbeiten oder Vermietung
* Garten, Süd-Terrasse, Balkon & überdachter Freisitz
* Doppelgarage
* Solarthermie & Photovoltaik
* Gepflegter Zustand mit Gestaltungsspielraum
Aufteilung der Wohnflächen:
* Erdgeschoss ca. 125 qm Wohnfläche
* Obergeschoss ca. 110 qm Wohnfläche
* Untergeschoss ca. 90 qm zu Wohnzwecken
* ausgebaute Nutzfläche
* Zweifamilienhaus mit flexibler Nutzung
* Erd- und Obergeschoss bereits getrennte Wohneinheiten
* Separates Untergeschoss mit eigenem Eingang & Bad
* Viel Platz für Familie, Arbeiten oder Vermietung
* Garten, Süd-Terrasse, Balkon & überdachter Freisitz
* Doppelgarage
* Solarthermie & Photovoltaik
* Gepflegter Zustand mit Gestaltungsspielraum
Aufteilung der Wohnflächen:
* Erdgeschoss ca. 125 qm Wohnfläche
* Obergeschoss ca. 110 qm Wohnfläche
* Untergeschoss ca. 90 qm zu Wohnzwecken
* ausgebaute Nutzfläche
Karte wird geladen...
Objektstandort
91074 Herzogenaurach
Lage & Infrastruktur
Objektstandort
91074 Herzogenaurach
Das ansprechende Anwesen befindet sich in Niederndorf, einem der gefragten Ortsteile der Stadt Herzogenaurach. Die Lage zeichnet sich durch eine gelungene Kombination aus naturnahem Wohnen, ruhiger Umgebung und gleichzeitig guter Anbindung an das städtische Leben aus.
Trotz der ruhigen Lage ist die Infrastruktur hervorragend. Supermärkte, Bäcker, Ärzte, Apotheken und Banken sind in wenigen Fahrminuten erreichbar sowohl im Ortskern von Niederndorf als auch im nahegelegenen Zentrum von Herzogenaurach. Kindergärten und Grundschule befinden sich direkt im Ortsteil bzw. angrenzend. Weiterführende Schulen sind in Herzogenaurach ansässig und mit dem Bus oder dem Fahrrad gut erreichbar. Ein mannigfaltiges Angebot an kulturellen und kulinarischen Einrichtungen ist gewährleistet. Die umliegenden Wiesen und Felder laden zu Spaziergängen, Fahrradtouren und Joggingrunden ein perfekt für Naturliebhaber und Familien mit Kindern.
Die Verkehrsanbindungen sind optimal. Die Fahrzeit mit dem PKW nach Herzogenaurach bzw. zum Gewerbepark mit Unternehmen wie Adidas, Puma und Schaeffler beträgt nur wenige Minuten. Die Autobahn A3 liegt nur ca. 10 -15 Fahrminuten entfernt und verbindet Sie zügig mit den Städten Nürnberg, Fürth, Erlangen sowie dem Flughafen Nürnberg. Öffentliche Verkehrsmittel sind fußläufig erreichbar. Busverbindungen bringen Sie zuverlässig ins Zentrum von Herzogenaurach sowie nach Erlangen.
Trotz der ruhigen Lage ist die Infrastruktur hervorragend. Supermärkte, Bäcker, Ärzte, Apotheken und Banken sind in wenigen Fahrminuten erreichbar sowohl im Ortskern von Niederndorf als auch im nahegelegenen Zentrum von Herzogenaurach. Kindergärten und Grundschule befinden sich direkt im Ortsteil bzw. angrenzend. Weiterführende Schulen sind in Herzogenaurach ansässig und mit dem Bus oder dem Fahrrad gut erreichbar. Ein mannigfaltiges Angebot an kulturellen und kulinarischen Einrichtungen ist gewährleistet. Die umliegenden Wiesen und Felder laden zu Spaziergängen, Fahrradtouren und Joggingrunden ein perfekt für Naturliebhaber und Familien mit Kindern.
Die Verkehrsanbindungen sind optimal. Die Fahrzeit mit dem PKW nach Herzogenaurach bzw. zum Gewerbepark mit Unternehmen wie Adidas, Puma und Schaeffler beträgt nur wenige Minuten. Die Autobahn A3 liegt nur ca. 10 -15 Fahrminuten entfernt und verbindet Sie zügig mit den Städten Nürnberg, Fürth, Erlangen sowie dem Flughafen Nürnberg. Öffentliche Verkehrsmittel sind fußläufig erreichbar. Busverbindungen bringen Sie zuverlässig ins Zentrum von Herzogenaurach sowie nach Erlangen.
Kontaktanfrage senden
Über den Anbieter
Garant Immobilien AG
Wilhelmstr.5
70182 Stuttgart
Kontakt
| Telefon | 0911/99 90 480 |
| Website | www.garant-immo.de |
Ansprechpartner/in
Büro Nürnberg