1A-Lage Niederstraße: Wohnhaus mit 5 Wohnungen und Ladenlokal im Herzen von Uerdingen
450.000 €
Kaufpreis
233,12 m²
Wohnfläche
immobilien.de Nr.: 9430910
Objektnummer: FALC-VD-75182
Kaufpreis
| Kaufpreis | 450.000 € |
| Kaufpreis pro m² | 1643,66 € |
Wohnfläche, Grundstück & Bausubstanz
| Wohnfläche | 233,12 m² |
| Gesamtfläche | 273,78 m² |
| Grundstücksfläche | 291 m² |
| Baujahr | 1904 |
| Verfügbar ab | keine Angabe |
Energie
| Energieausweistyp | Bedarfsausweis |
| Ausstellungsdatum | 16. 01. 2026 |
| Gültig bis | 15.01.2036 |
| Energieeffizienzklasse | G |
| Endenergiebedarf | 216.46 |
| Wesentlicher Energieträger | Gas |
| Energieträger/Befeuerung | Gas |
Beschreibung der Immobilie
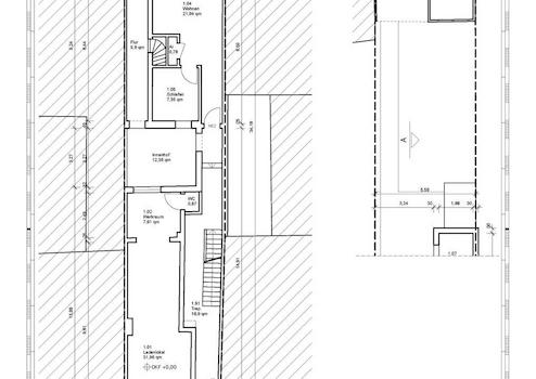
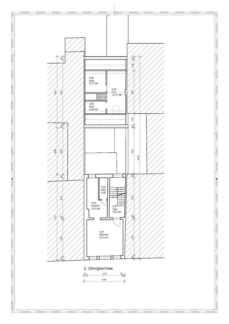
Bei der angebotenen Immobilie handelt es sich um ein Wohn- und Geschäftshaus mit insgesamt fünf Wohneinheiten sowie einem Ladenlokal. Das Objekt besteht aus einem Vorderhaus sowie einem rückwärtigen Anbau, die über ein gemeinsames Treppenhaus miteinander verbunden sind. Das Ursprungsgebäude wurde im Jahr 1904 errichtet und im rückwärtigen Innenhofbereich durch einen weiteren Anbau im Jahr 2008 ergänzt. Die Liegenschaft wurde zwischen 2007 und 2010 umfassend modernisiert, wobei insbesondere die technische Gebäudeausstattung nachhaltig erneuert wurde.
Im Zuge der Modernisierungsmaßnahmen wurden die elektrischen Haupt- und Unterverteilungen vollständig erneuert. Die beiden Wohneinheiten im Hinterhaus verfügen jeweils über eigene, erneuerte Gaskombithermen, über die sowohl die Beheizung als auch die Warmwasserversorgung erfolgt. Das Vorderhaus wird über eine moderne Gaszentralheizungsanlage mit Warmwasserspeicher versorgt, die im Jahr 2023 vollständig erneuert wurde und damit den aktuellen technischen Anforderungen entspricht.
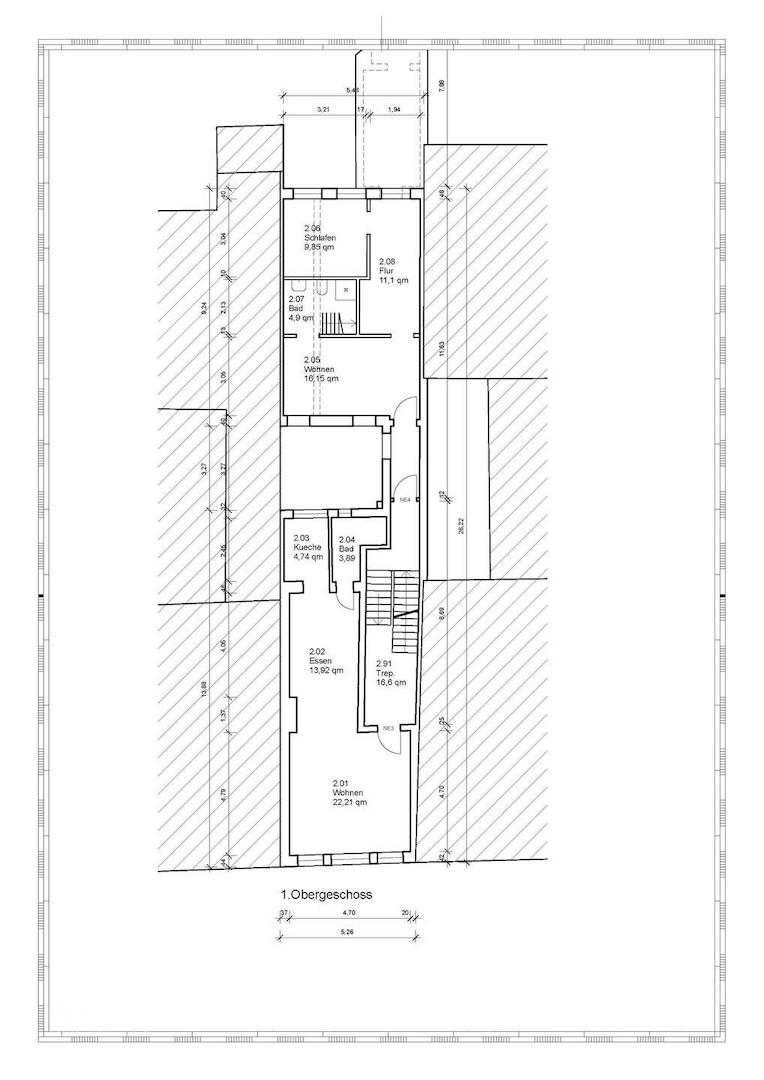
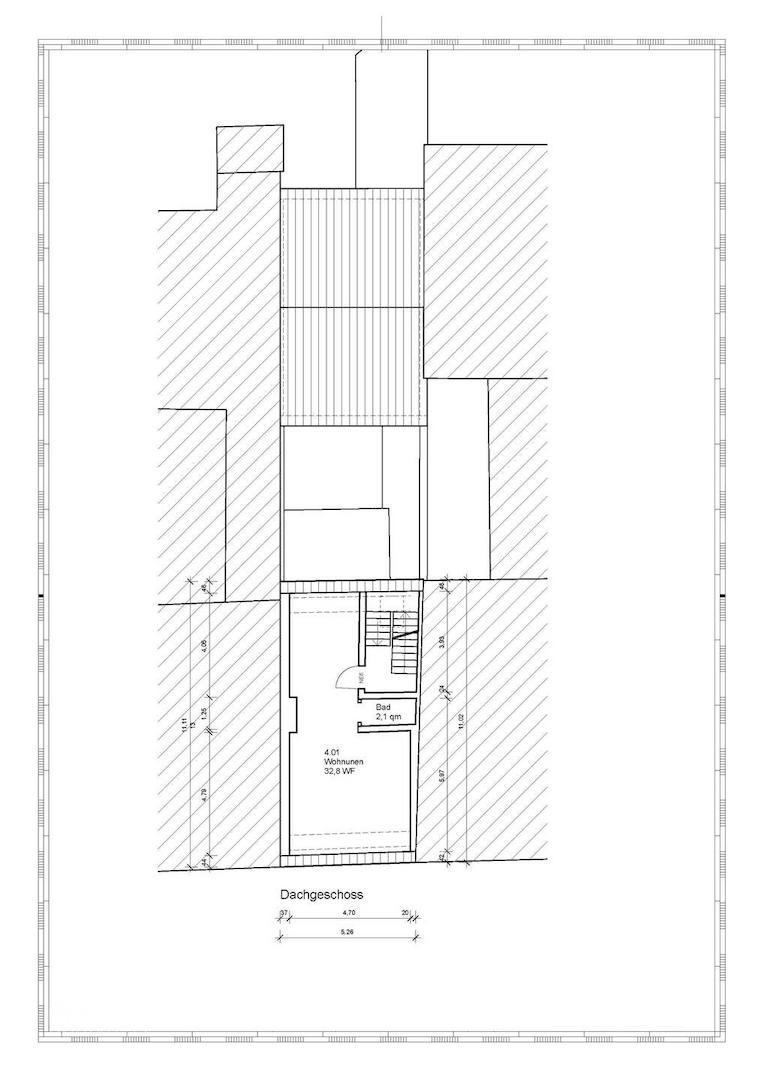
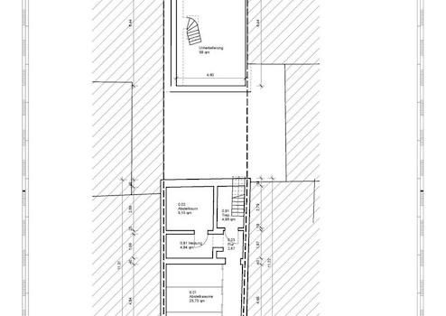
Die Immobilie gliedert sich in ein Vorderhaus mit dem Ladenlokal im Erdgeschoss sowie drei Wohnungen in den Obergeschossen und einen rückwärtigen Anbau mit zwei weiteren Wohnungen. Die Erdgeschosswohnung im Hinterhaus bietet einen direkten Zugang zum Garten sowie zur Terrasse und zu den Garagen, die im Jahr 2013 errichtet wurden, von denen eine zur Hofseite offen ausgeführt ist.
Insgesamt stellt die Immobilie eine nachhaltige und werthaltige Kapitalanlage dar, die sich durch ihre zentrale Lage, die klare Trennung von Wohn- und Gewerbenutzung, die vorhandenen Außenflächen sowie durch die modernisierte Heiztechnik im Vorderhaus auszeichnet. Sie bietet sowohl für langfristige Bestandshalter als auch für Investoren mit Fokus auf innerstädtische Wohn- und Geschäftshäuser attraktive Voraussetzungen.
Haben wir Ihr Interesse geweckt? Gerne stellen wir Ihnen diese attraktive Immobilie im Rahmen eines persönlichen Besichtigungstermins vor. Nutzen Sie vorab den 360°-Rundgang, um sich einen ersten Eindruck von Objekt und Aufteilung zu verschaffen.
Im Zuge der Modernisierungsmaßnahmen wurden die elektrischen Haupt- und Unterverteilungen vollständig erneuert. Die beiden Wohneinheiten im Hinterhaus verfügen jeweils über eigene, erneuerte Gaskombithermen, über die sowohl die Beheizung als auch die Warmwasserversorgung erfolgt. Das Vorderhaus wird über eine moderne Gaszentralheizungsanlage mit Warmwasserspeicher versorgt, die im Jahr 2023 vollständig erneuert wurde und damit den aktuellen technischen Anforderungen entspricht.
Die Immobilie gliedert sich in ein Vorderhaus mit dem Ladenlokal im Erdgeschoss sowie drei Wohnungen in den Obergeschossen und einen rückwärtigen Anbau mit zwei weiteren Wohnungen. Die Erdgeschosswohnung im Hinterhaus bietet einen direkten Zugang zum Garten sowie zur Terrasse und zu den Garagen, die im Jahr 2013 errichtet wurden, von denen eine zur Hofseite offen ausgeführt ist.
Insgesamt stellt die Immobilie eine nachhaltige und werthaltige Kapitalanlage dar, die sich durch ihre zentrale Lage, die klare Trennung von Wohn- und Gewerbenutzung, die vorhandenen Außenflächen sowie durch die modernisierte Heiztechnik im Vorderhaus auszeichnet. Sie bietet sowohl für langfristige Bestandshalter als auch für Investoren mit Fokus auf innerstädtische Wohn- und Geschäftshäuser attraktive Voraussetzungen.
Haben wir Ihr Interesse geweckt? Gerne stellen wir Ihnen diese attraktive Immobilie im Rahmen eines persönlichen Besichtigungstermins vor. Nutzen Sie vorab den 360°-Rundgang, um sich einen ersten Eindruck von Objekt und Aufteilung zu verschaffen.
Ausstattungsmerkmale
| Anzahl der Etagen im Haus | 3 |
| Garten | |
| Garage/Stellplätze | 2 |
| Keller |
-Wohn- und Geschäftshaus (Ladenlokal und 5 Wohnungen) / Baujahr 1904
-Vermietbare Fläche 273,78m²
-Wohnfläche 233,12m² + Gewerbefläche 40,64m²
-Anbau im Innenhofbereich von 2008
-Von 2007 bis 2010 wurden umfangrieche Modernisierungen vorgenommen
-Elektrische Haupt und Unterverteilungen erneuert
-Gaskombithermen im Hinterhaus erneuert
-Zentralheizung mit Warmwasserspeicher im Vorderhaus im Jahr 2023 erneuert
-Garagen wurden in 2013 errichtet, eine ist zur Hofseite offen
-Kunstoffenster mit Isolierverglasung
-Rollläden teilweise vorhanden
-Aktuelle Kaltmiete pro Jahr: 31.140€
-Rendite: 6,92%
-Vermietbare Fläche 273,78m²
-Wohnfläche 233,12m² + Gewerbefläche 40,64m²
-Anbau im Innenhofbereich von 2008
-Von 2007 bis 2010 wurden umfangrieche Modernisierungen vorgenommen
-Elektrische Haupt und Unterverteilungen erneuert
-Gaskombithermen im Hinterhaus erneuert
-Zentralheizung mit Warmwasserspeicher im Vorderhaus im Jahr 2023 erneuert
-Garagen wurden in 2013 errichtet, eine ist zur Hofseite offen
-Kunstoffenster mit Isolierverglasung
-Rollläden teilweise vorhanden
-Aktuelle Kaltmiete pro Jahr: 31.140€
-Rendite: 6,92%
Sonstige Informationen
Alle Angaben sind ohne Gewähr und basieren ausschließlich auf Informationen unserer Auftraggeber. Wir übernehmen keine Gewähr für die Vollständigkeit, Richtigkeit und Aktualität dieser Angaben.
Weitere interessante Immobilienangebote: www.falcimmo.de
Sie möchten Ihre Immobilie verkaufen oder vermieten? Dann nutzen Sie unser bundesweites Netz von Immobilienprofis, unsere lokale Fachkompetenz und unsere innovativen Vertriebs-Ideen. Gerne erstellen wir Ihnen kostenfrei und unverbindlich ein Verkaufswertgutachten sowie ein individuelles Marketing- und Vertriebskonzept für Ihre Immobilie. Wir freuen uns auf Ihren Anruf!
Mobil: 0176-811 39 307
Büro: 02151-412 7 217
Energieausweis:
-Energieausweistyp: Bedarfssausweis
-Endenergiebedarf: 216,46 kWh/m²*a
-Hauptenergieträger: Gas
-Baujahr des Gebäudes: 1904
-Baujahr der Heizung: 2023
-Gültigkeit des Energieausweises: 15.01.2036
Weitere interessante Immobilienangebote: www.falcimmo.de
Sie möchten Ihre Immobilie verkaufen oder vermieten? Dann nutzen Sie unser bundesweites Netz von Immobilienprofis, unsere lokale Fachkompetenz und unsere innovativen Vertriebs-Ideen. Gerne erstellen wir Ihnen kostenfrei und unverbindlich ein Verkaufswertgutachten sowie ein individuelles Marketing- und Vertriebskonzept für Ihre Immobilie. Wir freuen uns auf Ihren Anruf!
Mobil: 0176-811 39 307
Büro: 02151-412 7 217
Energieausweis:
-Energieausweistyp: Bedarfssausweis
-Endenergiebedarf: 216,46 kWh/m²*a
-Hauptenergieträger: Gas
-Baujahr des Gebäudes: 1904
-Baujahr der Heizung: 2023
-Gültigkeit des Energieausweises: 15.01.2036
Karte wird geladen...
Objektstandort
47829 Krefeld
- Nordrhein-Westfalen
Lage & Infrastruktur
Objektstandort
47829 Krefeld
- Nordrhein-Westfalen
Das Wohn- und Geschäftshaus befindet sich in zentraler Lage des Krefelder Stadtteils Uerdingen, direkt auf der Niederstraße, einer der wichtigsten Einkaufs- und Geschäftsstraßen des Stadtteils. Die Umgebung ist geprägt von einer lebendigen Mischung aus Einzelhandel, Dienstleistungsbetrieben, Gastronomie sowie Wohnnutzungen in den Obergeschossen. Durch diese gewachsene Nutzungsstruktur weist die Lage eine kontinuierliche Kunden- und Passantenfrequenz auf und bietet zugleich eine gute Wohnqualität.
Die Niederstraße bildet das Rückgrat des innerstädtischen Versorgungsbereichs von Uerdingen und verfügt über eine gute Sichtbarkeit sowie eine hohe Aufenthaltsqualität. Zahlreiche Geschäfte des täglichen Bedarfs, Fachgeschäfte, Banken, Ärzte und gastronomische Angebote befinden sich in unmittelbarer Nähe. Öffentliche Einrichtungen sowie der historische Ortskern sind fußläufig erreichbar und unterstreichen die zentrale Bedeutung der Lage innerhalb des Stadtteils.
Die Anbindung an den öffentlichen Personennahverkehr ist hervorragend ausgeprägt. Bushaltestellen sowie der Bahnhof Krefeld-Uerdingen sind in kurzer Entfernung erreichbar und ermöglichen eine schnelle Verbindung in die Krefelder Innenstadt sowie in die umliegenden Städte der Rhein-Ruhr-Region. Auch die überregionalen Verkehrsachsen sind mit dem Pkw gut erreichbar.
Insgesamt zeichnet sich die Lage durch ihre Kombination aus urbaner Infrastruktur, guter Erreichbarkeit und einer etablierten Einzelhandels- und Dienstleistungsstruktur aus. Sie bietet damit sowohl für gewerbliche Nutzungen als auch für Wohnzwecke attraktive Voraussetzungen und stellt einen gefragten Standort im Stadtteil Uerdingen dar.
Die Niederstraße bildet das Rückgrat des innerstädtischen Versorgungsbereichs von Uerdingen und verfügt über eine gute Sichtbarkeit sowie eine hohe Aufenthaltsqualität. Zahlreiche Geschäfte des täglichen Bedarfs, Fachgeschäfte, Banken, Ärzte und gastronomische Angebote befinden sich in unmittelbarer Nähe. Öffentliche Einrichtungen sowie der historische Ortskern sind fußläufig erreichbar und unterstreichen die zentrale Bedeutung der Lage innerhalb des Stadtteils.
Die Anbindung an den öffentlichen Personennahverkehr ist hervorragend ausgeprägt. Bushaltestellen sowie der Bahnhof Krefeld-Uerdingen sind in kurzer Entfernung erreichbar und ermöglichen eine schnelle Verbindung in die Krefelder Innenstadt sowie in die umliegenden Städte der Rhein-Ruhr-Region. Auch die überregionalen Verkehrsachsen sind mit dem Pkw gut erreichbar.
Insgesamt zeichnet sich die Lage durch ihre Kombination aus urbaner Infrastruktur, guter Erreichbarkeit und einer etablierten Einzelhandels- und Dienstleistungsstruktur aus. Sie bietet damit sowohl für gewerbliche Nutzungen als auch für Wohnzwecke attraktive Voraussetzungen und stellt einen gefragten Standort im Stadtteil Uerdingen dar.
Kontaktanfrage senden
Über den Anbieter
FALC Immobilien GmbH & Co. KG
Humperdickstr. 3
53773 Hennef (Sieg)
Kontakt
| Telefon | +49 2151 4127217 |
| Mobil | +49 176 81139307 |
| Fax | +49 2242 9010319 |
| Website | www.falcimmo.de |
Ansprechpartner/in
Herr Viktor Degenau