Synagoge mit Wohnhäuser - Denkmalgeschützt
350.000 €
Kaufpreis
372 m²
Wohnfläche
5
Zimmer
immobilien.de Nr.: 9429990
Objektnummer: FALC-DH-68849
Kaufpreis
| Kaufpreis | 350.000 € |
| Maklerprovision | 3,57% inkl. MwSt vom not. Kaufpreis |
Wohnfläche, Grundstück & Bausubstanz
| Wohnfläche | 372 m² |
| Grundstücksfläche | 477 m² |
| Zimmer | 5 |
| Baujahr | 1790 |
| Letzte Modernisierung | 2002 |
| Verfügbar ab | nach Absprache |
| Zustand | Sanierungsbeduerftig |
Energie
| Heizungsart | Zentralheizung |
| Wesentlicher Energieträger | Öl |
| Energieträger/Befeuerung | Öl |
Beschreibung der Immobilie
Diese besondere Immobilie ist kein Objekt von der Stange, sondern ein gewachsenes Ensemble mit Geschichte, Charakter und Seele. Sie vereint eine denkmalgeschützte Synagoge aus dem Jahr 1790, ein Mehrfamilienhaus sowie ein individuelles Einfamilienhaus – jedes Gebäude mit eigener Identität und eigenem Charme.
Denkmalgeschützte Synagoge – Raum mit Geschichte
Das Herzstück des Anwesens bildet die denkmalgeschützte Synagoge. Der Baukörper aus regionalem Sandstein entspricht der traditionellen Bauweise Baden-Württembergs und verleiht dem Gebäude eine dauerhafte, ruhige Ausstrahlung. Der Stein steht für handwerkliche Qualität, Beständigkeit und eine tiefe Verwurzelung in der regionalen Baukultur.
Der ehemalige Gebetsraum beeindruckt durch seine klare, ruhige Raumwirkung und eignet sich hervorragend als außergewöhnlicher und atmosphärischer Wohnraum. Aber auch als Atelier, Arbeits- oder Projektraum oder für Kleingruppenarbeit im Rahmen von Yoga oder Qigong, also etwa für künstlerische, kulturelle oder gesundheitsbezogene Nutzungen.
Über eine Holztreppe gelangt man auf die Empore, von da aus weiter in das teilweise ausgebaute Dachgeschoss. Unter der Synagoge befinden sich eine Werkstatt, eine kleine Toilette sowie die Heizungsanlage. Überall ist der besondere Flair dieses Ambientes spürbar – ein Raum, der Inspiration und Konzentration gleichermaßen ermöglicht und in dem sich Geschichte und Moderne treffen können.
Einfamilienhaus – individuell, warm, handwerklich geprägt
Das Einfamilienhaus ist ein echtes Unikat. Es lebt von viel Holz, liebevollen handwerklichen Details und einer gewachsenen Struktur, die über einige Jahre hinweg mit Sorgfalt und Eigenleistung entstanden ist. Die individuell gegliederten, fein proportionierten Räume vermitteln eine warme, persönliche Wohnatmosphäre, die man so kaum noch findet.
Hier steht nicht Standard im Vordergrund, sondern Charakter: sichtbare Holzarbeiten, handgemachte Details und ein stimmiges Zusammenspiel von Räumen, das Geborgenheit und Eigenständigkeit ausstrahlt. Besonders hervorzuheben ist der Wintergarten, der als lichtdurchflutetes Bindeglied zwischen Innen und Außen ein besonderes Schmuckstück des Hauses darstellt.
Im Erdgeschoss befinden sich ein behagliches Wohnzimmer, eine separate Küche sowie weitere flexibel nutzbare Räume. Mehrere Bäder und Nebenräume ergänzen diese Ebene.
Im Obergeschoss stehen zusätzliche Schlaf- und Wohnbereiche zur Verfügung, darunter ein abgeschlossenes Schlafzimmer sowie offenere, vielseitig nutzbare Räume. Ergänzt wird das Haus durch einen Steinkeller sowie weitere Nutzflächen.
Mehrfamilienhaus – denkmalgeschützt & flexibel nutzbar
Angrenzend an die Synagoge befindet sich ein weiteres denkmalgeschütztes Mehrfamilienhaus. Die Raumstruktur bietet flexible Nutzungsmöglichkeiten, sowohl zur Eigennutzung als auch als Kapitalanlage. Die Wohneinheiten sind aktuell nicht vermietet und ermöglichen eine individuelle Neugestaltung.
Denkmalgeschützte Synagoge – Raum mit Geschichte
Das Herzstück des Anwesens bildet die denkmalgeschützte Synagoge. Der Baukörper aus regionalem Sandstein entspricht der traditionellen Bauweise Baden-Württembergs und verleiht dem Gebäude eine dauerhafte, ruhige Ausstrahlung. Der Stein steht für handwerkliche Qualität, Beständigkeit und eine tiefe Verwurzelung in der regionalen Baukultur.
Der ehemalige Gebetsraum beeindruckt durch seine klare, ruhige Raumwirkung und eignet sich hervorragend als außergewöhnlicher und atmosphärischer Wohnraum. Aber auch als Atelier, Arbeits- oder Projektraum oder für Kleingruppenarbeit im Rahmen von Yoga oder Qigong, also etwa für künstlerische, kulturelle oder gesundheitsbezogene Nutzungen.
Über eine Holztreppe gelangt man auf die Empore, von da aus weiter in das teilweise ausgebaute Dachgeschoss. Unter der Synagoge befinden sich eine Werkstatt, eine kleine Toilette sowie die Heizungsanlage. Überall ist der besondere Flair dieses Ambientes spürbar – ein Raum, der Inspiration und Konzentration gleichermaßen ermöglicht und in dem sich Geschichte und Moderne treffen können.
Einfamilienhaus – individuell, warm, handwerklich geprägt
Das Einfamilienhaus ist ein echtes Unikat. Es lebt von viel Holz, liebevollen handwerklichen Details und einer gewachsenen Struktur, die über einige Jahre hinweg mit Sorgfalt und Eigenleistung entstanden ist. Die individuell gegliederten, fein proportionierten Räume vermitteln eine warme, persönliche Wohnatmosphäre, die man so kaum noch findet.
Hier steht nicht Standard im Vordergrund, sondern Charakter: sichtbare Holzarbeiten, handgemachte Details und ein stimmiges Zusammenspiel von Räumen, das Geborgenheit und Eigenständigkeit ausstrahlt. Besonders hervorzuheben ist der Wintergarten, der als lichtdurchflutetes Bindeglied zwischen Innen und Außen ein besonderes Schmuckstück des Hauses darstellt.
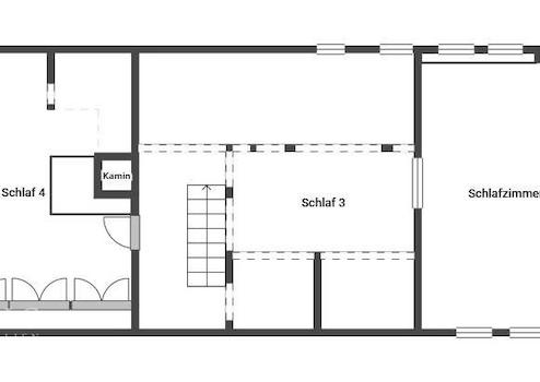
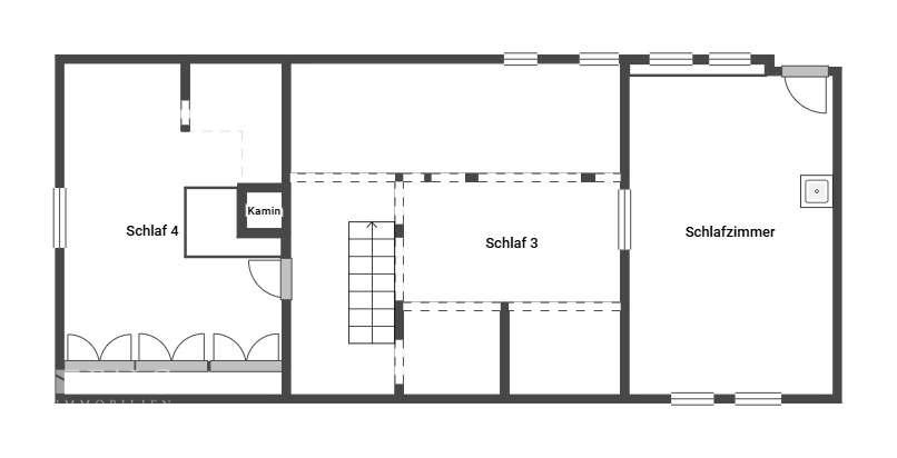
Im Erdgeschoss befinden sich ein behagliches Wohnzimmer, eine separate Küche sowie weitere flexibel nutzbare Räume. Mehrere Bäder und Nebenräume ergänzen diese Ebene.
Im Obergeschoss stehen zusätzliche Schlaf- und Wohnbereiche zur Verfügung, darunter ein abgeschlossenes Schlafzimmer sowie offenere, vielseitig nutzbare Räume. Ergänzt wird das Haus durch einen Steinkeller sowie weitere Nutzflächen.
Mehrfamilienhaus – denkmalgeschützt & flexibel nutzbar
Angrenzend an die Synagoge befindet sich ein weiteres denkmalgeschütztes Mehrfamilienhaus. Die Raumstruktur bietet flexible Nutzungsmöglichkeiten, sowohl zur Eigennutzung als auch als Kapitalanlage. Die Wohneinheiten sind aktuell nicht vermietet und ermöglichen eine individuelle Neugestaltung.
Ausstattungsmerkmale
| Anzahl der Etagen im Haus | 3 |
| Küche | Einbauküche |
| Bad | 4 |
| Bad | Dusche, Wanne, Fenster |
| Boden | Fliesen, Teppich, Parkett |
| Garten | |
| Terrassen | 1 |
| Carport | 1 |
| Keller |
- Massivbauweise
- Heizung mit Öl
- Laminat
- Fliesen
- Kellerraum
Einfamilenhaus:
- 5 Wohn- oder Schlafräume
- 2 Badezimmer
- 1 Gäste-WC
- 1 Küche
- 1 Wintergarten
- 1 Keller
ca. 130 qm Wohnfläche, ca. 54 qm Nutzfläche
Synagoge (Denkmalschutz):
- Raumhöhe 4,80 m
- Synagoge ca. 80 qm Nutzfläche mit Empore
Werkstatt:
ca. 45 qm Nutzfläche mit Toilette und Heizungsanlage
Mehrfamilienhaus (Denkmalschutz):
EG:
3 Zimmer, Küche, Bad ca. 65 qm
OG:
2 Zimmer, Küche, Bad, Abstellraum, ca. 46 qm
DG:
bis zu 5 Zimmer, ca. 130 qm Wohn- und Nutzfläche, nur teilausbau vorhanden
Der Energieausweis ist beantragt.
- Heizung mit Öl
- Laminat
- Fliesen
- Kellerraum
Einfamilenhaus:
- 5 Wohn- oder Schlafräume
- 2 Badezimmer
- 1 Gäste-WC
- 1 Küche
- 1 Wintergarten
- 1 Keller
ca. 130 qm Wohnfläche, ca. 54 qm Nutzfläche
Synagoge (Denkmalschutz):
- Raumhöhe 4,80 m
- Synagoge ca. 80 qm Nutzfläche mit Empore
Werkstatt:
ca. 45 qm Nutzfläche mit Toilette und Heizungsanlage
Mehrfamilienhaus (Denkmalschutz):
EG:
3 Zimmer, Küche, Bad ca. 65 qm
OG:
2 Zimmer, Küche, Bad, Abstellraum, ca. 46 qm
DG:
bis zu 5 Zimmer, ca. 130 qm Wohn- und Nutzfläche, nur teilausbau vorhanden
Der Energieausweis ist beantragt.
Sonstige Informationen
Wenn Sie Interesse an der Immobilie haben, fordern Sie gerne das ausführliche Exposé an, das Ihnen in der Regel kurzfristig und automatisch zugesandt wird. Sollten Sie eine Besichtigung wünschen, antworten Sie am besten direkt per E-Mail auf das Exposé. Wir setzen uns umgehend mit Ihnen in Verbindung und unterbreiten Ihnen passende Terminvorschläge. Bitte geben Sie dabei stets Ihre vollständigen Kontaktdaten an.
Die Objektbeschreibung basiert ganz oder teilweise auf den Angaben des Eigentümers. Für die Richtigkeit und Vollständigkeit dieser Informationen übernehmen wir keine Gewähr.
Möchten auch Sie Ihre Immobilie professionell vermarkten? Dann kontaktieren Sie uns gerne! Wir stehen Ihnen **täglich von Montag bis Sonntag zwischen 6:00 und 22:00 Uhr** persönlich zur Verfügung. Über **200.000 aktive Interessenten** warten bereits auf Ihr Angebot.
Bitte beachten Sie, dass das Exposé möglicherweise unter Zuhilfenahme von **Künstlicher Intelligenz (KI)** erstellt oder überarbeitet wurde. Dabei wurden jedoch keine wesentlichen Merkmale verändert.
Die Objektbeschreibung basiert ganz oder teilweise auf den Angaben des Eigentümers. Für die Richtigkeit und Vollständigkeit dieser Informationen übernehmen wir keine Gewähr.
Möchten auch Sie Ihre Immobilie professionell vermarkten? Dann kontaktieren Sie uns gerne! Wir stehen Ihnen **täglich von Montag bis Sonntag zwischen 6:00 und 22:00 Uhr** persönlich zur Verfügung. Über **200.000 aktive Interessenten** warten bereits auf Ihr Angebot.
Bitte beachten Sie, dass das Exposé möglicherweise unter Zuhilfenahme von **Künstlicher Intelligenz (KI)** erstellt oder überarbeitet wurde. Dabei wurden jedoch keine wesentlichen Merkmale verändert.
Karte wird geladen...
Objektstandort
74918 Angelbachtal
- Baden-Württemberg
Lage & Infrastruktur
Objektstandort
74918 Angelbachtal
- Baden-Württemberg
Die Immobilie liegt in einem lebendigen Umfeld mit sehr guter Infrastruktur: Aldi, Rewe, Rossmann sowie mehrere Kindergärten sind bequem fußläufig erreichbar.
Auch gastronomisch bietet die Umgebung Besonderes: Die Hackerstuben im Wasserschloss Eichtersheim stehen für gehobene Küche, das Era Café ist bekannt für selbstgemachtes Eis, und das Waghäusle am Waldrand gilt als beliebter Treffpunkt der Einheimischen, alles ebenfalls fußläufig erreichbar.
Ein besonderes Highlight ist der überregional bekannte Schlosspark Angelbachtal, der sich in etwa drei Minuten fußläufig am Ende der Straße befindet. Das jährliche Pfingstfest zieht regelmäßig rund 10.000 Besucher an und schafft mit seinen Lichterinstallationen aus etwa 40.000 Teelichtern eine besondere, stimmungsvolle Atmosphäre. Darüber hinaus finden im Schlosspark weitere kulturelle Veranstaltungen wie Ritterspiele und Themenfeste statt, die das Ortsleben bereichern.
Auch gastronomisch bietet die Umgebung Besonderes: Die Hackerstuben im Wasserschloss Eichtersheim stehen für gehobene Küche, das Era Café ist bekannt für selbstgemachtes Eis, und das Waghäusle am Waldrand gilt als beliebter Treffpunkt der Einheimischen, alles ebenfalls fußläufig erreichbar.
Ein besonderes Highlight ist der überregional bekannte Schlosspark Angelbachtal, der sich in etwa drei Minuten fußläufig am Ende der Straße befindet. Das jährliche Pfingstfest zieht regelmäßig rund 10.000 Besucher an und schafft mit seinen Lichterinstallationen aus etwa 40.000 Teelichtern eine besondere, stimmungsvolle Atmosphäre. Darüber hinaus finden im Schlosspark weitere kulturelle Veranstaltungen wie Ritterspiele und Themenfeste statt, die das Ortsleben bereichern.
Kontaktanfrage senden
Über den Anbieter
FALC Immobilien GmbH & Co. KG
Humperdickstr. 3
53773 Hennef (Sieg)
Kontakt
| Telefon | +49 7251 4413404 |
| Mobil | +49 172 4754042 |
| Fax | +49 2242 9010319 |
| Website | www.falcimmo.de |
Ansprechpartner/in
Frau Claudia Hambrecht