Remise mit Garten - Erstbezug - Neue moderne Remise
510.000 €
Kaufpreis
114,53 m²
Wohnfläche
3
Zimmer
immobilien.de Nr.: 9428293
Objektnummer: 422088
Dateien
Kaufpreis
| Kaufpreis | 510.000 € |
| Maklerprovision | keine Provision, courtagefrei |
| Stellplatz Freiplatz Kaufpreis | 7.000 € |
| Stellplatz Garage Kaufpreis | 7.000 € |
Wohnfläche, Grundstück & Bausubstanz
| Wohnfläche | 114,53 m² |
| Zimmer | 3 |
| Baujahr | 2024 |
| Verfügbar ab | sofort |
| Zustand | Teil Vollsaniert |
Energie
| Energieausweistyp | Bedarfsausweis |
| Energieeffizienzklasse | A+ |
| Endenergiebedarf | 27 |
| Energieträger/Befeuerung | Luft-Wärme-Pumpe |
Beschreibung der Immobilie
Die beiden Remisenhäuser liegen zentral im Hof. Sie wurden zwischen 2023 und 2025 durch Aufstockung der Bestandsremisen errichtet und warten mit einem modernen Design, hochwertigen Materialien sowie einer energieeffiziente Ausstattung mit Wärmepumpe und Wärmedämmung in Klinkeroptik (Energieausweis A+) auf.
Ein Stellplatz oder Garagenplatz kann direkt vor der Haustür optional erworben werden.
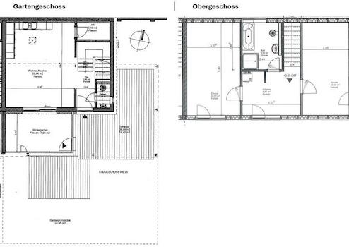
Das rechte Haus (WE 25) erstreckt sich über zwei Etagen: Im Gartengeschoss befindet sich der offene Wohn- und Essbereich mit vorinstallierten Küchenanschlüssen. Daran schließt sich der hochwertige Wintergarten an, ausgestattet mit Fußbodenheizung und allen Medienanschlüssen. Über den Wintergarten gelangt man über 2 Möglichkeiten zu Terrasse und Garten. Der Garten wird mit Rasen und Hecke bepflanzt. Ein Obstbaum und eine Magnolie stehen bereits.
Zur Herstellung der Privatsphäre sind im Erdgeschossbereich Textilscreens mit Sicht- und Sonnenschutzfunktion installiert. Die Screens können elektrisch über Fernbedienungen gesteuert werden. Sie sind so konzipiert, dass von innen nach außen die Durchsicht gewährleistet ist.
Eine Gäste-Toilette im Eingangsbereich ergänzt den Grundriss. Die großen bodentiefen Fenster sowie ein Dachfenster über der Küche sorgen für Tageslicht und Luftzirkulation.
Im Obergeschoss befinden sich die beiden Schlafzimmer, ein modernes Fensterbad mit Badewanne und Dusche, sowie ein Hauswirtschaftsraum mit Anschluss für Waschmaschine und Trockner und weiteren Verstauungsmöglichkeiten
Die Bäder verfügen über Fußbodenheizung, und die Böden sind mit hochwertigem Eichenparkett ausgestattet.
Objektzustand: Erstbezug nach Sanierung
Ein Stellplatz oder Garagenplatz kann direkt vor der Haustür optional erworben werden.
Das rechte Haus (WE 25) erstreckt sich über zwei Etagen: Im Gartengeschoss befindet sich der offene Wohn- und Essbereich mit vorinstallierten Küchenanschlüssen. Daran schließt sich der hochwertige Wintergarten an, ausgestattet mit Fußbodenheizung und allen Medienanschlüssen. Über den Wintergarten gelangt man über 2 Möglichkeiten zu Terrasse und Garten. Der Garten wird mit Rasen und Hecke bepflanzt. Ein Obstbaum und eine Magnolie stehen bereits.
Zur Herstellung der Privatsphäre sind im Erdgeschossbereich Textilscreens mit Sicht- und Sonnenschutzfunktion installiert. Die Screens können elektrisch über Fernbedienungen gesteuert werden. Sie sind so konzipiert, dass von innen nach außen die Durchsicht gewährleistet ist.
Eine Gäste-Toilette im Eingangsbereich ergänzt den Grundriss. Die großen bodentiefen Fenster sowie ein Dachfenster über der Küche sorgen für Tageslicht und Luftzirkulation.
Im Obergeschoss befinden sich die beiden Schlafzimmer, ein modernes Fensterbad mit Badewanne und Dusche, sowie ein Hauswirtschaftsraum mit Anschluss für Waschmaschine und Trockner und weiteren Verstauungsmöglichkeiten
Die Bäder verfügen über Fußbodenheizung, und die Böden sind mit hochwertigem Eichenparkett ausgestattet.
Objektzustand: Erstbezug nach Sanierung
Ausstattungsmerkmale
| Anzahl der Etagen im Haus | 2 |
| Inserat befindet sich im Stockwerk | 0 |
| Bad | 2 |
| Bad | Wanne |
| Boden | Fliesen, Parkett |
| Balkone | 0 |
| Garten | |
| Terrassen | 1 |
| Garage/Stellplätze | 1 |
| Keller |
Terrasse, Garten, Keller, Vollbad, Gäste-WC, Parkett, Fliesen
Bemerkungen:
Die Häuser Mozartstraße 16, 17 und 18 wurden in den 1930ern in einheitlicher Bauweise errichtet und bilden heute eine aufgewertete denkmalgeschützte Wohnanlage. Die drei Vorderhäuser wurden ohne Seitenflügel oder Quergebäude gebaut, sodass sich hinter den Häusern eine großzügige Hoflandschaft gebildet hat. Die hier angebotenen Remisen gehören zur Hausnummer 18.
Die Remisen wurden zu einem modernen Doppelhaus umgestaltet. Der Hof selbst ist großzügig und grün gehalten. In weiteren Remisen befinden sich die Fahrradstellplätze, Haustechnik und eine Garage. Erreichbar sind die Remisen über die Tordurchfahrt der Hausnummer 18.
Im Zuge der Dachaufstockung der 3 Vorderhäuser wurden neben der Neueindeckung der Dächer auch die Fassaden, Eingangsbereiche, Treppenhäuser, Gemeinschaftselektrik, Tordurchfahrt und Weiteres überarbeitet.
Bemerkungen:
Die Häuser Mozartstraße 16, 17 und 18 wurden in den 1930ern in einheitlicher Bauweise errichtet und bilden heute eine aufgewertete denkmalgeschützte Wohnanlage. Die drei Vorderhäuser wurden ohne Seitenflügel oder Quergebäude gebaut, sodass sich hinter den Häusern eine großzügige Hoflandschaft gebildet hat. Die hier angebotenen Remisen gehören zur Hausnummer 18.
Die Remisen wurden zu einem modernen Doppelhaus umgestaltet. Der Hof selbst ist großzügig und grün gehalten. In weiteren Remisen befinden sich die Fahrradstellplätze, Haustechnik und eine Garage. Erreichbar sind die Remisen über die Tordurchfahrt der Hausnummer 18.
Im Zuge der Dachaufstockung der 3 Vorderhäuser wurden neben der Neueindeckung der Dächer auch die Fassaden, Eingangsbereiche, Treppenhäuser, Gemeinschaftselektrik, Tordurchfahrt und Weiteres überarbeitet.
Sonstige Informationen
Heizungsart: Sonstiges (s. Text)
Energieträger: Luft-/Wasserwärme
Garage oder/und Stellplatz im Hof möglich (siehe Exposé)
Makleranfragen nicht erwünscht. Nach § 7 UWG sind unaufgeforderte Kontaktaufnahmen durch Makler ohne ausdrückliche Einwilligung des Empfängers verboten!
ohne-makler (OM) ist weder Anbieter noch Vermittler der Immobilie. OM betreibt eine Plattform für Immobilieneigentümer, die unter anderem die gleichzeitige Veröffentlichung einzelner Inserate auf mehreren Immobilienportalen ermöglicht. Die Inhalte dieser Inserate werden ausschließlich von Dritten verantwortet. Für die Richtigkeit, Vollständigkeit oder Rechtmäßigkeit der Angaben übernimmt OM keine Haftung. Hinweise auf mögliche Rechtsverstöße können jederzeit gemeldet werden und werden nach Prüfung umgehend bearbeitet.
Energieträger: Luft-/Wasserwärme
Garage oder/und Stellplatz im Hof möglich (siehe Exposé)
Makleranfragen nicht erwünscht. Nach § 7 UWG sind unaufgeforderte Kontaktaufnahmen durch Makler ohne ausdrückliche Einwilligung des Empfängers verboten!
ohne-makler (OM) ist weder Anbieter noch Vermittler der Immobilie. OM betreibt eine Plattform für Immobilieneigentümer, die unter anderem die gleichzeitige Veröffentlichung einzelner Inserate auf mehreren Immobilienportalen ermöglicht. Die Inhalte dieser Inserate werden ausschließlich von Dritten verantwortet. Für die Richtigkeit, Vollständigkeit oder Rechtmäßigkeit der Angaben übernimmt OM keine Haftung. Hinweise auf mögliche Rechtsverstöße können jederzeit gemeldet werden und werden nach Prüfung umgehend bearbeitet.
Karte wird geladen...
Objektstandort
06114 Halle
- Sachsen-Anhalt
Lage & Infrastruktur
Objektstandort
06114 Halle
- Sachsen-Anhalt
Die Mozartstraße verläuft als Horizontale vom östlich gelegenen Paulusviertel in Richtung zur westlich gelegenen Saale quer durch den Stadtteil Giebichenstein in der nördlichen Innenstadt.
Der Stadtteil Giebichenstein bekam seinen Namen von der direkt an der Saale liegenden Burg Giebichenstein, welche bereits im 12. Jahrhundert errichtet wurde. Auf ihrem Gelände befindet sich seit 1919 bis heute ein Teil des Kunstcampus der Kunsthochschule Halle. Die Bebauung dieses Stadtteils stammt überwiegend aus dem 19. Jahrhundert und wurde seit 1990 schrittweise saniert. In Zoonähe und in Richtung Saaleufer überwiegen villenartige Gebäude mit Vorgärten und wertvollem Baumbestand. Durch die Saalenähe und die teils historischen Park- und Grünanlagen (Amtsgarten, Reichardts Garten, Heinrich-Heine-Park) gehört dieser Stadtteil zu den am stärksten durchgrünten Vierteln. Der Stadtteil zählt ca. 10.000 Einwohner.
Die Hausnummer 18 der Mozartstraße ist eine sehr ruhig gelegene Adresse, direkt gegenüber der Rückseite des Naturkundemuseums.
In der nahe gelegenen Reilstraße gibt es diverse Tram- und Bushaltestellen.
Der Volkspark, sowie weitere Parkanlagen und auch die Saale sind in wenigen Gehminuten in weniger als 500 m erreichbar.
Infrastruktur (im Umkreis von 5 km):
Apotheke, Lebensmittel-Discount, Allgemeinmediziner, Kindergarten, Grundschule, Hauptschule, Realschule, Gymnasium, Gesamtschule, Öffentliche Verkehrsmittel
Der Stadtteil Giebichenstein bekam seinen Namen von der direkt an der Saale liegenden Burg Giebichenstein, welche bereits im 12. Jahrhundert errichtet wurde. Auf ihrem Gelände befindet sich seit 1919 bis heute ein Teil des Kunstcampus der Kunsthochschule Halle. Die Bebauung dieses Stadtteils stammt überwiegend aus dem 19. Jahrhundert und wurde seit 1990 schrittweise saniert. In Zoonähe und in Richtung Saaleufer überwiegen villenartige Gebäude mit Vorgärten und wertvollem Baumbestand. Durch die Saalenähe und die teils historischen Park- und Grünanlagen (Amtsgarten, Reichardts Garten, Heinrich-Heine-Park) gehört dieser Stadtteil zu den am stärksten durchgrünten Vierteln. Der Stadtteil zählt ca. 10.000 Einwohner.
Die Hausnummer 18 der Mozartstraße ist eine sehr ruhig gelegene Adresse, direkt gegenüber der Rückseite des Naturkundemuseums.
In der nahe gelegenen Reilstraße gibt es diverse Tram- und Bushaltestellen.
Der Volkspark, sowie weitere Parkanlagen und auch die Saale sind in wenigen Gehminuten in weniger als 500 m erreichbar.
Infrastruktur (im Umkreis von 5 km):
Apotheke, Lebensmittel-Discount, Allgemeinmediziner, Kindergarten, Grundschule, Hauptschule, Realschule, Gymnasium, Gesamtschule, Öffentliche Verkehrsmittel
Kontaktanfrage senden
Kontakt
| Telefon | - |
| Fax | - |
| Website | www.ohne-makler.net |
Ansprechpartner/in
Angebot von Preismeyer Verwaltungs GmbH