Attraktive 4-Zimmer Wohnung mit Balkon in Neufahrn bei Freising
440.000 €
Kaufpreis
80 m²
Wohnfläche
4
Zimmer
immobilien.de Nr.: 9425614
Objektnummer: 421583
Dateien
Preise & Kosten
| Kaufpreis | 440.000 € |
| Nebenkosten | keine Angabe |
| Hausgeld | 443 € |
| Maklerprovision | keine Provision, courtagefrei |
Größe & Zustand
| Wohnfläche | 80 m² |
| Zimmer | 4 |
| Baujahr | 1970 |
| Verfügbar ab | 01.05.2026 |
| Zustand | Gepflegt |
Energie
| Energieausweistyp | Verbrauch |
| Energieeffizienzklasse | D |
| Energieverbrauchkennwert | 126 kWh/(m²*a) |
| Heizungsart | Zentralheizung |
| Energieträger/Befeuerung | Öl |
Objektbeschreibung
Attraktive 4-Zimmer Wohnung mit Balkon in sehr guter Lage von Neufahrn bei Freising zum Kauf mit Bezug ab Mai.
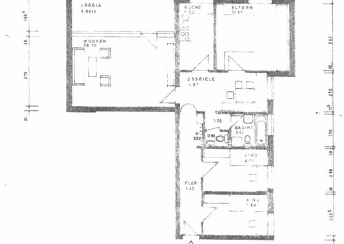
In einer ruhigen und familienfreundlichen Wohngegend von Neufahrn bei Freising erwartet Sie diese helle und großzügig geschnittene 4-Zimmer-Wohnung mit ca. 80 m² Wohnfläche. Sie befindet sich im 1. Obergeschoss eines gepflegten Mehrfamilienhauses aus dem Baujahr 1970 und bietet ideale Voraussetzungen für Familien, Paare oder Eigennutzer mit Platzbedarf.
Der durchdachte Grundriss überzeugt mit zwei gut geschnittenen Kinderzimmern, einem gemütlichen Schlafzimmer, einem großzügigen Wohnzimmer sowie einem separaten Essbereich, der zu gemeinsamen Mahlzeiten und geselligen Abenden einlädt.
Die separate Küche ist mit einer Einbauküche ausgestattet, die bereits im Kaufpreis enthalten ist – ideal für einen unkomplizierten Einzug. Die Heizkörper wurden vor wenigen Jahren erneuert.
Das Badezimmer verfügt über einen Waschmaschinenanschluss, was zusätzlichen Komfort im Alltag bietet. Ergänzt wird das Raumangebot durch ein separates WC.
Ein besonderes Highlight ist der großzügige, innenliegende Balkon mit Blick auf den angrenzenden Spielplatz – perfekt für entspannte Stunden im Freien und besonders attraktiv für Familien mit Kindern. Eine Verglasung (in Abstimmung mit der Hausverwaltung) ist möglich.
Zur Wohnung gehört außerdem ein eigenes Kellerabteil mit Stromanschluss, das zusätzlichen Stauraum für Fahrräder, Vorräte oder saisonale Gegenstände bietet.
Ein PKW Stellplatz vor dem Eingang kann bei der Hausverwaltung angemietet werden.
In einer ruhigen und familienfreundlichen Wohngegend von Neufahrn bei Freising erwartet Sie diese helle und großzügig geschnittene 4-Zimmer-Wohnung mit ca. 80 m² Wohnfläche. Sie befindet sich im 1. Obergeschoss eines gepflegten Mehrfamilienhauses aus dem Baujahr 1970 und bietet ideale Voraussetzungen für Familien, Paare oder Eigennutzer mit Platzbedarf.
Der durchdachte Grundriss überzeugt mit zwei gut geschnittenen Kinderzimmern, einem gemütlichen Schlafzimmer, einem großzügigen Wohnzimmer sowie einem separaten Essbereich, der zu gemeinsamen Mahlzeiten und geselligen Abenden einlädt.
Die separate Küche ist mit einer Einbauküche ausgestattet, die bereits im Kaufpreis enthalten ist – ideal für einen unkomplizierten Einzug. Die Heizkörper wurden vor wenigen Jahren erneuert.
Das Badezimmer verfügt über einen Waschmaschinenanschluss, was zusätzlichen Komfort im Alltag bietet. Ergänzt wird das Raumangebot durch ein separates WC.
Ein besonderes Highlight ist der großzügige, innenliegende Balkon mit Blick auf den angrenzenden Spielplatz – perfekt für entspannte Stunden im Freien und besonders attraktiv für Familien mit Kindern. Eine Verglasung (in Abstimmung mit der Hausverwaltung) ist möglich.
Zur Wohnung gehört außerdem ein eigenes Kellerabteil mit Stromanschluss, das zusätzlichen Stauraum für Fahrräder, Vorräte oder saisonale Gegenstände bietet.
Ein PKW Stellplatz vor dem Eingang kann bei der Hausverwaltung angemietet werden.
Ausstattung
| Anzahl der Etagen im Haus | 3 |
| Inserat befindet sich im Stockwerk | 1 |
| Küche | Einbauküche |
| Bad | 1 |
| Bad | Wanne |
| Boden | Fliesen, Laminat |
| Balkone | 1 |
| Terrassen | 0 |
| Keller |
Balkon, Keller, Vollbad, Einbauküche, Gäste-WC, Laminat, Fliesen
Sonstige Informationen
Heizungsart: Zentralheizung
Energieträger: Öl
Keine Markleranfragen.
Makleranfragen nicht erwünscht. Nach § 7 UWG sind unaufgeforderte Kontaktaufnahmen durch Makler ohne ausdrückliche Einwilligung des Empfängers verboten!
ohne-makler (OM) ist weder Anbieter noch Vermittler der Immobilie. OM betreibt eine Plattform für Immobilieneigentümer, die unter anderem die gleichzeitige Veröffentlichung einzelner Inserate auf mehreren Immobilienportalen ermöglicht. Die Inhalte dieser Inserate werden ausschließlich von Dritten verantwortet. Für die Richtigkeit, Vollständigkeit oder Rechtmäßigkeit der Angaben übernimmt OM keine Haftung. Hinweise auf mögliche Rechtsverstöße können jederzeit gemeldet werden und werden nach Prüfung umgehend bearbeitet.
Energieträger: Öl
Keine Markleranfragen.
Makleranfragen nicht erwünscht. Nach § 7 UWG sind unaufgeforderte Kontaktaufnahmen durch Makler ohne ausdrückliche Einwilligung des Empfängers verboten!
ohne-makler (OM) ist weder Anbieter noch Vermittler der Immobilie. OM betreibt eine Plattform für Immobilieneigentümer, die unter anderem die gleichzeitige Veröffentlichung einzelner Inserate auf mehreren Immobilienportalen ermöglicht. Die Inhalte dieser Inserate werden ausschließlich von Dritten verantwortet. Für die Richtigkeit, Vollständigkeit oder Rechtmäßigkeit der Angaben übernimmt OM keine Haftung. Hinweise auf mögliche Rechtsverstöße können jederzeit gemeldet werden und werden nach Prüfung umgehend bearbeitet.
Lage des Objektes
Lage & Umgebung – Leben in Neufahrn bei Freising
Einkaufsmöglichkeiten für den täglichen Bedarf, Kindergärten, Grundschule, Ärzte und Spielplätze befinden sich in unmittelbarer Nähe und sind bequem fußläufig erreichbar.
Zahlreiche Freizeit- und Erholungsmöglichkeiten, Rad- und Spazierwege sowie ein aktives Vereinsleben machen Neufahrn besonders attraktiv für Familien und Berufspendler.
Die Verkehrsanbindung ist hervorragend:
• S-Bahn-Linie S1 mit direkter Verbindung in die Münchner Innenstadt sowie zum Flughafen München
• Schnelle Anbindung an die Autobahnen A9 und A92
• Gute Busverbindungen innerhalb Neufahrns und in die umliegenden Orte
So profitieren Sie von kurzen Wegen und hoher Flexibilität – sowohl im Alltag als auch beruflich.
Infrastruktur (im Umkreis von 5 km):
Apotheke, Lebensmittel-Discount, Allgemeinmediziner, Kindergarten, Grundschule, Hauptschule, Gymnasium, Gesamtschule, Öffentliche Verkehrsmittel
Einkaufsmöglichkeiten für den täglichen Bedarf, Kindergärten, Grundschule, Ärzte und Spielplätze befinden sich in unmittelbarer Nähe und sind bequem fußläufig erreichbar.
Zahlreiche Freizeit- und Erholungsmöglichkeiten, Rad- und Spazierwege sowie ein aktives Vereinsleben machen Neufahrn besonders attraktiv für Familien und Berufspendler.
Die Verkehrsanbindung ist hervorragend:
• S-Bahn-Linie S1 mit direkter Verbindung in die Münchner Innenstadt sowie zum Flughafen München
• Schnelle Anbindung an die Autobahnen A9 und A92
• Gute Busverbindungen innerhalb Neufahrns und in die umliegenden Orte
So profitieren Sie von kurzen Wegen und hoher Flexibilität – sowohl im Alltag als auch beruflich.
Infrastruktur (im Umkreis von 5 km):
Apotheke, Lebensmittel-Discount, Allgemeinmediziner, Kindergarten, Grundschule, Hauptschule, Gymnasium, Gesamtschule, Öffentliche Verkehrsmittel
