Großzügige 3-Zimmer-Wohnung im DG eines 6-Parteien-Hauses in zentrumsnaher Lage von Geisenfeld
250.000 €
Kaufpreis
85 m²
Wohnfläche
9,5 m²
Nutzfläche
3
Zimmer
immobilien.de Nr.: 9421687
Objektnummer: 06816
Preise & Kosten
| Kaufpreis | 250.000 € |
| Nebenkosten | keine Angabe |
| Hausgeld | 320 € |
| Maklerprovision | 2,38 % inkl. MwSt. Käuferprovision |
Größe & Zustand
| Wohnfläche | 85 m² |
| Nutzfläche | 9,5 m² |
| Fläche teilbar ab | 85 m² |
| Zimmer | 3 |
| Baujahr | 1984 |
| Letzte Modernisierung | 2024 |
| Verfügbar ab | nach Vereinbarung |
| Zustand | Gepflegt |
Energie
| Heizungsart | Zentralheizung |
| Energieträger/Befeuerung | Gas |
Objektbeschreibung
Die mit ca. 85 m² Wohnfläche angenehm großzügige 3-Zimmer-Wohnung befindet sich im 2. Obergeschoss (= Dachgeschoss) eines im Jahr 1984 erbauten Mehrfamilienhauses nahe des Ortszentrums der oberbayerischen Stadt Geisenfeld.
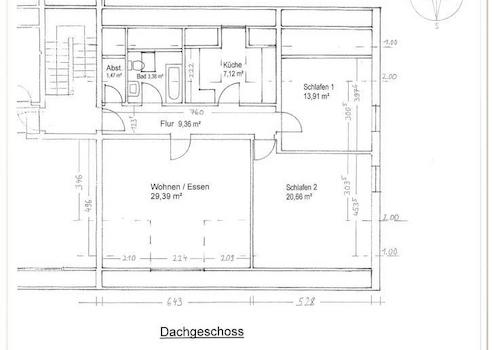
Das ca. 30 m² große Wohnzimmer bietet reichlich Platz für einen Essbereich und eine aufgelockerte Wohnzimmermöblierung.
Neben dem Wohnzimmer gibt es noch zwei weitere Zimmer mit 20 m² Wohnfläche resp. 14 m².
In der gut 7 m² großen Küche lässt es sich gut wirtschaften, und das Bad hat erfreulicherweise eine Badewanne sowie ein Fenster. Eine Abstellkammer rundet das positive Gesamtbild ab.
Zur Wohnung gehören ein ca. 9,5 m² großer Keller und ein Kfz-Stellplatz im Hof westlich des Hauses.
Die Wohnung ist bereits frei und kann kurzfristig bezogen werden (nach Bezahlung des Kaufpreises).
Bitte sehen Sie zur Raumaufteilung den Grundriss.
Das ca. 30 m² große Wohnzimmer bietet reichlich Platz für einen Essbereich und eine aufgelockerte Wohnzimmermöblierung.
Neben dem Wohnzimmer gibt es noch zwei weitere Zimmer mit 20 m² Wohnfläche resp. 14 m².
In der gut 7 m² großen Küche lässt es sich gut wirtschaften, und das Bad hat erfreulicherweise eine Badewanne sowie ein Fenster. Eine Abstellkammer rundet das positive Gesamtbild ab.
Zur Wohnung gehören ein ca. 9,5 m² großer Keller und ein Kfz-Stellplatz im Hof westlich des Hauses.
Die Wohnung ist bereits frei und kann kurzfristig bezogen werden (nach Bezahlung des Kaufpreises).
Bitte sehen Sie zur Raumaufteilung den Grundriss.
Ausstattung
| Anzahl der Etagen im Haus | 3 |
| Inserat befindet sich im Stockwerk | 2 |
| Küche | Einbauküche |
| Bad | 1 |
| Bad | Wanne, Fenster |
| Boden | Laminat |
Fenster Kunststoff weiß mit 3-fach-Verglasung, erneuert in 2021;
Ansprechender Laminatboden in Holz-Optik, erst kürzlich verlegt;
Küche mit Einbauküche;
Bad mit Badewanne und Fenster;
Gute Internetgeschwindigkeit (Glasfaseranschluss);
Wasserenthärtungsanlage;
Gasheizung, erneuert in 2010;
Ca. 9,5 m² großer Nutzkeller;
Kfz-Stellplatz im Hof
Ansprechender Laminatboden in Holz-Optik, erst kürzlich verlegt;
Küche mit Einbauküche;
Bad mit Badewanne und Fenster;
Gute Internetgeschwindigkeit (Glasfaseranschluss);
Wasserenthärtungsanlage;
Gasheizung, erneuert in 2010;
Ca. 9,5 m² großer Nutzkeller;
Kfz-Stellplatz im Hof
Sonstige Informationen
Der Kaufpreis beträgt EUR 250.000,- für die Wohnung inkl. EBK und Kfz-Stellplatz.
Beim Abschluss des notariellen Kaufvertrages stellen wir dem Käufer eine Nachweis- und/oder Vermittlungsprovision in Höhe von 2,38 % inkl. ges. MwSt. in Rechnung.
Wir haben einen provisionspflichtigen Maklervertrag mit dem Verkäufer in gleicher Höhe geschlossen.
Beim Abschluss des notariellen Kaufvertrages stellen wir dem Käufer eine Nachweis- und/oder Vermittlungsprovision in Höhe von 2,38 % inkl. ges. MwSt. in Rechnung.
Wir haben einen provisionspflichtigen Maklervertrag mit dem Verkäufer in gleicher Höhe geschlossen.
Lage des Objektes
Geisenfeld ist durch die Bundesstraße B300 hervorragend ans überregionale Verkehrsnetz angebunden, den Anschluss an die A9 in Langenbruck erreichen Sie zum Beispiel in knapp 10 Minuten. Von dort aus gelangen Sie in rund 15 Minuten nach Ingolstadt, oder in südlicher Richtung in 30 Minuten nach München. Die Kreisstadt Pfaffenhofen ist etwa 20 Minuten, der nächste Bahnhof der großen Linie München-Nürnberg in Rohrbach rund 10 Fahrminuten entfernt. Geisenfeld ist außerdem ans Busnetz des Verkehrsverbundes Ingolstadt angeschlossen.
Geisenfeld verfügt über ein Schulzentrum mit Grundschule, Mittelschule, Realschule, Adolf-Rebl-Förderschule. Zum Gymnasium in Wolnzach besteht geregelte Busverbindung. Drei gemeindliche und ein kirchlicher Kindergarten sowie Kinderkrippe und Kinderhort stehen jungen Familien zur Verfügung.
Der tägliche Bedarf ist durch Lebensmittelmärkte, Bäckerei, Metzgerei, usw. gedeckt. Das nahe Stadtzentrum bietet zusätzlich zahlreiche Geschäfte, Restaurants, Cafés und Wochenmärkte.
Geisenfeld bietet mit seinen zahlreichen Vereinen, der Kleinkunstbühne und dem Kulturforum, sowie dem Naherholungsgebiet 'Feilenmoos' ein reichhaltiges Kultur- und Freizeitangebot.
Ein Sportzentrum mit Hallenbad, der Reitanlage der 'Pferdefreunde Geisenfeld', dem modernsten Wakeboard-Park Deutschlands und mehrere Fitness-Studios bieten ein umfangreiches Angebot an Möglichkeiten.
Freizeitliebhaber profitieren von der Nähe zur Ilm-Aue, die zu Spaziergängen, Radltouren, zum Joggen und anderen sportlichen Aktivitäten einlädt.
Geisenfeld verfügt über ein Schulzentrum mit Grundschule, Mittelschule, Realschule, Adolf-Rebl-Förderschule. Zum Gymnasium in Wolnzach besteht geregelte Busverbindung. Drei gemeindliche und ein kirchlicher Kindergarten sowie Kinderkrippe und Kinderhort stehen jungen Familien zur Verfügung.
Der tägliche Bedarf ist durch Lebensmittelmärkte, Bäckerei, Metzgerei, usw. gedeckt. Das nahe Stadtzentrum bietet zusätzlich zahlreiche Geschäfte, Restaurants, Cafés und Wochenmärkte.
Geisenfeld bietet mit seinen zahlreichen Vereinen, der Kleinkunstbühne und dem Kulturforum, sowie dem Naherholungsgebiet 'Feilenmoos' ein reichhaltiges Kultur- und Freizeitangebot.
Ein Sportzentrum mit Hallenbad, der Reitanlage der 'Pferdefreunde Geisenfeld', dem modernsten Wakeboard-Park Deutschlands und mehrere Fitness-Studios bieten ein umfangreiches Angebot an Möglichkeiten.
Freizeitliebhaber profitieren von der Nähe zur Ilm-Aue, die zu Spaziergängen, Radltouren, zum Joggen und anderen sportlichen Aktivitäten einlädt.
Anbieter kontaktieren
Kontakt
| Telefon | +49 8133 444210 |
| Mobil | +49 172 8460088 |
| Fax | +49 8133 4442129 |
| Website | www.tell-immobilien.de |
