STREIF Energiesparhaus: Ihr nachhaltiges Einfamilienhaus
616.500 €
Kaufpreis
123 m²
Wohnfläche
4
Zimmer
immobilien.de Nr.: 9421494
Objektnummer: JW-EFH123-03-WB
Preise & Kosten
| Kaufpreis | 616.500 € |
| Nebenkosten | keine Angabe |
Größe & Zustand
| Wohnfläche | 123 m² |
| Grundstücksfläche | 620 m² |
| Zimmer | 4 |
| Verfügbar ab | keine Angabe |
Objektbeschreibung
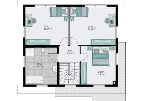
Anmutig und modern ist die Architektur des Energiesparhauses mit Satteldach. Die Fassade wird von einer waagerechten Holzverschalung und der Auswahl der Fensterformate geprägt. Der Grundriss des Hausentwurfes sieht im Erdgeschoss einen geräumigen Wohn- und Essbereich mit einer separaten Küche vor.
Ausstattung
| Anzahl der Etagen im Haus | 2 |
| Bad | 1 |
| Bad | Dusche |
| Balkone | 1 |
Das Streif City Haus wird im Standard KFW 40 PLUS ausgeführt. Grundstück inkl. Innenausstattung aus dem STREIF-Programm in der Ausbaustufe FF+ inklusive Fundamentplatte.
■ Rohbau (geschlossene Gebäudehülle) mit Fenstern, Haustür1 inkl. Dacheindeckung
■ Außenfassade inkl. Außenputz, vor Ort komplett fertiggestellt
■ Komplette Blechner-/Spenglerarbeiten
■ lnnen-/Außenwände wärme- und schallgedämmt und mit Gipsfaserplatten geschlossen
■ Geschosstreppe (außer Bungalow)
■ Decken wärme- und schallgedämmt und mit Gipskartonbau platten geschlossen
■ Elektroinstallation, einschließlich erforderlichem Zählerschrank und Inbetriebnahme
■ Heizungsanlage inkl. Inbetriebnahme
■ Innenfensterbänke Kunststeinbänke (Gussmarmorbänke) inkl. Einbau
■ Estrich
■ Sanitärräume mit Wand- und Bodenfliesen
■ Sanitärräume mit Sanitärobjekten
■ 6,23 kWP Photovoltaikanlage und 7,7 kWh Speicher
Die Innentüren sowie Wand-, Decken- und Bodenbeläge der übrigen Räume sind Eigenleistungen des Bauherren.
STREIF Frischluft-Wärmepumpen-Technologie - inklusive
- Heizen mit frischer Außenluft
- Kein Gasanschluss, kein Öl- oder Pelletlagerraum
- Keine Heizkörper
- Wärmetauscher mit bis zu 85% Wärmerückgewinnung
Die dargestellten Bilder können Sonderausstattungen beinhalten, die nicht im Preis enthalten sind!
zzgl. Ortüblicher Baunebenkosten
Selbstverständlich können wir Ihr Haus auch schlüsselfertig / bezugsfertig errichten.
■ Bodenbeläge, Sockel leisten verlegt
■ Maler- und Tapezierarbeiten
■ Innentüren inkl. Einbau
■ Rohbau (geschlossene Gebäudehülle) mit Fenstern, Haustür1 inkl. Dacheindeckung
■ Außenfassade inkl. Außenputz, vor Ort komplett fertiggestellt
■ Komplette Blechner-/Spenglerarbeiten
■ lnnen-/Außenwände wärme- und schallgedämmt und mit Gipsfaserplatten geschlossen
■ Geschosstreppe (außer Bungalow)
■ Decken wärme- und schallgedämmt und mit Gipskartonbau platten geschlossen
■ Elektroinstallation, einschließlich erforderlichem Zählerschrank und Inbetriebnahme
■ Heizungsanlage inkl. Inbetriebnahme
■ Innenfensterbänke Kunststeinbänke (Gussmarmorbänke) inkl. Einbau
■ Estrich
■ Sanitärräume mit Wand- und Bodenfliesen
■ Sanitärräume mit Sanitärobjekten
■ 6,23 kWP Photovoltaikanlage und 7,7 kWh Speicher
Die Innentüren sowie Wand-, Decken- und Bodenbeläge der übrigen Räume sind Eigenleistungen des Bauherren.
STREIF Frischluft-Wärmepumpen-Technologie - inklusive
- Heizen mit frischer Außenluft
- Kein Gasanschluss, kein Öl- oder Pelletlagerraum
- Keine Heizkörper
- Wärmetauscher mit bis zu 85% Wärmerückgewinnung
Die dargestellten Bilder können Sonderausstattungen beinhalten, die nicht im Preis enthalten sind!
zzgl. Ortüblicher Baunebenkosten
Selbstverständlich können wir Ihr Haus auch schlüsselfertig / bezugsfertig errichten.
■ Bodenbeläge, Sockel leisten verlegt
■ Maler- und Tapezierarbeiten
■ Innentüren inkl. Einbau
Sonstige Informationen
Mit der Ausbaustufe "FastFertigPlus" erhalten Sie ein Haus, das bereits in allen wesentlichen Bereichen fertiggestellt ist - inklusive Heizung, Lüftung, Sanitärinstallation und Estrich.
Sie übernehmen nur noch die Bodenbeläge und den Wandbelag in Eigenleistung - ganz nach Ihrem Geschmack.
Diese Variante ist ideal für Bauherren, die gestalterisch mitwirken möchten und dabei von spürbaren Einsparungen bei den Bau- und Finanzierungskosten profitieren wollen.
Sie übernehmen nur noch die Bodenbeläge und den Wandbelag in Eigenleistung - ganz nach Ihrem Geschmack.
Diese Variante ist ideal für Bauherren, die gestalterisch mitwirken möchten und dabei von spürbaren Einsparungen bei den Bau- und Finanzierungskosten profitieren wollen.
Lage des Objektes
Hier verwirklichen Sie Ihre Wohnträume - auf einem soliden Fundament! Der ausgewiesene Preis beinhaltet das Grundstück, zuzüglich der Baunebenkosten, deren Höhe durch Lage und Größe beeinflusst wird. Wichtig zu wissen: Das Grundstücksangebot (Verkauf/Vermittlung) erfolgt über einen externen, mit uns kooperierenden Makler gemäß §34c GewO. Ihr Grundstück wartet bereits auf Ihre Ideen? Perfekt! Wir unterstützen Sie gerne dabei, Ihr Traumhaus optimal darauf zu planen und zu realisieren.
Anbieter kontaktieren
Kontakt
| Telefon | +49 (0) 65 51.12-00 |
| Mobil | +49 171 2225255 |
| Website | www.streif.de |
