Helle und ruhige 3-Zimmer-Wohnung in Bad Kohlgrub mit sehr großem Hobbyraum
299.000 €
Kaufpreis
89,82 m²
Wohnfläche
43 m²
Nutzfläche
3
Zimmer
immobilien.de Nr.: 9420401
Objektnummer: 82433#LmYaZj
Kaufpreis
| Kaufpreis | 299.000 € |
| Hausgeld | 597 € |
| Maklerprovision | 2,975 % |
Wohnfläche, Grundstück & Bausubstanz
| Wohnfläche | 89,82 m² |
| Nutzfläche | 43 m² |
| Zimmer | 3 |
| Baujahr | 1979 |
| Verfügbar ab | die Wohnung steht leer |
| Zustand | Gepflegt |
Energie
| Energieausweistyp | Verbrauch |
| Ausstellungsdatum | 18. 09. 2018 |
| Gültig bis | 17.09.2028 |
| Energieverbrauchkennwert | 89.0 kWh/(m²*a) |
| Heizungsart | Zentralheizung |
| Wesentlicher Energieträger | Öl |
| Energieträger/Befeuerung | Öl |
Beschreibung der Immobilie
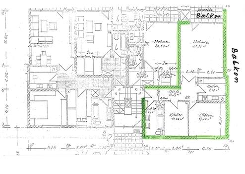
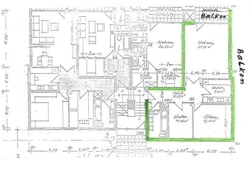
Diese 3-Zimmer-Etagen-Wohnung mit einem 43m² großen Hobbyraum und einer Einzelgarage liegt in Bad Kohlgrub - Linden, nahe der Talstation der Hörnlebahn.
Sämtliche Räume sind vom Flur aus zu erreichen. Die Balkone sind West-Nord-Ost ausgerichtet und können vom Wohnzimmer aus betreten werden.
Sämtliche Räume (auch die Küche und das Badezimmer) haben Tageslicht.
Der uns zur Verfügung stehende Grundriss ist leider der Grundriss der baugleichen Wohnung im Erdgeschoss. Die Balkone sind beschrieben und die Fotos sollten einen entsprechenden Aufschluss geben.
Im 43m² großen Hobbyraum ist ein separates WC und eine Dusche. Dieser Raum ist rechtlich von der Wohnung getrennt, es gibt, ebenso wie für die Garage, ein eigenes Grundbuchblatt.
Die Wohnung steht leer und kann vom Erwerber nach Kaufpreiszahlung sofort bezogen werden.
Die Wohnung ist gepflegt, allerdings sind viele Bestandteile aus dem Baujahr.
Einige Renovierungsarbeiten werden nötig sein.
Zusätzlich zu Hobbyraum und Garage ist auch noch ein Kellerabteil im Kaufpreis enthalten.
Die Balkone sind sanierungsbedürftig. Wer die Kosten dieser Sanierung zu tragen hat ist noch unklar, entweder der Einzeleigentümer oder die Eigentümergemeinschaft. Dies kann erst in er nächsten Eigentümerversammlung in 2026 geklärt werden.
Der Angebotspreis geht davon aus, dass die Kosten von der Eigentümergemeinschaft übernommen werden. Entsprechende Regelungen werden im Kaufvertrag getroffen.
Sämtliche Räume sind vom Flur aus zu erreichen. Die Balkone sind West-Nord-Ost ausgerichtet und können vom Wohnzimmer aus betreten werden.
Sämtliche Räume (auch die Küche und das Badezimmer) haben Tageslicht.
Der uns zur Verfügung stehende Grundriss ist leider der Grundriss der baugleichen Wohnung im Erdgeschoss. Die Balkone sind beschrieben und die Fotos sollten einen entsprechenden Aufschluss geben.
Im 43m² großen Hobbyraum ist ein separates WC und eine Dusche. Dieser Raum ist rechtlich von der Wohnung getrennt, es gibt, ebenso wie für die Garage, ein eigenes Grundbuchblatt.
Die Wohnung steht leer und kann vom Erwerber nach Kaufpreiszahlung sofort bezogen werden.
Die Wohnung ist gepflegt, allerdings sind viele Bestandteile aus dem Baujahr.
Einige Renovierungsarbeiten werden nötig sein.
Zusätzlich zu Hobbyraum und Garage ist auch noch ein Kellerabteil im Kaufpreis enthalten.
Die Balkone sind sanierungsbedürftig. Wer die Kosten dieser Sanierung zu tragen hat ist noch unklar, entweder der Einzeleigentümer oder die Eigentümergemeinschaft. Dies kann erst in er nächsten Eigentümerversammlung in 2026 geklärt werden.
Der Angebotspreis geht davon aus, dass die Kosten von der Eigentümergemeinschaft übernommen werden. Entsprechende Regelungen werden im Kaufvertrag getroffen.
Ausstattungsmerkmale
| Inserat befindet sich im Stockwerk | 1 |
| Küche | Einbauküche |
| Bad | 1 |
| Bad | Dusche, Wanne, Fenster |
| Boden | Fliesen, Teppich, Laminat |
| Balkone | 2 |
| Garage/Stellplätze | 1 |
| Keller |
Die Ausstattung der Wohnung ist gepflegt, aber einfach.
In den Wohnräumen befindet sich Laminat und Korkböden, Küche und Bad sind gefliest.
Das Badezimmer verfügt über eine Badewanne und eine Dusche und hat ein Fenster.
Auch die Einbauküche ist gepflegt und kann übernommen werden. Sie ist im Kaufpreis enthalten, wir erachten diese allerdings nicht als werterhöhend.
Eine Einzelgarage gehört ebenso zur Wohnung wie ein Kellerabteil. Sämtliches ist im Kaufpreis enthalten.
Besonders zu erwähnen, und werterhöhend, ist der große (43m²) Hobbyraum mit separatem WC und Dusche, ebenfalls im Angebotspreis enthalten, aber rechtlich getrennt (eigenes Grundbuch).
In den Wohnräumen befindet sich Laminat und Korkböden, Küche und Bad sind gefliest.
Das Badezimmer verfügt über eine Badewanne und eine Dusche und hat ein Fenster.
Auch die Einbauküche ist gepflegt und kann übernommen werden. Sie ist im Kaufpreis enthalten, wir erachten diese allerdings nicht als werterhöhend.
Eine Einzelgarage gehört ebenso zur Wohnung wie ein Kellerabteil. Sämtliches ist im Kaufpreis enthalten.
Besonders zu erwähnen, und werterhöhend, ist der große (43m²) Hobbyraum mit separatem WC und Dusche, ebenfalls im Angebotspreis enthalten, aber rechtlich getrennt (eigenes Grundbuch).
Sonstige Informationen
Wir bieten das Objekt mit einem qualifizierten Alleinauftrag an.
Wenn wir mit diesem Exposé Ihr Interesse geweckt haben, bitten wir um Kontaktaufnahme per Mail über die einschlägigen Webseiten, auf denen Sie dieses Angebot gefunden haben. Wir senden Ihnen dann kostenfrei weitere Informationen zu.
An dieser Stelle sei der Hinweis gestattet, dass die Inhalte dieses Exposés von Dritten stammen, und wir deswegen keine Haftung übernehmen können. Wir bitten insofern um Ihr Verständnis.
Über eine Kontaktaufnahme freuen wir uns!
Zwischenverkauf vorbehalten!!
Wenn wir mit diesem Exposé Ihr Interesse geweckt haben, bitten wir um Kontaktaufnahme per Mail über die einschlägigen Webseiten, auf denen Sie dieses Angebot gefunden haben. Wir senden Ihnen dann kostenfrei weitere Informationen zu.
An dieser Stelle sei der Hinweis gestattet, dass die Inhalte dieses Exposés von Dritten stammen, und wir deswegen keine Haftung übernehmen können. Wir bitten insofern um Ihr Verständnis.
Über eine Kontaktaufnahme freuen wir uns!
Zwischenverkauf vorbehalten!!
Karte wird geladen...
Objektstandort
82433 Bad Kohlgrub
Lage & Infrastruktur
Objektstandort
82433 Bad Kohlgrub
Die Wohnung liegt in Bad Kohlgrub - Linden, nahe der Talstation der Hörnlebahn.
Die Gemeinde mit ca. 2800 Einwohner hat einen hohen Erholungswert und touristischen Charakter.
Sämtliche Einrichtungen des täglichen Bedarfs wie Einkaufsmöglichkeiten, Bildung, Kultur, ärztliche Versorgung und nicht zuletzt Gastronomie befinden sich in der Nähe. Eine begehrte Wohnlage, die sie für Kapitalanleger sehr interessant macht!
Die Gemeinde mit ca. 2800 Einwohner hat einen hohen Erholungswert und touristischen Charakter.
Sämtliche Einrichtungen des täglichen Bedarfs wie Einkaufsmöglichkeiten, Bildung, Kultur, ärztliche Versorgung und nicht zuletzt Gastronomie befinden sich in der Nähe. Eine begehrte Wohnlage, die sie für Kapitalanleger sehr interessant macht!
Kontaktanfrage senden
Über den Anbieter
Andreas Eissfeldt Immobilien
Possartstr. 24
81679 München
Kontakt
| Telefon | +49 89 99848530 |
| Website | www.eissfeldt.de |
Ansprechpartner/in
Herr Andreas Eissfeldt
Weitere Angebote des Anbieters
18
Zentral in Rosenheim, gepflegtes Wohn- und ...
Zinshaus Renditeobjekt
83022 Rosenheim
Das angebotene Wohn – und Geschäftshaus befindet sich im Zentrum Rosenheims, circa 500 m entfernt von der Altstadt in attraktiver Lage. Das Objekt ist seit seiner Erstellung in Privatbesitz und wurde mehrfach ...
6.500.000 €
Kaufpreis
996 m²
Wohnfläche
keine Angabe
Zimmer
18
Helle und ruhige 3-Zimmer-Wohnung in Bad Kohlgrub mit ...
Wohnung
82433 Bad Kohlgrub
Diese 3-Zimmer-Etagen-Wohnung mit einem 43m² großen Hobbyraum und einer Einzelgarage liegt in Bad Kohlgrub - Linden, nahe der Talstation der Hörnlebahn. Sämtliche Räume sind vom Flur aus zu erreichen. Die Balkone sind ...
299.000 €
Kaufpreis
89,82 m²
Wohnfläche
3
Zimmer
5
Neuer Preis! Provisionsfrei - WGH in Tann direkt am ...
Sonstiges
84367 Tann
Bei dem Objekt handelt es sich um ein Wohn- und Geschäftshaus, früher genutzt als Büro im EG und Wohnen im OG. Das Grundstück ist bis auf kleinen Lichthof komplett überbaut. Das Baujahr ist nicht mehr zu ermitteln und ...
78.000 €
Kaufpreis
290 m²
Gesamtfläche