Einfamilienhaus mit Doppelgarage in Ortsrandlage von Gestratz
550.000 €
Kaufpreis
120 m²
Wohnfläche
32 m²
Nutzfläche
5
Zimmer
immobilien.de Nr.: 9419761
Objektnummer: 12827#ZeqEt
Kaufpreis
| Kaufpreis | 550.000 € |
| Maklerprovision | 3,57 % |
Wohnfläche, Grundstück & Bausubstanz
| Wohnfläche | 120 m² |
| Nutzfläche | 32 m² |
| Grundstücksfläche | 506 m² |
| Zimmer | 5 |
| Baujahr | 1994 |
| Verfügbar ab | ca. Ende 2026 |
Energie
| Energieausweistyp | Verbrauch |
| Ausstellungsdatum | 27. 03. 2025 |
| Gültig bis | 27.03.2035 |
| Baujahr (laut Energieausweis) | 1994 |
| Energieeffizienzklasse | B |
| Energieverbrauchkennwert | 58.9 kWh/(m²*a) |
| Heizungsart | Zentralheizung |
| Wesentlicher Energieträger | Gas |
| Energieträger/Befeuerung | Gas |
Beschreibung der Immobilie
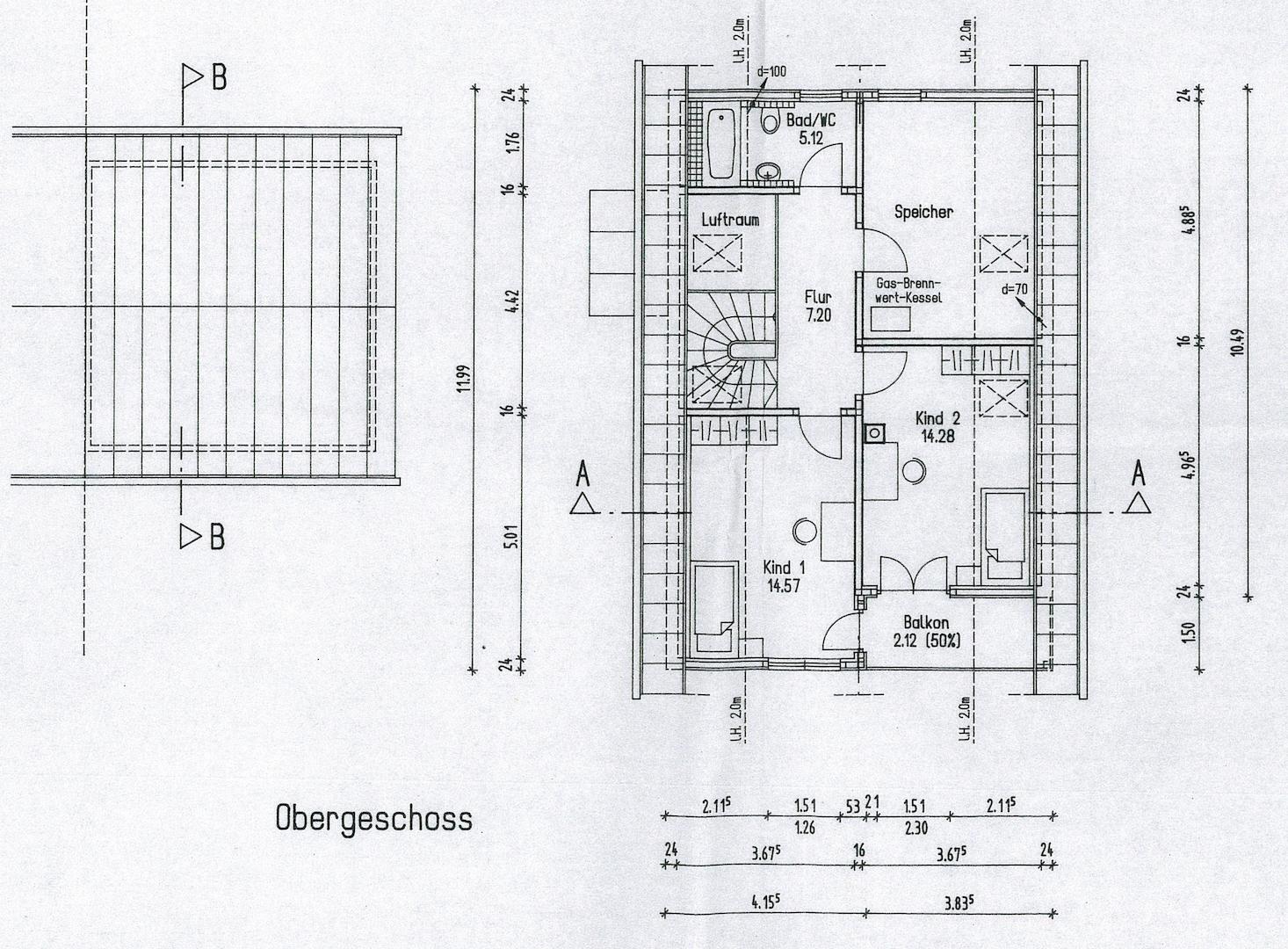
Das im Jahre 1994 erbaute Jarde-Einfamilienhaus, in einer Wohnsiedlung aber dennoch weitläufig an die Natur grenzend gelegen, besticht durch seine gemütliche Holzständerbauweise und verfügt über eine Wohnfläche von ca. 120m² auf einer Grundstücksfläche von insgesamt 506m². Die Immobilie ist in zwei Etagen aufgeteilt und bietet zwei Parkplätze sowie zwei Garagen für ausreichend Stellmöglichkeiten. Die Energieeffizienzklasse B sorgt zudem für eine kosteneffiziente Beheizung durch die Zentralheizung mit Flüssiggas.
Im Inneren des Hauses erwarten Sie 5 Zimmer, darunter 3 Schlafzimmer und 2 Badezimmer. Eine Terrasse sowie ein Balkon bieten zusätzliche Möglichkeiten, um draußen zu entspannen und die frische Luft zu genießen. Die Räume sind hell und geräumig gestaltet und bieten genug Platz für die ganze Familie.
Zusätzlich zu den Schlaf- und Badezimmern verfügt das Einfamilienhaus über eine schöne Küche und ein großes Wohnzimmer mit Kaminofen und Zugang zum großzügigen Garten, hier befindet sich auch ein Pool.
Ein Dachboden sorgt für zusätzlichen Stauraum.
Das Haus hat keinen Keller!
Im Inneren des Hauses erwarten Sie 5 Zimmer, darunter 3 Schlafzimmer und 2 Badezimmer. Eine Terrasse sowie ein Balkon bieten zusätzliche Möglichkeiten, um draußen zu entspannen und die frische Luft zu genießen. Die Räume sind hell und geräumig gestaltet und bieten genug Platz für die ganze Familie.
Zusätzlich zu den Schlaf- und Badezimmern verfügt das Einfamilienhaus über eine schöne Küche und ein großes Wohnzimmer mit Kaminofen und Zugang zum großzügigen Garten, hier befindet sich auch ein Pool.
Ein Dachboden sorgt für zusätzlichen Stauraum.
Das Haus hat keinen Keller!
Ausstattungsmerkmale
| Anzahl der Etagen im Haus | 2 |
| Küche | Einbauküche |
| Bad | 2 |
| Bad | Dusche, Wanne, Fenster |
| Boden | Fliesen, Teppich, Laminat, Kunststoff |
| Balkone | 1 |
| Terrassen | 1 |
| Garage/Stellplätze | 2 |
Küche mit Einbauküche und Gas-Herd
Holz-Iso-Fenster mit Fensterläden
Fußböden: Fliesen; Laminat; Vinyl
3 WC im Haus
2 Bäder (eins davon mit Badewanne)
Vollholztreppe; Holzdecken
Fußbodenheizung im EG
Kaminofen im Wohnzimmer
Doppelgarage mit Walbox + 2 Stellplätze davor; vor dem Haus Besucherparkplätze
Energieträger: Flüssiggas (Tank gemietet mit regelmäßiger Wartung ca. 276€/ jährlich befindet sich unterirdisch im Garten)
Gastherme mit Brennwert 9 Jahre alt
Terrasse mit Markise; Balkon; Garten mit Pool und Hochbeet
Schuppen an Garagenrückseite angebaut; zusätzlicher Geräteschuppen bzw. Müllhäuschen am Haus.
Glasfaseranschluss für die nächsten Jahre geplant.
Holz-Iso-Fenster mit Fensterläden
Fußböden: Fliesen; Laminat; Vinyl
3 WC im Haus
2 Bäder (eins davon mit Badewanne)
Vollholztreppe; Holzdecken
Fußbodenheizung im EG
Kaminofen im Wohnzimmer
Doppelgarage mit Walbox + 2 Stellplätze davor; vor dem Haus Besucherparkplätze
Energieträger: Flüssiggas (Tank gemietet mit regelmäßiger Wartung ca. 276€/ jährlich befindet sich unterirdisch im Garten)
Gastherme mit Brennwert 9 Jahre alt
Terrasse mit Markise; Balkon; Garten mit Pool und Hochbeet
Schuppen an Garagenrückseite angebaut; zusätzlicher Geräteschuppen bzw. Müllhäuschen am Haus.
Glasfaseranschluss für die nächsten Jahre geplant.
Sonstige Informationen
Schulsportplatz in unmittelbarer Nähe.
Karte wird geladen...
Objektstandort
88167 Gestratz
Lage & Infrastruktur
Objektstandort
88167 Gestratz
Einfamilienhaus in ruhiger Wohnsiedlung in Gestratz, einer idyllischen Gemeinde im wunderschönen Allgäu. Der Ort besticht durch seine ruhige und familienfreundliche Atmosphäre, geprägt von Allgäuer Landschaft mit grünen Wiesen und Wäldern. Supermarkt, Schule und Kindergarten sind in unmittelbarer Nähe und bieten alles für den täglichen Bedarf.
Das charmante Dorf Gestratz bietet eine gute Anbindung an das öffentliche Verkehrsnetz.
Die reizvolle Landschaft ist ideal für Naturliebhaber und Outdoor-Aktivitäten.
Das charmante Dorf Gestratz bietet eine gute Anbindung an das öffentliche Verkehrsnetz.
Die reizvolle Landschaft ist ideal für Naturliebhaber und Outdoor-Aktivitäten.
Kontaktanfrage senden
Über den Anbieter
Keck Immobilien
Hofstatt 5
88316 Isny im Allgäu
Kontakt
| Telefon | +49 7562 4551 |
| Mobil | +49 171 4037810 |
| Website | www.keck-immobilien.de |
Ansprechpartner/in
Herrn Michael Keck
Weitere Angebote des Anbieters
14
2-Zi.-Maisonetten-Whg + Loggia in der Fußgängerzone ...
Wohnung
88316 Isny im Allgäu
Im Zentrum von Isny im Allgäu, nahe dem Kurpark, wird eine in ansprechender Architektur erbaute großzügige 2-Zimmer-Maisonettenwohnung mit Loggia neu vermietet. Ein Aufzug ist im Haus vorhanden. Wohnen Sie über den ...
850 €
Kaltmiete
84 m²
Wohnfläche
2
Zimmer
17
Gepflegte 2-Zimmer-Erdgeschoßwohnung mit Terrasse in ...
Wohnung
88316 Isny im Allgäu
Kapitalanleger aufgepasst: Diese gut vermietete, sehr gepflegte 2-Zimmer-Erdgeschoss-Wohnung in ruhiger Lage soll an einen neuen Kapitalanleger verkauft werden. Aufgeteilt ist die Wohnung in Flur, Wohnzimmer mit Zugang ...
149.000 €
Kaufpreis
47 m²
Wohnfläche
2
Zimmer
39
Gepflegtes 3-Familienhaus in schöner Wohnlage von Isny ...
Haus
88316 Isny im Allgäu
Das Mehrfamilienhaus eignet sich ideal als Kapitalanlage oder Eigennutzung, die Wohnung im DG ist vermietet. Die Wohnungen im EG und 1.OG stehen aktuell leer und sind frei verfügbar. In dem angebotenen Mehrfamilienhaus ...
695.000 €
Kaufpreis
260 m²
Wohnfläche
9
Zimmer
39
Liebhaberstück: Besonderes Einfamilienhaus mit ...
Haus
88260 Argenbühl
Bergblick, Wiesenrandlage und viel Platz..... Das sind nur drei von vielen Kaufargumenten für diese einzigartige Immobilie, welche Wohnträume wahr werden lässt. In diesem charmanten Einfamilienhaus mit Einliegerwohnung ...
749.000 €
Kaufpreis
219 m²
Wohnfläche
6
Zimmer
7
Neu sanierter Tiefgaragenstellplatz, nahe Zentrum von ...
Parken
88239 Wangen im Allgäu
Dieser neu sanierte Tiefgaragenstellplatz Nr. 45 befindet sich in einer Wohnanlage, ca. 150 m von der Fußgängerzone von Wangen im Allgäu entfernt. Vor ca. 3 Jahren wurde die Tiefgaragenanlage saniert. Der Stellplatz ...
100 €
Kaltmiete
keine Angabe
Wohnfläche
keine Angabe
Zimmer